to
Reset
Houses
Townhouses
Condos
Land
Price
to
SQFT
to
Bdrms
to
Baths
to
Lot
to
Yr Built
to
Sold
Listed within...
Listed at least...
Offer Review
New Construction
Waterfront
Short-Sales
REO
Parking
to
Unit Flr
to
Unit Nbr
Listings
Neighborhoods
Complexes
Developments
Cities
Counties
Zip Codes
Neighborhood · Condo · Development
School District
Zip Code
City
County
Builder
Listing Numbers
Broker LAG
Boundary Lines
Labels
View
Sort
Sold Closed December 4, 2025
$665,000
Originally $725,000
3 Bedrooms
1.75 Bathrooms
2,142 Sqft House
Built 1981
2.3 Acres Lot
Garage
SALE HISTORY
List price was $725,000
The price was later changed to $699,900.
It took 166 days to go pending.
Then 37 days to close at $665,000
Closed at $310/SQFT.
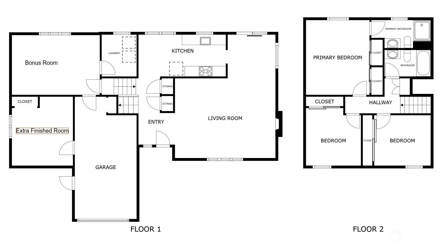
Nestled on a private 2.3-acre lot, this tri-level home offers peace, privacy, and space to live, work, and create. With BRAND NEW CARPET, this house features 3 bedrooms, 2 updated baths, vinyl plank flooring on the main level, and fiber internet. The bright living and dining areas open to a deck, and the kitchen is updated and functional. Downstairs includes a large bonus room and a finished space perfect for an office or hobby room. Upstairs are all 3 bedrooms, including a primary suite with ensuite bath. A spacious shop and ample parking complete the package. Ideally located between Poulsbo and Kingston with easy access to ferries, shopping, and more. Mortgage savings may be available for buyers of this listing.
Offer Review
No offer review date was specified
Listing source NWMLS MLS #
2376512
Listed by
Sheryl Wingate, Redfin
Buyer's broker
Lindsay Martin, Keller Williams Greater 360
Contact our
Poulsbo
Real Estate Lead
My Kitsap Homes, LLC
Phone...
Bedroom & Bathroom Layout
THIRD
SECOND
BDRM
BDRM
BDRM
FULL
BATH
¾
BATH
LOWER
Property History
Dec 04, 2025
Sold
$665,000
NWMLS #2376512 Annualized 4.4% / yr
Oct 31, 2025
Went Pending
$699,900
NWMLS #2376512
Oct 02, 2025
Went Contingent
$699,900
NWMLS #2376512
Oct 02, 2025
Went Pending Inspection
$699,900
NWMLS #2376512
Sep 02, 2025
Listed
$699,900
NWMLS #2376512
Jun 06, 2025
Price Reduction arrow_downward
$699,900
NWMLS #2376512
May 15, 2025
Listed
$725,000
NWMLS #2376512
Apr 22, 2021
Sold
$545,000
More
Listing Details
  • Sale Price
    $665,000
  • Closing Date
    December 4, 2025
  • Last List Price
    $699,900
  • Original Price
    $725,000
  • List Date
    May 15, 2025
  • Pending Date
    October 28, 2025
  • Days to go Pending
    166 days
  • $/sqft (Total)
    $310/sqft
  • $/sqft (Finished)
    $310/sqft
  • Listing Source
  • MLS Number
    2376512
  • Listing Broker
    Sheryl Wingate
  • Listing Office
    Redfin
  • Buyer's Broker
    Lindsay Martin
  • Buyer Broker's Firm
    Keller Williams Greater 360
Monthly Payment Estimate
  • Principal and Interest
    $3,486 / month
  • Property Taxes
    $412 / month
  • Homeowners Insurance
    $134 / month
  • TOTAL
    $4,032 / month

  • based on 20% down
    ($133,000)
  • and a
    6.85% Interest Rate
  • About:
    All calculations are estimates only and provided by Mainview LLC. Actual amounts will vary.
House Details
  • Sqft (Total)
    2,142 sqft
  • Sqft (Finished)
    2,142 sqft
  • Sqft (Unfinished)
    None
  • Property Type
    House
  • Sub Type
    Tri-Level
  • Bedrooms
    3 Bedrooms
  • Bathrooms
    1.75 Bathrooms
  • Lot
    2.3 Acres Lot
  • Lot Size Source
    Realist - Buyer to Verify All
  • Lot #
    Unspecified
  • Project
    Unspecified
  • Total Stories
    3 stories
  • Basement
    Finished
  • Sqft Source
    Realist - Buyer to Verify All
Property Tax Info
  • 2025 Property Taxes
    $4,944 / year
  • No Senior Exemption
Public Parcel Data & Maps
Schools
  • School District
    North Kitsap #400
  • Elementary
    Buyer To Verify
  • Middle
    Buyer To Verify
  • High School
    Buyer To Verify
HOA
  • HOA Dues
    Unspecified
  • Fees Assessed
    Unspecified
  • HOA Dues Include
    Unspecified
  • HOA Contact
    Unspecified
  • Management Contact
    Unspecified
Parking
  • Covered
    Unspecified
  • Types
    Driveway
    Attached Garage
  • Has Garage
    Yes
Views
  • Territorial
Construction
  • Year Built
    1981
  • Home Builder
    Unspecified
Cooling
  • Includes
    None
Heating
  • Includes
    Forced Air
Interior
  • Flooring
    Vinyl Plank
    Carpet
  • Features
    Bath Off Primary
    Dining Room
Property
  • Site Features
    Barn
    High Speed Internet
    Outbuildings
    Patio
Appliances
  • Included
    Dishwasher(s)
    Microwave(s)
    Refrigerator(s)
    Stove(s)/Range(s)
Terms
  • Bank Owned (REO)
    No
Utilities
  • Energy
    Electric
  • Sewer
    Septic Tank
  • Water Source
    Community
    Shared Well
Additional Info
  • Waterfront
    No
  • Air Conditioning (A/C)
    No
  • Buyer Broker's Compensation
    2.5%
  • MLS Area #
    Area 166
  • Number of Photos
    38
  • Last Modification Time
    Thursday, December 4, 2025 1:58 PM
  • System Listing ID
    5489075
Update Info
  • Closed
    2025-12-04 14:04:29
  • Pending Or Ctg
    2025-10-31 10:53:22
Listing details based on information submitted to the MLS GRID as of Thursday, December 4, 2025 1:58 PM. All data is obtained from various sources and may not have been verified by broker or MLS GRID. Supplied Open House Information is subject to change without notice. All information should be independently reviewed and verified for accuracy. Properties may or may not be listed by the office/agent presenting the information.
View
Sort

Sharing

 
Sold December 4, 2025
$665,000   $699,900
3 BR    1.75 BA    2,142 SQFT  
NWMLS #2376512. Sheryl Wingate, Redfin
Map
 
Listing information is provided by the listing agent except as follows: BuilderB indicates that our system has grouped this listing under a home builder name that doesn't match the name provided by the listing broker. DevelopmentD indicates that our system has grouped this listing under a development name that doesn't match the name provided by the listing broker.