to
Reset
Houses
Townhouses
Condos
Land
Price
to
SQFT
to
Bdrms
to
Baths
to
Lot
to
Yr Built
to
Sold
Listed within...
Listed at least...
Offer Review
New Construction
Waterfront
Short-Sales
REO
Parking
to
Unit Flr
to
Unit Nbr
Listings
Neighborhoods
Complexes
Developments
Cities
Counties
Zip Codes
Neighborhood · Condo · Development
School District
Zip Code
City
County
Builder
Listing Numbers
Broker LAG
Boundary Lines
Labels
View
Sort
Pending Went pending in 5 days
$1,050,000
4 Bedrooms
1.75 Bathrooms
2,160 Sqft House
Built 1985
21,120 Sqft Lot
No Garage
PENDING SALE. This listing went Pending on November 19, 2025

Some pending sales don't become final. Contact Us if this property is really important to you so we can check on it right now. The seller has reached an agreement with a buyer to sell this property. If things go as planned, the sale will become final in the near future. The buyer and seller have agreed on a price but it's not public until the sale closes. The last published list price was $1,050,000.
Placed peacefully on a quiet, tree-lined lane in Newcastle, discover a pastoral PNW sanctuary where nature meets livability. This well-cared-for poet’s residence invites the outdoors in with west-facing windows for garden and sunset views. The kitchen and dining area flow to an entertainer’s deck—an ideal perch for backyard BBQs between the landmark Sequoia and Quaking Aspen. The primary bedroom opens to a serene balcony. The garden level offers a daylight family/media room, sauna, and flexible bedrooms with room to grow or work from home. With abundant off-street parking the expansive, level lot is poised for redevelopment. Live among hawks, eagles, deer on the wilder side of Newcastle steps from schools, minutes to 405, I-90 and amenities
Offer Review Date
This listing's offer review date was Wednesday, November 19, 2025.
Listing source NWMLS MLS #
2455179
Listed by
Edward Krigsman, Windermere Real Estate Co.
Mary Mansour, Windermere Real Estate Co.
Contact our
Newcastle
Real Estate Lead
John L. Scott
Phone...
Bedroom & Bathroom Layout
MAIN
BDRM
BDRM
FULL
BATH
LOWER
BDRM
BDRM
¾
BATH
Property History
Nov 19, 2025
Went Pending
$1,050,000
NWMLS #2455179
Nov 14, 2025
Listed
$1,050,000
NWMLS #2455179
More
Listing Details
  • Status
    Pending
  • Last Listed Price
    $1,050,000
  • Original Price
    Same as current
  • List Date
    November 14, 2025
  • Last Status Change
    November 20, 2025
  • Last Update
    November 20, 2025
  • Days on Market
    25 Days
  • Cumulative DOM
    5 Days
  • Pending Date
    November 19, 2025
  • Days to go Pending
    5
  • $/sqft (Total)
    $486/sqft
  • $/sqft (Finished)
    $486/sqft
  • Listing Source
  • MLS Number
    2455179
  • Listing Broker
    Edward Krigsman
  • Listing Office
    Windermere Real Estate Co.
Monthly Payment Estimate
  • Principal and Interest
    $5,504 / month
  • Property Taxes
    $655 / month
  • Homeowners Insurance
    $205 / month
  • TOTAL
    $6,364 / month

  • based on 20% down
    ($210,000)
  • and a
    6.85% Interest Rate
  • About:
    All calculations are estimates only and provided by Mainview LLC. Actual amounts will vary.
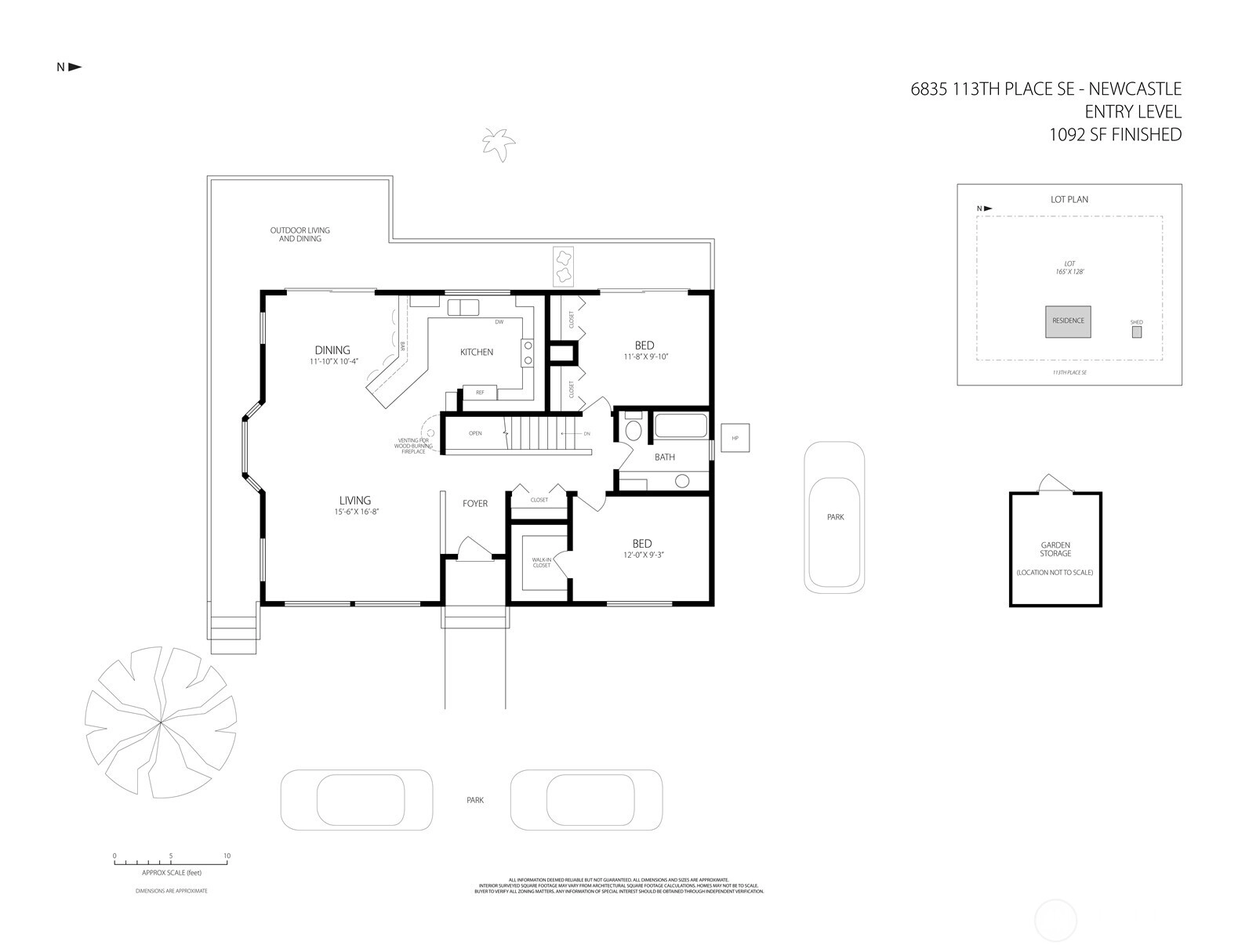
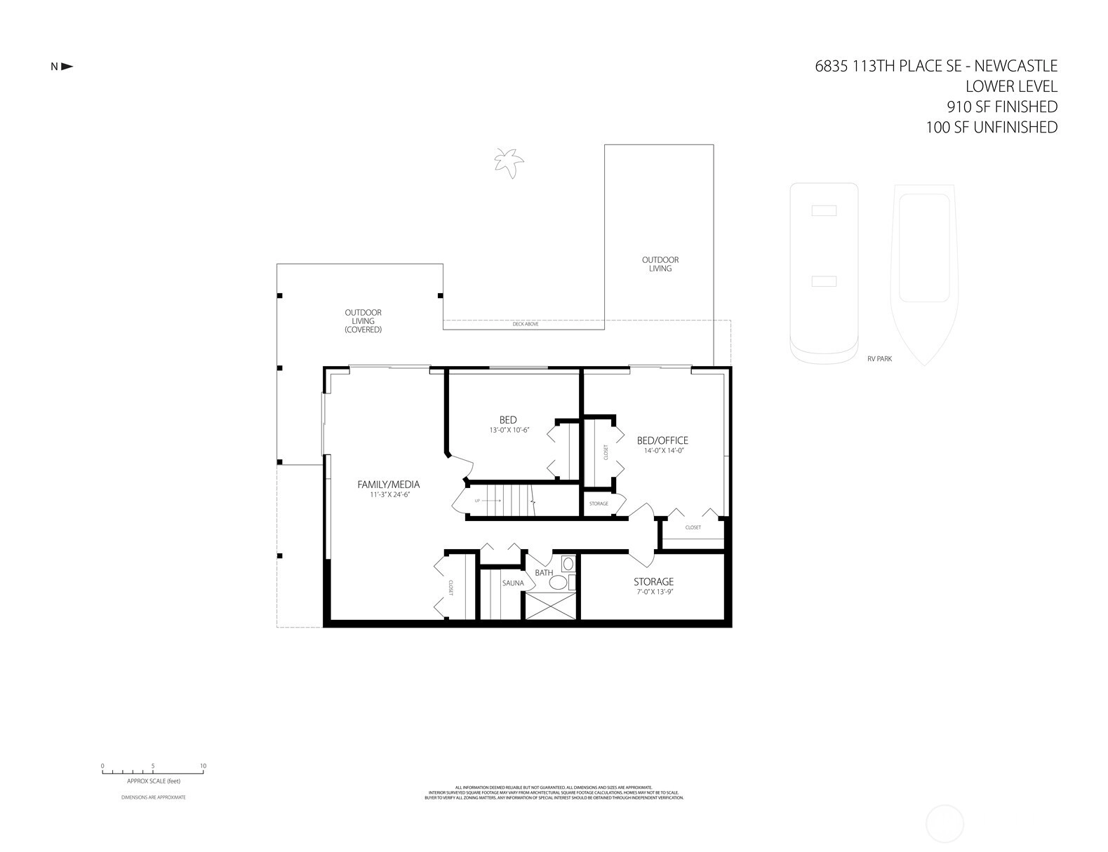
House Details
  • Sqft (Total)
    2,160 sqft
  • Sqft (Finished)
    2,160 sqft
  • Sqft (Unfinished)
    None
  • Property Type
    House
  • Sub Type
    1 Story + Basement
  • Bedrooms
    4 Bedrooms
  • Bathrooms
    1.75 Bathrooms
  • Lot
    21,120 sqft Lot
  • Lot Size Source
    Public Records
  • Lot #
    Unspecified
  • Project
    Unspecified
  • Total Stories
    2 stories
  • Sqft Source
    KCAR
Property Tax Info
  • 2025 Property Taxes
    $7,856 / year
  • No Senior Exemption
Public Parcel Data & Maps
Schools
  • School District
    Renton
  • Elementary
    Hazelwood Elem
  • Middle
    Risdon Middle School
  • High School
    Hazen Snr High
HOA
  • HOA Dues
    Unspecified
  • Fees Assessed
    Unspecified
  • HOA Dues Include
    Unspecified
  • HOA Contact
    Unspecified
  • Management Contact
Parking
  • Covered
    Unspecified
  • Types
    Off Street
    RV Parking
  • Has Garage
    No
Views
  • Territorial
Construction
  • Year Built
    1985
  • Home Builder
    Terhune Homes
Cooling
  • Includes
    Forced Air
Heating
  • Includes
    Forced Air
Interior
  • Flooring
    Ceramic Tile
    Carpet
  • Features
    Double Pane/Storm Window
    Dining Room
    Sauna
    Walk-In Closet(s)
    Water Heater
Property
  • Lot Features
    Curbs
    Dead End Street
    Dirt Road
    Secluded
    Sidewalk
  • Site Features
    Cable TV
    Deck
    Gas Available
    High Speed Internet
    Outbuildings
    Patio
    RV Parking
Appliances
  • Included
    Dishwasher(s)
    Dryer(s)
    Refrigerator(s)
    Washer(s)
Terms
  • 3rd Party Approval Required)
    No
  • Bank Owned (REO)
    No
  • Complex FHA Availability
    Unspecified
  • Potential Terms
    Cash Out
    Conventional
    FHA
Utilities
  • Energy
    Natural Gas
  • Sewer
    Sewer Connected
  • Water Source
    Public
Additional Info
  • Waterfront
    No
  • Air Conditioning (A/C)
    Yes
  • Buyer Broker's Compensation
    2.5%
  • MLS Area #
    Area 500
  • Number of Photos
    38
  • Last Modification Time
    Wednesday, November 19, 2025 9:21 PM
  • System Listing ID
    5500672
Update Info
  • Pending Or Ctg
    2025-11-19 21:32:22
  • First For Sale
    2025-11-14 14:34:22
Listing details based on information submitted to the MLS GRID as of Wednesday, November 19, 2025 9:21 PM. All data is obtained from various sources and may not have been verified by broker or MLS GRID. Supplied Open House Information is subject to change without notice. All information should be independently reviewed and verified for accuracy. Properties may or may not be listed by the office/agent presenting the information.
View
Sort

Sharing

 
Pending November 19, 2025
$1,050,000  
4 BR    1.75 BA    2,160 SQFT  
NWMLS #2455179. Edward Krigsman, Windermere Real Estate Co.
Map
 
Listing information is provided by the listing agent except as follows: BuilderB indicates that our system has grouped this listing under a home builder name that doesn't match the name provided by the listing broker. DevelopmentD indicates that our system has grouped this listing under a development name that doesn't match the name provided by the listing broker.