to
Reset
Houses
Townhouses
Condos
Land
Price
to
SQFT
to
Bdrms
to
Baths
to
Lot
to
Yr Built
to
Sold
Listed within...
Listed at least...
Offer Review
New Construction
Waterfront
Short-Sales
REO
Parking
to
Unit Flr
to
Unit Nbr
Listings
Neighborhoods
Complexes
Developments
Cities
Counties
Zip Codes
Neighborhood · Condo · Development
School District
Zip Code
City
County
Builder
Listing Numbers
Broker LAG
Boundary Lines
Labels
View
Sort
Sold Closed April 1, 2020
$598,900
Originally $609,950
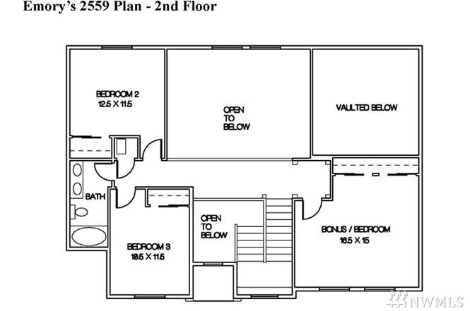
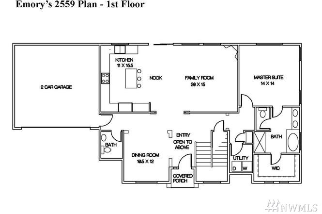
4 Bedrooms
2.5 Bathrooms
2,559 Sqft House
Built 2017
7,457 Sqft Lot
2-Car Garage
SALE HISTORY
List price was $609,950
The price was later changed to $598,900.
It took 14 days to go pending.
Then 28 days to close at $598,900
Closed at $234/SQFT.
Incredibly spacious, hard-to-find open floor plan in a 2017 home with a downtown location! Featuring 4 large bedrooms w/ main floor master suite enchanted with cathedral ceilings, 5-piece bath, full tile shower, & walk-in closet. Soaring vaulted ceilings throughout. Oversized kitchen features granite counters w/ island, SS appliances, laminate flooring, and a dining room designed with box beam ceilings. Gated RV parking in a dead-end street just a walk away to downtown parks and amenities.
Offer Review
No offer review date was specified
Listing source NWMLS MLS #
1566612
Listed by
Emik Tereshchenko, North Pacific Properties
Buyer's broker
Ron Sims, The Preview Group
Contact our
Snohomish
Real Estate Lead
Buck Real Estate
Phone...
Time Adjusted Estimated Value
Assumptions: The original sale amount reflected a normal arms length sale. Any major updates would add to the value. Any damage or deferred maintenance would subtract from the value.
Bedroom & Bathroom Layout
SECOND
BDRM
BDRM
BDRM
FULL
BATH
MAIN
BDRM
FULL
BATH
½
BATH
LOWER
Property History
Mar 31, 2020
Sold
$598,900
NWMLS #1566612 Annualized 7% / yr
Nov 07, 2017
Sold
$509,516
More
Listing Details
  • Sale Price
    $598,900
  • Closing Date
    April 1, 2020
  • Last List Price
    $598,900
  • Original Price
    $609,950
  • List Date
    February 19, 2020
  • Pending Date
    March 4, 2020
  • Days to go Pending
    14 days
  • $/sqft (Total)
    $234/sqft
  • $/sqft (Finished)
    $234/sqft
  • Listing Source
  • MLS Number
    1566612
  • Listing Broker
    Emik Tereshchenko
  • Listing Office
    North Pacific Properties
  • Buyer's Broker
    Ron Sims
  • Buyer Broker's Firm
    The Preview Group
Monthly Payment Estimate
  • Principal and Interest
    $3,139 / month
  • Property Taxes
    $479 / month
  • Homeowners Insurance
    $122 / month
  • TOTAL
    $3,740 / month

  • based on 20% down
    ($119,780)
  • and a
    6.85% Interest Rate
  • About:
    All calculations are estimates only and provided by Mainview LLC. Actual amounts will vary.
House Details
  • Sqft (Total)
    2,559 sqft
  • Sqft (Finished)
    Unspecified
  • Sqft (Unfinished)
    None
  • Property Type
    House
  • Sub Type
    2 Story
  • Bedrooms
    4 Bedrooms
  • Bathrooms
    2.5 Bathrooms
  • Lot
    7,457 sqft Lot
  • Lot Size Source
    Records
  • Lot #
    5
  • Project
    Emory's
  • Total Stories
    2 stories
  • Basement
    Unfinished
  • Sqft Source
    Records
Property Tax Info
  • 2019 Property Taxes
    $5,751 / year
  • No Senior Exemption
Public Parcel Data & Maps
  • County
    Snohomish County
  • Parcel #
    1160000000500
  • County Website
    Unspecified
  • County Parcel Map
    Unspecified
  • County GIS Map
    Unspecified
  • About
    County links provided by Mainview LLC
Schools
  • School District
    Snohomish
  • Elementary
    Central Elem
  • Middle
    Centennial Mid
  • High School
    Snohomish High
HOA
  • HOA Dues
    Unspecified
  • Fees Assessed
    Monthly
  • HOA Dues Include
    Unspecified
  • HOA Contact
    Unspecified
  • Management Contact
    Unspecified
Parking
  • Covered
    2-Car
  • Types
    RV Parking
  • Has Garage
    Yes
  • Nbr of Assigned Spaces
    2
Views
  • Partial
    Territorial
Construction
  • Year Built
    2017
  • Home Builder
    Mietzner Home Builders
HVAC
  • Includes
    Forced Air
    Tankless Water Heater
Cooling
Heating
Interior
  • Flooring
    Ceramic Tile
    Laminate
    Vinyl
    Carpet
  • Features
    Ceramic Tile
    Laminate
    Bath Off Primary
    Ceiling Fan(s)
    Double Pane/Storm Window
    Dining Room
    High Tech Cabling
    Skylight(s)
Property
  • Lot Features
    Curbs
    Dead End Street
    Sidewalk
  • Site Features
    Cable TV
    Fenced-Partially
    High Speed Internet
    Patio
    RV Parking
Appliances
Terms
  • Bank Owned (REO)
    No
Utilities
  • Energy
    Natural Gas
  • Sewer
    Sewer Connected
  • Water Source
    Public
Additional Info
  • Waterfront
    No
  • Air Conditioning (A/C)
    No
  • Buyer Broker's Compensation
    Unspecified
  • MLS Area #
    Area
  • Number of Photos
    29
  • Last Modification Time
    Tuesday, July 8, 2025 7:36 PM
  • System Listing ID
    1962571
Update Info
  • Closed
    2025-07-08 20:06:09
Listing details based on information submitted to the MLS GRID as of Tuesday, July 8, 2025 7:36 PM. All data is obtained from various sources and may not have been verified by broker or MLS GRID. Supplied Open House Information is subject to change without notice. All information should be independently reviewed and verified for accuracy. Properties may or may not be listed by the office/agent presenting the information.
View
Sort

Sharing

 
Sold April 1, 2020
$598,900  
4 BR    2.5 BA    2,559 SQFT  
NWMLS #1566612. Emik Tereshchenko, North Pacific Properties
Map
 
Listing information is provided by the listing agent except as follows: BuilderB indicates that our system has grouped this listing under a home builder name that doesn't match the name provided by the listing broker. DevelopmentD indicates that our system has grouped this listing under a development name that doesn't match the name provided by the listing broker.