to
Reset
Houses
Townhouses
Condos
Land
Price
to
SQFT
to
Bdrms
to
Baths
to
Lot
to
Yr Built
to
Sold
Listed within...
Listed at least...
Offer Review
New Construction
Waterfront
Short-Sales
REO
Parking
to
Unit Flr
to
Unit Nbr
Listings
Neighborhoods
Complexes
Developments
Cities
Counties
Zip Codes
Neighborhood · Condo · Development
School District
Zip Code
City
County
Builder
Listing Numbers
Broker LAG
Boundary Lines
Labels
View
Sort
Sold Closed April 2, 2020
$835,000
Originally $840,000
4 Bedrooms
3.5 Bathrooms
3,938 Sqft House
Built 2019
33,171 Sqft Lot
3-Car Garage
HOA Dues $33 / month
SALE HISTORY
List price was $840,000
The price was later changed to $835,000.
It took 12 days to go pending.
Then 28 days to close at $835,000
Closed at $212/SQFT.
BETTER than NEW extraordinary home built in 2019. Set in a Gated neighborhood on .75 acre with views & privacy, backs to a greenbelt with walking trail. Open & bright floor-plan accommodates all, vast windows & stellar cook's kitchen. Home features charming built-ins throughout, Huge recreation room, Spa inspired Master Suite w/large walk-in closet. Plus possible 5th bedrm. Fully Fenced yard, covered deck+cozy outdoor Fireplace. Beautiful rural setting yet minutes to shopping & commuter routes.
Offer Review
No offer review date was specified
Listing source NWMLS MLS #
1567122
Listed by
Aimee Patton, Windermere Real Estate JS
Buyer's broker
James McPherson, John L. Scott, Inc.
Contact our
Snohomish
Real Estate Lead
Buck Real Estate
Phone...
Time Adjusted Estimated Value
Assumptions: The original sale amount reflected a normal arms length sale. Any major updates would add to the value. Any damage or deferred maintenance would subtract from the value.
Bedroom & Bathroom Layout
SECOND
BDRM
BDRM
BDRM
BDRM
FULL
BATH
FULL
BATH
MAIN
½
BATH
LOWER
FULL
BATH
Property History
Feb 19, 2024
Sold
$1,300,000
NWMLS #2184457 Annualized 12.1% / yr
Jan 26, 2024
Went Pending
$1,349,950
Jan 18, 2024
Went Pending Inspection
$1,349,950
Dec 08, 2023
Listed
$1,349,950
Apr 01, 2020
Sold
$835,000
NWMLS #1567122
More
Listing Details
  • Sale Price
    $835,000
  • Closing Date
    April 2, 2020
  • Last List Price
    $835,000
  • Original Price
    $840,000
  • List Date
    February 22, 2020
  • Pending Date
    March 5, 2020
  • Days to go Pending
    12 days
  • $/sqft (Total)
    $212/sqft
  • $/sqft (Finished)
    $212/sqft
  • Listing Source
  • MLS Number
    1567122
  • Listing Broker
    Aimee Patton
  • Listing Office
    Windermere Real Estate JS
  • Buyer's Broker
    James McPherson
  • Buyer Broker's Firm
    John L. Scott, Inc.
Monthly Payment Estimate
  • Principal and Interest
    $4,377 / month
  • HOA
    $33 / month
  • Property Taxes
    $128 / month
  • Homeowners Insurance
    $166 / month
  • TOTAL
    $4,704 / month

  • based on 20% down
    ($167,000)
  • and a
    6.85% Interest Rate
  • About:
    All calculations are estimates only and provided by Mainview LLC. Actual amounts will vary.
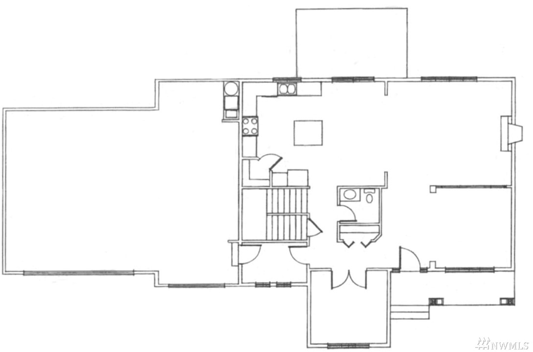
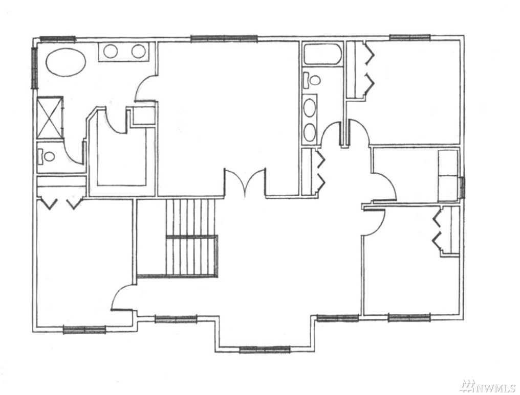
House Details
  • Sqft (Total)
    3,938 sqft
  • Sqft (Finished)
    3,938 sqft
  • Sqft (Unfinished)
    None
  • Property Type
    House
  • Sub Type
    2 Stories + Basement
  • Bedrooms
    4 Bedrooms
  • Bathrooms
    3.5 Bathrooms
  • Lot
    33,171 sqft Lot
  • Lot Size Source
    County Records
  • Lot #
    Unspecified
  • Project
    Ceadr Haven
  • Total Stories
    3 stories
  • Basement
    Finished
  • Sqft Source
    County Records
Property Tax Info
  • 2019 Property Taxes
    $1,539 / year
  • No Senior Exemption
Public Parcel Data & Maps
Schools
  • School District
    Monroe
  • Elementary
    Salem Woods Elem
  • Middle
    Park Place Middle Sc
  • High School
    Monroe High
HOA
  • HOA Dues
    $33 / month
  • Fees Assessed
    Monthly
  • HOA Dues Include
    Unspecified
  • HOA Contact
    Unspecified
  • Management Contact
    Unspecified
Community Features
  • Community Features
    CCRs
    Community Waterfront/Pvt Beach
Parking
  • Covered
    3-Car
  • Has Garage
    Yes
  • Nbr of Assigned Spaces
    3
Views
  • Territorial
Construction
  • Year Built
    2019
  • Home Builder
    Unspecified
HVAC
  • Includes
    Central A/C
    Forced Air
    Heat Pump
    Wall
Cooling
Heating
Interior
  • Flooring
    Ceramic Tile
    Hardwood
    Carpet
Property
  • Lot Features
    Cul-De-Sac
    Dead End Street
  • Site Features
    Cable TV
    Deck
    Fenced-Fully
    Gated Entry
    High Speed Internet
    Hot Tub/Spa
    Patio
    Propane
Appliances
  • Included
    Dishwasher
    Microwave
    Range/Oven
Terms
  • Bank Owned (REO)
    No
Utilities
  • Sewer
    Septic Tank
Additional Info
  • Waterfront
    No
  • Air Conditioning (A/C)
    Yes
  • Buyer Broker's Compensation
    Unspecified
  • MLS Area #
    Area 750
  • Number of Photos
    34
  • Last Modification Time
    Sunday, March 28, 2021 12:52 AM
  • System Listing ID
    1964232
Update Info
Listing details based on information submitted to the MLS GRID as of Sunday, March 28, 2021 12:52 AM. All data is obtained from various sources and may not have been verified by broker or MLS GRID. Supplied Open House Information is subject to change without notice. All information should be independently reviewed and verified for accuracy. Properties may or may not be listed by the office/agent presenting the information.
View
Sort

Sharing

 
Sold April 2, 2020
$835,000  
4 BR    3.5 BA    3,938 SQFT  
NWMLS #1567122. Aimee Patton, Windermere Real Estate JS
Map
 
Listing information is provided by the listing agent except as follows: BuilderB indicates that our system has grouped this listing under a home builder name that doesn't match the name provided by the listing broker. DevelopmentD indicates that our system has grouped this listing under a development name that doesn't match the name provided by the listing broker.