to
Reset
Houses
Townhouses
Condos
Land
Price
to
SQFT
to
Bdrms
to
Baths
to
Lot
to
Yr Built
to
Sold
Listed within...
Listed at least...
Offer Review
New Construction
Waterfront
Short-Sales
REO
Parking
to
Unit Flr
to
Unit Nbr
Listings
Neighborhoods
Complexes
Developments
Cities
Counties
Zip Codes
Neighborhood · Condo · Development
School District
Zip Code
City
County
Builder
Listing Numbers
Broker LAG
Boundary Lines
Labels
View
Sort
Sold Closed February 18, 2021
$283,000
2 Bedrooms
1 Bathroom
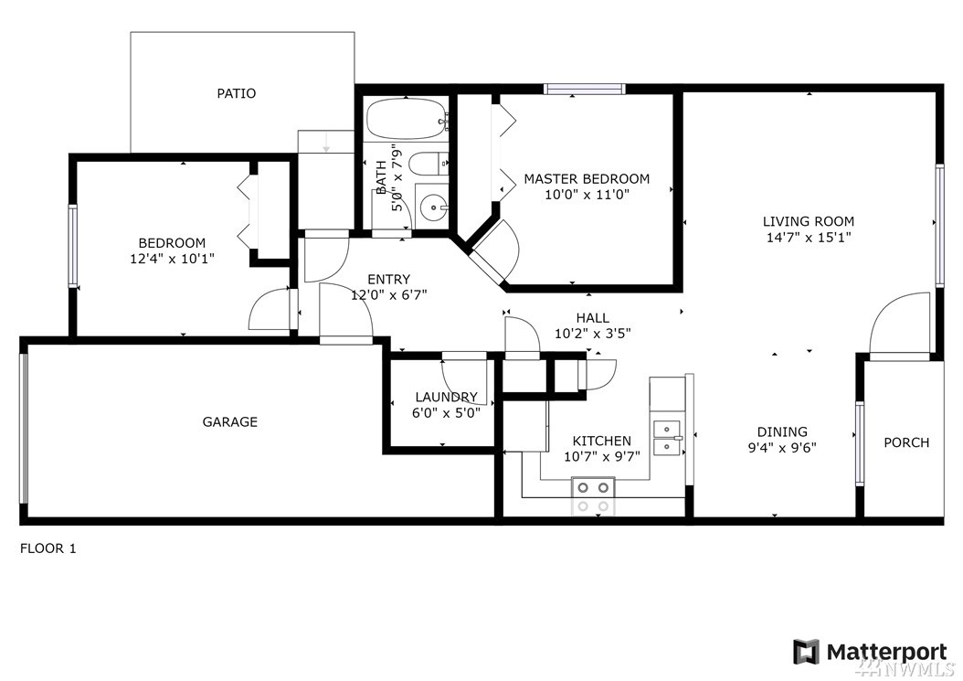
907 Sqft Townhome
Built 2007
2,250 Sqft Lot
1-Car Garage
HOA Dues $43 / month
SALE HISTORY
List price was $264,999
It took 5 days to go pending.
Then 30 days to close at $283,000
Closed at $312/SQFT.
Cozy 2 bdr 1 bath, 1 story home in Horizon Pointe. This home features an open concept floor plan, living room with vaulted ceilings, kitchen with pantry, and dining room. The Primary bedroom is spacious with vaulted ceilings. The yard is fully fenced with a nice patio seating area. 1 car garage. Don't miss the community parks for your outdoor adventures. Make your appointment today!
Offer Review Date
This listing's offer review date was Tuesday, January 19, 2021.
Listing source NWMLS MLS #
1711807
Listed by
Nicole Larson, Redfin Corp.
Buyer's broker
Alejandra Calderon, Keller Williams Greater Sea
We don't currently have a buyer representative in this area. To be sure that you're getting objective advice, we always suggest buyers work with their own agent, someone who is not affiliated with the seller.
Time Adjusted Estimated Value
Assumptions: The original sale amount reflected a normal arms length sale. Any major updates would add to the value. Any damage or deferred maintenance would subtract from the value.
Bedroom & Bathroom Layout
MAIN
BDRM
BDRM
FULL
BATH
Property History
Jan 08, 2026
Price Reduction arrow_downward
$369,900
Oct 22, 2025
Listed
$374,500
Feb 17, 2021
Sold
$283,000
NWMLS #1711807
More
Listing Details
  • Sale Price
    $283,000
  • Closing Date
    February 18, 2021
  • Last List Price
    $264,999
  • Original Price
    Same
  • List Date
    January 14, 2021
  • Pending Date
    January 19, 2021
  • Days to go Pending
    5 days
  • $/sqft (Total)
    $312/sqft
  • $/sqft (Finished)
    $312/sqft
  • Listing Source
  • MLS Number
    1711807
  • Listing Broker
    Nicole Larson
  • Listing Office
    Redfin Corp.
  • Buyer's Broker
    Alejandra Calderon
  • Buyer Broker's Firm
    Keller Williams Greater Sea
Monthly Payment Estimate
  • Principal and Interest
    $1,484 / month
  • HOA
    $43 / month
  • Property Taxes
    $175 / month
  • Homeowners Insurance
    $77 / month
  • TOTAL
    $1,779 / month

  • based on 20% down
    ($56,600)
  • and a
    6.85% Interest Rate
  • About:
    All calculations are estimates only and provided by Mainview LLC. Actual amounts will vary.
Townhouse Details
  • Unit Floor
    Unspecified
  • Sqft (Total)
    907 sqft
  • Sqft (Finished)
    907 sqft
  • Sqft (Unfinished)
    None
  • Property Type
    Townhome
  • Sub Type
    Townhouse
  • Bedrooms
    2 Bedrooms
  • Bathrooms
    1 Bathroom
  • Lot
    2,250 sqft Lot
  • Lot Size Source
    Realist- Buyer to Verify
  • Lot #
    Unspecified
  • Project
    Unspecified
  • Total Stories
    Unspecified
  • Basement
    None
  • Sqft Source
    Realist- Buyer to Verify
Property Tax Info
  • 2020 Property Taxes
    $2,094 / year
  • No Senior Exemption
Public Parcel Data & Maps
Schools
  • School District
    North Thurston
  • Elementary
    Buyer To Verify
  • Middle
    Buyer To Verify
  • High School
    Buyer To Verify
HOA
  • HOA Dues
    $43 / month
  • Fees Assessed
    Monthly
  • HOA Dues Include
    Unspecified
  • HOA Contact
    Unspecified
  • Management Contact
    Unspecified
Building
  • Name
    Unspecified
  • Units in Complex
    Unspecified
  • Units in Building
    Unspecified
  • Stories in Building
    Unspecified
Parking
  • Covered
    1-Car
  • Has Garage
    Yes
  • Nbr of Assigned Spaces
    1
Construction
  • Year Built
    2007
  • Home Builder
    Unspecified
HVAC
  • Includes
    Wall
Cooling
Heating
Interior
  • Flooring
    Laminate
    Carpet
Property
  • Lot Features
    Paved
  • Site Features
    Cable TV
    Fenced-Fully
    Patio
Appliances
  • Included
    Dishwasher
    Disposal
    Microwave
    Range/Oven
    Refrigerator
Terms
  • Bank Owned (REO)
    No
Utilities
  • Sewer
    Sewer Connected
Additional Info
  • Waterfront
    No
  • Air Conditioning (A/C)
    No
  • Buyer Broker's Compensation
    Unspecified
  • MLS Area #
    Area 450
  • Number of Photos
    19
  • Last Modification Time
    Saturday, March 27, 2021 10:34 AM
  • System Listing ID
    2110975
Update Info
Listing details based on information submitted to the MLS GRID as of Saturday, March 27, 2021 10:34 AM. All data is obtained from various sources and may not have been verified by broker or MLS GRID. Supplied Open House Information is subject to change without notice. All information should be independently reviewed and verified for accuracy. Properties may or may not be listed by the office/agent presenting the information.
View
Sort

Sharing

 
Sold February 18, 2021
$283,000   $264,999
2 BR    1 BA    907 SQFT  
NWMLS #1711807. Nicole Larson, Redfin Corp.
Map
 
Listing information is provided by the listing agent except as follows: BuilderB indicates that our system has grouped this listing under a home builder name that doesn't match the name provided by the listing broker. DevelopmentD indicates that our system has grouped this listing under a development name that doesn't match the name provided by the listing broker.