to
Reset
Houses
Townhouses
Condos
Land
Price
to
SQFT
to
Bdrms
to
Baths
to
Lot
to
Yr Built
to
Sold
Listed within...
Listed at least...
Offer Review
New Construction
Waterfront
Short-Sales
REO
Parking
to
Unit Flr
to
Unit Nbr
Listings
Neighborhoods
Complexes
Developments
Cities
Counties
Zip Codes
Neighborhood · Condo · Development
School District
Zip Code
City
County
Builder
Listing Numbers
Broker LAG
Boundary Lines
Labels
View
Sort
Sold Closed June 11, 2021
$530,000
3 Bedrooms
2.5 Bathrooms
1,100 Sqft Townhome
Unit A
Built 2008
750 Sqft Lot
No Garage
SALE HISTORY
List price was $525,000
It took 15 days to go pending.
Then 20 days to close at $530,000
Closed at $482/SQFT.
Impeccably maintained, bright and quiet townhouse set back from the street. Open layout features kitchen, dining, and living space with cozy fireplace. New refrigerator, dishwasher, top-down/bottom-up blinds, carpet, and stone pavers to finish a backyard space so rare for a townhouse. Parking spot included. Close to Delridge Playfield, tennis courts, walking trails, brewery, coffee, pizza, and pho. New RapidRide H Line coming soon to connect Delridge to Downtown! Inspection report available upon request.
Offer Review
No offer review date was specified
Listing source NWMLS MLS #
1768372
Listed by
Christian Cerone, Redfin Corp.
Buyer's broker
Rachelle Garon, Mosaic Realty
Contact our
Delridge
Real Estate Lead
John L. Scott
Phone...
Time Adjusted Estimated Value
County Wide
  • In
    King County WA
  • prices for
    Townhomes
  • have changed
    10%
  • since
    Jun 11, 2021
  • so a sale price of
    $530,000
  • would be approximately this amount today
    $583,000
City Wide
  • In
    Seattle WA
  • prices for
    Townhomes
  • have changed
    0%
  • since
    Jun 11, 2021
  • so a sale price of
    $530,000
  • would be approximately this amount today
    $530,000
Assumptions: The original sale amount reflected a normal arms length sale. Any major updates would add to the value. Any damage or deferred maintenance would subtract from the value.
Bedroom & Bathroom Layout
SECOND
BDRM
BDRM
FULL
BATH
MAIN
½
BATH
LOWER
BDRM
FULL
BATH
Property History
Mar 30, 2026
Went Pending
$530,000
Mar 20, 2026
Went Pending Inspection
$530,000
Mar 05, 2026
Listed
$530,000
Jun 10, 2021
Sold
$530,000
NWMLS #1768372 Annualized 1.4% / yr
Jan 30, 2018
Sold
$505,000
NWMLS #1232975 Annualized 17.1% / yr
Jun 24, 2014
Sold
$286,000
More
Listing Details
  • Sale Price
    $530,000
  • Closing Date
    June 11, 2021
  • Last List Price
    $525,000
  • Original Price
    Same
  • List Date
    May 7, 2021
  • Pending Date
    May 22, 2021
  • Days to go Pending
    15 days
  • $/sqft (Total)
    $482/sqft
  • $/sqft (Finished)
    $482/sqft
  • Listing Source
  • MLS Number
    1768372
  • Listing Broker
    Christian Cerone
  • Listing Office
    Redfin Corp.
  • Buyer's Broker
    Rachelle Garon
  • Buyer Broker's Firm
    Mosaic Realty
Monthly Payment Estimate
  • Principal and Interest
    $2,778 / month
  • Property Taxes
    $331 / month
  • Homeowners Insurance
    $110 / month
  • TOTAL
    $3,219 / month

  • based on 20% down
    ($106,000)
  • and a
    6.85% Interest Rate
  • About:
    All calculations are estimates only and provided by Mainview LLC. Actual amounts will vary.
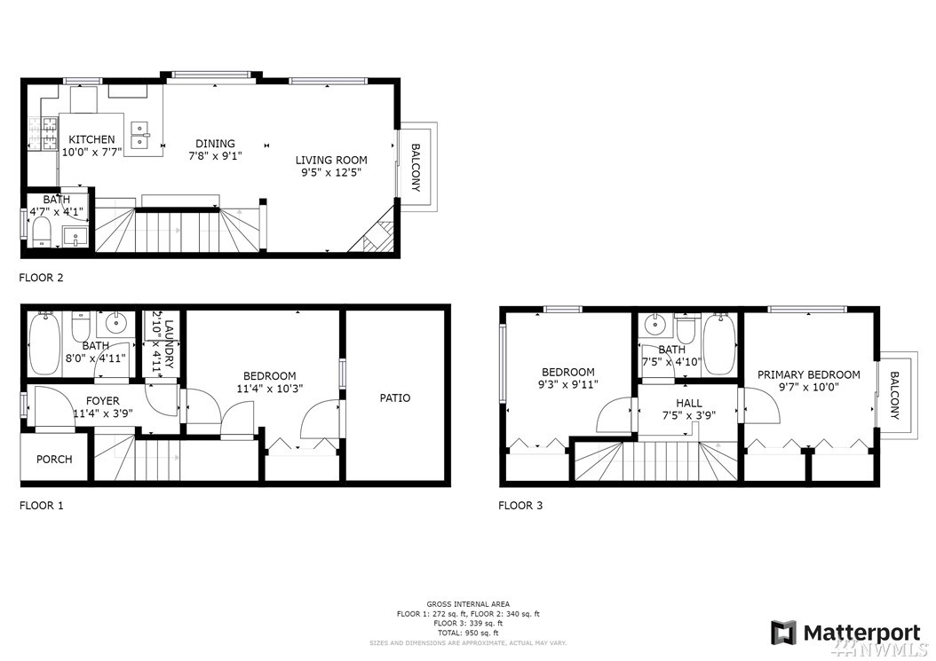
Townhouse Details
  • Unit #
    A
  • Unit Floor
    Unspecified
  • Sqft (Total)
    1,100 sqft
  • Sqft (Finished)
    1,100 sqft
  • Sqft (Unfinished)
    None
  • Property Type
    Townhome
  • Sub Type
    Townhouse
  • Bedrooms
    3 Bedrooms
  • Bathrooms
    2.5 Bathrooms
  • Lot
    750 sqft Lot
  • Lot Size Source
    Realist- Buyer to Verify
  • Lot #
    Unspecified
  • Project
    Cottage Grove
  • Total Stories
    Unspecified
  • Sqft Source
    Realist- Buyer to Verify
Property Tax Info
  • 2020 Property Taxes
    $3,975 / year
  • No Senior Exemption
Public Parcel Data & Maps
Schools
  • School District
    Seattle
  • Elementary
    Buyer To Verify
  • Middle
    Buyer To Verify
  • High School
    Buyer To Verify
HOA
  • HOA Dues
    Unspecified
  • Fees Assessed
    Unspecified
  • HOA Dues Include
    Unspecified
  • HOA Contact
    Unspecified
  • Management Contact
    Unspecified
Building
  • Name
    Cottage Grove
  • Units in Complex
    Unspecified
  • Units in Building
    Unspecified
  • Stories in Building
    Unspecified
Parking
  • Covered
    Unspecified
  • Has Garage
    No
Views
  • Territorial
Construction
  • Year Built
    2008
  • Home Builder
    Unspecified
HVAC
  • Includes
    Wall
Cooling
Heating
Interior
  • Flooring
    Bamboo/Cork
    Ceramic Tile
    Hardwood
    Slate
    Carpet
Property
  • Lot Features
    Alley
    Paved
    Sidewalk
  • Site Features
    Cable TV
    Fenced-Fully
    Fenced-Partially
    Gas Available
    High Speed Internet
    Patio
Appliances
  • Included
    Dishwasher
    Dryer
    Disposal
    Microwave
    Range/Oven
    Refrigerator
    Washer
Terms
  • Bank Owned (REO)
    No
Utilities
  • Sewer
    Sewer Connected
Additional Info
  • Waterfront
    No
  • Air Conditioning (A/C)
    No
  • Buyer Broker's Compensation
    Unspecified
  • MLS Area #
    Area 140
  • Number of Photos
    22
  • Last Modification Time
    Friday, June 11, 2021 6:10 PM
  • System Listing ID
    2164955
Update Info
Listing details based on information submitted to the MLS GRID as of Friday, June 11, 2021 6:10 PM. All data is obtained from various sources and may not have been verified by broker or MLS GRID. Supplied Open House Information is subject to change without notice. All information should be independently reviewed and verified for accuracy. Properties may or may not be listed by the office/agent presenting the information.
View
Sort

Sharing

 
Sold June 11, 2021
$530,000   $525,000
3 BR    2.5 BA    1,100 SQFT  
NWMLS #1768372. Christian Cerone, Redfin Corp.
Map
 
Listing information is provided by the listing agent except as follows: BuilderB indicates that our system has grouped this listing under a home builder name that doesn't match the name provided by the listing broker. DevelopmentD indicates that our system has grouped this listing under a development name that doesn't match the name provided by the listing broker.