to
Reset
Houses
Townhouses
Condos
Land
Price
to
SQFT
to
Bdrms
to
Baths
to
Lot
to
Yr Built
to
Sold
Listed within...
Listed at least...
Offer Review
New Construction
Waterfront
Short-Sales
REO
Parking
to
Unit Flr
to
Unit Nbr
Listings
Neighborhoods
Complexes
Developments
Cities
Counties
Zip Codes
Neighborhood · Condo · Development
School District
Zip Code
City
County
Builder
Listing Numbers
Broker LAG
Boundary Lines
Labels
View
Sort
Sold Closed June 27, 2022
$800,000
5 Bedrooms
2.75 Bathrooms
2,622 Sqft House
New Construction
Built 2022
5,965 Sqft Lot
2-Car Garage
SALE HISTORY
List price was $819,990
It took 26 days to go pending.
Then 26 days to close at $800,000
Closed at $305/SQFT.
Located in the vibrant city of Marysville, THE SIENNA PLAN at Hidden Meadows is a 2622 sqft stunning home with 5 bedrooms with 2.75 bathrooms. Standard features include elegant quartz countertops, gorgeous engineered hardwood flooring, luxurious vinyl plank, stylish pendant lighting, cozy gas fireplace with sleek contemporary surround, efficient heat pump for heating and cooling. With great access to transportation and lush city parks, Hidden Meadows offers residents the ideal place to call home. WOW NEW CONSTRUCTION WITH NO HOA!!! New home warranty, energy efficient, lower maintenance, updated safety & modern lifestyle design elements. Hidden Meadows will have 2 different exteriors for the 2622. *Finishes will vary from photos*
Offer Review
No offer review date was specified
Project
HIDDEN MEADOWS
Listing source NWMLS MLS #
1929214
Listed by
Ebrima Wadda, Windermere Real Estate M2 LLC
Buyer's broker
Royal Omolade, Real Experts Realty
Contact our
Marysville
Real Estate Lead
Buck Real Estate
Phone...
Time Adjusted Estimated Value
Assumptions: The original sale amount reflected a normal arms length sale. Any major updates would add to the value. Any damage or deferred maintenance would subtract from the value.
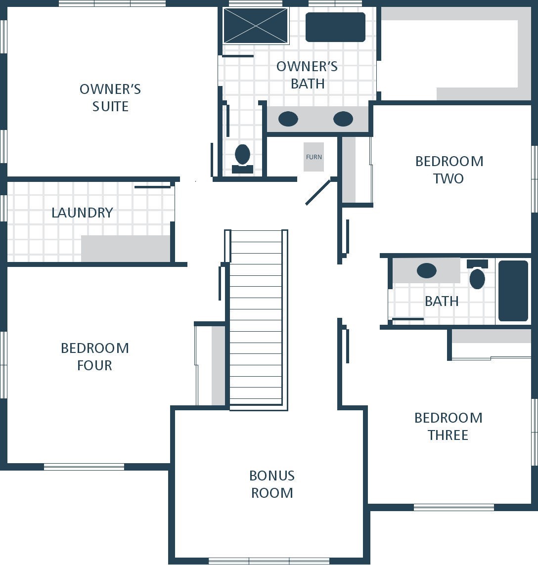
Bedroom & Bathroom Layout
SECOND
BDRM
BDRM
BDRM
BDRM
FULL
BATH
FULL
BATH
MAIN
BDRM
¾
BATH
Property History
Jun 26, 2022
Sold
$800,000
NWMLS #1929214
May 05, 2022
Listed
$819,990
NWMLS #1929214
More
Listing Details
  • Sale Price
    $800,000
  • Closing Date
    June 27, 2022
  • Last List Price
    $819,990
  • Original Price
    Same
  • List Date
    May 6, 2022
  • Pending Date
    June 1, 2022
  • Days to go Pending
    26 days
  • $/sqft (Total)
    $305/sqft
  • $/sqft (Finished)
    $305/sqft
  • Listing Source
  • MLS Number
    1929214
  • Listing Broker
    Ebrima Wadda
  • Listing Office
    Windermere Real Estate M2 LLC
  • Buyer's Broker
    Royal Omolade
  • Buyer Broker's Firm
    Real Experts Realty
Monthly Payment Estimate
  • Principal and Interest
    $4,194 / month
  • Property Taxes
    $67 / month
  • Homeowners Insurance
    $159 / month
  • TOTAL
    $4,420 / month

  • based on 20% down
    ($160,000)
  • and a
    6.85% Interest Rate
  • About:
    All calculations are estimates only and provided by Mainview LLC. Actual amounts will vary.
House Details
  • Sqft (Total)
    2,622 sqft
  • Sqft (Finished)
    2,622 sqft
  • Sqft (Unfinished)
    None
  • Property Type
    House
  • Sub Type
    2 Story
  • Bedrooms
    5 Bedrooms
  • Bathrooms
    2.75 Bathrooms
  • Lot
    5,965 sqft Lot
  • Lot Size Source
    builder
  • Lot #
    13
  • Project
    HIDDEN MEADOWS
  • Total Stories
    2 stories
  • Basement
    None
  • Sqft Source
    BUILDER
Property Tax Info
  • 2021 Property Taxes
    $806 / year
  • No Senior Exemption
Public Parcel Data & Maps
Schools
  • School District
    Marysville
  • Elementary
    Shoultes Elem
  • Middle
    Cedarcrest Sch
  • High School
    Buyer To Verify
HOA
  • HOA Dues
    Unspecified
  • Fees Assessed
    Unspecified
  • HOA Dues Include
    Unspecified
  • HOA Contact
    Unspecified
  • Management Contact
    Unspecified
Parking
  • Covered
    2-Car
  • Types
    Attached Garage
  • Has Garage
    Yes
  • Nbr of Assigned Spaces
    2
Views
  • Territorial
Construction
  • Year Built
    2022
  • New Construction
    Yes
  • Construction State
    Unspecified
  • Home Builder
    Unspecified
HVAC
  • Includes
    Heat Pump
Cooling
Heating
Interior
  • Flooring
    Engineered Hardwood
    Vinyl Plank
    Carpet
  • Features
    Heat Pump
    Wall to Wall Carpet
    Bath Off Primary
    Double Pane/Storm Window
    Dining Room
    High Tech Cabling
    Loft
    Vaulted Ceiling(s)
    Walk-In Pantry
    Walk-In Closet(s)
Property
  • Lot Features
    Curbs
    Paved
    Sidewalk
  • Site Features
    Cable TV
    Gas Available
    Patio
Appliances
  • Included
    Dishwasher
    Disposal
    Microwave
    Stove/Range
Terms
  • Bank Owned (REO)
    No
Utilities
  • Energy
    Electric
    Natural Gas
  • Sewer
    Sewer Connected
  • Water Source
    Public
Additional Info
  • Waterfront
    No
  • Air Conditioning (A/C)
    Yes
  • Buyer Broker's Compensation
    Unspecified
  • MLS Area #
    Area 770
  • Number of Photos
    3
  • Last Modification Time
    Wednesday, June 29, 2022 4:45 PM
  • System Listing ID
    5078071
Update Info
Listing details based on information submitted to the MLS GRID as of Wednesday, June 29, 2022 4:45 PM. All data is obtained from various sources and may not have been verified by broker or MLS GRID. Supplied Open House Information is subject to change without notice. All information should be independently reviewed and verified for accuracy. Properties may or may not be listed by the office/agent presenting the information.
View
Sort

Sharing

 
Sold June 27, 2022
$800,000   $819,990
5 BR    2.75 BA    2,622 SQFT  
NWMLS #1929214. Ebrima Wadda, Windermere Real Estate M2 LLC
Map
 
Listing information is provided by the listing agent except as follows: BuilderB indicates that our system has grouped this listing under a home builder name that doesn't match the name provided by the listing broker. DevelopmentD indicates that our system has grouped this listing under a development name that doesn't match the name provided by the listing broker.