to
Reset
Houses
Townhouses
Condos
Land
Price
to
SQFT
to
Bdrms
to
Baths
to
Lot
to
Yr Built
to
Sold
Listed within...
Listed at least...
Offer Review
New Construction
Waterfront
Short-Sales
REO
Parking
to
Unit Flr
to
Unit Nbr
Listings
Neighborhoods
Complexes
Developments
Cities
Counties
Zip Codes
Neighborhood · Condo · Development
School District
Zip Code
City
County
Builder
Listing Numbers
Broker LAG
Boundary Lines
Labels
View
Sort
Sold Closed February 21, 2023
$634,990
4 Bedrooms
2.5 Bathrooms
2,211 Sqft House
New Construction
Built 2022
3,612 Sqft Lot
2-Car Garage
HOA Dues $42 / month
SALE HISTORY
List price was $634,990
It took 7 days to go pending.
Then 117 days to close at $634,990
Closed at $287/SQFT.
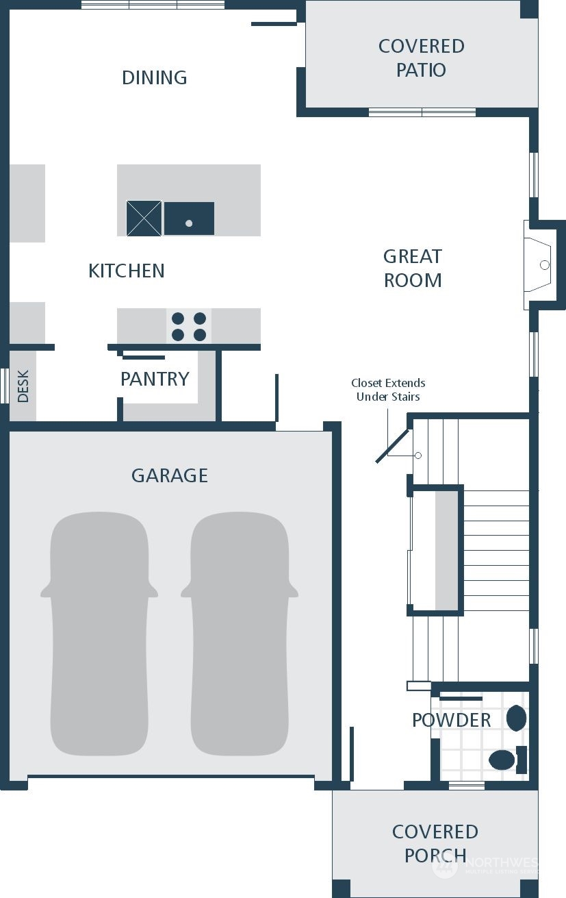
THE DYLAN PLAN at Bella Cresta features a thoughtfully designed 2211 SQFT layout. This 4 bedroom home with 2.5 bathrooms and loft offers plenty of space for your growing family. The large covered patio extends living outdoors; while the convenient built in desk helps keep you organized. Standard features include quartz countertops, AC/Heat pumps, SS appliances, elegant engineered hardwood, luxurious vinyl plank flooring, and lounge tub in owner's suite. Explore your possibilities today! Enjoy the benefits of NEW! New home warranty, energy efficient, low maintenance, updated safety, and modern lifestyle design elements.
Offer Review
No offer review date was specified
Project
BELLA CRESTA
Listing source NWMLS MLS #
2009711
Listed by
Ebrima Wadda, Windermere Real Estate M2 LLC
Buyer's broker
Dustin Comey, RE/MAX Town Center
Contact our
Marysville
Real Estate Lead
Buck Real Estate
Phone...
Time Adjusted Estimated Value
Assumptions: The original sale amount reflected a normal arms length sale. Any major updates would add to the value. Any damage or deferred maintenance would subtract from the value.
Bedroom & Bathroom Layout
SECOND
BDRM
BDRM
BDRM
BDRM
FULL
BATH
FULL
BATH
MAIN
½
BATH
Property History
Dec 06, 2025
Went Pending Inspection
$689,000
Nov 12, 2025
Price Reduction arrow_downward
$689,000
Sep 17, 2025
Price Reduction arrow_downward
$699,000
Aug 12, 2025
Listed
$719,990
Feb 22, 2023
Sold
$634,990
NWMLS #2009711
Oct 19, 2022
Listed
$634,990
NWMLS #2009711
More
Listing Details
  • Sale Price
    $634,990
  • Closing Date
    February 21, 2023
  • Last List Price
    $634,990
  • Original Price
    Same
  • List Date
    October 20, 2022
  • Pending Date
    October 27, 2022
  • Days to go Pending
    7 days
  • $/sqft (Total)
    $287/sqft
  • $/sqft (Finished)
    $287/sqft
  • Listing Source
  • MLS Number
    2009711
  • Listing Broker
    Ebrima Wadda
  • Listing Office
    Windermere Real Estate M2 LLC
  • Buyer's Broker
    Dustin Comey
  • Buyer Broker's Firm
    RE/MAX Town Center
Monthly Payment Estimate
  • Principal and Interest
    $3,329 / month
  • HOA
    $42 / month
  • Property Taxes
    / month
  • Homeowners Insurance
    $129 / month
  • TOTAL
    $3,500 / month

  • based on 20% down
    ($126,998)
  • and a
    6.85% Interest Rate
  • About:
    All calculations are estimates only and provided by Mainview LLC. Actual amounts will vary.
House Details
  • Sqft (Total)
    2,211 sqft
  • Sqft (Finished)
    2,211 sqft
  • Sqft (Unfinished)
    None
  • Property Type
    House
  • Sub Type
    2 Story
  • Bedrooms
    4 Bedrooms
  • Bathrooms
    2.5 Bathrooms
  • Lot
    3,612 sqft Lot
  • Lot Size Source
    Builder
  • Lot #
    52
  • Project
    BELLA CRESTA
  • Total Stories
    2 stories
  • Basement
    None
  • Sqft Source
    builder
Property Tax Info
  • Property Taxes
    Unspecified
  • No Senior Exemption
Public Parcel Data & Maps
Schools
  • School District
    Marysville
  • Elementary
    Allen Creek Elem
  • Middle
    Cedarcrest Sch
  • High School
    Marysville Getchell High
HOA
  • HOA Dues
    $42 / month
  • Fees Assessed
    Monthly
  • HOA Dues Include
    Unspecified
  • HOA Contact
    Unspecified
  • Management Contact
    Unspecified
Community Features
  • Community Features
    CCRs
Parking
  • Covered
    2-Car
  • Types
    Attached Garage
  • Has Garage
    Yes
  • Nbr of Assigned Spaces
    2
Views
  • Territorial
Construction
  • Year Built
    2022
  • New Construction
    Yes
  • Construction State
    Unspecified
  • Home Builder
    Cornerstone Homes
Cooling
Heating
Interior
  • Flooring
    Hardwood
    Vinyl
    Carpet
  • Features
    Central A/C
    Heat Pump
    Hardwood
    Wall to Wall Carpet
    Bath Off Primary
    Double Pane/Storm Window
    Dining Room
    High Tech Cabling
    Loft
    Walk-In Closet(s)
    Walk-In Pantry
    Water Heater
Property
  • Lot Features
    Curbs
    Paved
    Sidewalk
  • Site Features
    Cable TV
    Gas Available
    High Speed Internet
    Patio
Appliances
  • Included
    Dishwasher
    Disposal
    Microwave
    Stove/Range
Terms
  • Bank Owned (REO)
    No
Utilities
  • Energy
    Electric
    Natural Gas
  • Sewer
    Sewer Connected
  • Water Source
    Public
Additional Info
  • Waterfront
    No
  • Air Conditioning (A/C)
    Yes
  • Buyer Broker's Compensation
    Unspecified
  • MLS Area #
    Area 770
  • Number of Photos
    6
  • Last Modification Time
    Wednesday, February 22, 2023 8:45 AM
  • System Listing ID
    5172648
Update Info
  • First For Sale
    2022-10-20 05:00:00
Listing details based on information submitted to the MLS GRID as of Wednesday, February 22, 2023 8:45 AM. All data is obtained from various sources and may not have been verified by broker or MLS GRID. Supplied Open House Information is subject to change without notice. All information should be independently reviewed and verified for accuracy. Properties may or may not be listed by the office/agent presenting the information.
View
Sort

Sharing

 
Sold February 21, 2023
$634,990  
4 BR    2.5 BA    2,211 SQFT  
NWMLS #2009711. Ebrima Wadda, Windermere Real Estate M2 LLC
Map
 
Listing information is provided by the listing agent except as follows: BuilderB indicates that our system has grouped this listing under a home builder name that doesn't match the name provided by the listing broker. DevelopmentD indicates that our system has grouped this listing under a development name that doesn't match the name provided by the listing broker.