to
Reset
Houses
Townhouses
Condos
Land
Price
to
SQFT
to
Bdrms
to
Baths
to
Lot
to
Yr Built
to
Sold
Listed within...
Listed at least...
Offer Review
New Construction
Waterfront
Short-Sales
REO
Parking
to
Unit Flr
to
Unit Nbr
Listings
Neighborhoods
Complexes
Developments
Cities
Counties
Zip Codes
Neighborhood · Condo · Development
School District
Zip Code
City
County
Builder
Listing Numbers
Broker LAG
Boundary Lines
Labels
View
Sort
Sold Closed June 30, 2023
$523,000
Originally $649,999
2 Bedrooms
1.75 Bathrooms
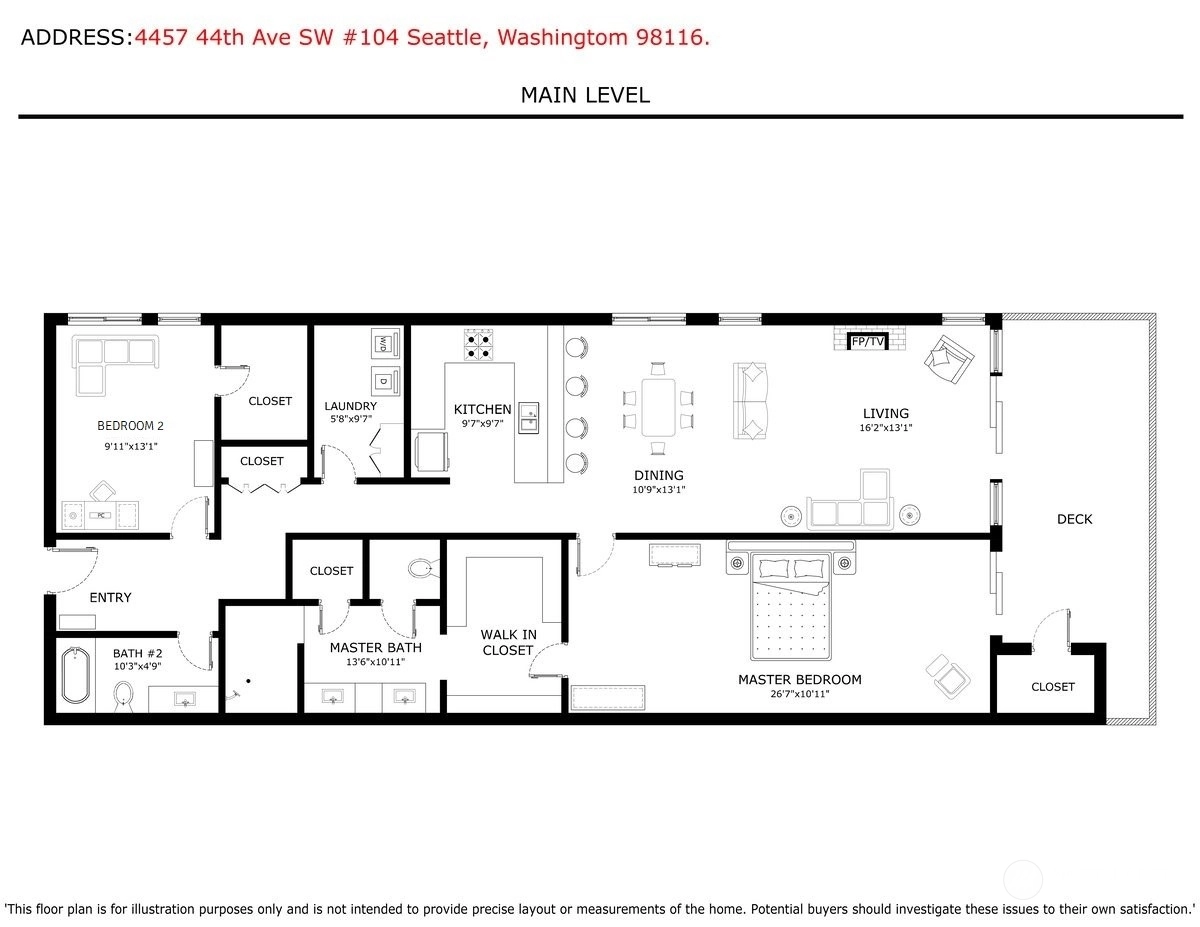
1,343 Sqft Condo
Unit 104
Floor 1
Built 1993
2 Parking Spaces
HOA Dues $712 / month
SALE HISTORY
List price was $649,999
The price was later changed to $574,900.
It took 81 days to go pending.
Then 21 days to close at $523,000
Closed at $389/SQFT.
Beautifully remodeled west facing end unit just steps from W Seattle’s Alaska Junction. This light-filled spacious 1343sqft 2 bedroom 1.75 bath was recently updated w/new kitchen cabinets, quartz countertops, subway tiles, stainless steel appliances & tile floors. Master bath w/double vanity marble tops, tile flooring, stunning floor-to-ceiling tile surround walk-in shower w/separate commode. Main bath w/new vanity, flooring & fixtures. Tasteful designer paint colors, light fixtures & hardware. Generous viewing deck w/storage. Separate laundry rm w/full size washer/dryer. NG fireplace, built-in AC unit. Secure garage w/2 spaces and storage unit,. Elevator & lobby. HOA dues Incl: Sewer/water/gas/garbage.
Offer Review
No offer review date was specified
Project
Marine Vista Condominiums
Listing source NWMLS MLS #
2046456
Listed by
Monica Hilliard, MH Real Estate
Buyer's broker
Matthew W. Skeel, Windermere Real Estate/FN
Contact our
West Seattle
Real Estate Lead
John L. Scott
Phone...
Time Adjusted Estimated Value
County Wide
  • In
    King County WA
  • prices for
    Condos
  • have changed
    -9%
  • since
    Jun 30, 2023
  • so a sale price of
    $523,000
  • would be approximately this amount today
    $475,930
City Wide
  • In
    Seattle WA
  • prices for
    Condos
  • have changed
    -7%
  • since
    Jun 30, 2023
  • so a sale price of
    $523,000
  • would be approximately this amount today
    $486,390
Assumptions: The original sale amount reflected a normal arms length sale. Any major updates would add to the value. Any damage or deferred maintenance would subtract from the value.
Bedroom & Bathroom Layout
MAIN
BDRM
BDRM
FULL
BATH
¾
BATH
Property History
Jun 30, 2023
Sold
$523,000
NWMLS #2046456 Annualized 3% / yr
Jun 09, 2023
Went Pending
$574,900
NWMLS #2046456
Jun 08, 2023
Back on Market
$574,900
NWMLS #2046456
May 22, 2023
Went Pending
$574,900
NWMLS #2046456
May 08, 2023
Price Reduction arrow_downward
$574,900
NWMLS #2046456
Apr 25, 2023
Price Reduction arrow_downward
$599,900
NWMLS #2046456
Apr 10, 2023
Price Reduction arrow_downward
$624,900
NWMLS #2046456
Apr 01, 2023
Price Reduction arrow_downward
$634,900
NWMLS #2046456
Mar 20, 2023
Listed
$649,999
NWMLS #2046456
Sep 13, 2015
Sold
$415,000
NWMLS #818686 Annualized 2.8% / yr
Feb 20, 2006
Sold
$320,000
More
Listing Details
  • Sale Price
    $523,000
  • Closing Date
    June 30, 2023
  • Last List Price
    $574,900
  • Original Price
    $649,999
  • List Date
    March 20, 2023
  • Pending Date
    June 9, 2023
  • Days to go Pending
    81 days
  • $/sqft (Total)
    $389/sqft
  • $/sqft (Finished)
    $389/sqft
  • Listing Source
  • MLS Number
    2046456
  • Listing Broker
    Monica Hilliard
  • Listing Office
    MH Real Estate
  • Buyer's Broker
    Matthew W. Skeel
  • Buyer Broker's Firm
    Windermere Real Estate/FN
Monthly Payment Estimate
  • Principal and Interest
    $2,742 / month
  • HOA
    $712 / month
  • Property Taxes
    $391 / month
  • Homeowners Insurance
    $108 / month
  • TOTAL
    $3,953 / month

  • based on 20% down
    ($104,600)
  • and a
    6.85% Interest Rate
  • About:
    All calculations are estimates only and provided by Mainview LLC. Actual amounts will vary.
Condo Details
  • Unit #
    104
  • Unit Floor
    1
  • Sqft (Total)
    1,343 sqft
  • Sqft (Finished)
    Unspecified
  • Sqft (Unfinished)
    None
  • Property Type
    Condo
  • Sub Type
    Condo (1 Level)
  • Bedrooms
    2 Bedrooms
  • Bathrooms
    1.75 Bathrooms
  • Lot Size
    Unspecified
  • Lot Size Source
    Public Records
  • Project
    Marine Vista Condominiums
  • Total Stories
    1 story
  • Sqft Source
    Public Records
Property Tax Info
  • 2023 Property Taxes
    $4,693 / year
  • No Senior Exemption
Public Parcel Data & Maps
Schools
  • School District
    Seattle
  • Elementary
    Genesee Hill Elementary
  • Middle
    Madison Mid
  • High School
    West Seattle High
HOA
  • HOA Dues
    $712 / month
  • Fees Assessed
    Monthly
  • HOA Dues Include
    Common Area Maintenance
    Earthquake Insurance
    Garbage
    Lawn Service
    Gas
    Sewer
    Water
  • Pets Allowed
    See Remarks
    Subj to Restrictions
  • HOA Contact
    Unspecified
  • Management Contact
    Unspecified
Community Features
  • Community Features
    Elevator
    Fire Sprinklers
    Lobby Entrance
    See Remarks
Building
  • Name
    Marine Vista Condominiums
  • Units in Complex
    12
  • Units in Building
    12
  • Stories in Building
    3
Parking
  • Covered
    2-Car
  • Types
    Common Garage
  • Has Garage
    Yes
  • Nbr of Assigned Spaces
    2
  • Parking Space Info
    1,2
Views
  • Partial
    See Remarks
    Territorial
Construction
  • Year Built
    1993
  • Home Builder
    Unspecified
Cooling
  • Includes
    Window Unit A/C
Heating
  • Includes
    Insert
    Wall Unit(s)
Interior
  • Flooring
    Ceramic Tile
    Vinyl
    Carpet
  • Features
    Ceramic Tile
    Wall to Wall Carpet
    Balcony/Deck/Patio
    Cooking-Electric
    Dryer-Electric
    Washer
    Fireplace
    Water Heater
Property
  • Lot Features
    Curbs
    Paved
    Sidewalk
Appliances
  • Included
    Dishwasher
    Dryer
    Disposal
    Microwave
    Refrigerator
    Stove/Range
    Washer
Terms
  • Bank Owned (REO)
    No
Utilities
  • Energy
    Electric
    Natural Gas
Additional Info
  • Waterfront
    No
  • Air Conditioning (A/C)
    Yes
  • Buyer Broker's Compensation
    Unspecified
  • MLS Area #
    Area 140
  • Number of Photos
    19
  • Last Modification Time
    Friday, June 30, 2023 1:58 PM
  • System Listing ID
    5203661
Update Info
  • Closed
    2023-06-30 14:08:36
  • Pending Or Ctg
    2023-06-09 21:01:03
  • First For Sale
    2023-03-20 16:28:49
Listing details based on information submitted to the MLS GRID as of Friday, June 30, 2023 1:58 PM. All data is obtained from various sources and may not have been verified by broker or MLS GRID. Supplied Open House Information is subject to change without notice. All information should be independently reviewed and verified for accuracy. Properties may or may not be listed by the office/agent presenting the information.
View
Sort

Sharing

 
Sold June 30, 2023
$523,000   $574,900
2 BR    1.75 BA    1,343 SQFT  
NWMLS #2046456. Monica Hilliard, MH Real Estate
Map
 
Listing information is provided by the listing agent except as follows: BuilderB indicates that our system has grouped this listing under a home builder name that doesn't match the name provided by the listing broker. DevelopmentD indicates that our system has grouped this listing under a development name that doesn't match the name provided by the listing broker.