to
Reset
Houses
Townhouses
Condos
Land
Price
to
SQFT
to
Bdrms
to
Baths
to
Lot
to
Yr Built
to
Sold
Listed within...
Listed at least...
Offer Review
New Construction
Waterfront
Short-Sales
REO
Parking
to
Unit Flr
to
Unit Nbr
Listings
Neighborhoods
Complexes
Developments
Cities
Counties
Zip Codes
Neighborhood · Condo · Development
School District
Zip Code
City
County
Builder
Listing Numbers
Broker LAG
Boundary Lines
Labels
View
Sort
Sold Closed June 29, 2023
$345,000
1 Bedroom
1 Bathroom
636 Sqft Condo
Unit 103
Floor 1
Built 1989
1 Parking Space
HOA Dues $250 / month
SALE HISTORY
List price was $345,000
It took 5 days to go pending.
Then 44 days to close at $345,000
Closed at $542/SQFT.
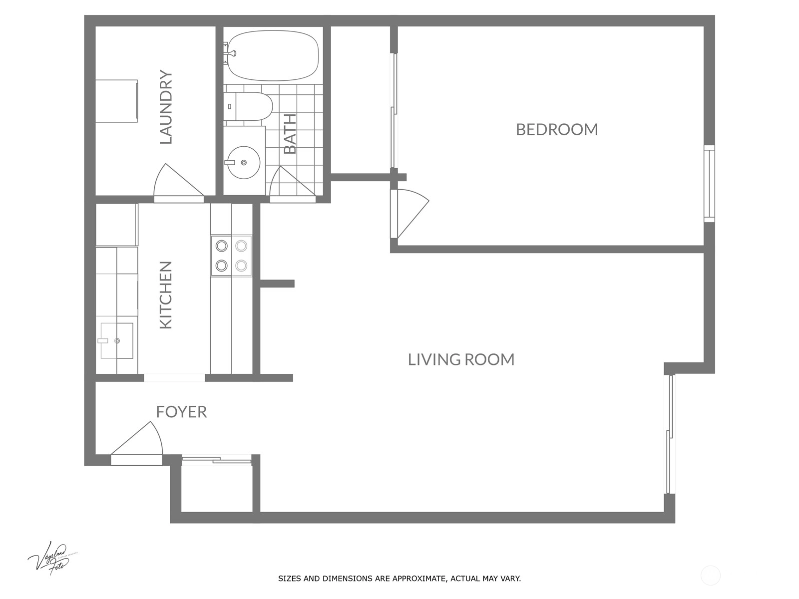
Welcome home to this spacious 1 BR condo w/ south facing balcony! Tastefully updated w/ luxury vinyl floors, new sink, disposal & newer SS apps. The open floor plan includes an office nook & a large storage/pantry/laundry room with new W/D. The spacious bedroom fits a king-size bed & offers ample closet space. Green Lake Pointe North is a 10 unit building with a well-run HOA, low dues, healthy reserves, no rental cap, no pet restrictions, secure entry & a secure parking spot. Walking distance to Green Lake, Licton Springs Park, PCC & quick access to Hwy 99/I-5, Northgate Light Rail, multiple bus lines, Greenwood & Downtown. This move in ready condo is perfect for the first time buyer or investor looking to own a low maintenance rental.
Offer Review Date
This listing's offer review date was Tuesday, May 16, 2023.
Project
Green Lake Pointe North
Listing source NWMLS MLS #
2066083
Listed by
John O'Brien, Keller Williams Greater Seattl
Buyer's broker
Trisha Quigley, COMPASS
Michelle Maddux, COMPASS
We don't currently have a buyer representative in this area. To be sure that you're getting objective advice, we always suggest buyers work with their own agent, someone who is not affiliated with the seller.
Time Adjusted Estimated Value
County Wide
  • In
    King County WA
  • prices for
    Condos
  • have changed
    -6%
  • since
    Jun 29, 2023
  • so a sale price of
    $345,000
  • would be approximately this amount today
    $324,300
City Wide
  • In
    Seattle WA
  • prices for
    Condos
  • have changed
    -10%
  • since
    Jun 29, 2023
  • so a sale price of
    $345,000
  • would be approximately this amount today
    $310,500
Assumptions: The original sale amount reflected a normal arms length sale. Any major updates would add to the value. Any damage or deferred maintenance would subtract from the value.
Bedroom & Bathroom Layout
MAIN
BDRM
FULL
BATH
Property History
Jun 29, 2023
Sold
$345,000
NWMLS #2066083 Annualized 5.2% / yr
May 16, 2023
Went Pending
$345,000
NWMLS #2066083
May 11, 2023
Listed
$345,000
NWMLS #2066083
Sep 22, 2016
Sold
$245,000
NWMLS #1017106 Annualized 1.7% / yr
Mar 07, 2006
Sold
$204,950
NWMLS #26005515
More
Listing Details
  • Sale Price
    $345,000
  • Closing Date
    June 29, 2023
  • Last List Price
    $345,000
  • Original Price
    Same
  • List Date
    May 11, 2023
  • Pending Date
    May 16, 2023
  • Days to go Pending
    5 days
  • $/sqft (Total)
    $542/sqft
  • $/sqft (Finished)
    $542/sqft
  • Listing Source
  • MLS Number
    2066083
  • Listing Broker
    John O'Brien
  • Listing Office
    Keller Williams Greater Seattl
  • Buyer's Broker
    Trisha Quigley
  • Buyer Broker's Firm
    COMPASS
Monthly Payment Estimate
  • Principal and Interest
    $1,809 / month
  • HOA
    $250 / month
  • Property Taxes
    $212 / month
  • Homeowners Insurance
    $85 / month
  • TOTAL
    $2,356 / month

  • based on 20% down
    ($69,000)
  • and a
    6.85% Interest Rate
  • About:
    All calculations are estimates only and provided by Mainview LLC. Actual amounts will vary.
Condo Details
  • Unit #
    103
  • Unit Floor
    1
  • Sqft (Total)
    636 sqft
  • Sqft (Finished)
    Unspecified
  • Sqft (Unfinished)
    None
  • Property Type
    Condo
  • Sub Type
    Condo (1 Level)
  • Bedrooms
    1 Bedroom
  • Bathrooms
    1 Bathroom
  • Lot Size
    Unspecified
  • Lot Size Source
    Unspecified
  • Project
    Green Lake Pointe North
  • Total Stories
    1 story
  • Sqft Source
    Tax Records
Property Tax Info
  • 2023 Property Taxes
    $2,544 / year
  • No Senior Exemption
Public Parcel Data & Maps
Schools
  • School District
    Seattle
  • Elementary
    Buyer To Verify
  • Middle
    Buyer To Verify
  • High School
    Buyer To Verify
HOA
  • HOA Dues
    $250 / month
  • Fees Assessed
    Monthly
  • HOA Dues Include
    Common Area Maintenance
    Garbage
    Sewer
    Water
  • Pets Allowed
    Yes
  • HOA Contact
    Unspecified
  • Management Contact
    Unspecified
Community Features
  • Community Features
    Fire Sprinklers
    High Speed Int Avail
    Lobby Entrance
Building
  • Name
    Green Lake Pointe North
  • Units in Complex
    10
  • Units in Building
    10
  • Stories in Building
    3
Parking
  • Covered
    1-Car
  • Types
    Common Garage
  • Has Garage
    Yes
  • Nbr of Assigned Spaces
    1
  • Parking Space Info
    3
Construction
  • Year Built
    1989
  • Home Builder
    Unspecified
Cooling
  • Includes
    None
Heating
  • Includes
    Baseboard
Interior
  • Flooring
    Ceramic Tile
    Vinyl Plank
  • Features
    Ceramic Tile
    Balcony/Deck/Patio
    Cooking-Electric
    Dryer-Electric
    Washer
    Water Heater
Property
  • Lot Features
    Alley
    Curbs
    Paved
    Sidewalk
Appliances
  • Included
    Dishwasher
    Dryer
    Disposal
    Microwave
    Refrigerator
    Stove/Range
    Washer
Terms
  • Bank Owned (REO)
    No
Utilities
  • Energy
    Electric
Additional Info
  • Waterfront
    No
  • Air Conditioning (A/C)
    No
  • Buyer Broker's Compensation
    Unspecified
  • MLS Area #
    Area 0
  • Number of Photos
    25
  • Last Modification Time
    Thursday, June 29, 2023 4:50 PM
  • System Listing ID
    5219371
Update Info
  • Closed
    2023-06-29 17:09:51
  • First For Sale
    2023-05-11 04:35:27
Listing details based on information submitted to the MLS GRID as of Thursday, June 29, 2023 4:50 PM. All data is obtained from various sources and may not have been verified by broker or MLS GRID. Supplied Open House Information is subject to change without notice. All information should be independently reviewed and verified for accuracy. Properties may or may not be listed by the office/agent presenting the information.
View
Sort

Sharing

 
Sold June 29, 2023
$345,000  
1 BR    1 BA    636 SQFT  
NWMLS #2066083. John O'Brien, Keller Williams Greater Seattl
Map
 
Listing information is provided by the listing agent except as follows: BuilderB indicates that our system has grouped this listing under a home builder name that doesn't match the name provided by the listing broker. DevelopmentD indicates that our system has grouped this listing under a development name that doesn't match the name provided by the listing broker.