to
Reset
Houses
Townhouses
Condos
Land
Price
to
SQFT
to
Bdrms
to
Baths
to
Lot
to
Yr Built
to
Sold
Listed within...
Listed at least...
Offer Review
New Construction
Waterfront
Short-Sales
REO
Parking
to
Unit Flr
to
Unit Nbr
Listings
Neighborhoods
Complexes
Developments
Cities
Counties
Zip Codes
Neighborhood · Condo · Development
School District
Zip Code
City
County
Builder
Listing Numbers
Broker LAG
Boundary Lines
Labels
View
Sort
Sold Closed August 9, 2024
$2,150,000
Originally $2,300,000
4 Bedrooms
3 Bathrooms
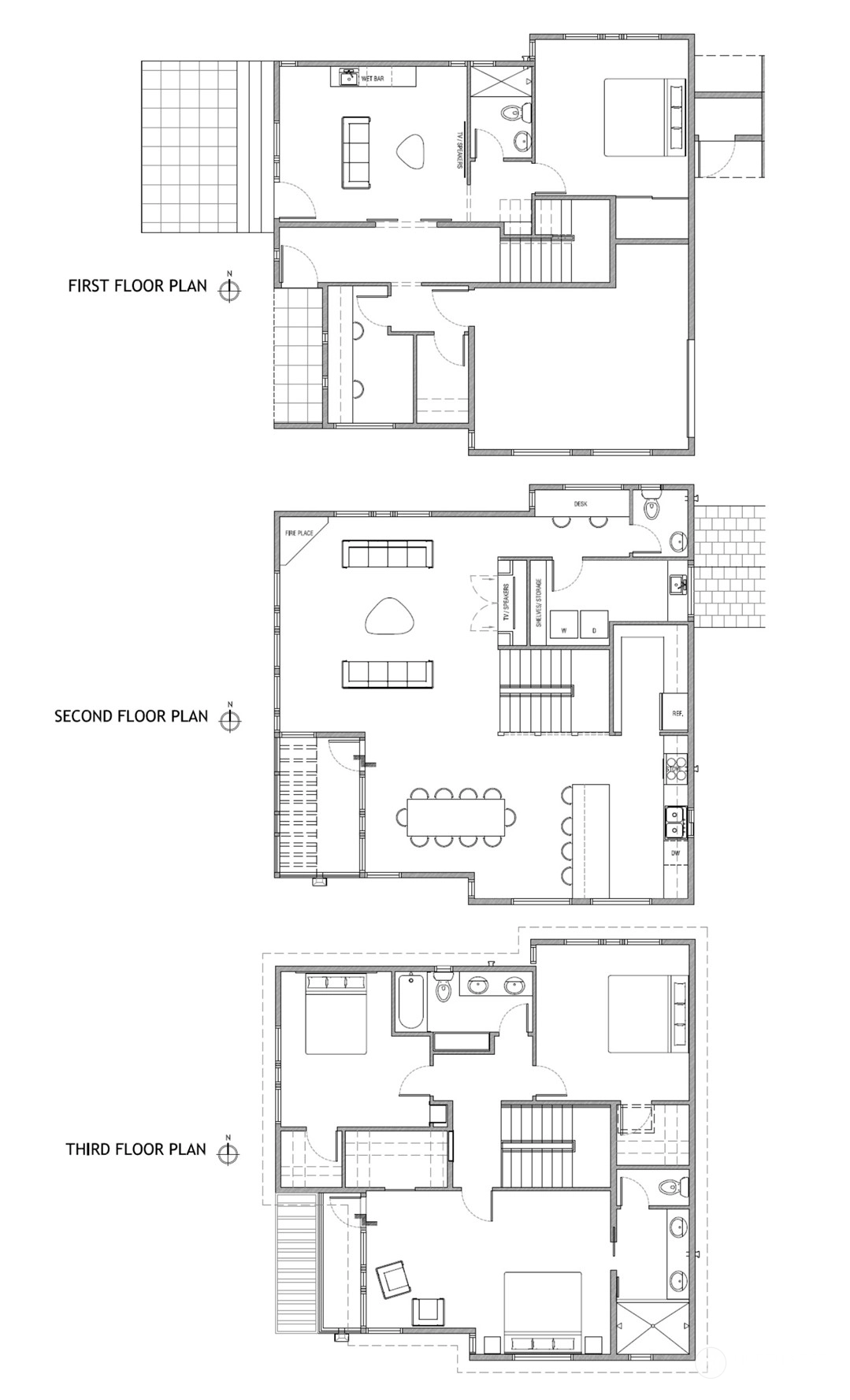
3,397 Sqft Condo
Floor 1
New Construction
Built 2024
No assigned parking spaces
HOA Dues $95 / month
SALE HISTORY
List price was $2,300,000
The price was later changed to $2,189,950.
It took 89 days to go pending.
Then 38 days to close at $2,150,000
Closed at $633/SQFT.
Luxury living in the heart of Queen Anne. This stunning new construction home boasting 4 bedrooms & 3 baths w/an additional home office. From sleek design to elegant finishes, every detail exudes modern sophistication. Entertain w/ease in the chef’s kitchen, while enjoying the expansive living & dining spaces with beautiful custom fireplace. Abundant natural light and seamless indoor-outdoor living. Exceptional craftsmanship and unmatched quality, this home is the epitome of Pacific Northwest luxury living. Grand suite featuring a luxe bath and two secondary bds. Spacious laundry rm on second level with half bath. Additional guest suite on entry level with separate private entrance offers flexibility, all within easy reach.
Offer Review
No offer review date was specified
Project
2438 3rd Ave W
Listing source NWMLS MLS #
2218554
Listed by
James Coleman V, Windermere Real Estate Co.
Jonathan Jacobs, Windermere Real Estate Co.
Buyer's broker
Yalamanchili Venkata, Kelly Right RE of Seattle LLC
Contact our
Queen Anne
Real Estate Lead
John L. Scott
Phone...
Time Adjusted Estimated Value
County Wide
  • In
    King County WA
  • prices for
    Condos
  • have changed
    -6%
  • since
    Aug 9, 2024
  • so a sale price of
    $2,150,000
  • would be approximately this amount today
    $2,021,000
City Wide
  • In
    Seattle WA
  • prices for
    Condos
  • have changed
    -6%
  • since
    Aug 9, 2024
  • so a sale price of
    $2,150,000
  • would be approximately this amount today
    $2,021,000
Assumptions: The original sale amount reflected a normal arms length sale. Any major updates would add to the value. Any damage or deferred maintenance would subtract from the value.
Bedroom & Bathroom Layout
THIRD
BDRM
BDRM
BDRM
FULL
BATH
¾
BATH
SECOND
½
BATH
MAIN
BDRM
¾
BATH
Property History
Aug 13, 2024
Sold
$1,150,000
NWMLS #2219668
Aug 13, 2024
Sold
$1,150,000
NWMLS #2218554
Jul 02, 2024
Went Pending
$2,189,950
NWMLS #2219668
Jul 02, 2024
Went Pending
$2,189,950
NWMLS #2218554
Jun 13, 2024
Price Reduction arrow_downward
$2,189,950
NWMLS #2219668
May 08, 2024
Price Reduction arrow_downward
$2,250,000
NWMLS #2219668
Apr 05, 2024
Listed
$2,300,000
NWMLS #2219668
Jun 13, 2024
Price Reduction arrow_downward
$2,189,950
NWMLS #2218554
May 08, 2024
Price Reduction arrow_downward
$2,250,000
NWMLS #2218554
Apr 04, 2024
Listed
$2,300,000
NWMLS #2218554
More
Listing Details
  • Sale Price
    $2,150,000
  • Closing Date
    August 9, 2024
  • Last List Price
    $2,189,950
  • Original Price
    $2,300,000
  • List Date
    April 4, 2024
  • Pending Date
    July 2, 2024
  • Days to go Pending
    89 days
  • $/sqft (Total)
    $633/sqft
  • $/sqft (Finished)
    $633/sqft
  • Listing Source
  • MLS Number
    2218554
  • Listing Broker
    James Coleman V
  • Listing Office
    Windermere Real Estate Co.
  • Buyer's Broker
    Yalamanchili Venkata
  • Buyer Broker's Firm
    Kelly Right RE of Seattle LLC
Monthly Payment Estimate
  • Principal and Interest
    $11,270 / month
  • HOA
    $95 / month
  • Property Taxes
    $0 / month
  • Homeowners Insurance
    $407 / month
  • TOTAL
    $11,772 / month

  • based on 20% down
    ($430,000)
  • and a
    6.85% Interest Rate
  • About:
    All calculations are estimates only and provided by Mainview LLC. Actual amounts will vary.
Condo Details
  • Unit #
    Unspecified
  • Unit Floor
    1
  • Sqft (Total)
    3,397 sqft
  • Sqft (Finished)
    Unspecified
  • Sqft (Unfinished)
    None
  • Property Type
    Condo
  • Sub Type
    Condo (3 Levels)
  • Bedrooms
    4 Bedrooms
  • Bathrooms
    3 Bathrooms
  • Lot
    2,370 sqft Lot
  • Lot Size Source
    Per builder plans
  • Project
    2438 3rd Ave W
  • Total Stories
    3 stories
  • Sqft Source
    Per Builder plans
Property Tax Info
  • 2024 Property Taxes
    $1 / year
  • No Senior Exemption
Public Parcel Data & Maps
Schools
  • School District
    Seattle
  • Elementary
    Unspecified
  • Middle
    Unspecified
  • High School
    Unspecified
HOA
  • HOA Dues
    $95 / month
  • Fees Assessed
    Monthly
  • HOA Dues Include
    See Remarks
  • Pets Allowed
    Cats OK
    Dogs OK
  • HOA Contact
    Unspecified
  • Management Contact
    Unspecified
Community Features
  • Community Features
    Fire Sprinklers
Building
  • Name
    2438 3rd Ave W
  • Units in Complex
    3
  • Units in Building
    1
  • Stories in Building
    3
Parking
  • Covered
    1-Car
  • Types
    Individual Garage
  • Has Garage
    Yes
  • Nbr of Assigned Spaces
    Unspecified
  • Parking Space Info
    Unspecified
Construction
  • Year Built
    2024
  • New Construction
    Yes
  • Construction State
    Unspecified
  • Home Builder
    Unspecified
Cooling
  • Includes
    Ductless HP-Mini Split
Heating
  • Includes
    Ductless HP-Mini Split
Interior
  • Flooring
    Engineered Hardwood
  • Features
    Balcony/Deck/Patio
    Cooking-Gas
    Dryer-Electric
    Ice Maker
    Washer
    Fireplace
    Water Heater
Property
  • Lot Features
    Alley
    Curbs
    Paved
    Sidewalk
Appliances
  • Included
    Dishwasher(s)
    Microwave(s)
    Refrigerator(s)
    Stove(s)/Range(s)
Terms
  • Bank Owned (REO)
    No
Utilities
  • Energy
    Electric
Additional Info
  • Waterfront
    No
  • Air Conditioning (A/C)
    Yes
  • Buyer Broker's Compensation
    2.5%
  • MLS Area #
    Area 700
  • Number of Photos
    40
  • Last Modification Time
    Wednesday, August 14, 2024 2:42 PM
  • System Listing ID
    5305862
Update Info
  • Closed
    2024-08-13 21:42:46
  • Pending Or Ctg
    2024-07-02 10:58:46
  • Price Reduction
    2024-06-13 11:08:35
  • First For Sale
    2024-04-04 17:21:36
Listing details based on information submitted to the MLS GRID as of Wednesday, August 14, 2024 2:42 PM. All data is obtained from various sources and may not have been verified by broker or MLS GRID. Supplied Open House Information is subject to change without notice. All information should be independently reviewed and verified for accuracy. Properties may or may not be listed by the office/agent presenting the information.
View
Sort

Sharing

 
Sold August 9, 2024
$2,150,000   $2,189,950
4 BR    3 BA    3,397 SQFT  
NWMLS #2218554. James Coleman V, Windermere Real Estate Co.
Map
 
Listing information is provided by the listing agent except as follows: BuilderB indicates that our system has grouped this listing under a home builder name that doesn't match the name provided by the listing broker. DevelopmentD indicates that our system has grouped this listing under a development name that doesn't match the name provided by the listing broker.