to
Reset
Houses
Townhouses
Condos
Land
Price
to
SQFT
to
Bdrms
to
Baths
to
Lot
to
Yr Built
to
Sold
Listed within...
Listed at least...
Offer Review
New Construction
Waterfront
Short-Sales
REO
Parking
to
Unit Flr
to
Unit Nbr
Listings
Neighborhoods
Complexes
Developments
Cities
Counties
Zip Codes
Neighborhood · Condo · Development
School District
Zip Code
City
County
Builder
Listing Numbers
Broker LAG
Boundary Lines
Labels
View
Sort
Sold Closed June 21, 2024
$580,000
4 Bedrooms
2.5 Bathrooms
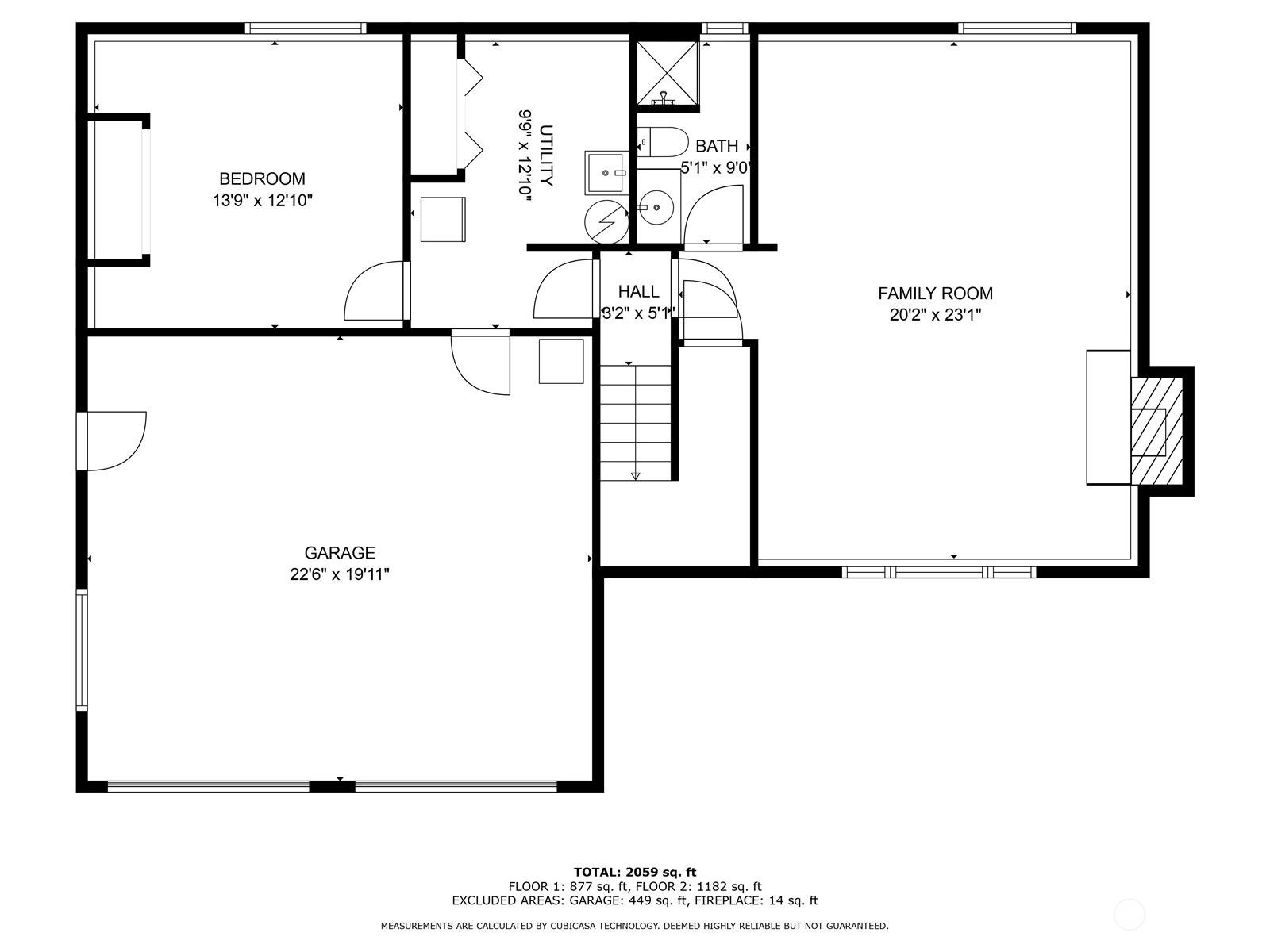
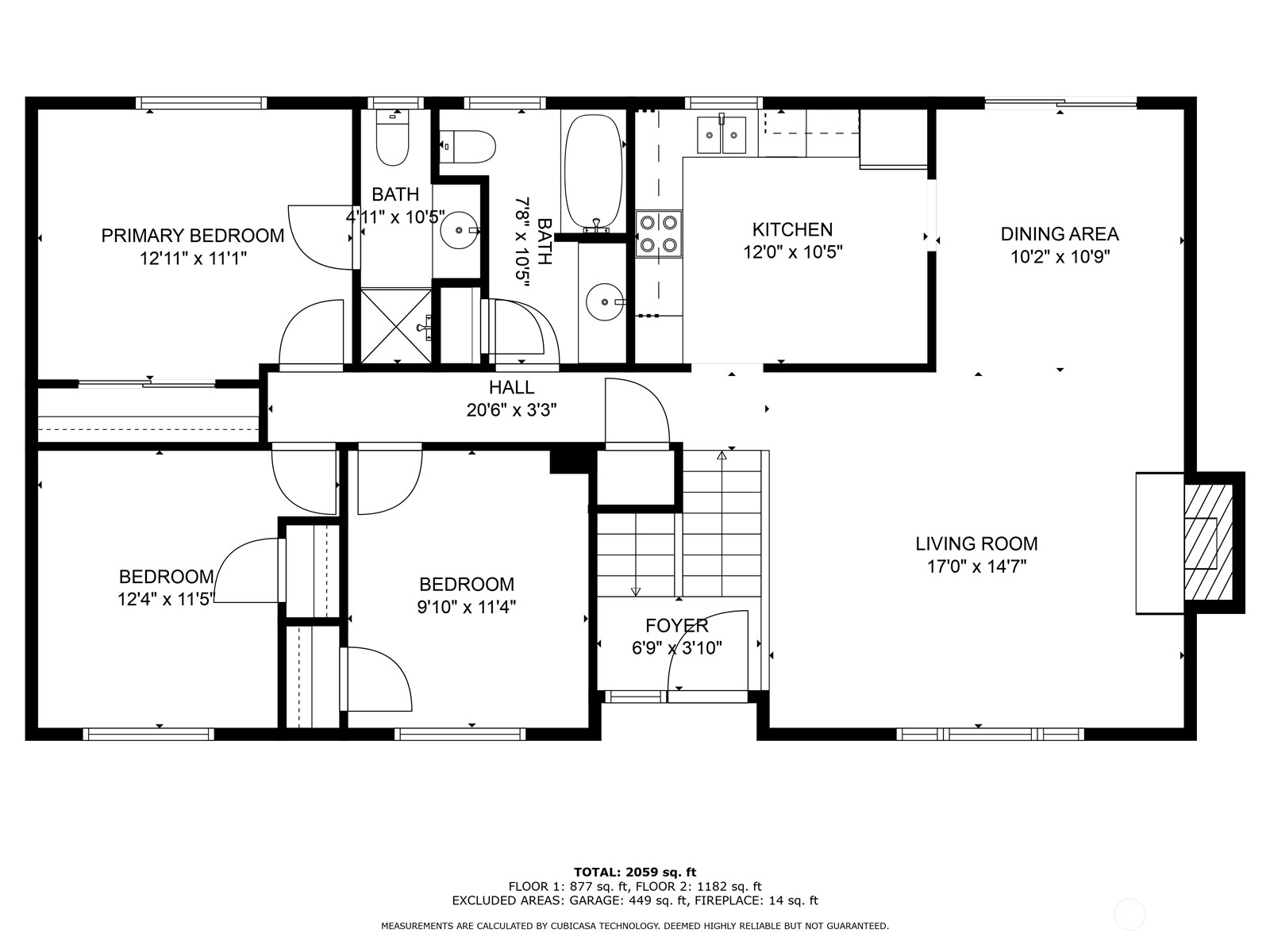
2,150 Sqft House
Built 1975
7,215 Sqft Lot
2-Car Garage
SALE HISTORY
List price was $550,000
It took 5 days to go pending.
Then 10 days to close at $580,000
Closed at $270/SQFT.
Welcome to a unique opportunity in Glencarin! This original-owner sale is being sold as-is, offering an exceptional chance for instant equity with a bit of DIY spirit. Primary suite features views of the fully fenced yard and access to a private ensuite with walk-in shower. Featuring two cozy fireplaces for warmth and ambiance, and a huge lower-level bonus space/rec room perfect for a variety of uses. The oversized 2-car garage provides ample space for vehicles and storage. This property is a rare find, ideal for those looking to customize their dream home. Seize this chance to create lasting memories in a home that you can truly make your own. Act now to explore the possibilities!
Offer Review Date
This listing's offer review date was Tuesday, June 11, 2024.
Listing source NWMLS MLS #
2246825
Listed by
Carla R. Clark, KW Mountains to Sound Realty
Kylie M. Johnson, KW Mountains to Sound Realty
Buyer's broker
Sundi Mathewson, RE/MAX Northwest
Contact our
Kent
Real Estate Lead
TPG Realty | Keller Williams
Phone...
Time Adjusted Estimated Value
County Wide
  • In
    King County WA
  • prices for
    Single Family Homes
  • have changed
    0%
  • since
    Jun 21, 2024
  • so a sale price of
    $580,000
  • would be approximately this amount today
    $580,006
Assumptions: The original sale amount reflected a normal arms length sale. Any major updates would add to the value. Any damage or deferred maintenance would subtract from the value.
Bedroom & Bathroom Layout
SECOND
BDRM
BDRM
BDRM
FULL
BATH
¾
BATH
LOWER
BDRM
¾
BATH
Property History
Oct 31, 2024
Sold
$799,000
NWMLS #2293937 Annualized 143.5% / yr
Oct 21, 2024
Went Pending
$799,000
Oct 17, 2024
Went Pending Inspection
$799,000
Oct 11, 2024
Price Reduction arrow_downward
$799,000
Oct 02, 2024
Listed
$815,000
Jun 21, 2024
Sold
$580,000
NWMLS #2246825
Jun 11, 2024
Went Pending
$550,000
NWMLS #2246825
Jun 06, 2024
Listed
$550,000
NWMLS #2246825
More
Listing Details
  • Sale Price
    $580,000
  • Closing Date
    June 21, 2024
  • Last List Price
    $550,000
  • Original Price
    Same
  • List Date
    June 6, 2024
  • Pending Date
    June 11, 2024
  • Days to go Pending
    5 days
  • $/sqft (Total)
    $270/sqft
  • $/sqft (Finished)
    $270/sqft
  • Listing Source
  • MLS Number
    2246825
  • Listing Broker
    Carla R. Clark
  • Listing Office
    KW Mountains to Sound Realty
  • Buyer's Broker
    Sundi Mathewson
  • Buyer Broker's Firm
    RE/MAX Northwest
Monthly Payment Estimate
  • Principal and Interest
    $3,040 / month
  • Property Taxes
    $498 / month
  • Homeowners Insurance
    $119 / month
  • TOTAL
    $3,657 / month

  • based on 20% down
    ($116,000)
  • and a
    6.85% Interest Rate
  • About:
    All calculations are estimates only and provided by Mainview LLC. Actual amounts will vary.
House Details
  • Sqft (Total)
    2,150 sqft
  • Sqft (Finished)
    2,150 sqft
  • Sqft (Unfinished)
    None
  • Property Type
    House
  • Sub Type
    Split Entry
  • Bedrooms
    4 Bedrooms
  • Bathrooms
    2.5 Bathrooms
  • Lot
    7,215 sqft Lot
  • Lot Size Source
    Public Records
  • Lot #
    228
  • Project
    Glencarin
  • Total Stories
    2 stories
  • Basement
    Finished
  • Sqft Source
    Public Records
Property Tax Info
  • 2023 Property Taxes
    $5,974 / year
  • No Senior Exemption
Public Parcel Data & Maps
Schools
  • School District
    Kent
  • Elementary
    Buyer To Verify
  • Middle
    Buyer To Verify
  • High School
    Buyer To Verify
HOA
  • HOA Dues
    Unspecified
  • Fees Assessed
    Unspecified
  • HOA Dues Include
    Unspecified
  • HOA Contact
    Unspecified
  • Management Contact
    Unspecified
Parking
  • Covered
    2-Car
  • Types
    Attached Garage
  • Has Garage
    Yes
  • Nbr of Assigned Spaces
    2
Construction
  • Year Built
    1975
  • Home Builder
    Unspecified
Cooling
  • Includes
    None
Heating
  • Includes
    Forced Air
Interior
  • Flooring
    Ceramic Tile
    Vinyl
    Carpet
  • Features
    Ceramic Tile
    Wall to Wall Carpet
    Bath Off Primary
    Dining Room
    Vaulted Ceiling(s)
    Fireplace
    Water Heater
Property
  • Lot Features
    Curbs
    Paved
    Sidewalk
  • Site Features
    Deck
    Fenced-Partially
    Gas Available
Appliances
  • Included
    Dishwasher(s)
    Disposal
    Microwave(s)
    Refrigerator(s)
Terms
  • Bank Owned (REO)
    No
Utilities
  • Energy
    Electric
    Natural Gas
  • Sewer
    Sewer Connected
  • Water Source
    Public
Additional Info
  • Waterfront
    No
  • Air Conditioning (A/C)
    No
  • Buyer Broker's Compensation
    2.5%
  • MLS Area #
    Area 330
  • Number of Photos
    30
  • Last Modification Time
    Friday, June 21, 2024 11:32 AM
  • System Listing ID
    5329904
Update Info
  • Closed
    2024-06-21 11:53:56
  • Pending Or Ctg
    2024-06-11 19:20:00
  • First For Sale
    2024-06-06 11:30:34
Listing details based on information submitted to the MLS GRID as of Friday, June 21, 2024 11:32 AM. All data is obtained from various sources and may not have been verified by broker or MLS GRID. Supplied Open House Information is subject to change without notice. All information should be independently reviewed and verified for accuracy. Properties may or may not be listed by the office/agent presenting the information.
View
Sort

Sharing

 
Sold June 21, 2024
$580,000   $550,000
4 BR    2.5 BA    2,150 SQFT  
NWMLS #2246825. Carla R. Clark, KW Mountains to Sound Realty
Map
 
Listing information is provided by the listing agent except as follows: BuilderB indicates that our system has grouped this listing under a home builder name that doesn't match the name provided by the listing broker. DevelopmentD indicates that our system has grouped this listing under a development name that doesn't match the name provided by the listing broker.