to
Reset
Houses
Townhouses
Condos
Land
Price
to
SQFT
to
Bdrms
to
Baths
to
Lot
to
Yr Built
to
Sold
Listed within...
Listed at least...
Offer Review
New Construction
Waterfront
Short-Sales
REO
Parking
to
Unit Flr
to
Unit Nbr
Listings
Neighborhoods
Complexes
Developments
Cities
Counties
Zip Codes
Neighborhood · Condo · Development
School District
Zip Code
City
County
Builder
Listing Numbers
Broker LAG
Boundary Lines
Labels
View
Sort
Sold Closed October 15, 2024
$625,000
5.1 Acres Lot
No Garage
SALE HISTORY
List price was $640,000
It took 42 days to go pending.
Then 35 days to close at $625,000
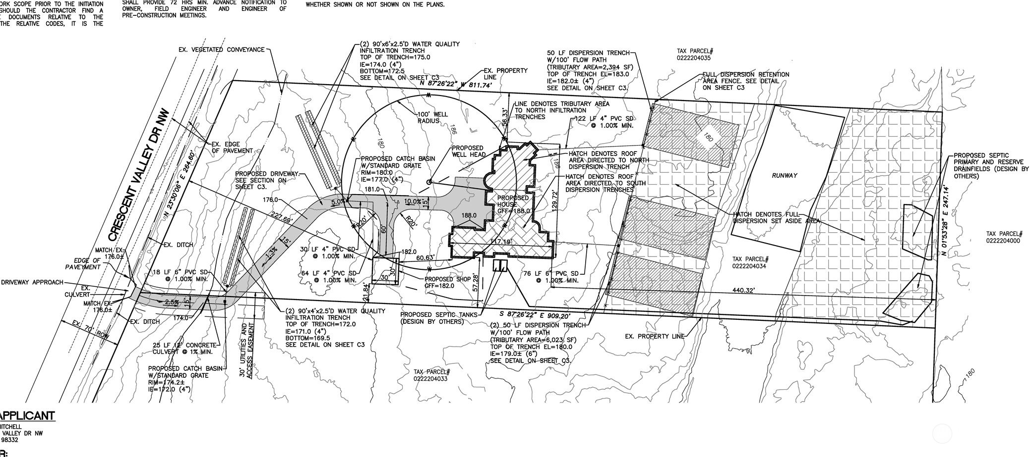
It's READY - Bring your builder TODAY! This truly exceptional 5.1 acres abutting the Drummond forest offers a perfect canvas for your high end custom home. ALL of the preliminary work is complete - permits are APPROVED and ACTIVE so you can begin building in record time. The land boasts a flat, lightly treed landscape with a natural building site tucked well off Crescent Valley ensuring complete serene privacy for your dream home. The driveway is in, the private well is in, power and cable have been installed to the home site, and the 4 bedroom septic design is approved. If you're searching, you know how rare and nearly impossible it is to find this, especially given its fantastic location... Don't wait...you've won the lottery!
Offer Review
No offer review date was specified
Listing source NWMLS MLS #
2271787
Listed by
Jennie Wetter, Infinity Real Estate, LLC
Buyer's broker
Michael Drake, Coldwell Banker Danforth
Contact our
Gig Harbor
Real Estate Lead
RE/MAX Northwest Realtors
Phone...
Time Adjusted Estimated Value
Assumptions: The original sale amount reflected a normal arms length sale. Any major updates would add to the value. Any damage or deferred maintenance would subtract from the value.
Property History
Oct 15, 2024
Sold
$625,000
NWMLS #2271787
Oct 09, 2024
Went Pending
$640,000
NWMLS #2271787
Sep 11, 2024
Went Pending Feasibility
$640,000
NWMLS #2271787
Jul 30, 2024
Listed
$640,000
NWMLS #2271787
More
Listing Details
  • Sale Price
    $625,000
  • Closing Date
    October 15, 2024
  • Last List Price
    $640,000
  • Original Price
    Same
  • List Date
    July 30, 2024
  • Pending Date
    September 10, 2024
  • Days to go Pending
    42 days
  • $/sqft (Total)
    --
  • $/sqft (Finished)
    /sqft
  • Listing Source
  • MLS Number
    2271787
  • Listing Broker
    Jennie Wetter
  • Listing Office
    Infinity Real Estate, LLC
  • Buyer's Broker
    Michael Drake
  • Buyer Broker's Firm
    Coldwell Banker Danforth
Monthly Payment Estimate
  • Principal and Interest
    $3,276 / month
  • Property Taxes
    $305 / month
  • Homeowners Insurance
    $127 / month
  • TOTAL
    $3,708 / month

  • based on 20% down
    ($125,000)
  • and a
    6.85% Interest Rate
  • About:
    All calculations are estimates only and provided by Mainview LLC. Actual amounts will vary.
Property Details
  • Sqft (Total)
    0 sqft
  • Sqft (Finished)
    0 sqft
  • Sqft (Unfinished)
    None
  • Property Type
    Parcel
  • Sub Type
    Res-Over 1 Acre
  • Bedrooms
    Bedrooms
  • Bathrooms
    0 Bathrooms
  • Lot
    5.1 Acres Lot
  • Lot Size Source
    Realist
  • Lot #
    2
  • Project
    Unspecified
  • Total Stories
    Unspecified
  • Sqft Source
    Unspecified
Property Tax Info
  • 2024 Property Taxes
    $3,663 / year
  • No Senior Exemption
Public Parcel Data & Maps
Schools
  • School District
    Peninsula
  • Elementary
    Buyer To Verify
  • Middle
    Buyer To Verify
  • High School
    Buyer To Verify
HOA
  • HOA Dues
    Unspecified
  • Fees Assessed
    Unspecified
  • HOA Dues Include
    Unspecified
  • HOA Contact
    Unspecified
  • Management Contact
    Unspecified
Parking
  • Covered
    Unspecified
  • Has Garage
    No
Views
  • Territorial
Construction
  • Home Builder
    Unspecified
Cooling
Heating
Interior
Property
  • Lot Features
    Adjacent to Public Land
    Paved
    Secluded
Appliances
Terms
  • Bank Owned (REO)
    No
Utilities
  • Sewer
    Not Available
  • Water Source
    Private Well
Additional Info
  • Waterfront
    No
  • Air Conditioning (A/C)
    No
  • Buyer Broker's Compensation
    2.5%
  • MLS Area #
    Area 8
  • Number of Photos
    16
  • Last Modification Time
    Tuesday, October 15, 2024 1:09 PM
  • System Listing ID
    5349641
Update Info
  • Closed
    2024-10-15 13:15:22
  • Pending Or Ctg
    2024-10-09 08:47:58
  • First For Sale
    2024-07-30 14:53:19
Listing details based on information submitted to the MLS GRID as of Tuesday, October 15, 2024 1:09 PM. All data is obtained from various sources and may not have been verified by broker or MLS GRID. Supplied Open House Information is subject to change without notice. All information should be independently reviewed and verified for accuracy. Properties may or may not be listed by the office/agent presenting the information.
View
Sort

Sharing

 
Sold October 15, 2024
$625,000   $640,000
NWMLS #2271787. Jennie Wetter, Infinity Real Estate, LLC
Map
 
Listing information is provided by the listing agent except as follows: BuilderB indicates that our system has grouped this listing under a home builder name that doesn't match the name provided by the listing broker. DevelopmentD indicates that our system has grouped this listing under a development name that doesn't match the name provided by the listing broker.