to
Reset
Houses
Townhouses
Condos
Land
Price
to
SQFT
to
Bdrms
to
Baths
to
Lot
to
Yr Built
to
Sold
Listed within...
Listed at least...
Offer Review
New Construction
Waterfront
Short-Sales
REO
Parking
to
Unit Flr
to
Unit Nbr
Listings
Neighborhoods
Complexes
Developments
Cities
Counties
Zip Codes
Neighborhood · Condo · Development
School District
Zip Code
City
County
Builder
Listing Numbers
Broker LAG
Boundary Lines
Labels
View
Sort
Sold Closed February 21, 2025
$672,500
4 Bedrooms
2.5 Bathrooms
1,857 Sqft Townhome
Built 2005
2 Parking Spaces
HOA Dues $80 / month
SALE HISTORY
List price was $665,000
It took 3 days to go pending.
Then 26 days to close at $672,500
Closed at $362/SQFT.
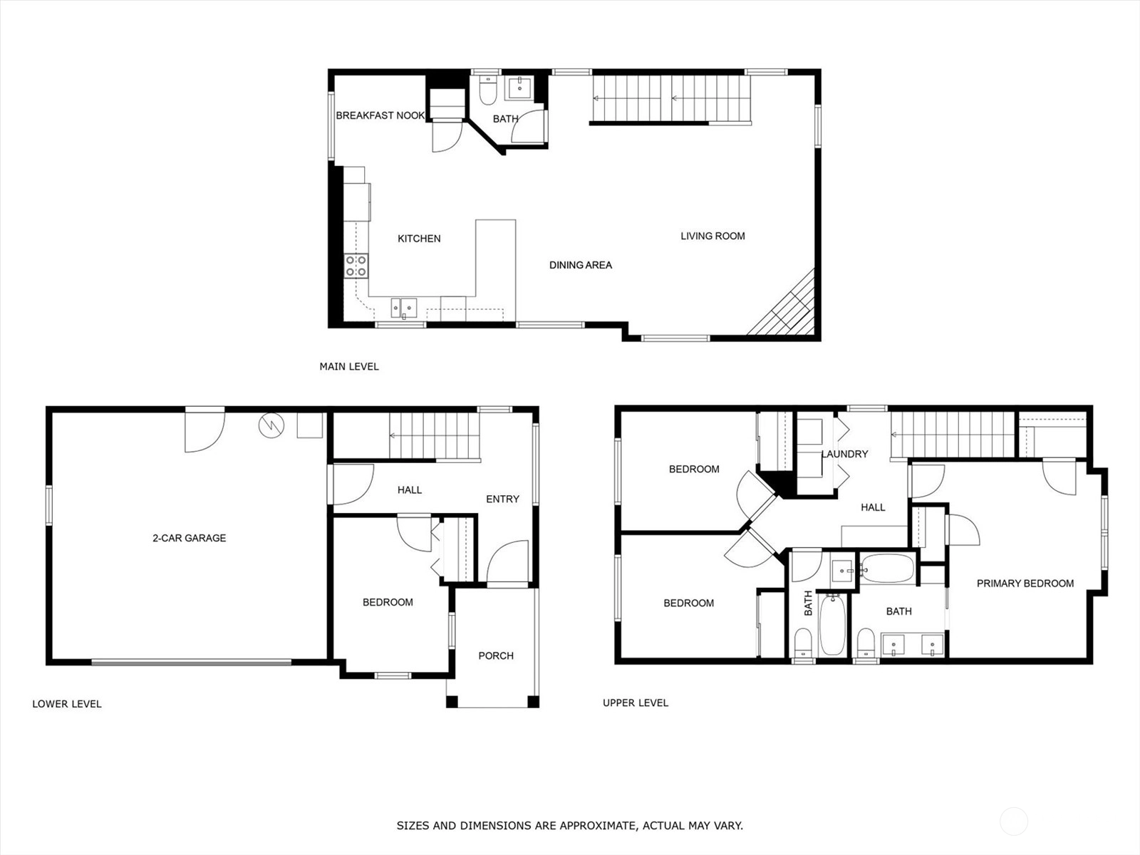
Welcome to Alderbrook Village West, where comfort meets convenience! This fully detached 4-bedroom, 2.5-bath corner lot home features an open-concept great room with hardwood floors, perfect for modern living and entertaining. The primary suite boasts two spacious walk-in closets, The lower-level bedroom makes an ideal home office, offering versatility to suit your lifestyle. Recently remodeled, this home also includes a private patio backing to a serene greenbelt and trails, plus a brand-new roof and furnace for worry-free living. Built in 2005, the west-facing home is in a gated community with easy access to Hwy 99, I-5, I-405, Hwy 525, shopping, and daily services. Enjoy the 2-car garage and peaceful surroundings!
Offer Review
No offer review date was specified
Project
Alderbrook Village West
Listing source NWMLS MLS #
2325904
Listed by
Aaron Patrick Wilder, eXp Realty
Buyer's broker
Jason Pettigrew, RE/MAX Northwest
Contact our
Everett
Real Estate Lead
Buck Real Estate
Phone...
Time Adjusted Estimated Value
Assumptions: The original sale amount reflected a normal arms length sale. Any major updates would add to the value. Any damage or deferred maintenance would subtract from the value.
Bedroom & Bathroom Layout
THIRD
BDRM
BDRM
BDRM
FULL
BATH
FULL
BATH
MAIN
½
BATH
LOWER
BDRM
Property History
Feb 21, 2025
Sold
$672,500
NWMLS #2325904
Feb 21, 2025
Sold
$672,500
NWMLS #2324573 Annualized 8% / yr
Jan 26, 2025
Went Pending
$665,000
NWMLS #2324573
Jan 26, 2025
Went Pending
$665,000
NWMLS #2325904
Jan 24, 2025
Listed
$665,000
NWMLS #2325904
Jan 23, 2025
Listed
$665,000
NWMLS #2324573
Sep 10, 2020
Sold
$478,000
NWMLS #1636748 Annualized 2.6% / yr
Aug 10, 2006
Sold
$331,950
More
Listing Details
  • Sale Price
    $672,500
  • Closing Date
    February 21, 2025
  • Last List Price
    $665,000
  • Original Price
    Same
  • List Date
    January 23, 2025
  • Pending Date
    January 26, 2025
  • Days to go Pending
    3 days
  • $/sqft (Total)
    $362/sqft
  • $/sqft (Finished)
    $362/sqft
  • Listing Source
  • MLS Number
    2325904
  • Listing Broker
    Aaron Patrick Wilder
  • Listing Office
    eXp Realty
  • Buyer's Broker
    Jason Pettigrew
  • Buyer Broker's Firm
    RE/MAX Northwest
Monthly Payment Estimate
  • Principal and Interest
    $3,525 / month
  • HOA
    $80 / month
  • Property Taxes
    $423 / month
  • Homeowners Insurance
    $136 / month
  • TOTAL
    $4,164 / month

  • based on 20% down
    ($134,500)
  • and a
    6.85% Interest Rate
  • About:
    All calculations are estimates only and provided by Mainview LLC. Actual amounts will vary.
Condo Details
  • Unit #
    Unspecified
  • Unit Floor
    0
  • Sqft (Total)
    1,857 sqft
  • Sqft (Finished)
    Unspecified
  • Sqft (Unfinished)
    None
  • Property Type
    Townhome
  • Sub Type
    Townhouse
  • Bedrooms
    4 Bedrooms
  • Bathrooms
    2.5 Bathrooms
  • Lot
    1,969 sqft Lot
  • Lot Size Source
    Tax Records
  • Project
    Alderbrook Village West
  • Total Stories
    Unspecified
  • Sqft Source
    Tax Records
Property Tax Info
  • 2024 Property Taxes
    $5,080 / year
  • No Senior Exemption
Public Parcel Data & Maps
Schools
  • School District
    Mukilteo
  • Elementary
    Buyer To Verify
  • Middle
    Buyer To Verify
  • High School
    Buyer To Verify
HOA
  • HOA Dues
    $80 / month
  • Fees Assessed
    Monthly
  • HOA Dues Include
    Common Area Maintenance
  • Pets Allowed
    Yes
  • HOA Contact
    Unspecified
  • Management Contact
    Unspecified
Community Features
  • Community Features
    Gated
    High Speed Int Avail
Building
  • Name
    Alderbrook Village West
  • Units in Complex
    63
  • Units in Building
    1
  • Stories in Building
    3
Parking
  • Covered
    2-Car
  • Types
    Individual Garage
  • Has Garage
    Yes
  • Nbr of Assigned Spaces
    2
  • Parking Space Info
    Unspecified
Construction
  • Year Built
    2005
  • Home Builder
    Unspecified
Cooling
  • Includes
    None
Heating
  • Includes
    Forced Air
Interior
  • Flooring
    Hardwood
  • Features
    Balcony/Deck/Patio
    Cooking-Electric
    Dryer-Electric
    Fireplace
    Hardwood
    Washer
    Water Heater
    Yard
Property
  • Lot Features
    Corner Lot
    Paved
Appliances
  • Included
    Dishwasher(s)
    Dryer(s)
    Disposal
    Microwave(s)
    Refrigerator(s)
    Stove(s)/Range(s)
    Washer(s)
Terms
  • Bank Owned (REO)
    No
Utilities
  • Energy
    Electric
    Natural Gas
Additional Info
  • Waterfront
    No
  • Air Conditioning (A/C)
    No
  • Buyer Broker's Compensation
    2.5%
  • MLS Area #
    Area 740
  • Number of Photos
    31
  • Last Modification Time
    Monday, March 24, 2025 4:03 AM
  • System Listing ID
    5395818
Update Info
  • Closed
    2025-02-21 11:49:36
  • Pending Or Ctg
    2025-01-26 21:50:59
  • First For Sale
    2025-01-24 10:23:48
Listing details based on information submitted to the MLS GRID as of Monday, March 24, 2025 4:03 AM. All data is obtained from various sources and may not have been verified by broker or MLS GRID. Supplied Open House Information is subject to change without notice. All information should be independently reviewed and verified for accuracy. Properties may or may not be listed by the office/agent presenting the information.
View
Sort

Sharing

 
Sold February 21, 2025
$672,500   $665,000
4 BR    2.5 BA    1,857 SQFT  
NWMLS #2325904. Aaron Patrick Wilder, eXp Realty
Map
 
Listing information is provided by the listing agent except as follows: BuilderB indicates that our system has grouped this listing under a home builder name that doesn't match the name provided by the listing broker. DevelopmentD indicates that our system has grouped this listing under a development name that doesn't match the name provided by the listing broker.