to
Reset
Houses
Townhouses
Condos
Land
Price
to
SQFT
to
Bdrms
to
Baths
to
Lot
to
Yr Built
to
Sold
Listed within...
Listed at least...
Offer Review
New Construction
Waterfront
Short-Sales
REO
Parking
to
Unit Flr
to
Unit Nbr
Listings
Neighborhoods
Complexes
Developments
Cities
Counties
Zip Codes
Neighborhood · Condo · Development
School District
Zip Code
City
County
Builder
Listing Numbers
Broker LAG
Boundary Lines
Labels
View
Sort
Pending Inspection Went pending in 272 days
$649,900
Originally $689,900
3 Bedrooms
2.75 Bathrooms
3,539 Sqft House (2,323 Finished)
Built 1993
31,363 Sqft Lot
4-Car Garage
The seller has reached an agreement with a buyer to sell this property. If things go as planned, the sale will become final in the near future. The buyer and seller have agreed on a price but it's not public until the sale closes. The last published list price was $649,900.
One of a kind Victorian with exceptional quality in construction. 3 Car garage plus partial basement garage. Gourmet kitchen with mahogany wood cabinetry and granite. Two primary bedrooms upstairs w/private baths. 9' Ceilings. Spacious rooms. Wrap around entertaining deck. Custom trim and details throughout interior and exterior. Solid wood doors w/stained glass. Intercom Stereo System and Central Vac. Abundant storage on each floor. Basement with another bedroom and bath could be apartment with separate entry or multi generaltional living. Plus room to add a 4th Bedroom. Oil pit in basement. Mature landscaping. Private lot w/mountain views. Zoned for Residential or BandB Air filtration system on heat pump. Brand New Roof! Motivated Seller!
Offer Review
No offer review date was specified
Listing source NWMLS MLS #
2358293
Listed by
Diane Lokan, John L Scott LVW
We don't currently have a buyer representative in this area. To be sure that you're getting objective advice, we always suggest buyers work with their own agent, someone who is not affiliated with the seller.
Bedroom & Bathroom Layout
SECOND
BDRM
BDRM
FULL
BATH
¾
BATH
MAIN
½
BATH
LOWER
BDRM
½
BATH
Property History
Jan 10, 2026
Went Pending Inspection
$649,900
NWMLS #2358293
Sep 24, 2025
Price Reduction arrow_downward
$649,900
NWMLS #2358293
Jul 11, 2025
Price Reduction arrow_downward
$669,900
NWMLS #2358293
Apr 11, 2025
Listed
$689,900
NWMLS #2358293
Jun 18, 2024
Listed
$689,900
NWMLS #2252061
Apr 24, 2024
Price Reduction arrow_downward
$769,000
NWMLS #2147285
More
Listing Details
  • Status
    Pending Inspection
  • Last Listed Price
    $649,900
  • Original Price
    $689,900
  • List Date
    April 11, 2025
  • Last Status Change
    January 10, 2026
  • Last Update
    January 10, 2026
  • Days on Market
    275 Days
  • Cumulative DOM
    272 Days
  • Pending Date
    January 8, 2026
  • Days to go Pending
    272
  • $/sqft (Total)
    $184/sqft
  • $/sqft (Finished)
    $280/sqft
  • Listing Source
  • MLS Number
    2358293
  • Listing Broker
    Diane Lokan
  • Listing Office
    John L Scott LVW
Monthly Payment Estimate
  • Principal and Interest
    $3,407 / month
  • Property Taxes
    $521 / month
  • Homeowners Insurance
    $132 / month
  • TOTAL
    $4,060 / month

  • based on 20% down
    ($129,980)
  • and a
    6.85% Interest Rate
  • About:
    All calculations are estimates only and provided by Mainview LLC. Actual amounts will vary.
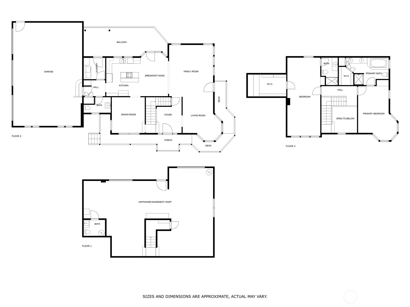
House Details
  • Sqft (Total)
    3,539 sqft
  • Sqft (Finished)
    2,323 sqft
  • Sqft (Unfinished)
    1,216 sqft
  • Property Type
    House
  • Sub Type
    2 Stories + Basement
  • Bedrooms
    3 Bedrooms
  • Bathrooms
    2.75 Bathrooms
  • Lot
    31,363 sqft Lot
  • Lot Size Source
    Public Records
  • Lot #
    Unspecified
  • Project
    Unspecified
  • Total Stories
    3 stories
  • Basement
    Partially Finished
  • Sqft Source
    Architect
Property Tax Info
  • 2025 Property Taxes
    $6,256 / year
  • No Senior Exemption
Public Parcel Data & Maps
  • County
    Cowlitz County
  • Parcel #
    3038816
  • County Website
    Unspecified
  • County Parcel Map
    Unspecified
  • County GIS Map
    Unspecified
  • About
    County links provided by Mainview LLC
Schools
  • School District
    Kelso
  • Elementary
    Butler Acres Elem
  • Middle
    Coweeman Jnr High
  • High School
    Kelso High
HOA
  • HOA Dues
    Unspecified
  • Fees Assessed
    Unspecified
  • HOA Dues Include
    Unspecified
  • HOA Contact
    Unspecified
  • Management Contact
Parking
  • Covered
    4-Car
  • Types
    Attached Garage
  • Has Garage
    Yes
  • Nbr of Assigned Spaces
    4
Views
  • Mountain(s)
    Territorial
Construction
  • Year Built
    1993
  • Home Builder
    King
Cooling
  • Includes
    Heat Pump
Heating
  • Includes
    Heat Pump
Interior
  • Flooring
    Hardwood
    Vinyl
    Carpet
  • Features
    Second Primary Bedroom
    Bath Off Primary
    Built-In Vacuum
    Ceiling Fan(s)
    Double Pane/Storm Window
    Dining Room
    French Doors
    Hot Tub/Spa
    Water Heater
Property
  • Lot Features
    Paved
  • Site Features
    Cable TV
    Deck
    High Speed Internet
    Hot Tub/Spa
    Patio
Appliances
  • Included
    Dishwasher(s)
    Disposal
    Dryer(s)
    Microwave(s)
    Refrigerator(s)
    Stove(s)/Range(s)
    Washer(s)
Terms
  • 3rd Party Approval Required)
    No
  • Bank Owned (REO)
    No
  • Complex FHA Availability
    Unspecified
  • Potential Terms
    Cash Out
    Conventional
    VA Loan
Utilities
  • Energy
    Electric
  • Sewer
    Sewer Connected
  • Water Source
    Public
Additional Info
  • Waterfront
    No
  • Air Conditioning (A/C)
    Yes
  • Buyer Broker's Compensation
    2.5%
  • MLS Area #
    Area 417
  • Number of Photos
    40
  • Last Modification Time
    Saturday, January 10, 2026 7:45 AM
  • System Listing ID
    5420940
Update Info
  • Pending Or Ctg
    2026-01-10 07:57:56
  • Price Reduction
    2025-09-24 18:27:52
  • First For Sale
    2025-04-11 11:50:57
Listing details based on information submitted to the MLS GRID as of Saturday, January 10, 2026 7:45 AM. All data is obtained from various sources and may not have been verified by broker or MLS GRID. Supplied Open House Information is subject to change without notice. All information should be independently reviewed and verified for accuracy. Properties may or may not be listed by the office/agent presenting the information.
View
Sort

Sharing

 
Pending Inspection January 8, 2026
$649,900  
3 BR    2.75 BA    3,539 SQFT  
NWMLS #2358293. Diane Lokan, John L Scott LVW
Map
 
Listing information is provided by the listing agent except as follows: BuilderB indicates that our system has grouped this listing under a home builder name that doesn't match the name provided by the listing broker. DevelopmentD indicates that our system has grouped this listing under a development name that doesn't match the name provided by the listing broker.