to
Reset
Houses
Townhouses
Condos
Land
Price
to
SQFT
to
Bdrms
to
Baths
to
Lot
to
Yr Built
to
Sold
Listed within...
Listed at least...
Offer Review
New Construction
Waterfront
Short-Sales
REO
Parking
to
Unit Flr
to
Unit Nbr
Listings
Neighborhoods
Complexes
Developments
Cities
Counties
Zip Codes
Neighborhood · Condo · Development
School District
Zip Code
City
County
Builder
Listing Numbers
Broker LAG
Boundary Lines
Labels
View
Sort
Sold Closed August 5, 2025
$1,229,000
3 Bedrooms
2 Bathrooms
2,198 Sqft House
Built 2005
4.84 Acres Lot
3-Car Garage
HOA Dues $83 / month
SALE HISTORY
List price was $1,229,000
It took 82 days to go pending.
Then 21 days to close at $1,229,000
Closed at $559/SQFT.
Amazing opportunity to own in this exclusive Frontier Airpark community! Beautiful Executive style home sited on private 5 acre parcel. Taxi your plane into the heated 3228 sqft airplane hanger with attached one bedroom suite. Enjoy one level living with large open spaces, oak hardwood floors, vaulted ceilings and plenty of windows providing for great natural light. Spacious kitchen includes updated appliances and plenty of storage options. Built in oven and wall oven, under and over cabinet lighting. Spacious primary suite with fireplace, walk in closets and spa-like bath. Extra large deck provides for easy outdoor entertaining and enjoyment. Huge walk in laundry room leads to 3 car attached garage. Built in whole house sound system.
Offer Review
No offer review date was specified
Listing source NWMLS MLS #
2362423
Listed by
Scott T. Anderson, Windermere Real Estate Co.
Tyler Anderson, Windermere Real Estate Co.
Buyer's broker
Matt Stark, Windermere R.E. Northeast, Inc
Contact our
Lake Stevens
Real Estate Lead
Buck Real Estate
Phone...
Time Adjusted Estimated Value
Assumptions: The original sale amount reflected a normal arms length sale. Any major updates would add to the value. Any damage or deferred maintenance would subtract from the value.
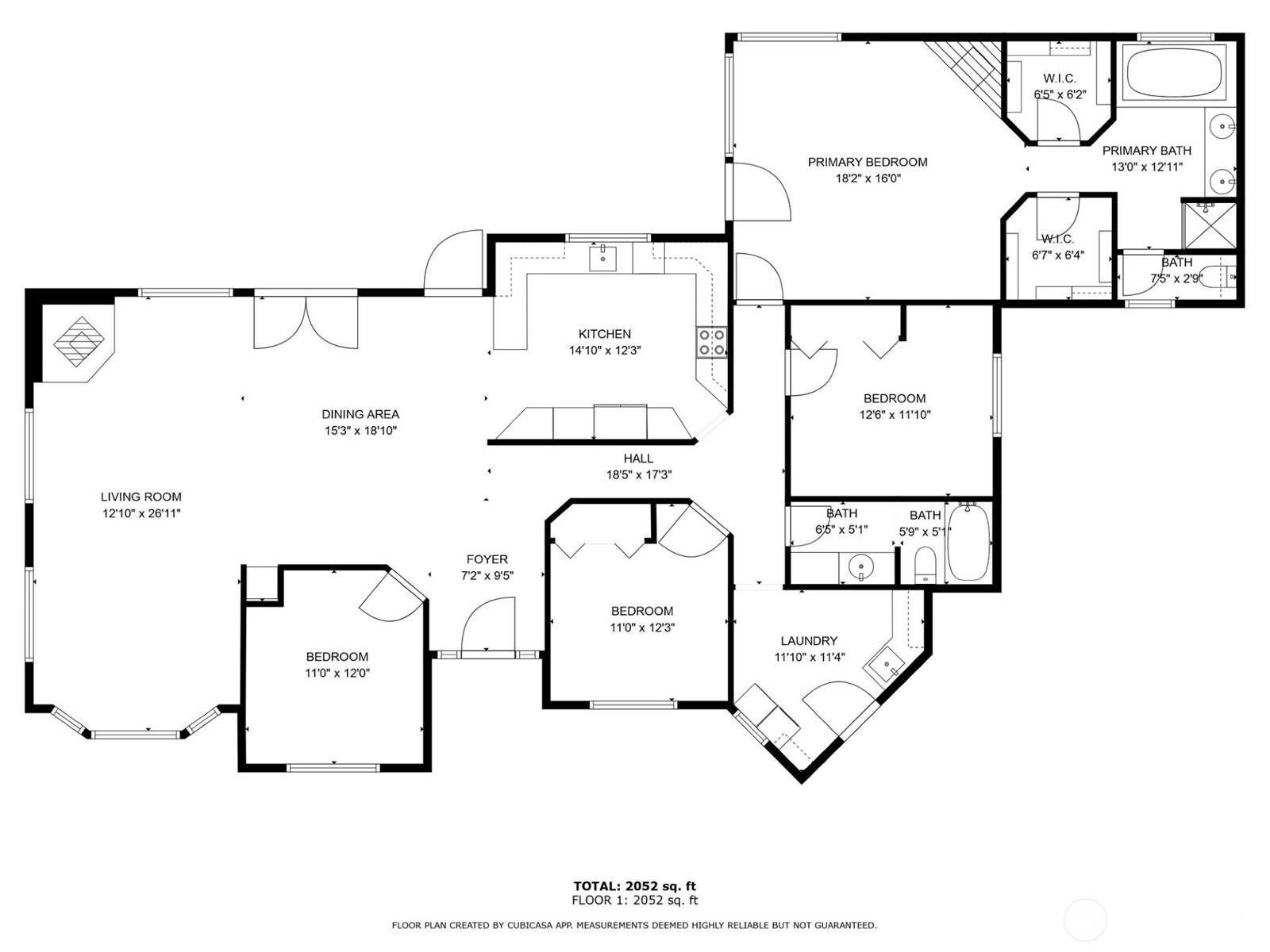
Bedroom & Bathroom Layout
MAIN
BDRM
BDRM
BDRM
FULL
BATH
FULL
BATH
Property History
Aug 06, 2025
Sold
$1,229,000
NWMLS #2362423
Jul 17, 2025
Went Pending
$1,229,000
NWMLS #2362423
Jun 10, 2025
Went Contingent
$1,229,000
NWMLS #2362423
Apr 24, 2025
Listed
$1,229,000
NWMLS #2362423
More
Listing Details
  • Sale Price
    $1,229,000
  • Closing Date
    August 5, 2025
  • Last List Price
    $1,229,000
  • Original Price
    Same
  • List Date
    April 24, 2025
  • Pending Date
    July 15, 2025
  • Days to go Pending
    82 days
  • $/sqft (Total)
    $559/sqft
  • $/sqft (Finished)
    $559/sqft
  • Listing Source
  • MLS Number
    2362423
  • Listing Broker
    Scott T. Anderson
  • Listing Office
    Windermere Real Estate Co.
  • Buyer's Broker
    Matt Stark
  • Buyer Broker's Firm
    Windermere R.E. Northeast, Inc
Monthly Payment Estimate
  • Principal and Interest
    $6,443 / month
  • HOA
    $83 / month
  • Property Taxes
    $691 / month
  • Homeowners Insurance
    $238 / month
  • TOTAL
    $7,455 / month

  • based on 20% down
    ($245,800)
  • and a
    6.85% Interest Rate
  • About:
    All calculations are estimates only and provided by Mainview LLC. Actual amounts will vary.
House Details
  • Sqft (Total)
    2,198 sqft
  • Sqft (Finished)
    2,198 sqft
  • Sqft (Unfinished)
    None
  • Property Type
    House
  • Sub Type
    1 Story
  • Bedrooms
    3 Bedrooms
  • Bathrooms
    2 Bathrooms
  • Lot
    4.84 Acres Lot
  • Lot Size Source
    Public Records
  • Lot #
    Unspecified
  • Project
    Unspecified
  • Total Stories
    1 story
  • Basement
    None
  • Sqft Source
    Public Records
Property Tax Info
  • 2025 Property Taxes
    $8,290 / year
  • No Senior Exemption
Public Parcel Data & Maps
Schools
  • School District
    Arlington
  • Elementary
    Unspecified
  • Middle
    Unspecified
  • High School
    Unspecified
HOA
  • HOA Dues
    $83 / month
  • Fees Assessed
    Annually
  • HOA Dues Include
    Unspecified
  • HOA Contact
    Unspecified
  • Management Contact
    Unspecified
Community Features
  • Community Features
    Airport/Runway
    CCRs
    Gated
Parking
  • Covered
    3-Car
  • Types
    Attached Garage
    RV Parking
  • Has Garage
    Yes
  • Nbr of Assigned Spaces
    3
Construction
  • Year Built
    2005
  • Home Builder
    Unspecified
Cooling
  • Includes
    Forced Air
    Heat Pump
Heating
  • Includes
    Forced Air
    Heat Pump
    Hot Water Recirc Pump
    Wall Unit(s)
Interior
  • Flooring
    Hardwood
    Carpet
  • Features
    Bath Off Primary
    Built-In Vacuum
    Ceiling Fan(s)
    Double Pane/Storm Window
    Dining Room
    Fireplace
    Fireplace (Primary Bedroom)
    Jetted Tub
    Skylight(s)
    Walk-In Closet(s)
    Water Heater
Property
  • Lot Features
    Dead End Street
    Paved
  • Site Features
    Airplane Hangar
    Cable TV
    Deck
    Fenced-Partially
    High Speed Internet
    RV Parking
Appliances
  • Included
    Dishwasher(s)
    Dryer(s)
    Microwave(s)
    Refrigerator(s)
    Stove(s)/Range(s)
    Washer(s)
Terms
  • Bank Owned (REO)
    No
Utilities
  • Energy
    Electric
    Propane
  • Sewer
    Septic Tank
  • Water Source
    Individual Well
Additional Info
  • Waterfront
    No
  • Air Conditioning (A/C)
    Yes
  • Buyer Broker's Compensation
    2.5%
  • MLS Area #
    Area 760
  • Number of Photos
    36
  • Last Modification Time
    Friday, September 5, 2025 5:06 AM
  • System Listing ID
    5426427
Update Info
  • Closed
    2025-08-06 09:47:53
  • Pending Or Ctg
    2025-07-17 10:57:34
  • First For Sale
    2025-04-24 22:06:40
Listing details based on information submitted to the MLS GRID as of Friday, September 5, 2025 5:06 AM. All data is obtained from various sources and may not have been verified by broker or MLS GRID. Supplied Open House Information is subject to change without notice. All information should be independently reviewed and verified for accuracy. Properties may or may not be listed by the office/agent presenting the information.
View
Sort

Sharing

 
Sold August 5, 2025
$1,229,000  
3 BR    2 BA    2,198 SQFT  
NWMLS #2362423. Scott T. Anderson, Windermere Real Estate Co.
Map
 
Listing information is provided by the listing agent except as follows: BuilderB indicates that our system has grouped this listing under a home builder name that doesn't match the name provided by the listing broker. DevelopmentD indicates that our system has grouped this listing under a development name that doesn't match the name provided by the listing broker.