to
Reset
Houses
Townhouses
Condos
Land
Price
to
SQFT
to
Bdrms
to
Baths
to
Lot
to
Yr Built
to
Sold
Listed within...
Listed at least...
Offer Review
New Construction
Waterfront
Short-Sales
REO
Parking
to
Unit Flr
to
Unit Nbr
Listings
Neighborhoods
Complexes
Developments
Cities
Counties
Zip Codes
Neighborhood · Condo · Development
School District
Zip Code
City
County
Builder
Listing Numbers
Broker LAG
Boundary Lines
Labels
View
Sort
Sold Closed July 1, 2025
$960,000
Originally $1,050,000
4 Bedrooms
2.5 Bathrooms
2,828 Sqft House
Built 2014
1.09 Acres Lot
3-Car Garage
HOA Dues $36 / month
SALE HISTORY
List price was $1,050,000
The price was later changed to $979,500.
It took 40 days to go pending.
Then 27 days to close at $960,000
Closed at $339/SQFT.
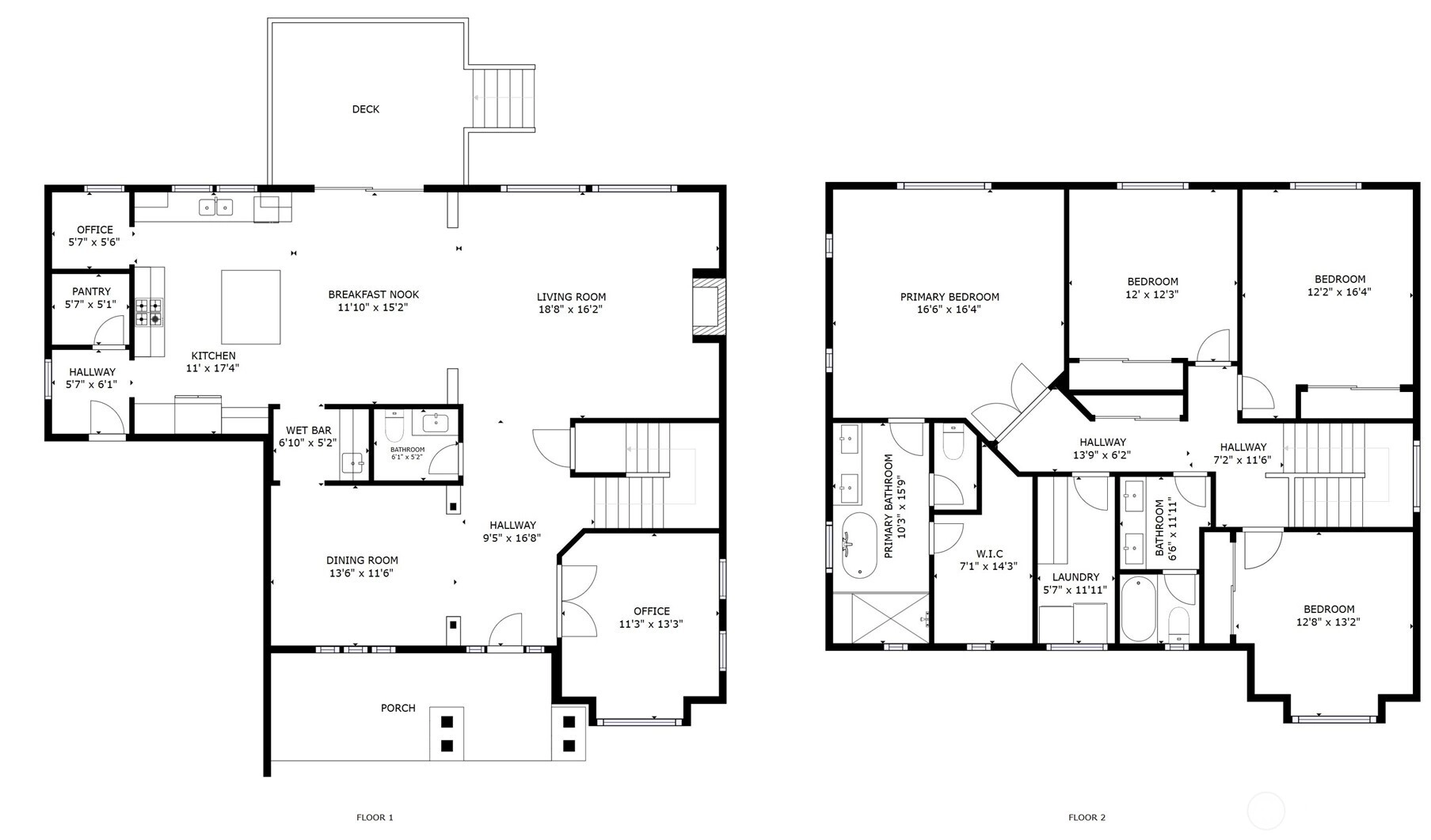
Experience refined living in this 4-bedroom + den home on a 1+ acre lot in the sought-after Eaglecrest community near Sunday Lake. With 2,828 sq ft of thoughtfully planned space, this home offers rich hardwood flooring, custom finishes, and an open-concept layout. The chef’s kitchen features slab granite counters, a butler’s pantry, walk-in pantry, and stainless appliances. The great room centers around a custom gas fireplace for cozy, elegant gatherings. Upstairs, the primary bedroom includes a 5-piece bath and large walk-in closet - plus, 3 additional bedrooms and a full bath. A covered patio invites year-round enjoyment, and the oversized 3-car garage provides ample space. Minutes from I-5, this home blends privacy with convenience.
Offer Review
No offer review date was specified
Listing source NWMLS MLS #
2365639
Listed by
Keely Jared, K2 Real Estate Associates
Buyer's broker
Lance Otto, KW North Sound
Contact our
Stanwood
Real Estate Lead
Buck Real Estate
Phone...
Time Adjusted Estimated Value
Assumptions: The original sale amount reflected a normal arms length sale. Any major updates would add to the value. Any damage or deferred maintenance would subtract from the value.
Bedroom & Bathroom Layout
SECOND
BDRM
BDRM
BDRM
BDRM
FULL
BATH
FULL
BATH
MAIN
½
BATH
Property History
Jul 02, 2025
Sold
$960,000
NWMLS #2365639
Jun 19, 2025
Went Pending
$979,500
NWMLS #2365639
May 29, 2025
Went Contingent
$979,500
NWMLS #2365639
May 13, 2025
Price Reduction arrow_downward
$979,500
NWMLS #2365639
Apr 25, 2025
Listed
$1,050,000
NWMLS #2365639
Dec 01, 2022
Price Reduction arrow_downward
$919,000
NWMLS #2016219
Nov 10, 2022
Listed
$939,000
NWMLS #2016219
More
Listing Details
  • Sale Price
    $960,000
  • Closing Date
    July 1, 2025
  • Last List Price
    $979,500
  • Original Price
    $1,050,000
  • List Date
    April 25, 2025
  • Pending Date
    June 4, 2025
  • Days to go Pending
    40 days
  • $/sqft (Total)
    $339/sqft
  • $/sqft (Finished)
    $339/sqft
  • Listing Source
  • MLS Number
    2365639
  • Listing Broker
    Keely Jared
  • Listing Office
    K2 Real Estate Associates
  • Buyer's Broker
    Lance Otto
  • Buyer Broker's Firm
    KW North Sound
Monthly Payment Estimate
  • Principal and Interest
    $5,032 / month
  • HOA
    $36 / month
  • Property Taxes
    $540 / month
  • Homeowners Insurance
    $189 / month
  • TOTAL
    $5,797 / month

  • based on 20% down
    ($192,000)
  • and a
    6.85% Interest Rate
  • About:
    All calculations are estimates only and provided by Mainview LLC. Actual amounts will vary.
House Details
  • Sqft (Total)
    2,828 sqft
  • Sqft (Finished)
    2,828 sqft
  • Sqft (Unfinished)
    None
  • Property Type
    House
  • Sub Type
    2 Story
  • Bedrooms
    4 Bedrooms
  • Bathrooms
    2.5 Bathrooms
  • Lot
    1.09 Acres Lot
  • Lot Size Source
    Realist
  • Lot #
    Unspecified
  • Project
    Unspecified
  • Total Stories
    2 stories
  • Basement
    None
  • Sqft Source
    Realist
Property Tax Info
  • 2024 Property Taxes
    $6,478 / year
  • No Senior Exemption
Public Parcel Data & Maps
Schools
  • School District
    Stanwood-Camano
  • Elementary
    Unspecified
  • Middle
    Unspecified
  • High School
    Unspecified
HOA
  • HOA Dues
    $36 / month
  • Fees Assessed
    Annually
  • HOA Dues Include
    Unspecified
  • HOA Contact
    Unspecified
  • Management Contact
    Unspecified
Community Features
  • Community Features
    CCRs
Parking
  • Covered
    3-Car
  • Types
    Attached Garage
    RV Parking
  • Has Garage
    Yes
  • Nbr of Assigned Spaces
    3
Views
  • Territorial
Construction
  • Year Built
    2014
  • Home Builder
    Unspecified
Cooling
  • Includes
    None
Heating
  • Includes
    90%+ High Efficiency
    Forced Air
Interior
  • Features
    Bath Off Primary
    Double Pane/Storm Window
    Dining Room
    Fireplace
    French Doors
    High Tech Cabling
    Walk-In Closet(s)
    Walk-In Pantry
Property
  • Lot Features
    Open Space
    Paved
  • Site Features
    Cable TV
    Gated Entry
    High Speed Internet
    Patio
    Propane
    RV Parking
Appliances
  • Included
    See Remarks
Terms
  • Bank Owned (REO)
    No
Utilities
  • Energy
    Electric
  • Sewer
    Septic Tank
  • Water Source
    Public
Additional Info
  • Waterfront
    No
  • Air Conditioning (A/C)
    No
  • Buyer Broker's Compensation
    2.5%
  • MLS Area #
    Area 770
  • Number of Photos
    32
  • Last Modification Time
    Friday, August 1, 2025 4:01 AM
  • System Listing ID
    5426916
Update Info
  • Closed
    2025-07-02 08:18:32
  • Pending Or Ctg
    2025-06-19 15:42:17
  • Price Reduction
    2025-05-13 12:20:26
  • First For Sale
    2025-04-25 16:00:09
Listing details based on information submitted to the MLS GRID as of Friday, August 1, 2025 4:01 AM. All data is obtained from various sources and may not have been verified by broker or MLS GRID. Supplied Open House Information is subject to change without notice. All information should be independently reviewed and verified for accuracy. Properties may or may not be listed by the office/agent presenting the information.
View
Sort

Sharing

 
Sold July 1, 2025
$960,000   $979,500
4 BR    2.5 BA    2,828 SQFT  
NWMLS #2365639. Keely Jared, K2 Real Estate Associates
Map
 
Listing information is provided by the listing agent except as follows: BuilderB indicates that our system has grouped this listing under a home builder name that doesn't match the name provided by the listing broker. DevelopmentD indicates that our system has grouped this listing under a development name that doesn't match the name provided by the listing broker.