to
Reset
Houses
Townhouses
Condos
Land
Price
to
SQFT
to
Bdrms
to
Baths
to
Lot
to
Yr Built
to
Sold
Listed within...
Listed at least...
Offer Review
New Construction
Waterfront
Short-Sales
REO
Parking
to
Unit Flr
to
Unit Nbr
Listings
Neighborhoods
Complexes
Developments
Cities
Counties
Zip Codes
Neighborhood · Condo · Development
School District
Zip Code
City
County
Builder
Listing Numbers
Broker LAG
Boundary Lines
Labels
View
Sort
Sold Closed October 30, 2025
$610,000
Originally $750,000
2 Bedrooms
1.75 Bathrooms
1,613 Sqft House
Built 1968
9,701 Sqft Lot
1-Car Garage
HOA Dues $45 / month
SALE HISTORY
List price was $750,000
The price was later changed to $625,000.
It took 145 days to go pending.
Then 16 days to close at $610,000
Closed at $378/SQFT.
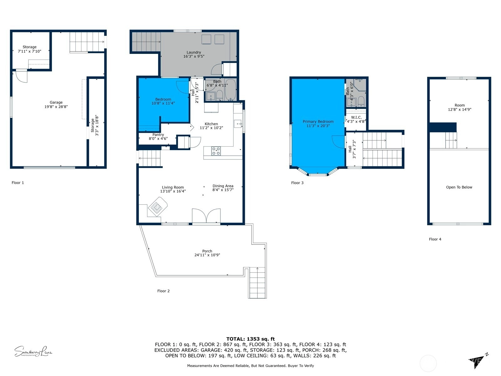
Your home on Whidbey Island awaits! This spacious 1613 sq ft home features modern updates while keeping the cozy vibes of a 1968 cabin. Large primary suite features some of the best views on the cozy window seat, upper loft area is the perfect flex space. Main floor bedroom, large laundry room and open kitchen, living, dining space takes advantage of the vaulted ceilings and natural light. Deep garage with storage room, boat house and more storage off garage. Located in the coveted Scatchet Head Community (no STR restrictions)- amenities: seasonal swimming pool, 2 boat launches, tennis & half basketball courts, clubhouse & BBQ area, playground & community green space and a spectacular 3rd of July fireworks show.
Offer Review
No offer review date was specified
Listing source NWMLS MLS #
2378249
Listed by
Jessica Hart, Windermere RE/South Whidbey
Buyer's broker
Michael Konopik, COMPASS
We don't currently have a buyer representative in this area. To be sure that you're getting objective advice, we always suggest buyers work with their own agent, someone who is not affiliated with the seller.
Bedroom & Bathroom Layout
SECOND
BDRM
¾
BATH
MAIN
BDRM
FULL
BATH
Property History
Oct 30, 2025
Sold
$610,000
NWMLS #2378249 Annualized 6.1% / yr
Oct 20, 2025
Went Pending
$625,000
NWMLS #2378249
Oct 14, 2025
Went Pending Inspection
$625,000
NWMLS #2378249
Aug 28, 2025
Price Reduction arrow_downward
$625,000
NWMLS #2378249
Aug 11, 2025
Price Reduction arrow_downward
$645,000
NWMLS #2378249
Aug 04, 2025
Price Reduction arrow_downward
$670,000
NWMLS #2378249
Jul 29, 2025
Back on Market
$695,000
NWMLS #2378249
Jul 19, 2025
Went Pending Inspection
$695,000
NWMLS #2378249
Jul 08, 2025
Price Reduction arrow_downward
$695,000
NWMLS #2378249
Jun 27, 2025
Price Reduction arrow_downward
$720,000
NWMLS #2378249
Jun 17, 2025
Price Reduction arrow_downward
$735,000
NWMLS #2378249
May 22, 2025
Listed
$750,000
NWMLS #2378249
Aug 30, 2020
Sold
$450,000
More
Listing Details
  • Sale Price
    $610,000
  • Closing Date
    October 30, 2025
  • Last List Price
    $625,000
  • Original Price
    $750,000
  • List Date
    May 22, 2025
  • Pending Date
    October 14, 2025
  • Days to go Pending
    145 days
  • $/sqft (Total)
    $378/sqft
  • $/sqft (Finished)
    $378/sqft
  • Listing Source
  • MLS Number
    2378249
  • Listing Broker
    Jessica Hart
  • Listing Office
    Windermere RE/South Whidbey
  • Buyer's Broker
    Michael Konopik
  • Buyer Broker's Firm
    COMPASS
Monthly Payment Estimate
  • Principal and Interest
    $3,198 / month
  • HOA
    $45 / month
  • Property Taxes
    $371 / month
  • Homeowners Insurance
    $124 / month
  • TOTAL
    $3,738 / month

  • based on 20% down
    ($122,000)
  • and a
    6.85% Interest Rate
  • About:
    All calculations are estimates only and provided by Mainview LLC. Actual amounts will vary.
House Details
  • Sqft (Total)
    1,613 sqft
  • Sqft (Finished)
    1,613 sqft
  • Sqft (Unfinished)
    None
  • Property Type
    House
  • Sub Type
    1 1/2 Story
  • Bedrooms
    2 Bedrooms
  • Bathrooms
    1.75 Bathrooms
  • Lot
    9,701 sqft Lot
  • Lot Size Source
    Realist
  • Lot #
    Unspecified
  • Project
    Unspecified
  • Total Stories
    2 stories
  • Basement
    None
  • Sqft Source
    Tax Records
  • Pool
    Community
Property Tax Info
  • 2025 Property Taxes
    $4,452 / year
  • No Senior Exemption
Public Parcel Data & Maps
  • County
    Island County
  • Parcel #
    S811000140360
  • County Website
    Unspecified
  • County Parcel Map
    Unspecified
  • County GIS Map
    Unspecified
  • About
    County links provided by Mainview LLC
Schools
  • School District
    South Whidbey Island
  • Elementary
    Buyer To Verify
  • Middle
    Buyer To Verify
  • High School
    Buyer To Verify
HOA
  • HOA Dues
    $45 / month
  • Fees Assessed
    Annually
  • HOA Dues Include
    Unspecified
  • HOA Contact
    Unspecified
  • Management Contact
    Unspecified
Community Features
  • Community Features
    Athletic Court
    Boat Launch
    CCRs
    Club House
    Playground
Parking
  • Covered
    1-Car
  • Types
    Attached Garage
  • Has Garage
    Yes
  • Nbr of Assigned Spaces
    1
Views
  • Sound
    Territorial
Construction
  • Year Built
    1968
  • Home Builder
    Unspecified
Cooling
  • Includes
    Forced Air
Heating
  • Includes
    Baseboard
    Forced Air
    Stove/Free Standing
    Wall Unit(s)
Interior
  • Flooring
    Ceramic Tile
    Laminate
  • Features
    Bath Off Primary
    Ceiling Fan(s)
    Fireplace
    French Doors
    Loft
    Security System
    Vaulted Ceiling(s)
    Walk-In Closet(s)
    Walk-In Pantry
    Water Heater
Property
  • Lot Features
    Dead End Street
    Paved
  • Site Features
    Deck
    High Speed Internet
    Propane
Appliances
  • Included
    Dishwasher(s)
    Dryer(s)
    Refrigerator(s)
    Washer(s)
Terms
  • Bank Owned (REO)
    No
Utilities
  • Energy
    Electric
  • Sewer
    Septic Tank
  • Water Source
    Community
Additional Info
  • Waterfront
    No
  • Air Conditioning (A/C)
    Yes
  • Buyer Broker's Compensation
    2.5%
  • MLS Area #
    Area 811
  • Number of Photos
    39
  • Last Modification Time
    Thursday, October 30, 2025 2:36 PM
  • System Listing ID
    5439098
Update Info
  • Closed
    2025-10-30 14:42:25
  • Pending Or Ctg
    2025-10-20 16:55:33
  • Price Reduction
    2025-08-28 12:49:23
  • Back On Market
    2025-07-29 11:16:09
  • First For Sale
    2025-05-22 14:16:19
Listing details based on information submitted to the MLS GRID as of Thursday, October 30, 2025 2:36 PM. All data is obtained from various sources and may not have been verified by broker or MLS GRID. Supplied Open House Information is subject to change without notice. All information should be independently reviewed and verified for accuracy. Properties may or may not be listed by the office/agent presenting the information.
View
Sort

Sharing

 
Sold October 30, 2025
$610,000   $625,000
2 BR    1.75 BA    1,613 SQFT  
NWMLS #2378249. Jessica Hart, Windermere RE/South Whidbey
Map
 
Listing information is provided by the listing agent except as follows: BuilderB indicates that our system has grouped this listing under a home builder name that doesn't match the name provided by the listing broker. DevelopmentD indicates that our system has grouped this listing under a development name that doesn't match the name provided by the listing broker.