to
Reset
Houses
Townhouses
Condos
Land
Price
to
SQFT
to
Bdrms
to
Baths
to
Lot
to
Yr Built
to
Sold
Listed within...
Listed at least...
Offer Review
New Construction
Waterfront
Short-Sales
REO
Parking
to
Unit Flr
to
Unit Nbr
Listings
Neighborhoods
Complexes
Developments
Cities
Counties
Zip Codes
Neighborhood · Condo · Development
School District
Zip Code
City
County
Builder
Listing Numbers
Broker LAG
Boundary Lines
Labels
View
Sort
Sold Closed July 9, 2025
$630,000
2 Bedrooms
2.5 Bathrooms
1,100 Sqft Condo
Floor 2
Built 1984
2 Parking Spaces
HOA Dues $346 / month
SALE HISTORY
List price was $615,000
It took 2 days to go pending.
Then 39 days to close at $630,000
Closed at $573/SQFT.
Discover this thoughtfully designed townhome in the heart of Woodinville, where modern living meets convenience. The open-concept main floor offers a seamless flow, ideal for both unwinding and entertaining. Upstairs, two private en-suite bedrooms provide comfort and privacy, with the primary bath showcasing heated floors and custom finishes for a touch of luxury. The back deck invites outdoor enjoyment, offering a peaceful spot to escape. Enjoy the convenience of a private garage and additional parking space. Ideally located just minutes from downtown, Wilmont Gateway Park, and the Sammamish River Trail, with easy access to major highways for a smooth commute. Perfect for both relaxation and convenience!
Offer Review
No offer review date was specified
Project
Sunridge
Listing source NWMLS MLS #
2381530
Listed by
Debbie Long, Windermere Real Estate/M2, LLC
Buyer's broker
Jessie L. Grandpre, Windermere Real Estate M2 LLC
Contact our
Woodinville
Real Estate Lead
John L. Scott
Phone...
Time Adjusted Estimated Value
County Wide
  • In
    King County WA
  • prices for
    Condos
  • have changed
    -4%
  • since
    Jul 9, 2025
  • so a sale price of
    $630,000
  • would be approximately this amount today
    $604,800
City Wide
  • In
    Woodinville WA
  • prices for
    Condos
  • have changed
    -12%
  • since
    Jul 9, 2025
  • so a sale price of
    $630,000
  • would be approximately this amount today
    $554,400
Assumptions: The original sale amount reflected a normal arms length sale. Any major updates would add to the value. Any damage or deferred maintenance would subtract from the value.
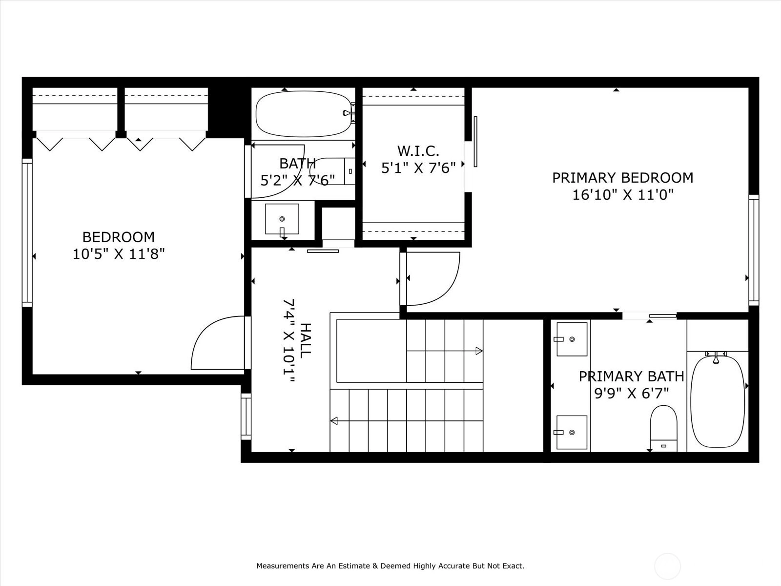
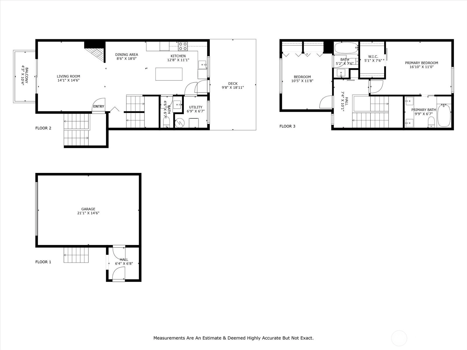
Bedroom & Bathroom Layout
SECOND
BDRM
BDRM
FULL
BATH
FULL
BATH
MAIN
½
BATH
Property History
Jul 09, 2025
Sold
$630,000
NWMLS #2381530
Jun 01, 2025
Went Pending
$615,000
NWMLS #2381530
May 29, 2025
Listed
$615,000
NWMLS #2381530
More
Listing Details
  • Sale Price
    $630,000
  • Closing Date
    July 9, 2025
  • Last List Price
    $615,000
  • Original Price
    Same
  • List Date
    May 29, 2025
  • Pending Date
    May 31, 2025
  • Days to go Pending
    2 days
  • $/sqft (Total)
    $573/sqft
  • $/sqft (Finished)
    $573/sqft
  • Listing Source
  • MLS Number
    2381530
  • Listing Broker
    Debbie Long
  • Listing Office
    Windermere Real Estate/M2, LLC
  • Buyer's Broker
    Jessie L. Grandpre
  • Buyer Broker's Firm
    Windermere Real Estate M2 LLC
Monthly Payment Estimate
  • Principal and Interest
    $3,303 / month
  • HOA
    $346 / month
  • Property Taxes
    $431 / month
  • Homeowners Insurance
    $128 / month
  • TOTAL
    $4,207 / month

  • based on 20% down
    ($126,000)
  • and a
    6.85% Interest Rate
  • About:
    All calculations are estimates only and provided by Mainview LLC. Actual amounts will vary.
Condo Details
  • Unit #
    Unspecified
  • Unit Floor
    2
  • Sqft (Total)
    1,100 sqft
  • Sqft (Finished)
    Unspecified
  • Sqft (Unfinished)
    None
  • Property Type
    Condo
  • Sub Type
    Condo (2 Levels)
  • Bedrooms
    2 Bedrooms
  • Bathrooms
    2.5 Bathrooms
  • Lot Size
    Unspecified
  • Lot Size Source
    Unspecified
  • Project
    Sunridge
  • Total Stories
    2 stories
  • Sqft Source
    Realist
Property Tax Info
  • 2024 Property Taxes
    $5,166 / year
  • No Senior Exemption
Public Parcel Data & Maps
Schools
  • School District
    Northshore
  • Elementary
    Buyer To Verify
  • Middle
    Buyer To Verify
  • High School
    Buyer To Verify
HOA
  • HOA Dues
    $346 / month
  • Fees Assessed
    Monthly
  • HOA Dues Include
    Common Area Maintenance
    Sewer
    Trash
    Water
  • Pets Allowed
    Subject to Restrictions
  • HOA Contact
    Unspecified
  • Management Contact
    Unspecified
Community Features
  • Community Features
    Athletic Court
    Club House
    Exercise Room
    Garden Space
    Outside Entry
Building
  • Name
    Sunridge
  • Units in Complex
    74
  • Units in Building
    8
  • Stories in Building
    3
Parking
  • Types
    Individual Garage
    Off Street
  • Has Garage
    Yes
  • Nbr of Assigned Spaces
    2
  • Parking Space Info
    53
Views
  • Territorial
Construction
  • Year Built
    1984
  • Home Builder
    Unspecified
Cooling
  • Includes
    None
Heating
  • Includes
    Baseboard
    Forced Air
    Radiant
Interior
  • Flooring
    Laminate
    Slate
    Carpet
  • Features
    Cooking-Electric
    Dryer-Electric
    Fireplace
    Ice Maker
    Primary Bathroom
    Skylight(s)
    Walk-In Closet(s)
    Washer
    Water Heater
Property
  • Lot Features
    Paved
Appliances
  • Included
    Dishwasher(s)
    Disposal
    Dryer(s)
    Refrigerator(s)
    Stove(s)/Range(s)
    Washer(s)
Terms
  • Bank Owned (REO)
    No
Utilities
  • Energy
    Electric
Additional Info
  • Waterfront
    No
  • Air Conditioning (A/C)
    No
  • Buyer Broker's Compensation
    2.5%
  • MLS Area #
    Area 600
  • Number of Photos
    39
  • Last Modification Time
    Saturday, August 9, 2025 4:04 AM
  • System Listing ID
    5441133
Update Info
  • Closed
    2025-07-09 16:27:56
  • Pending Or Ctg
    2025-06-01 16:51:45
  • First For Sale
    2025-05-29 04:02:05
Listing details based on information submitted to the MLS GRID as of Saturday, August 9, 2025 4:04 AM. All data is obtained from various sources and may not have been verified by broker or MLS GRID. Supplied Open House Information is subject to change without notice. All information should be independently reviewed and verified for accuracy. Properties may or may not be listed by the office/agent presenting the information.
View
Sort

Sharing

 
Sold July 9, 2025
$630,000   $615,000
2 BR    2.5 BA    1,100 SQFT  
NWMLS #2381530. Debbie Long, Windermere Real Estate/M2, LLC
Map
 
Listing information is provided by the listing agent except as follows: BuilderB indicates that our system has grouped this listing under a home builder name that doesn't match the name provided by the listing broker. DevelopmentD indicates that our system has grouped this listing under a development name that doesn't match the name provided by the listing broker.