to
Reset
Houses
Townhouses
Condos
Land
Price
to
SQFT
to
Bdrms
to
Baths
to
Lot
to
Yr Built
to
Sold
Listed within...
Listed at least...
Offer Review
New Construction
Waterfront
Short-Sales
REO
Parking
to
Unit Flr
to
Unit Nbr
Listings
Neighborhoods
Complexes
Developments
Cities
Counties
Zip Codes
Neighborhood · Condo · Development
School District
Zip Code
City
County
Builder
Listing Numbers
Broker LAG
Boundary Lines
Labels
View
Sort
Sold Closed June 30, 2025
$620,000
Originally $649,950
4 Bedrooms
2.5 Bathrooms
2,449 Sqft House
Built 2013
6,970 Sqft Lot
2-Car Garage
HOA Dues $51 / month
SALE HISTORY
List price was $649,950
The price was later changed to $625,000.
It took 11 days to go pending.
Then 20 days to close at $620,000
Closed at $253/SQFT.
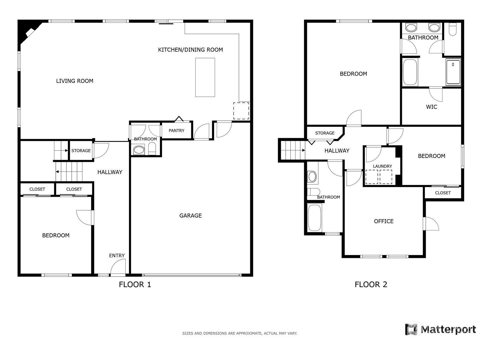
Spacious, stylish & move-in ready 4 bedroom home in Digby Heights. Step inside to soaring ceilings, a grand entry & open-concept living. A flexible den/4th bedroom on main level. Huge great room with gas fireplace, dining space and opens to kitchen. The kitchen is ideal for gathering, featuring granite counters, a large island & walk-in pantry. Upstairs, find 3 generously sized bedrooms including a vaulted primary suite with a 5-piece bath & walk-in closet, & a convenient laundry room. Outside there's room to play, entertain on the expanded patio, garden in the beautifully landscaped backyard, or enjoy privacy with greenspace behind. A 2-car garage & extra storage complete the package. Minutes from shopping, parks, and medical facilities.
Offer Review
No offer review date was specified
Listing source NWMLS MLS #
2383022
Listed by
Matthew J Salit, Redfin
Buyer's broker
Veronica rincon, ReLuTy Corp
Contact our
Mount Vernon
Real Estate Lead
Buck Real Estate
Phone...
Time Adjusted Estimated Value
Assumptions: The original sale amount reflected a normal arms length sale. Any major updates would add to the value. Any damage or deferred maintenance would subtract from the value.
Bedroom & Bathroom Layout
SECOND
BDRM
BDRM
BDRM
FULL
BATH
FULL
BATH
MAIN
BDRM
½
BATH
Property History
Jun 30, 2025
Sold
$620,000
NWMLS #2383022 Annualized 7% / yr
Jun 10, 2025
Went Pending
$625,000
NWMLS #2383022
Jun 07, 2025
Price Reduction arrow_downward
$625,000
NWMLS #2383022
May 30, 2025
Listed
$649,950
NWMLS #2383022
May 10, 2020
Sold
$438,375
More
Listing Details
  • Sale Price
    $620,000
  • Closing Date
    June 30, 2025
  • Last List Price
    $625,000
  • Original Price
    $649,950
  • List Date
    May 30, 2025
  • Pending Date
    June 10, 2025
  • Days to go Pending
    11 days
  • $/sqft (Total)
    $253/sqft
  • $/sqft (Finished)
    $253/sqft
  • Listing Source
  • MLS Number
    2383022
  • Listing Broker
    Matthew J Salit
  • Listing Office
    Redfin
  • Buyer's Broker
    Veronica rincon
  • Buyer Broker's Firm
    ReLuTy Corp
Monthly Payment Estimate
  • Principal and Interest
    $3,250 / month
  • HOA
    $51 / month
  • Property Taxes
    $515 / month
  • Homeowners Insurance
    $126 / month
  • TOTAL
    $3,942 / month

  • based on 20% down
    ($124,000)
  • and a
    6.85% Interest Rate
  • About:
    All calculations are estimates only and provided by Mainview LLC. Actual amounts will vary.
House Details
  • Sqft (Total)
    2,449 sqft
  • Sqft (Finished)
    2,449 sqft
  • Sqft (Unfinished)
    None
  • Property Type
    House
  • Sub Type
    2 Story
  • Bedrooms
    4 Bedrooms
  • Bathrooms
    2.5 Bathrooms
  • Lot
    6,970 sqft Lot
  • Lot Size Source
    Realist - Buyer to Verify
  • Lot #
    Unspecified
  • Project
    Unspecified
  • Total Stories
    2 stories
  • Basement
    None
  • Sqft Source
    Realist - Buyer to Verify
Property Tax Info
  • 2025 Property Taxes
    $6,175 / year
  • No Senior Exemption
Public Parcel Data & Maps
  • County
    Skagit County
  • Parcel #
    P128516
  • County Website
    Unspecified
  • County Parcel Map
    Unspecified
  • County GIS Map
    Unspecified
  • About
    County links provided by Mainview LLC
Schools
  • School District
    Mount Vernon
  • Elementary
    Little Mtn Elem
  • Middle
    Mount Baker Mid
  • High School
    Mount Vernon High
HOA
  • HOA Dues
    $51 / month
  • Fees Assessed
    Monthly
  • HOA Dues Include
    Unspecified
  • HOA Contact
    Unspecified
  • Management Contact
    Unspecified
Community Features
  • Community Features
    CCRs
Parking
  • Covered
    2-Car
  • Types
    Driveway
    Attached Garage
  • Has Garage
    Yes
  • Nbr of Assigned Spaces
    2
Views
  • Territorial
Construction
  • Year Built
    2013
  • Home Builder
    Unspecified
Cooling
  • Includes
    None
Heating
  • Includes
    Forced Air
Interior
  • Flooring
    Hardwood
    Vinyl
    Carpet
  • Features
    Bath Off Primary
    Double Pane/Storm Window
    Dining Room
    Fireplace
    Vaulted Ceiling(s)
    Walk-In Closet(s)
    Walk-In Pantry
Property
  • Lot Features
    Curbs
    Paved
    Sidewalk
  • Site Features
    Fenced-Fully
    High Speed Internet
    Patio
Appliances
  • Included
    Dishwasher(s)
    Disposal
    Dryer(s)
    Microwave(s)
    Refrigerator(s)
    Stove(s)/Range(s)
    Washer(s)
Terms
  • Bank Owned (REO)
    No
Utilities
  • Energy
    Electric
    Natural Gas
  • Sewer
    Sewer Connected
  • Water Source
    Public
Additional Info
  • Waterfront
    No
  • Air Conditioning (A/C)
    No
  • Buyer Broker's Compensation
    2.5%
  • MLS Area #
    Area 835
  • Number of Photos
    34
  • Last Modification Time
    Thursday, July 31, 2025 4:05 AM
  • System Listing ID
    5442740
Update Info
  • Closed
    2025-06-30 16:24:27
  • Pending Or Ctg
    2025-06-10 21:39:01
  • Price Reduction
    2025-06-07 17:51:29
  • First For Sale
    2025-05-30 16:04:35
Listing details based on information submitted to the MLS GRID as of Thursday, July 31, 2025 4:05 AM. All data is obtained from various sources and may not have been verified by broker or MLS GRID. Supplied Open House Information is subject to change without notice. All information should be independently reviewed and verified for accuracy. Properties may or may not be listed by the office/agent presenting the information.
View
Sort

Sharing

 
Sold June 30, 2025
$620,000   $625,000
4 BR    2.5 BA    2,449 SQFT  
NWMLS #2383022. Matthew J Salit, Redfin
Map
 
Listing information is provided by the listing agent except as follows: BuilderB indicates that our system has grouped this listing under a home builder name that doesn't match the name provided by the listing broker. DevelopmentD indicates that our system has grouped this listing under a development name that doesn't match the name provided by the listing broker.