to
Reset
Houses
Townhouses
Condos
Land
Price
to
SQFT
to
Bdrms
to
Baths
to
Lot
to
Yr Built
to
Sold
Listed within...
Listed at least...
Offer Review
New Construction
Waterfront
Short-Sales
REO
Parking
to
Unit Flr
to
Unit Nbr
Listings
Neighborhoods
Complexes
Developments
Cities
Counties
Zip Codes
Neighborhood · Condo · Development
School District
Zip Code
City
County
Builder
Listing Numbers
Broker LAG
Boundary Lines
Labels
View
Sort
Sold Closed July 11, 2025
$506,115
3 Bedrooms
2 Bathrooms
1,368 Sqft House
Built 2005
6,922 Sqft Lot
2-Car Garage
SALE HISTORY
List price was $489,000
It took 7 days to go pending.
Then 29 days to close at $506,115
Closed at $370/SQFT.
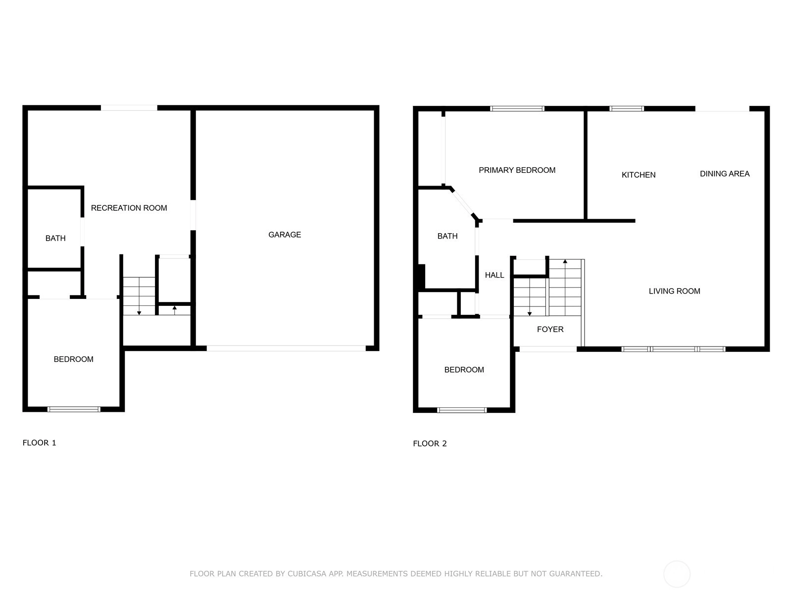
Just minutes from Horseshoe Lake and the golf course, this home offers a spacious upper-level layout with an open living room, kitchen, and dining area that flows onto a back deck—perfect for grilling. Hardwood floors highlight the kitchen and stairs. Two bedrooms and a full bath are located upstairs. The lower level features a cozy family room, an additional bedroom, full bath, storage, and access to a large backyard with a patio, lawn, and room to play or garden. Recent updates include a new roof, new carpet, and serviced A/C in 2024. Located on a cul-de-sac, the home sits on a fully fenced lot with a finished garage, RV parking, and extended driveway for extra parking.
Offer Review
No offer review date was specified
Listing source NWMLS MLS #
2387785
Listed by
Bonnie Daybell, Windermere Prof Partners
Kelly Kleven, Windermere Prof Partners
Buyer's broker
Lani Fisher, eXp Realty
Contact our
Gig Harbor
Real Estate Lead
RE/MAX Northwest Realtors
Phone...
Time Adjusted Estimated Value
Assumptions: The original sale amount reflected a normal arms length sale. Any major updates would add to the value. Any damage or deferred maintenance would subtract from the value.
Bedroom & Bathroom Layout
SECOND
BDRM
BDRM
FULL
BATH
LOWER
BDRM
FULL
BATH
Property History
Jul 15, 2025
Sold
$506,115
NWMLS #2387785
Jun 20, 2025
Went Pending
$489,000
NWMLS #2387785
Jun 12, 2025
Went Pending Inspection
$489,000
NWMLS #2387785
Jun 10, 2025
Back on Market
$489,000
NWMLS #2387785
Jun 06, 2025
Went Pending Inspection
$489,000
NWMLS #2387785
Jun 05, 2025
Listed
$489,000
NWMLS #2387785
More
Listing Details
  • Sale Price
    $506,115
  • Closing Date
    July 11, 2025
  • Last List Price
    $489,000
  • Original Price
    Same
  • List Date
    June 5, 2025
  • Pending Date
    June 12, 2025
  • Days to go Pending
    7 days
  • $/sqft (Total)
    $370/sqft
  • $/sqft (Finished)
    $370/sqft
  • Listing Source
  • MLS Number
    2387785
  • Listing Broker
    Bonnie Daybell
  • Listing Office
    Windermere Prof Partners
  • Buyer's Broker
    Lani Fisher
  • Buyer Broker's Firm
    eXp Realty
Monthly Payment Estimate
  • Principal and Interest
    $2,653 / month
  • Property Taxes
    $303 / month
  • Homeowners Insurance
    $105 / month
  • TOTAL
    $3,061 / month

  • based on 20% down
    ($101,223)
  • and a
    6.85% Interest Rate
  • About:
    All calculations are estimates only and provided by Mainview LLC. Actual amounts will vary.
House Details
  • Sqft (Total)
    1,368 sqft
  • Sqft (Finished)
    1,368 sqft
  • Sqft (Unfinished)
    None
  • Property Type
    House
  • Sub Type
    Split Entry
  • Bedrooms
    3 Bedrooms
  • Bathrooms
    2 Bathrooms
  • Lot
    6,922 sqft Lot
  • Lot Size Source
    Realist
  • Lot #
    Unspecified
  • Project
    Horseshoe Lake Estates
  • Total Stories
    2 stories
  • Sqft Source
    Realist
Property Tax Info
  • 2025 Property Taxes
    $3,640 / year
  • No Senior Exemption
Public Parcel Data & Maps
Schools
  • School District
    Peninsula
  • Elementary
    Minter Creek Elem
  • Middle
    Key Peninsula Mid
  • High School
    Peninsula High
HOA
  • HOA Dues
    Unspecified
  • Fees Assessed
    Unspecified
  • HOA Dues Include
    Unspecified
  • HOA Contact
    Unspecified
  • Management Contact
    Unspecified
Parking
  • Covered
    2-Car
  • Types
    Attached Garage
    RV Parking
  • Has Garage
    Yes
  • Nbr of Assigned Spaces
    2
Construction
  • Year Built
    2005
  • Home Builder
    Unspecified
Cooling
  • Includes
    Central A/C
Heating
  • Includes
    Forced Air
Interior
  • Flooring
    Ceramic Tile
    Hardwood
    Laminate
  • Features
    Bath Off Primary
    Ceiling Fan(s)
    Double Pane/Storm Window
    Vaulted Ceiling(s)
    Water Heater
Property
  • Lot Features
    Cul-De-Sac
    Dead End Street
    Paved
  • Site Features
    Cable TV
    Deck
    Fenced-Fully
    High Speed Internet
    RV Parking
Appliances
  • Included
    Dishwasher(s)
    Dryer(s)
    Microwave(s)
    Refrigerator(s)
    Stove(s)/Range(s)
    Washer(s)
Terms
  • Bank Owned (REO)
    No
Utilities
  • Energy
    Electric
  • Sewer
    Septic Tank
  • Water Source
    Public
Additional Info
  • Waterfront
    No
  • Air Conditioning (A/C)
    Yes
  • Buyer Broker's Compensation
    2.5%
  • MLS Area #
    Area 2
  • Number of Photos
    34
  • Last Modification Time
    Monday, August 11, 2025 4:02 AM
  • System Listing ID
    5444823
Update Info
  • Closed
    2025-07-15 09:52:01
  • Pending Or Ctg
    2025-06-20 18:36:28
  • Back On Market
    2025-06-10 18:37:11
  • First For Sale
    2025-06-05 10:43:07
Listing details based on information submitted to the MLS GRID as of Monday, August 11, 2025 4:02 AM. All data is obtained from various sources and may not have been verified by broker or MLS GRID. Supplied Open House Information is subject to change without notice. All information should be independently reviewed and verified for accuracy. Properties may or may not be listed by the office/agent presenting the information.
View
Sort

Sharing

 
Sold July 11, 2025
$506,115   $489,000
3 BR    2 BA    1,368 SQFT  
NWMLS #2387785. Bonnie Daybell, Windermere Prof Partners
Map
 
Listing information is provided by the listing agent except as follows: BuilderB indicates that our system has grouped this listing under a home builder name that doesn't match the name provided by the listing broker. DevelopmentD indicates that our system has grouped this listing under a development name that doesn't match the name provided by the listing broker.