to
Reset
Houses
Townhouses
Condos
Land
Price
to
SQFT
to
Bdrms
to
Baths
to
Lot
to
Yr Built
to
Sold
Listed within...
Listed at least...
Offer Review
New Construction
Waterfront
Short-Sales
REO
Parking
to
Unit Flr
to
Unit Nbr
Listings
Neighborhoods
Complexes
Developments
Cities
Counties
Zip Codes
Neighborhood · Condo · Development
School District
Zip Code
City
County
Builder
Listing Numbers
Broker LAG
Boundary Lines
Labels
View
Sort
For Sale 142 Days Online
$1,325,000
Originally $1,425,000
5 Bedrooms
2.5 Bathrooms
4,810 Sqft House (4,610 Finished)
Built 1940
1.07 Acres Lot
2-Car Garage
A remarkable home boasting large open living spaces w/timeless character with attention to detail. On a gorgeous 1-arce natural backdrop w/partial view of the Sound. Seller offering rate buy down on this 5 bdrm, 2.5 baths beauty that has been renovated! The main floor has a chef's kitchen, lg dining space w/built-ins, a bdrm & full bath, a wood fireplace for cozy evenings. Refinished hardwood floors span the main floor. The 2nd floor offers 2bdrms & 3/4 bath. The lower level offers a large space w/a projector screen & surround sound plus a kitchenette & 1bdrm & lg office/bdrm perfect for multi-generation living or guests, & extra storage behind the hidden door. New roof, windows & so much more! A hidden gem waiting for you to discover!
Offer Review
Will review offers when submitted
Listing source NWMLS MLS #
2395571
Listed by
Laurie Young, Abbey Realty Inc
Contact our
Burien
Real Estate Lead
TPG Realty | Keller Williams
Phone...
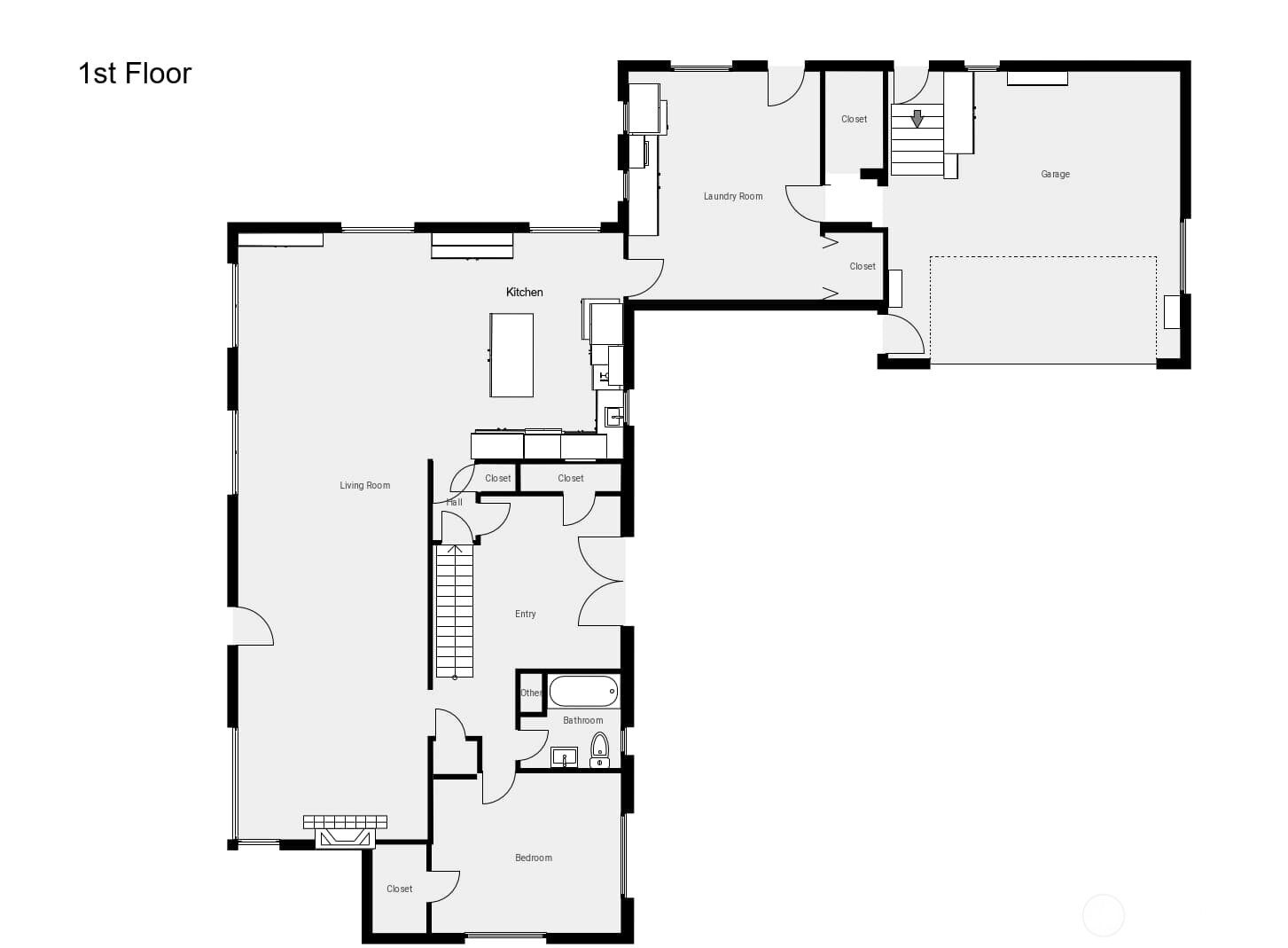
Bedroom & Bathroom Layout
SECOND
BDRM
BDRM
¾
BATH
MAIN
BDRM
FULL
BATH
LOWER
BDRM
BDRM
¾
BATH
Property History
Nov 07, 2025
Price Reduction arrow_downward
$1,325,000
NWMLS #2395571
Oct 10, 2025
Price Reduction arrow_downward
$1,350,000
NWMLS #2395571
Sep 19, 2025
Price Reduction arrow_downward
$1,375,000
NWMLS #2395571
Aug 14, 2025
Price Reduction arrow_downward
$1,395,000
NWMLS #2395571
Jun 27, 2025
Listed
$1,425,000
NWMLS #2395571
Nov 25, 2014
Sold
$390,000
More
Listing Details
  • Status
    For Sale
  • Price
    $1,325,000
  • Original Price
    $1,425,000
  • List Date
    June 27, 2025
  • Last Status Change
    June 27, 2025
  • Last Update
    November 12, 2025
  • Days on Market
    142 Days
  • Cumulative DOM
    142 Days
  • $/sqft (Total)
    $275/sqft
  • $/sqft (Finished)
    $287/sqft
  • Listing Source
  • MLS Number
    2395571
  • Listing Broker
    Laurie Young
  • Listing Office
    Abbey Realty Inc
Monthly Payment Estimate
  • Principal and Interest
    $6,946 / month
  • Property Taxes
    $768 / month
  • Homeowners Insurance
    $255 / month
  • TOTAL
    $7,969 / month

  • based on 20% down
    ($265,000)
  • and a
    6.85% Interest Rate
  • About:
    All calculations are estimates only and provided by Mainview LLC. Actual amounts will vary.
House Details
  • Sqft (Total)
    4,810 sqft
  • Sqft (Finished)
    4,610 sqft
  • Sqft (Unfinished)
    200 sqft
  • Property Type
    House
  • Sub Type
    2 Stories + Basement
  • Bedrooms
    5 Bedrooms
  • Bathrooms
    2.5 Bathrooms
  • Lot
    1.07 Acres Lot
  • Lot Size Source
    Public Records
  • Lot #
    Unspecified
  • Project
    Unspecified
  • Total Stories
    3 stories
  • Basement
    Daylight
  • Sqft Source
    Public Records
Property Tax Info
  • 2025 Property Taxes
    $9,219 / year
  • No Senior Exemption
Public Parcel Data & Maps
Schools
  • School District
    Highline
  • Elementary
    Shorewood Elem
  • Middle
    Buyer To Verify
  • High School
    Buyer To Verify
HOA
  • HOA Dues
    Unspecified
  • Fees Assessed
    Unspecified
  • HOA Dues Include
    Unspecified
  • HOA Contact
    Unspecified
  • Management Contact
Parking
  • Covered
    2-Car
  • Types
    Attached Garage
    RV Parking
  • Has Garage
    Yes
  • Nbr of Assigned Spaces
    2
Construction
  • Year Built
    1940
  • Home Builder
    Unspecified
Cooling
  • Includes
    90%+ High Efficiency
    Heat Pump
Heating
  • Includes
    90%+ High Efficiency
    Heat Pump
    Hot Water Recirc Pump
    Wall Unit(s)
Interior
  • Flooring
    Ceramic Tile
    Hardwood
    Vinyl Plank
    Carpet
  • Features
    Double Pane/Storm Window
    Dining Room
    Fireplace
    French Doors
    Security System
    Water Heater
Property
  • Lot Features
    Adjacent to Public Land
    Dead End Street
    Paved
  • Site Features
    Cable TV
    Deck
    Fenced-Fully
    Gated Entry
    Outbuildings
    Patio
    Propane
    RV Parking
Appliances
  • Included
    Dishwasher(s)
    Disposal
    Dryer(s)
    Microwave(s)
    Refrigerator(s)
    Stove(s)/Range(s)
    Washer(s)
Terms
  • 3rd Party Approval Required)
    No
  • Bank Owned (REO)
    No
  • Complex FHA Availability
    Unspecified
  • Potential Terms
    Cash Out
    Conventional
Utilities
  • Energy
    Electric
    Propane
  • Sewer
    Sewer Connected
  • Water Source
    Public
Additional Info
  • Waterfront
    No
  • Air Conditioning (A/C)
    Yes
  • Buyer Broker's Compensation
    3.0%
  • MLS Area #
    Area 130
  • Number of Photos
    40
  • Last Modification Time
    Wednesday, November 12, 2025 10:43 AM
  • System Listing ID
    5454564
Update Info
  • Price Reduction
    2025-11-07 10:49:10
  • First For Sale
    2025-06-27 09:59:09
Listing details based on information submitted to the MLS GRID as of Wednesday, November 12, 2025 10:43 AM. All data is obtained from various sources and may not have been verified by broker or MLS GRID. Supplied Open House Information is subject to change without notice. All information should be independently reviewed and verified for accuracy. Properties may or may not be listed by the office/agent presenting the information.
View
Sort

Sharing

 
For Sale 142 Days Online
$1,325,000     ▼ Price Reduction $25K
5 BR    2.5 BA    4,810 SQFT  
Offer Review: Anytime
NWMLS #2395571. Laurie Young, Abbey Realty Inc
Map
 
Listing information is provided by the listing agent except as follows: BuilderB indicates that our system has grouped this listing under a home builder name that doesn't match the name provided by the listing broker. DevelopmentD indicates that our system has grouped this listing under a development name that doesn't match the name provided by the listing broker.