to
Reset
Houses
Townhouses
Condos
Land
Price
to
SQFT
to
Bdrms
to
Baths
to
Lot
to
Yr Built
to
Sold
Listed within...
Listed at least...
Offer Review
New Construction
Waterfront
Short-Sales
REO
Parking
to
Unit Flr
to
Unit Nbr
Listings
Neighborhoods
Complexes
Developments
Cities
Counties
Zip Codes
Neighborhood · Condo · Development
School District
Zip Code
City
County
Builder
Listing Numbers
Broker LAG
Boundary Lines
Labels
View
Sort
For Sale 108 Days Online
$1,550,000
6 Bedrooms
2.75 Bathrooms
3,830 Sqft House
Built 1904
4,311 Sqft Lot
1-Car Garage
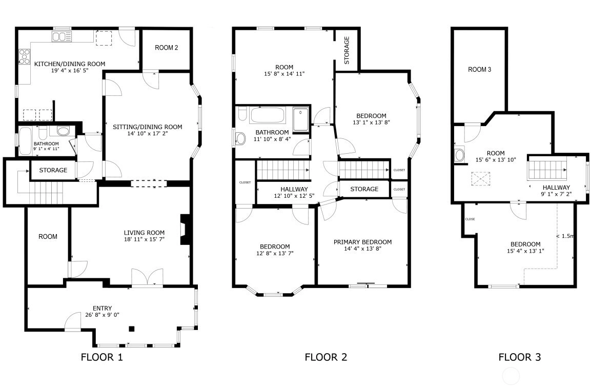
Here's a grand old Craftsman Capitol Hill duplex in a prime location! There's a lot of potential here with below-market rents and month-to-month tenants. The upper unit is three stories with 6 bedrooms and views of downtown. The lower basement unit is a studio. With lots of unfinished basement square footage, there's potential to add more rentable square footage. Parking for two cars off the alley. -- OR BUILD! -- This 4,311 square-foot corner lot, with alley access, is zoned LR3 with nearly shovel-ready plans by Hybrid Architecture for 5 duplex units with 3 parking spots (4 townhomes and a single-family home.)
Offer Review
Will review offers when submitted
Listing source NWMLS MLS #
2390705
Listed by
Matt Goyer, Urban Living
Contact our
Capitol Hill
Real Estate Lead
John L. Scott
Phone...
Bedroom & Bathroom Layout
SECOND
BDRM
BDRM
BDRM
BDRM
BDRM
FULL
BATH
MAIN
BDRM
FULL
BATH
LOWER
¾
BATH
Property History
Jun 30, 2025
Listed
$1,550,000
NWMLS #2390705
Oct 03, 2019
Sold
$1,210,000
NWMLS #1486356 Annualized 6.4% / yr
Dec 09, 2018
Sold
$1,150,000
More
Listing Details
  • Status
    For Sale
  • Price
    $1,550,000
  • Original Price
    Same as current
  • List Date
    June 30, 2025
  • Last Status Change
    June 30, 2025
  • Last Update
    July 22, 2025
  • Days on Market
    108 Days
  • Cumulative DOM
    108 Days
  • $/sqft (Total)
    $405/sqft
  • $/sqft (Finished)
    $405/sqft
  • Listing Source
  • MLS Number
    2390705
  • Listing Broker
    Matt Goyer
  • Listing Office
    Urban Living
Monthly Payment Estimate
  • Principal and Interest
    $8,125 / month
  • Property Taxes
    $1,346 / month
  • Homeowners Insurance
    $297 / month
  • TOTAL
    $9,768 / month

  • based on 20% down
    ($310,000)
  • and a
    6.85% Interest Rate
  • About:
    All calculations are estimates only and provided by Mainview LLC. Actual amounts will vary.
House Details
  • Sqft (Total)
    3,830 sqft
  • Sqft (Finished)
    3,830 sqft
  • Sqft (Unfinished)
    None
  • Property Type
    House
  • Sub Type
    2 Stories + Basement
  • Bedrooms
    6 Bedrooms
  • Bathrooms
    2.75 Bathrooms
  • Lot
    4,311 sqft Lot
  • Lot Size Source
    County
  • Lot #
    13
  • Project
    Unspecified
  • Total Stories
    3 stories
  • Basement
    Partially Finished
  • Sqft Source
    See remarks
Property Tax Info
  • 2025 Property Taxes
    $16,148 / year
  • No Senior Exemption
Public Parcel Data & Maps
Schools
  • School District
    Seattle
  • Elementary
    Lowell
  • Middle
    Meany Mid
  • High School
    Garfield High
HOA
  • HOA Dues
    Unspecified
  • Fees Assessed
    Unspecified
  • HOA Dues Include
    Unspecified
  • HOA Contact
    Unspecified
  • Management Contact
Parking
  • Covered
    1-Car
  • Types
    Detached Carport
  • Has Garage
    Yes
  • Nbr of Assigned Spaces
    1
  • Carport Stalls
    1
Views
  • City
    Mountain(s)
Construction
  • Year Built
    1904
  • Home Builder
    Unspecified
Cooling
  • Includes
    None
Heating
  • Includes
    Forced Air
Interior
  • Flooring
    Bamboo/Cork
    Concrete
    Hardwood
    Laminate
  • Features
    Dining Room
    Fireplace
    Skylight(s)
Property
  • Lot Features
    Alley
    Corner Lot
    Paved
    Sidewalk
  • Site Features
    Cable TV
    Deck
    Gas Available
    High Speed Internet
    Patio
Appliances
  • Included
    Dishwasher(s)
    Dryer(s)
    Microwave(s)
    Refrigerator(s)
    Stove(s)/Range(s)
    Washer(s)
Terms
  • 3rd Party Approval Required)
    No
  • Bank Owned (REO)
    No
  • Complex FHA Availability
    Unspecified
  • Potential Terms
    Conventional
Utilities
  • Energy
    Electric
    Natural Gas
    Wood
  • Sewer
    Available
    Sewer Connected
  • Water Source
    Public
    See Remarks
Additional Info
  • Waterfront
    No
  • Air Conditioning (A/C)
    No
  • Buyer Broker's Compensation
    2.5%
  • MLS Area #
    Area 390
  • Number of Photos
    17
  • Last Modification Time
    Tuesday, July 22, 2025 1:27 PM
  • System Listing ID
    5455344
Update Info
  • First For Sale
    2025-06-30 11:26:10
Listing details based on information submitted to the MLS GRID as of Tuesday, July 22, 2025 1:27 PM. All data is obtained from various sources and may not have been verified by broker or MLS GRID. Supplied Open House Information is subject to change without notice. All information should be independently reviewed and verified for accuracy. Properties may or may not be listed by the office/agent presenting the information.
View
Sort

Sharing

 
For Sale 108 Days Online
$1,550,000  
6 BR    2.75 BA    3,830 SQFT  
Offer Review: Anytime
NWMLS #2390705. Matt Goyer, Urban Living
Map
 
Listing information is provided by the listing agent except as follows: BuilderB indicates that our system has grouped this listing under a home builder name that doesn't match the name provided by the listing broker. DevelopmentD indicates that our system has grouped this listing under a development name that doesn't match the name provided by the listing broker.