to
Reset
Houses
Townhouses
Condos
Land
Price
to
SQFT
to
Bdrms
to
Baths
to
Lot
to
Yr Built
to
Sold
Listed within...
Listed at least...
Offer Review
New Construction
Waterfront
Short-Sales
REO
Parking
to
Unit Flr
to
Unit Nbr
Listings
Neighborhoods
Complexes
Developments
Cities
Counties
Zip Codes
Neighborhood · Condo · Development
School District
Zip Code
City
County
Builder
Listing Numbers
Broker LAG
Boundary Lines
Labels
View
Sort
For Sale 164 Days Online
$785,900
Originally $799,900
3 Bedrooms
2.5 Bathrooms
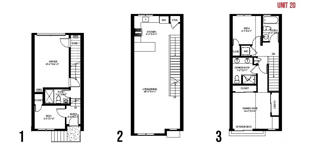
1,432 Sqft Townhome
Floor 1
New Construction
Built 2025
1 Parking Space
HOA Dues $47 / month
2.875% Interest Rate! Shelter Homes' 30 YR FIXED rate of 5.875% jumpstarted w/ a 3-2-1 Buy Down! Year 2=3.875%, Yr 3=4.875%! This standout 3-bedroom home spans 1,432 square feet & is one of only 2 homes in the community w/ a private, attached GARAGE-perfect for storage, security, & ease. Tucked into the heart of Greenwood, E:M blends modern style w/ natural warmth—striking white façades are softened w/ organic earth-tone details, creating a calm & welcoming atmosphere. Inside, sleek stainless steel appliances, luxurious finishes & efficient ductless mini-split systems. Generous open-concept living & dining areas, ample built-ins; ensuite baths add to the home's thoughtful design. A Bed on entry level Don't miss the floor2ceiling windows!
Offer Review
Will review offers when submitted
Project
Elm
Listing source NWMLS MLS #
2373859
Listed by
Kate Douglas, Windermere RE/Capitol Hill,Inc
Ian Porter, Windermere RE/Capitol Hill,Inc
Open Houses
Sunday Oct 5, 2025   1pm - 3pm
Contact our
Greenwood
Real Estate Lead
John L. Scott
Phone...
Bedroom & Bathroom Layout
SECOND
BDRM
BDRM
FULL
BATH
¾
BATH
MAIN
BDRM
¾
BATH
Property History
Jul 04, 2025
Listed
$785,900
NWMLS #2373859
Jun 12, 2025
Price Reduction arrow_downward
$785,900
NWMLS #2373859
May 09, 2025
Listed
$799,900
NWMLS #2373859
Jun 12, 2025
Price Reduction arrow_downward
$785,900
More
Listing Details
  • Status
    For Sale
  • Price
    $785,900
  • Original Price
    $799,900
  • List Date
    April 24, 2025
  • Last Status Change
    July 4, 2025
  • Last Update
    October 3, 2025
  • Days on Market
    164 Days
  • Cumulative DOM
    130 Days
  • $/sqft (Total)
    $549/sqft
  • $/sqft (Finished)
    $549/sqft
  • Listing Source
  • MLS Number
    2373859
  • Listing Broker
    Kate Douglas
  • Listing Office
    Windermere RE/Capitol Hill,Inc
Monthly Payment Estimate
  • Principal and Interest
    $4,120 / month
  • HOA
    $47 / month
  • Property Taxes
    $0 / month
  • Homeowners Insurance
    $157 / month
  • TOTAL
    $4,324 / month

  • based on 20% down
    ($157,180)
  • and a
    6.85% Interest Rate
  • About:
    All calculations are estimates only and provided by Mainview LLC. Actual amounts will vary.
Condo Details
  • Unit #
    Unspecified
  • Unit Floor
    1
  • Sqft (Total)
    1,432 sqft
  • Sqft (Finished)
    Unspecified
  • Sqft (Unfinished)
    None
  • Property Type
    Townhome
  • Sub Type
    Townhouse
  • Bedrooms
    3 Bedrooms
  • Bathrooms
    2.5 Bathrooms
  • Lot
    550 sqft Lot
  • Lot Size Source
    County Records
  • Project
    Elm
  • Total Stories
    Unspecified
  • Sqft Source
    Builder Plan Set
Property Tax Info
  • 2025 Property Taxes
    $1 / year
  • No Senior Exemption
Public Parcel Data & Maps
Schools
  • School District
    Seattle
  • Elementary
    Viewlands
  • Middle
    Whitman Mid
  • High School
    Ingraham High
HOA
  • HOA Dues
    $47 / month
  • Fees Assessed
    Monthly
  • HOA Dues Include
    See Remarks
  • Pets Allowed
    Subject to Restrictions
  • HOA Contact
    Unspecified
  • Management Contact
Building
  • Name
    Elm
  • Units in Complex
    21
  • Units in Building
    21
  • Stories in Building
    3
Parking
  • Covered
    1-Car
  • Types
    Individual Garage
  • Has Garage
    Yes
  • Nbr of Assigned Spaces
    1
  • Parking Space Info
    Unspecified
Views
  • Mountain(s)
    Territorial
Construction
  • Year Built
    2025
  • New Construction
    Yes
  • Construction State
    Unspecified
  • Home Builder
    Unspecified
Cooling
  • Includes
    Ductless
Heating
  • Includes
    Ductless
    Wall Unit(s)
Interior
  • Flooring
    Ceramic Tile
    Laminate
    Carpet
  • Features
    Cooking-Electric
    Dryer-Electric
    Ground Floor
    Ice Maker
    Washer
    Water Heater
Property
  • Lot Features
    Curbs
    Paved
    Sidewalk
Appliances
  • Included
    Dishwasher(s)
    Disposal
    Microwave(s)
    Refrigerator(s)
    Stove(s)/Range(s)
Terms
  • 3rd Party Approval Required)
    No
  • Bank Owned (REO)
    No
  • Complex FHA Availability
    Yes
  • Potential Terms
    Conventional
    FHA
Utilities
  • Energy
    Electric
Additional Info
  • Waterfront
    No
  • Air Conditioning (A/C)
    Yes
  • Buyer Broker's Compensation
    3%
  • MLS Area #
    Area 705
  • Number of Photos
    25
  • Last Modification Time
    Thursday, October 2, 2025 9:30 PM
  • System Listing ID
    5456888
Update Info
  • Public Open Houses
    2025-10-02 21:40:08
  • First For Sale
    2025-07-04 11:39:16
Listing details based on information submitted to the MLS GRID as of Thursday, October 2, 2025 9:30 PM. All data is obtained from various sources and may not have been verified by broker or MLS GRID. Supplied Open House Information is subject to change without notice. All information should be independently reviewed and verified for accuracy. Properties may or may not be listed by the office/agent presenting the information.
View
Sort

Sharing

 
OPEN For Sale 164 Days Online
$785,900  
3 BR    2.5 BA    1,432 SQFT  
OPEN HOUSES
Sunday Oct 5, 2025   1pm - 3pm
Offer Review: Anytime
NWMLS #2373859. Kate Douglas, Windermere RE/Capitol Hill,Inc
Map
 
Listing information is provided by the listing agent except as follows: BuilderB indicates that our system has grouped this listing under a home builder name that doesn't match the name provided by the listing broker. DevelopmentD indicates that our system has grouped this listing under a development name that doesn't match the name provided by the listing broker.