to
Reset
Houses
Townhouses
Condos
Land
Price
to
SQFT
to
Bdrms
to
Baths
to
Lot
to
Yr Built
to
Sold
Listed within...
Listed at least...
Offer Review
New Construction
Waterfront
Short-Sales
REO
Parking
to
Unit Flr
to
Unit Nbr
Listings
Neighborhoods
Complexes
Developments
Cities
Counties
Zip Codes
Neighborhood · Condo · Development
School District
Zip Code
City
County
Builder
Listing Numbers
Broker LAG
Boundary Lines
Labels
View
Sort
Sold Closed September 19, 2025
$749,950
Originally $779,950
4 Bedrooms
2.75 Bathrooms
2,394 Sqft House
New Construction
Built 2024
5,700 Sqft Lot
3-Car Garage
HOA Dues $80 / month
SALE HISTORY
List price was $779,950
The price was later changed to $749,950.
It took 437 days to go pending.
Then 14 days to close at $749,950
Closed at $313/SQFT.
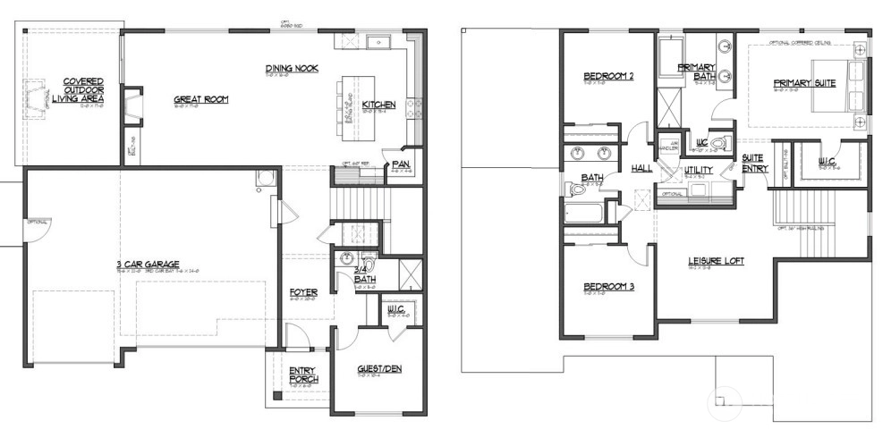
New home by local builder, JK Monarch. Popular plan features 3bd + main level den/guest room, 3/4 bath. Features include 8' interior doors, wrought-iron rails, 5" millwork, heat pump (A/C), lower FP built-in cabinet. Kitchen has SS appls incl gas range, soft close cabinets, center island, quatrz countertops, tile backsplash & pantry. Dining, great room opens to covered outdoor living w/pine ceiling. Primary has coffered ceiling, walk-in closet & 5pc ensuite w/glass/tile shower & soak tub. Upper leisure loft. Professionally landscaped front yard. 3 car garage. Small community, Mountain Glen, has green belt, fencing & close to South Hill schools and shopping. Photos are not of actual Home. August move-in. $20K CC credit.
Offer Review
No offer review date was specified
Builder
JK Monarch LLC (JK Monarch)
Project
Mountain Glen
Listing source NWMLS MLS #
2256180
Listed by
Gary Hendrickson, Berkshire Hathaway HS SSP
Hannah Ehrenheim, Berkshire Hathaway HS SSP
Buyer's broker
Kyle Fox, Windermere RE/Lake Tapps, Inc
Contact our
Puyallup
Real Estate Lead
RE/MAX Northwest Realtors
Phone...
Time Adjusted Estimated Value
Assumptions: The original sale amount reflected a normal arms length sale. Any major updates would add to the value. Any damage or deferred maintenance would subtract from the value.
Bedroom & Bathroom Layout
SECOND
BDRM
BDRM
BDRM
FULL
BATH
FULL
BATH
MAIN
BDRM
¾
BATH
Property History
Sep 19, 2025
Sold
$749,950
NWMLS #2256180
Sep 05, 2025
Went Pending
$749,950
NWMLS #2256180
Jul 09, 2025
Listed
$749,950
NWMLS #2256180
Jun 02, 2025
Price Reduction arrow_downward
$749,950
NWMLS #2256180
Dec 06, 2024
Price Reduction arrow_downward
$764,950
NWMLS #2256180
Jun 25, 2024
Listed
$779,950
NWMLS #2256180
More
Listing Details
  • Sale Price
    $749,950
  • Closing Date
    September 19, 2025
  • Last List Price
    $749,950
  • Original Price
    $779,950
  • List Date
    June 25, 2024
  • Pending Date
    September 5, 2025
  • Days to go Pending
    437 days
  • $/sqft (Total)
    $313/sqft
  • $/sqft (Finished)
    $313/sqft
  • Listing Source
  • MLS Number
    2256180
  • Listing Broker
    Gary Hendrickson
  • Listing Office
    Berkshire Hathaway HS SSP
  • Buyer's Broker
    Kyle Fox
  • Buyer Broker's Firm
    Windermere RE/Lake Tapps, Inc
Monthly Payment Estimate
  • Principal and Interest
    $3,931 / month
  • HOA
    $80 / month
  • Property Taxes
    / month
  • Homeowners Insurance
    $150 / month
  • TOTAL
    $4,161 / month

  • based on 20% down
    ($149,990)
  • and a
    6.85% Interest Rate
  • About:
    All calculations are estimates only and provided by Mainview LLC. Actual amounts will vary.
House Details
  • Sqft (Total)
    2,394 sqft
  • Sqft (Finished)
    2,394 sqft
  • Sqft (Unfinished)
    None
  • Property Type
    House
  • Sub Type
    2 Story
  • Bedrooms
    4 Bedrooms
  • Bathrooms
    2.75 Bathrooms
  • Lot
    5,700 sqft Lot
  • Lot Size Source
    Public Records
  • Lot #
    14
  • Project
    Mountain Glen
  • Total Stories
    2 stories
  • Basement
    None
  • Sqft Source
    Builder Plans
Property Tax Info
  • Property Taxes
    Unspecified
  • No Senior Exemption
Public Parcel Data & Maps
Schools
  • School District
    Puyallup
  • Elementary
    Pope Elem
  • Middle
    Glacier View Jr High
  • High School
    Emerald Ridge High
HOA
  • HOA Dues
    $80 / month
  • Fees Assessed
    Annually
  • HOA Dues Include
    Unspecified
  • HOA Contact
    Unspecified
  • Management Contact
    Unspecified
Community Features
  • Community Features
    CCRs
Parking
  • Covered
    3-Car
  • Types
    Attached Garage
  • Has Garage
    Yes
  • Nbr of Assigned Spaces
    3
Construction
  • Year Built
    2024
  • New Construction
    Yes
  • Construction State
    Unspecified
  • Home Builder
    JK Monarch LLC
Cooling
  • Includes
    Forced Air
    Heat Pump
Heating
  • Includes
    Forced Air
    Heat Pump
Interior
  • Flooring
    Ceramic Tile
    Laminate
    Carpet
  • Features
    Bath Off Primary
    Double Pane/Storm Window
    Dining Room
    Fireplace
    Loft
    Walk-In Closet(s)
    Walk-In Pantry
    Water Heater
Property
  • Lot Features
    Curbs
    Paved
    Sidewalk
  • Site Features
    Cable TV
    Electric Car Charging
    Gas Available
    High Speed Internet
    Patio
Appliances
  • Included
    Dishwasher(s)
    Microwave(s)
    Stove(s)/Range(s)
Terms
  • Bank Owned (REO)
    No
Utilities
  • Energy
    Electric
    Natural Gas
  • Sewer
    Septic Tank
  • Water Source
    Public
Additional Info
  • Waterfront
    No
  • Air Conditioning (A/C)
    Yes
  • Buyer Broker's Compensation
    2.5%
  • MLS Area #
    Area 88
  • Number of Photos
    40
  • Last Modification Time
    Monday, October 20, 2025 4:06 AM
  • System Listing ID
    5458350
Update Info
  • Closed
    2025-09-19 13:54:04
  • Pending Or Ctg
    2025-09-05 16:15:40
  • First For Sale
    2025-07-09 15:40:20
Listing details based on information submitted to the MLS GRID as of Monday, October 20, 2025 4:06 AM. All data is obtained from various sources and may not have been verified by broker or MLS GRID. Supplied Open House Information is subject to change without notice. All information should be independently reviewed and verified for accuracy. Properties may or may not be listed by the office/agent presenting the information.
View
Sort

Sharing

 
Sold September 19, 2025
$749,950  
4 BR    2.75 BA    2,394 SQFT  
NWMLS #2256180. Gary Hendrickson, Berkshire Hathaway HS SSP
Map
 
Listing information is provided by the listing agent except as follows: BuilderB indicates that our system has grouped this listing under a home builder name that doesn't match the name provided by the listing broker. DevelopmentD indicates that our system has grouped this listing under a development name that doesn't match the name provided by the listing broker.