to
Reset
Houses
Townhouses
Condos
Land
Price
to
SQFT
to
Bdrms
to
Baths
to
Lot
to
Yr Built
to
Sold
Listed within...
Listed at least...
Offer Review
New Construction
Waterfront
Short-Sales
REO
Parking
to
Unit Flr
to
Unit Nbr
Listings
Neighborhoods
Complexes
Developments
Cities
Counties
Zip Codes
Neighborhood · Condo · Development
School District
Zip Code
City
County
Builder
Listing Numbers
Broker LAG
Boundary Lines
Labels
View
Sort
Sold Closed November 14, 2025
$352,000
4 Bedrooms
1.75 Bathrooms
2,418 Sqft House
Built 1948
6,076 Sqft Lot
No Garage
SALE HISTORY
List price was $352,000
It took 90 days to go pending.
Then 35 days to close at $352,000
Closed at $146/SQFT.
Spacious 4 bedrooms, 2 bath home. The hardwood floors in the living room and dining are great! The fireplace will be cozy in the winter months and the large windows invite the sunshine in year around. Two bedrooms, full bath upstairs. The two bedrooms in the finished basement are large, with non-egress windows. The new 3/4 bath has a beautiful tile shower. The large utility room has been plumbed for a utility sink. Call today!
Offer Review
No offer review date was specified
Listing source NWMLS MLS #
2406809
Listed by
Debra Adams, WindermereRE/Central Basin LLC
Scott Adams, WindermereRE/Central Basin LLC
Buyer's broker
Kimberlee Chang, HomeSmart
We don't currently have a buyer representative in this area. To be sure that you're getting objective advice, we always suggest buyers work with their own agent, someone who is not affiliated with the seller.
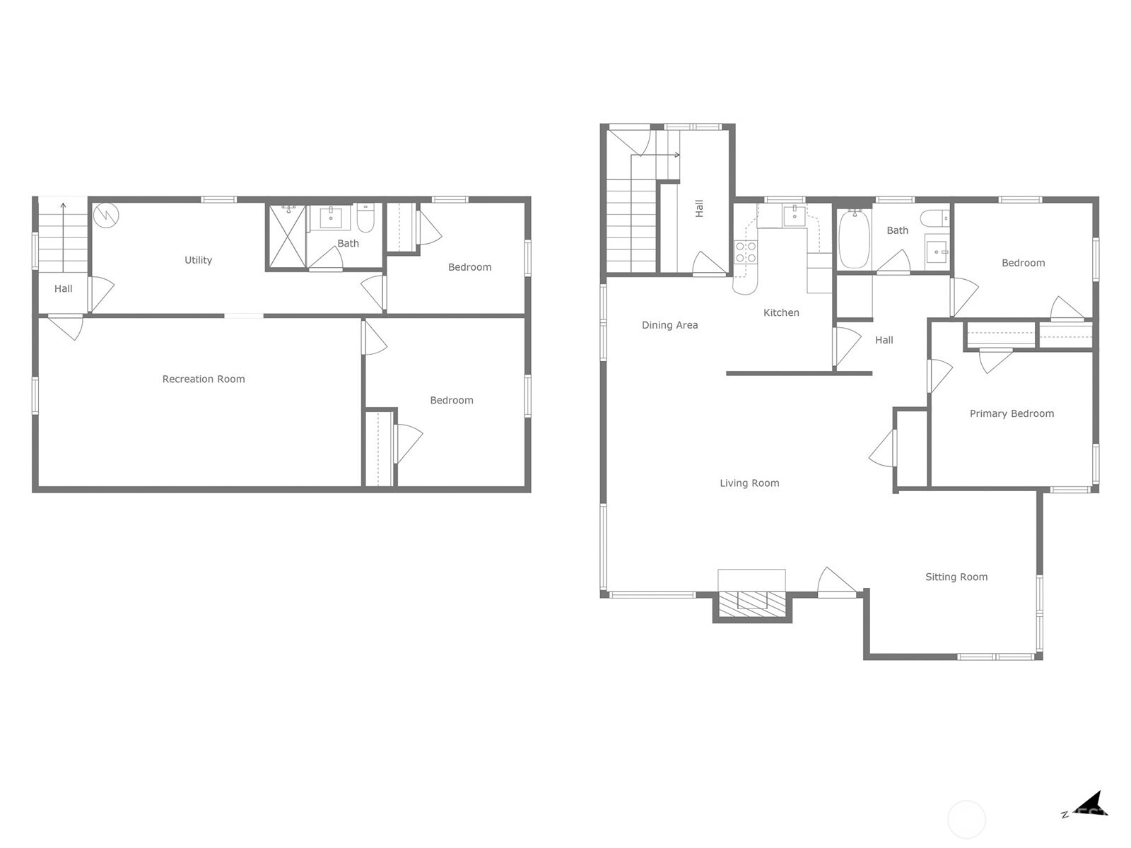
Bedroom & Bathroom Layout
MAIN
BDRM
BDRM
FULL
BATH
LOWER
BDRM
BDRM
¾
BATH
Property History
Nov 18, 2025
Sold
$352,000
NWMLS #2406809
Oct 21, 2025
Went Pending
$352,000
NWMLS #2406809
Oct 13, 2025
Went Pending Inspection
$352,000
NWMLS #2406809
Jul 12, 2025
Listed
$352,000
NWMLS #2406809
More
Listing Details
  • Sale Price
    $352,000
  • Closing Date
    November 14, 2025
  • Last List Price
    $352,000
  • Original Price
    Same
  • List Date
    July 12, 2025
  • Pending Date
    October 10, 2025
  • Days to go Pending
    90 days
  • $/sqft (Total)
    $146/sqft
  • $/sqft (Finished)
    $146/sqft
  • Listing Source
  • MLS Number
    2406809
  • Listing Broker
    Debra Adams
  • Listing Office
    WindermereRE/Central Basin LLC
  • Buyer's Broker
    Kimberlee Chang
  • Buyer Broker's Firm
    HomeSmart
Monthly Payment Estimate
  • Principal and Interest
    $1,845 / month
  • Property Taxes
    $126 / month
  • Homeowners Insurance
    $86 / month
  • TOTAL
    $2,057 / month

  • based on 20% down
    ($70,400)
  • and a
    6.85% Interest Rate
  • About:
    All calculations are estimates only and provided by Mainview LLC. Actual amounts will vary.
House Details
  • Sqft (Total)
    2,418 sqft
  • Sqft (Finished)
    2,418 sqft
  • Sqft (Unfinished)
    None
  • Property Type
    House
  • Sub Type
    1 Story + Basement
  • Bedrooms
    4 Bedrooms
  • Bathrooms
    1.75 Bathrooms
  • Lot
    6,076 sqft Lot
  • Lot Size Source
    Assessor
  • Lot #
    28
  • Project
    Ephrata Hts 1st Addn
  • Total Stories
    2 stories
  • Basement
    Finished
  • Sqft Source
    Assessor
Property Tax Info
  • 2025 Property Taxes
    $1,511 / year
  • No Senior Exemption
Public Parcel Data & Maps
  • County
    Grant County
  • Parcel #
    131032000
  • County Website
    Unspecified
  • County Parcel Map
    Unspecified
  • County GIS Map
    Unspecified
  • About
    County links provided by Mainview LLC
Schools
  • School District
    Ephrata
  • Elementary
    Unspecified
  • Middle
    Unspecified
  • High School
    Unspecified
HOA
  • HOA Dues
    Unspecified
  • Fees Assessed
    Unspecified
  • HOA Dues Include
    Unspecified
  • HOA Contact
    Unspecified
  • Management Contact
    Unspecified
Parking
  • Covered
    Unspecified
  • Types
    None
    Off Street
  • Has Garage
    No
Views
  • City
Construction
  • Year Built
    1948
  • Home Builder
    Unspecified
Cooling
  • Includes
    Window Unit(s)
Heating
  • Includes
    Baseboard
    Wall Unit(s)
Interior
  • Flooring
    Hardwood
    Laminate
    Vinyl
    Carpet
  • Features
    Double Pane/Storm Window
    Fireplace
Property
  • Lot Features
    Alley
    Curbs
    Paved
  • Site Features
    Fenced-Partially
    Patio
Appliances
  • Included
    Stove(s)/Range(s)
Terms
  • Bank Owned (REO)
    No
Utilities
  • Energy
    Electric
    Wood
  • Sewer
    Sewer Connected
  • Water Source
    Public
Additional Info
  • Waterfront
    No
  • Air Conditioning (A/C)
    Yes
  • Buyer Broker's Compensation
    2.5%
  • MLS Area #
    Area 291
  • Number of Photos
    28
  • Last Modification Time
    Tuesday, November 18, 2025 1:38 PM
  • System Listing ID
    5460272
Update Info
  • Closed
    2025-11-18 13:56:00
  • Pending Or Ctg
    2025-10-21 19:40:44
  • First For Sale
    2025-07-12 10:53:00
Listing details based on information submitted to the MLS GRID as of Tuesday, November 18, 2025 1:38 PM. All data is obtained from various sources and may not have been verified by broker or MLS GRID. Supplied Open House Information is subject to change without notice. All information should be independently reviewed and verified for accuracy. Properties may or may not be listed by the office/agent presenting the information.
View
Sort

Sharing

 
Sold November 14, 2025
$352,000  
4 BR    1.75 BA    2,418 SQFT  
NWMLS #2406809. Debra Adams, WindermereRE/Central Basin LLC
Map
 
Listing information is provided by the listing agent except as follows: BuilderB indicates that our system has grouped this listing under a home builder name that doesn't match the name provided by the listing broker. DevelopmentD indicates that our system has grouped this listing under a development name that doesn't match the name provided by the listing broker.