to
Reset
Houses
Townhouses
Condos
Land
Price
to
SQFT
to
Bdrms
to
Baths
to
Lot
to
Yr Built
to
Sold
Listed within...
Listed at least...
Offer Review
New Construction
Waterfront
Short-Sales
REO
Parking
to
Unit Flr
to
Unit Nbr
Listings
Neighborhoods
Complexes
Developments
Cities
Counties
Zip Codes
Neighborhood · Condo · Development
School District
Zip Code
City
County
Builder
Listing Numbers
Broker LAG
Boundary Lines
Labels
View
Sort
Pending Inspection Went pending in 84 days
$895,000
Originally $970,000
2 Bedrooms
2.75 Bathrooms
2,830 Sqft House (1,758 Finished)
Built 1997
22,603 Sqft Lot
2-Car Garage
PENDING SALE. This listing went Pending Inspection on October 10, 2025

Some pending sales don't become final. Contact Us if this property is really important to you so we can check on it right now. The seller has reached an agreement with a buyer to sell this property. If things go as planned, the sale will become final in the near future. The buyer and seller have agreed on a price but it's not public until the sale closes. The last published list price was $895,000.
Exceptional in-town location with striking views of Liberty Bay, Poulsbo Marina & Olympic Mountains. Sitting on over a half-acre, this is one of Historic Downtown Poulsbo’s largest residential lots. Truly walkable to restaurants, shops and the waterfront. Enjoy main floor living, 10ft ceilings, large view windows and room to customize and expand into the partially finished daylight lower level. Thoughtfully landscaped for privacy and year-round garden interest, you’ll be surprised by the quiet solitude and serenades from the famed First Lutheran bells. Oversized garage & large circular driveway with space for RV/boat parking. New 40 yr roof, exterior paint, updated fixtures, newer heat pump & water heater make this one truly move-in ready.
Offer Review
No offer review date was specified
Listing source NWMLS MLS #
2407255
Listed by
Audrey Newell, Windermere RE West Sound Inc.
Contact our
Poulsbo
Real Estate Lead
My Kitsap Homes, LLC
Phone...
Bedroom & Bathroom Layout
MAIN
BDRM
BDRM
FULL
BATH
FULL
BATH
LOWER
¾
BATH
Property History
Oct 10, 2025
Went Pending Inspection
$895,000
NWMLS #2407255
Oct 09, 2025
Price Reduction arrow_downward
$895,000
NWMLS #2407255
Sep 09, 2025
Price Reduction arrow_downward
$935,000
NWMLS #2407255
More
Listing Details
  • Status
    Pending Inspection
  • Last Listed Price
    $895,000
  • Original Price
    $970,000
  • List Date
    July 18, 2025
  • Last Status Change
    October 10, 2025
  • Last Update
    October 10, 2025
  • Days on Market
    87 Days
  • Cumulative DOM
    84 Days
  • Pending Date
    October 10, 2025
  • Days to go Pending
    84
  • $/sqft (Total)
    $316/sqft
  • $/sqft (Finished)
    $509/sqft
  • Listing Source
  • MLS Number
    2407255
  • Listing Broker
    Audrey Newell
  • Listing Office
    Windermere RE West Sound Inc.
Monthly Payment Estimate
  • Principal and Interest
    $4,692 / month
  • Property Taxes
    $623 / month
  • Homeowners Insurance
    $177 / month
  • TOTAL
    $5,492 / month

  • based on 20% down
    ($179,000)
  • and a
    6.85% Interest Rate
  • About:
    All calculations are estimates only and provided by Mainview LLC. Actual amounts will vary.
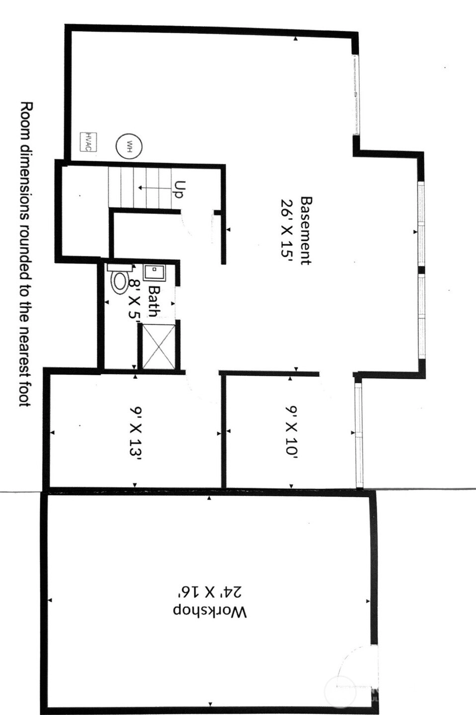
House Details
  • Sqft (Total)
    2,830 sqft
  • Sqft (Finished)
    1,758 sqft
  • Sqft (Unfinished)
    1,072 sqft
  • Property Type
    House
  • Sub Type
    1 Story + Basement
  • Bedrooms
    2 Bedrooms
  • Bathrooms
    2.75 Bathrooms
  • Lot
    22,603 sqft Lot
  • Lot Size Source
    Survey
  • Lot #
    Unspecified
  • Project
    Unspecified
  • Total Stories
    2 stories
  • Basement
    Daylight
    Partially Finished
  • Sqft Source
    Kitsap County/Matterport
Property Tax Info
  • 2025 Property Taxes
    $7,476 / year
  • No Senior Exemption
Public Parcel Data & Maps
Schools
  • School District
    North Kitsap #400
  • Elementary
    Poulsbo Elem
  • Middle
    Poulsbo Middle
  • High School
    North Kitsap High
HOA
  • HOA Dues
    Unspecified
  • Fees Assessed
    Unspecified
  • HOA Dues Include
    Unspecified
  • HOA Contact
    Unspecified
  • Management Contact
Community Features
  • Community Features
    Athletic Court
    Boat Launch
    Park
    Playground
    Trail(s)
Parking
  • Covered
    2-Car
  • Types
    Driveway
    Attached Garage
    Off Street
    RV Parking
  • Has Garage
    Yes
  • Nbr of Assigned Spaces
    2
Views
  • Bay
    City
    Mountain(s)
    Sound
Construction
  • Year Built
    1997
  • Home Builder
    Unspecified
Cooling
  • Includes
    90%+ High Efficiency
    Forced Air
    Heat Pump
    High Efficiency (Unspecified)
Heating
  • Includes
    90%+ High Efficiency
    Forced Air
    Heat Pump
    High Efficiency (Unspecified)
Interior
  • Flooring
    Hardwood
    Vinyl
    Carpet
  • Features
    Bath Off Primary
    Double Pane/Storm Window
    Dining Room
    Sprinkler System
    Vaulted Ceiling(s)
    Walk-In Closet(s)
    Water Heater
Property
  • Lot Features
    Corner Lot
    Curbs
    Dead End Street
    Open Space
    Paved
    Sidewalk
  • Site Features
    Cable TV
    Deck
    High Speed Internet
    Patio
    RV Parking
    Shop
    Sprinkler System
Appliances
  • Included
    Dishwasher(s)
    Disposal
    Dryer(s)
    Microwave(s)
    Refrigerator(s)
    Stove(s)/Range(s)
    Washer(s)
Terms
  • 3rd Party Approval Required)
    No
  • Bank Owned (REO)
    No
  • Complex FHA Availability
    Unspecified
  • Potential Terms
    Cash Out
    Conventional
    VA Loan
Utilities
  • Energy
    Electric
  • Sewer
    Sewer Connected
  • Water Source
    Public
Additional Info
  • Waterfront
    No
  • Air Conditioning (A/C)
    Yes
  • Buyer Broker's Compensation
    2.5%
  • MLS Area #
    Area 166
  • Number of Photos
    33
  • Last Modification Time
    Friday, October 10, 2025 3:20 PM
  • System Listing ID
    5462732
Update Info
  • Pending Or Ctg
    2025-10-10 15:32:45
  • Price Reduction
    2025-10-09 21:18:56
  • First For Sale
    2025-07-18 13:27:03
Listing details based on information submitted to the MLS GRID as of Friday, October 10, 2025 3:20 PM. All data is obtained from various sources and may not have been verified by broker or MLS GRID. Supplied Open House Information is subject to change without notice. All information should be independently reviewed and verified for accuracy. Properties may or may not be listed by the office/agent presenting the information.
View
Sort

Sharing

 
Pending Inspection October 10, 2025
$895,000  
2 BR    2.75 BA    2,830 SQFT  
NWMLS #2407255. Audrey Newell, Windermere RE West Sound Inc.
Map
 
Listing information is provided by the listing agent except as follows: BuilderB indicates that our system has grouped this listing under a home builder name that doesn't match the name provided by the listing broker. DevelopmentD indicates that our system has grouped this listing under a development name that doesn't match the name provided by the listing broker.