to
Reset
Houses
Townhouses
Condos
Land
Price
to
SQFT
to
Bdrms
to
Baths
to
Lot
to
Yr Built
to
Sold
Listed within...
Listed at least...
Offer Review
New Construction
Waterfront
Short-Sales
REO
Parking
to
Unit Flr
to
Unit Nbr
Listings
Neighborhoods
Complexes
Developments
Cities
Counties
Zip Codes
Neighborhood · Condo · Development
School District
Zip Code
City
County
Builder
Listing Numbers
Broker LAG
Boundary Lines
Labels
View
Sort
Sold Closed October 3, 2025
$772,000
2 Bedrooms
1.75 Bathrooms
1,334 Sqft House
Built 1980
20,954 Sqft Lot
1-Car Garage
SALE HISTORY
List price was $761,000
It took 26 days to go pending.
Then 33 days to close at $772,000
Closed at $579/SQFT.
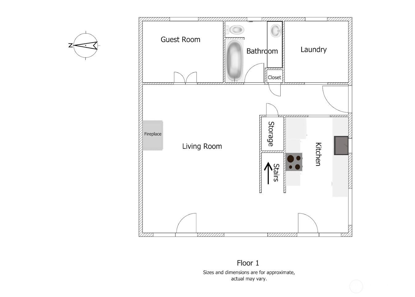
Westside South Whidbey cabin situated between Double Bluff and Mutiny Bay offering views of the Admiralty Inlet shipping lanes and Olympic Mountain views. Enjoy entertaining, outdoor living & watching the ships from the spacious deck. Main level includes a versatile guest room/flex space and a full bathroom. Upstairs, the primary suite features an ensuite three-quarter bathroom, a walk-in closet, and wonderful water views. Detached garage and workshop offer generous storage, creative space, plus insulated storage for beverages/ dry goods. Enjoy deeded beach access and beach rights. Ideal for full-time living or vacation getaway.
Offer Review
No offer review date was specified
Listing source NWMLS MLS #
2416814
Listed by
Cathy Wilson, Coldwell Banker 360 Team
Pam Mock, Coldwell Banker 360 Team
Buyer's broker
Amy Robin Gulden, Windermere RE/South Whidbey
We don't currently have a buyer representative in this area. To be sure that you're getting objective advice, we always suggest buyers work with their own agent, someone who is not affiliated with the seller.
Bedroom & Bathroom Layout
SECOND
BDRM
¾
BATH
MAIN
BDRM
FULL
BATH
Property History
Oct 03, 2025
Sold
$772,000
NWMLS #2416814
Sep 13, 2025
Went Pending
$761,000
NWMLS #2416814
Sep 01, 2025
Went Pending Inspection
$761,000
NWMLS #2416814
Aug 05, 2025
Listed
$761,000
NWMLS #2416814
More
Listing Details
  • Sale Price
    $772,000
  • Closing Date
    October 3, 2025
  • Last List Price
    $761,000
  • Original Price
    Same
  • List Date
    August 5, 2025
  • Pending Date
    August 31, 2025
  • Days to go Pending
    26 days
  • $/sqft (Total)
    $579/sqft
  • $/sqft (Finished)
    $579/sqft
  • Listing Source
  • MLS Number
    2416814
  • Listing Broker
    Cathy Wilson
  • Listing Office
    Coldwell Banker 360 Team
  • Buyer's Broker
    Amy Robin Gulden
  • Buyer Broker's Firm
    Windermere RE/South Whidbey
Monthly Payment Estimate
  • Principal and Interest
    $4,047 / month
  • Property Taxes
    $428 / month
  • Homeowners Insurance
    $154 / month
  • TOTAL
    $4,629 / month

  • based on 20% down
    ($154,400)
  • and a
    6.85% Interest Rate
  • About:
    All calculations are estimates only and provided by Mainview LLC. Actual amounts will vary.
House Details
  • Sqft (Total)
    1,334 sqft
  • Sqft (Finished)
    1,334 sqft
  • Sqft (Unfinished)
    None
  • Property Type
    House
  • Sub Type
    2 Story
  • Bedrooms
    2 Bedrooms
  • Bathrooms
    1.75 Bathrooms
  • Lot
    20,954 sqft Lot
  • Lot Size Source
    County Records
  • Lot #
    22
  • Project
    Admiralty Heights
  • Total Stories
    2 stories
  • Sqft Source
    County Records
Property Tax Info
  • 2025 Property Taxes
    $5,141 / year
  • No Senior Exemption
Public Parcel Data & Maps
  • County
    Island County
  • Parcel #
    S601500000220
  • County Website
    Unspecified
  • County Parcel Map
    Unspecified
  • County GIS Map
    Unspecified
  • About
    County links provided by Mainview LLC
Schools
  • School District
    South Whidbey Island
  • Elementary
    Buyer To Verify
  • Middle
    Buyer To Verify
  • High School
    Buyer To Verify
HOA
  • HOA Dues
    Unspecified
  • Fees Assessed
    Unspecified
  • HOA Dues Include
    Unspecified
  • HOA Contact
    Unspecified
  • Management Contact
    Unspecified
Parking
  • Covered
    1-Car
  • Types
    Driveway
    Detached Garage
  • Has Garage
    Yes
  • Nbr of Assigned Spaces
    1
Views
  • Mountain(s)
    See Remarks
    Sound
    Strait
Construction
  • Year Built
    1980
  • Home Builder
    Unspecified
Cooling
  • Includes
    None
Heating
  • Includes
    Other – See Remarks
    Wall Unit(s)
Interior
  • Flooring
    Ceramic Tile
    Vinyl Plank
    Carpet
  • Features
    Bath Off Primary
    Ceiling Fan(s)
    Double Pane/Storm Window
    Fireplace
    High Tech Cabling
    Walk-In Closet(s)
    Water Heater
    Wine Cellar
Property
  • Lot Features
    Dead End Street
    Open Space
  • Site Features
    Deck
    High Speed Internet
    Outbuildings
    Shop
Appliances
  • Included
    Dishwasher(s)
    Dryer(s)
    Microwave(s)
    Refrigerator(s)
    Stove(s)/Range(s)
    Washer(s)
Terms
  • Bank Owned (REO)
    No
Utilities
  • Energy
    Electric
    Propane
  • Sewer
    Septic Tank
  • Water Source
    Public
Additional Info
  • Waterfront
    No
  • Air Conditioning (A/C)
    No
  • Buyer Broker's Compensation
    2.5%
  • MLS Area #
    Area 811
  • Number of Photos
    40
  • Last Modification Time
    Friday, October 3, 2025 6:19 PM
  • System Listing ID
    5468664
Update Info
  • Closed
    2025-10-03 18:40:26
  • Pending Or Ctg
    2025-09-13 09:49:31
  • First For Sale
    2025-08-05 13:09:40
Listing details based on information submitted to the MLS GRID as of Friday, October 3, 2025 6:19 PM. All data is obtained from various sources and may not have been verified by broker or MLS GRID. Supplied Open House Information is subject to change without notice. All information should be independently reviewed and verified for accuracy. Properties may or may not be listed by the office/agent presenting the information.
View
Sort

Sharing

 
Sold October 3, 2025
$772,000   $761,000
2 BR    1.75 BA    1,334 SQFT  
NWMLS #2416814. Cathy Wilson, Coldwell Banker 360 Team
Map
 
Listing information is provided by the listing agent except as follows: BuilderB indicates that our system has grouped this listing under a home builder name that doesn't match the name provided by the listing broker. DevelopmentD indicates that our system has grouped this listing under a development name that doesn't match the name provided by the listing broker.