to
Reset
Houses
Townhouses
Condos
Land
Price
to
SQFT
to
Bdrms
to
Baths
to
Lot
to
Yr Built
to
Sold
Listed within...
Listed at least...
Offer Review
New Construction
Waterfront
Short-Sales
REO
Parking
to
Unit Flr
to
Unit Nbr
Listings
Neighborhoods
Complexes
Developments
Cities
Counties
Zip Codes
Neighborhood · Condo · Development
School District
Zip Code
City
County
Builder
Listing Numbers
Broker LAG
Boundary Lines
Labels
View
Sort
Sold Closed October 9, 2025
$1,400,000
4 Bedrooms
2.25 Bathrooms
3,350 Sqft House (2,700 Finished)
Built 1985
7.28 Acres Lot
6-Car Garage
SALE HISTORY
List price was $1,500,000
It took 21 days to go pending.
Then 42 days to close at $1,400,000
Closed at $418/SQFT.
Live, work, and play from this private 7+ acre retreat in North Bend. Offers a rare blend of nature, comfort & functionality. Explore the private pond, meadow & access to Christmas Creek—perfect for nature lovers & outdoor living. Inside, vaulted ceilings, hickory hardwoods, & oversized windows invite warmth & light throughout. Two cozy wood fireplaces enhance the ambiance. Updated kitchen includes granite counters, SS appliances, a farmhouse sink. Two dedicated offices offer flexible work or creative space. Step outside to a huge deck & covered balcony ideal for entertaining. A 2-car garage with workshop & a 30'x40' heated, air conditioned, & insulated shop provide storage, workspace, or business potential. Freshly Painted Exterior.
Offer Review
No offer review date was specified
Listing source NWMLS MLS #
2417431
Listed by
Darin L. Robertson, Aqua
Jesse Tronson, Aqua
Buyer's broker
Dianne Masaoka, Redfin
Contact our
North Bend
Real Estate Lead
TPG Realty | Keller Williams
Phone...
Time Adjusted Estimated Value
County Wide
  • In
    King County WA
  • prices for
    Single Family Homes
  • have changed
    6%
  • since
    Oct 9, 2025
  • so a sale price of
    $1,400,000
  • would be approximately this amount today
    $1,480,488
Assumptions: The original sale amount reflected a normal arms length sale. Any major updates would add to the value. Any damage or deferred maintenance would subtract from the value.
Bedroom & Bathroom Layout
SECOND
BDRM
BDRM
BDRM
BDRM
FULL
BATH
¾
BATH
MAIN
½
BATH
Property History
Oct 09, 2025
Sold
$1,400,000
NWMLS #2417431 Annualized 10.6% / yr
Sep 16, 2025
Went Pending
$1,500,000
NWMLS #2417431
Aug 28, 2025
Went Pending Inspection
$1,500,000
NWMLS #2417431
Aug 07, 2025
Listed
$1,500,000
NWMLS #2417431
Jun 20, 2025
Listed
$1,600,000
NWMLS #2390965
Dec 04, 2012
Sold
$385,000
More
Listing Details
  • Sale Price
    $1,400,000
  • Closing Date
    October 9, 2025
  • Last List Price
    $1,500,000
  • Original Price
    Same
  • List Date
    August 7, 2025
  • Pending Date
    August 28, 2025
  • Days to go Pending
    21 days
  • $/sqft (Total)
    $418/sqft
  • $/sqft (Finished)
    $519/sqft
  • Listing Source
  • MLS Number
    2417431
  • Listing Broker
    Darin L. Robertson
  • Listing Office
    Aqua
  • Buyer's Broker
    Dianne Masaoka
  • Buyer Broker's Firm
    Redfin
Monthly Payment Estimate
  • Principal and Interest
    $7,339 / month
  • Property Taxes
    $1,096 / month
  • Homeowners Insurance
    $269 / month
  • TOTAL
    $8,704 / month

  • based on 20% down
    ($280,000)
  • and a
    6.85% Interest Rate
  • About:
    All calculations are estimates only and provided by Mainview LLC. Actual amounts will vary.
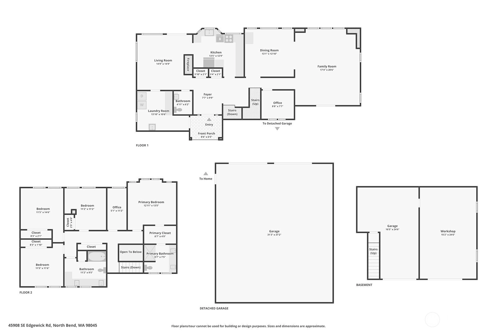
House Details
  • Sqft (Total)
    3,350 sqft
  • Sqft (Finished)
    2,700 sqft
  • Sqft (Unfinished)
    650 sqft
  • Property Type
    House
  • Sub Type
    2 Story
  • Bedrooms
    4 Bedrooms
  • Bathrooms
    2.25 Bathrooms
  • Lot
    7.28 Acres Lot
  • Lot Size Source
    Realist
  • Lot #
    Unspecified
  • Project
    Unspecified
  • Total Stories
    2 stories
  • Basement
    None
  • Sqft Source
    Previous MLS Listing
Property Tax Info
  • 2025 Property Taxes
    $13,152 / year
  • No Senior Exemption
Public Parcel Data & Maps
Schools
  • School District
    Snoqualmie Valley
  • Elementary
    Edwin R Opstad Elem
  • Middle
    Twin Falls Mid
  • High School
    Mount Si High
HOA
  • HOA Dues
    Unspecified
  • Fees Assessed
    Unspecified
  • HOA Dues Include
    Unspecified
  • HOA Contact
    Unspecified
  • Management Contact
    Unspecified
Parking
  • Covered
    6-Car
  • Types
    Attached Garage
    Detached Garage
  • Has Garage
    Yes
  • Nbr of Assigned Spaces
    6
Views
  • Mountain(s)
    Territorial
Construction
  • Year Built
    1985
  • Home Builder
    Unspecified
Cooling
  • Includes
    None
Heating
  • Includes
    Baseboard
    Heat Pump
Interior
  • Flooring
    Ceramic Tile
    Hardwood
    Marble
    Vinyl
    Carpet
  • Features
    Ceiling Fan(s)
    Double Pane/Storm Window
    Dining Room
    Fireplace
    Sauna
    Skylight(s)
    Vaulted Ceiling(s)
    Walk-In Closet(s)
    Water Heater
    Wired for Generator
Property
  • Lot Features
    Adjacent to Public Land
    Dead End Street
    Open Space
    Paved
    Secluded
  • Site Features
    Cabana/Gazebo
    Cable TV
    Deck
    High Speed Internet
    Outbuildings
    Shop
Appliances
  • Included
    Dishwasher(s)
    Disposal
    Dryer(s)
    Microwave(s)
    Refrigerator(s)
    Stove(s)/Range(s)
    Washer(s)
Terms
  • Bank Owned (REO)
    No
Utilities
  • Energy
    Electric
    Wood
  • Sewer
    Septic Tank
  • Water Source
    Private
Additional Info
  • Waterfront
    No
  • Air Conditioning (A/C)
    No
  • Buyer Broker's Compensation
    2%
  • MLS Area #
    Area 540
  • Number of Photos
    40
  • Last Modification Time
    Sunday, November 9, 2025 4:02 AM
  • System Listing ID
    5469522
Update Info
  • Closed
    2025-10-09 16:55:51
  • Pending Or Ctg
    2025-09-16 12:01:44
  • First For Sale
    2025-08-07 10:23:14
Listing details based on information submitted to the MLS GRID as of Sunday, November 9, 2025 4:02 AM. All data is obtained from various sources and may not have been verified by broker or MLS GRID. Supplied Open House Information is subject to change without notice. All information should be independently reviewed and verified for accuracy. Properties may or may not be listed by the office/agent presenting the information.
View
Sort

Sharing

 
Sold October 9, 2025
$1,400,000   $1,500,000
4 BR    2.25 BA    3,350 SQFT  
NWMLS #2417431. Darin L. Robertson, Aqua
Map
 
Listing information is provided by the listing agent except as follows: BuilderB indicates that our system has grouped this listing under a home builder name that doesn't match the name provided by the listing broker. DevelopmentD indicates that our system has grouped this listing under a development name that doesn't match the name provided by the listing broker.