to
Reset
Houses
Townhouses
Condos
Land
Price
to
SQFT
to
Bdrms
to
Baths
to
Lot
to
Yr Built
to
Sold
Listed within...
Listed at least...
Offer Review
New Construction
Waterfront
Short-Sales
REO
Parking
to
Unit Flr
to
Unit Nbr
Listings
Neighborhoods
Complexes
Developments
Cities
Counties
Zip Codes
Neighborhood · Condo · Development
School District
Zip Code
City
County
Builder
Listing Numbers
Broker LAG
Boundary Lines
Labels
View
Sort
Sold Closed September 29, 2025
$805,000
Originally $849,950
4 Bedrooms
1.75 Bathrooms
2,930 Sqft House
Built 1943
7,560 Sqft Lot
1-Car Garage
SALE HISTORY
List price was $849,950
The price was later changed to $824,950.
It took 18 days to go pending.
Then 21 days to close at $805,000
Closed at $275/SQFT.
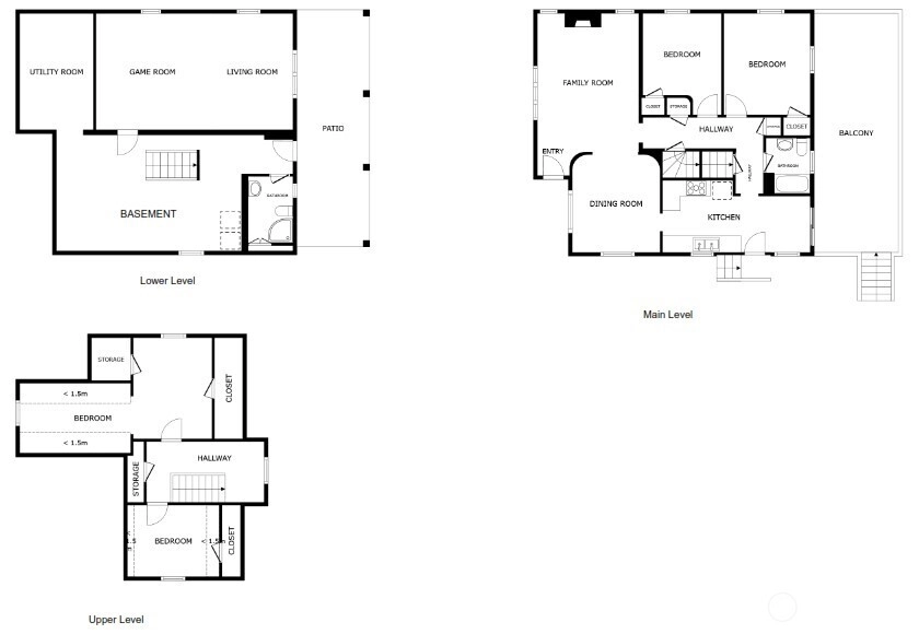
Charming Tudor in the heart of Westwood, ideally located near parks, playfields, and shopping! This inviting 4 bed / 1.75 bath home blends classic character with thoughtful updates, featuring hardwood floors, rich woodwork, and a cozy wood-burning fireplace. The main level offers a light-filled living room, adjoining dining room, updated kitchen with breakfast nook, full bath, and two bedrooms. Upstairs you'll find two more bedrooms—one with a bonus space. The daylight basement boasts a spacious family room, laundry, and additional flex space. Situated on a large, level lot with DADU/ADU potential. Pre-inspected with sewer scope available! Mortgage savings may be available for buyers of this listing.
Offer Review
No offer review date was specified
Listing source NWMLS MLS #
2423260
Listed by
Angela Cramer, Redfin
Buyer's broker
Shari Kruse, Windermere West Metro
Sally Hardwick, Windermere West Metro
Contact our
West Seattle
Real Estate Lead
John L. Scott
Phone...
Bedroom & Bathroom Layout
SECOND
BDRM
BDRM
MAIN
BDRM
BDRM
FULL
BATH
LOWER
¾
BATH
Property History
Sep 29, 2025
Sold
$805,000
NWMLS #2423260 Annualized 3.1% / yr
Sep 09, 2025
Went Pending
$824,950
NWMLS #2423260
Sep 01, 2025
Price Reduction arrow_downward
$824,950
NWMLS #2423260
Aug 21, 2025
Listed
$849,950
NWMLS #2423260
Jul 05, 2007
Sold
$459,950
More
Listing Details
  • Sale Price
    $805,000
  • Closing Date
    September 29, 2025
  • Last List Price
    $824,950
  • Original Price
    $849,950
  • List Date
    August 21, 2025
  • Pending Date
    September 8, 2025
  • Days to go Pending
    18 days
  • $/sqft (Total)
    $275/sqft
  • $/sqft (Finished)
    $275/sqft
  • Listing Source
  • MLS Number
    2423260
  • Listing Broker
    Angela Cramer
  • Listing Office
    Redfin
  • Buyer's Broker
    Shari Kruse
  • Buyer Broker's Firm
    Windermere West Metro
Monthly Payment Estimate
  • Principal and Interest
    $4,220 / month
  • Property Taxes
    $658 / month
  • Homeowners Insurance
    $160 / month
  • TOTAL
    $5,038 / month

  • based on 20% down
    ($161,000)
  • and a
    6.85% Interest Rate
  • About:
    All calculations are estimates only and provided by Mainview LLC. Actual amounts will vary.
House Details
  • Sqft (Total)
    2,930 sqft
  • Sqft (Finished)
    2,930 sqft
  • Sqft (Unfinished)
    None
  • Property Type
    House
  • Sub Type
    1 1/2 Stories + Basement
  • Bedrooms
    4 Bedrooms
  • Bathrooms
    1.75 Bathrooms
  • Lot
    7,560 sqft Lot
  • Lot Size Source
    Realist - Buyer to Verify All
  • Lot #
    Unspecified
  • Project
    Unspecified
  • Total Stories
    2 stories
  • Basement
    Daylight
  • Sqft Source
    Realist - Buyer to Verify All
Property Tax Info
  • 2025 Property Taxes
    $7,890 / year
  • No Senior Exemption
Public Parcel Data & Maps
Schools
  • School District
    Seattle
  • Elementary
    Arbor Heights
  • Middle
    Denny Mid
  • High School
    Sealth High
HOA
  • HOA Dues
    Unspecified
  • Fees Assessed
    Unspecified
  • HOA Dues Include
    Unspecified
  • HOA Contact
    Unspecified
  • Management Contact
    Unspecified
Parking
  • Covered
    1-Car
  • Types
    Detached Garage
  • Has Garage
    Yes
  • Nbr of Assigned Spaces
    1
Construction
  • Year Built
    1943
  • Home Builder
    Unspecified
Cooling
  • Includes
    None
Heating
  • Includes
    Forced Air
Interior
  • Flooring
    Ceramic Tile
    Concrete
    Hardwood
  • Features
    Double Pane/Storm Window
    Dining Room
    Fireplace
Property
  • Lot Features
    Adjacent to Public Land
    Alley
    Curbs
    Paved
    Sidewalk
  • Site Features
    Deck
    Fenced-Fully
Appliances
  • Included
    Dishwasher(s)
    Disposal
    Dryer(s)
    Microwave(s)
    Refrigerator(s)
    Stove(s)/Range(s)
    Washer(s)
Terms
  • Bank Owned (REO)
    No
Utilities
  • Energy
    Electric
    Natural Gas
  • Sewer
    Sewer Connected
  • Water Source
    Public
Additional Info
  • Waterfront
    No
  • Air Conditioning (A/C)
    No
  • Buyer Broker's Compensation
    2.5%
  • MLS Area #
    Area 140
  • Number of Photos
    35
  • Last Modification Time
    Monday, September 29, 2025 2:23 PM
  • System Listing ID
    5474550
Update Info
  • Closed
    2025-09-29 14:27:24
  • Pending Or Ctg
    2025-09-09 09:13:06
  • Price Reduction
    2025-09-01 12:49:00
  • First For Sale
    2025-08-21 12:49:37
Listing details based on information submitted to the MLS GRID as of Monday, September 29, 2025 2:23 PM. All data is obtained from various sources and may not have been verified by broker or MLS GRID. Supplied Open House Information is subject to change without notice. All information should be independently reviewed and verified for accuracy. Properties may or may not be listed by the office/agent presenting the information.
View
Sort

Sharing

 
Sold September 29, 2025
$805,000   $824,950
4 BR    1.75 BA    2,930 SQFT  
NWMLS #2423260. Angela Cramer, Redfin
Map
 
Listing information is provided by the listing agent except as follows: BuilderB indicates that our system has grouped this listing under a home builder name that doesn't match the name provided by the listing broker. DevelopmentD indicates that our system has grouped this listing under a development name that doesn't match the name provided by the listing broker.