to
Reset
Houses
Townhouses
Condos
Land
Price
to
SQFT
to
Bdrms
to
Baths
to
Lot
to
Yr Built
to
Sold
Listed within...
Listed at least...
Offer Review
New Construction
Waterfront
Short-Sales
REO
Parking
to
Unit Flr
to
Unit Nbr
Listings
Neighborhoods
Complexes
Developments
Cities
Counties
Zip Codes
Neighborhood · Condo · Development
School District
Zip Code
City
County
Builder
Listing Numbers
Broker LAG
Boundary Lines
Labels
View
Sort
▼ Recently Reduced $5K
For Sale 101 Days Online
$694,900
Originally $749,900
3 Bedrooms
1.75 Bathrooms
1,534 Sqft Townhome
New Construction
Built 2025
689 Sqft Lot
No Garage
HOA Dues $47 / month
2.875% Interest Rate! Shelter Homes' 30 YR FIXED rate of 5.875% jumpstarted w/ a 3-2-1 Buy Down! Year 2=3.875%, Yr 3=4.875%! Call for details! Discover Elm nestled in the heart of Greenwood. This stunning 3-bedroom home spans over 1,500 sq ft & features bright, open-concept living, dining spaces, a private fenced patio, a chef-inspired kitchen w/ stainless steel appl., & separated guest quarters. The expansive top-floor primary suite offers a luxurious 4-piece spa-like bath & private South-facing balcony. Live steps from QFC, Met Market, top-rated dining, cozy cafés, Soundview Playfield, & Carkeek Park. Enjoy quick access to I-5, Hwy 99, & transit options. Modern elegance, comfort, convenience, and your perfect new home await at Elm.
Offer Review
Will review offers when submitted
Builder
Listing source NWMLS MLS #
2391582
Listed by
Kate Douglas, Windermere RE/Capitol Hill,Inc
Ian Porter, Windermere RE/Capitol Hill,Inc
Open Houses
Sunday Oct 5, 2025   1pm - 3pm
Contact our
Greenwood
Real Estate Lead
John L. Scott
Phone...
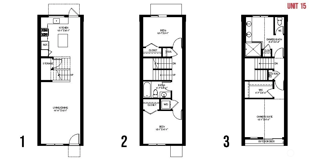
Bedroom & Bathroom Layout
SECOND
BDRM
BDRM
BDRM
FULL
BATH
¾
BATH
Property History
Oct 03, 2025
Price Reduction arrow_downward
$694,900
NWMLS #2391582
Sep 03, 2025
Price Reduction arrow_downward
$699,900
NWMLS #2391582
Aug 22, 2025
Listed
$745,900
NWMLS #2391582
Oct 03, 2025
Price Reduction arrow_downward
$694,900
Sep 03, 2025
Price Reduction arrow_downward
$699,900
Aug 22, 2025
Listed
$745,900
Aug 21, 2025
Price Reduction arrow_downward
$745,900
Aug 14, 2025
Listed
$749,900
Aug 21, 2025
Price Reduction arrow_downward
$745,900
NWMLS #2391582
Aug 14, 2025
Price Increase arrow_upward
$749,900
NWMLS #2391582
Jul 31, 2025
Price Reduction arrow_downward
$745,900
NWMLS #2391582
Jun 26, 2025
Listed
$749,900
NWMLS #2391582
More
Listing Details
  • Status
    For Sale
  • Price
    $694,900
  • Original Price
    $749,900
  • List Date
    June 26, 2025
  • Last Status Change
    August 22, 2025
  • Last Update
    October 3, 2025
  • Days on Market
    101 Days
  • Cumulative DOM
    73 Days
  • $/sqft (Total)
    $453/sqft
  • $/sqft (Finished)
    Same
  • Listing Source
  • MLS Number
    2391582
  • Listing Broker
    Kate Douglas
  • Listing Office
    Windermere RE/Capitol Hill,Inc
Monthly Payment Estimate
  • Principal and Interest
    $3,643 / month
  • HOA
    $47 / month
  • Property Taxes
    $0 / month
  • Homeowners Insurance
    $140 / month
  • TOTAL
    $3,830 / month

  • based on 20% down
    ($138,980)
  • and a
    6.85% Interest Rate
  • About:
    All calculations are estimates only and provided by Mainview LLC. Actual amounts will vary.
Townhouse Details
  • Unit Floor
    Unspecified
  • Sqft (Total)
    1,534 sqft
  • Sqft (Finished)
    1,534 sqft
  • Sqft (Unfinished)
    None
  • Property Type
    Townhome
  • Sub Type
    Townhouse
  • Bedrooms
    3 Bedrooms
  • Bathrooms
    1.75 Bathrooms
  • Lot
    689 sqft Lot
  • Lot Size Source
    County Records
  • Lot #
    Unspecified
  • Project
    Unspecified
  • Total Stories
    Unspecified
  • Basement
    None
  • Sqft Source
    Builder Plan Set
Property Tax Info
  • 2025 Property Taxes
    $1 / year
  • No Senior Exemption
Public Parcel Data & Maps
Schools
  • School District
    Seattle
  • Elementary
    Viewlands
  • Middle
    Whitman Mid
  • High School
    Ingraham High
HOA
  • HOA Dues
    $47 / month
  • Fees Assessed
    Monthly
  • HOA Dues Include
    Unspecified
  • HOA Contact
    Unspecified
  • Management Contact
Community Features
  • Community Features
    CCRs
Building
  • Name
    Unspecified
  • Units in Complex
    Unspecified
  • Units in Building
    Unspecified
  • Stories in Building
    Unspecified
Parking
  • Covered
    Unspecified
  • Types
    Off Street
  • Has Garage
    No
Views
  • Mountain(s)
    Territorial
Construction
  • Year Built
    2025
  • New Construction
    Yes
  • Construction State
    Unspecified
  • Home Builder
    Shelter Homes
Cooling
  • Includes
    Ductless
Heating
  • Includes
    Ductless
    Wall Unit(s)
Interior
  • Flooring
    Ceramic Tile
    Laminate
    Carpet
  • Features
    Bath Off Primary
    Double Pane/Storm Window
    High Tech Cabling
    Vaulted Ceiling(s)
    Walk-In Closet(s)
    Water Heater
Property
  • Lot Features
    Curbs
    Paved
    Sidewalk
  • Site Features
    Fenced-Partially
    High Speed Internet
    Patio
Appliances
  • Included
    Dishwasher(s)
    Disposal
    Microwave(s)
    Refrigerator(s)
    Stove(s)/Range(s)
Terms
  • 3rd Party Approval Required)
    No
  • Bank Owned (REO)
    No
  • Complex FHA Availability
    Unspecified
  • Potential Terms
    Conventional
    FHA
Utilities
  • Energy
    Electric
  • Sewer
    Sewer Connected
  • Water Source
    Public
Additional Info
  • Waterfront
    No
  • Air Conditioning (A/C)
    Yes
  • Buyer Broker's Compensation
    3.0%
  • MLS Area #
    Area 705
  • Number of Photos
    19
  • Last Modification Time
    Friday, October 3, 2025 2:42 PM
  • System Listing ID
    5475355
Update Info
  • Price Reduction
    2025-10-03 14:47:26
  • Public Open Houses
    2025-10-02 21:55:08
  • First For Sale
    2025-08-22 15:28:00
Listing details based on information submitted to the MLS GRID as of Friday, October 3, 2025 2:42 PM. All data is obtained from various sources and may not have been verified by broker or MLS GRID. Supplied Open House Information is subject to change without notice. All information should be independently reviewed and verified for accuracy. Properties may or may not be listed by the office/agent presenting the information.
View
Sort

Sharing

 
OPEN For Sale 101 Days Online
$694,900     ▼ Price Reduction $5K
3 BR    1.75 BA    1,534 SQFT  
OPEN HOUSES
Sunday Oct 5, 2025   1pm - 3pm
Offer Review: Anytime
NWMLS #2391582. Kate Douglas, Windermere RE/Capitol Hill,Inc
Map
 
Listing information is provided by the listing agent except as follows: BuilderB indicates that our system has grouped this listing under a home builder name that doesn't match the name provided by the listing broker. DevelopmentD indicates that our system has grouped this listing under a development name that doesn't match the name provided by the listing broker.