to
Reset
Houses
Townhouses
Condos
Land
Price
to
SQFT
to
Bdrms
to
Baths
to
Lot
to
Yr Built
to
Sold
Listed within...
Listed at least...
Offer Review
New Construction
Waterfront
Short-Sales
REO
Parking
to
Unit Flr
to
Unit Nbr
Listings
Neighborhoods
Complexes
Developments
Cities
Counties
Zip Codes
Neighborhood · Condo · Development
School District
Zip Code
City
County
Builder
Listing Numbers
Broker LAG
Boundary Lines
Labels
View
Sort
Sold Closed October 9, 2025
$769,000
2 Bedrooms
1.75 Bathrooms
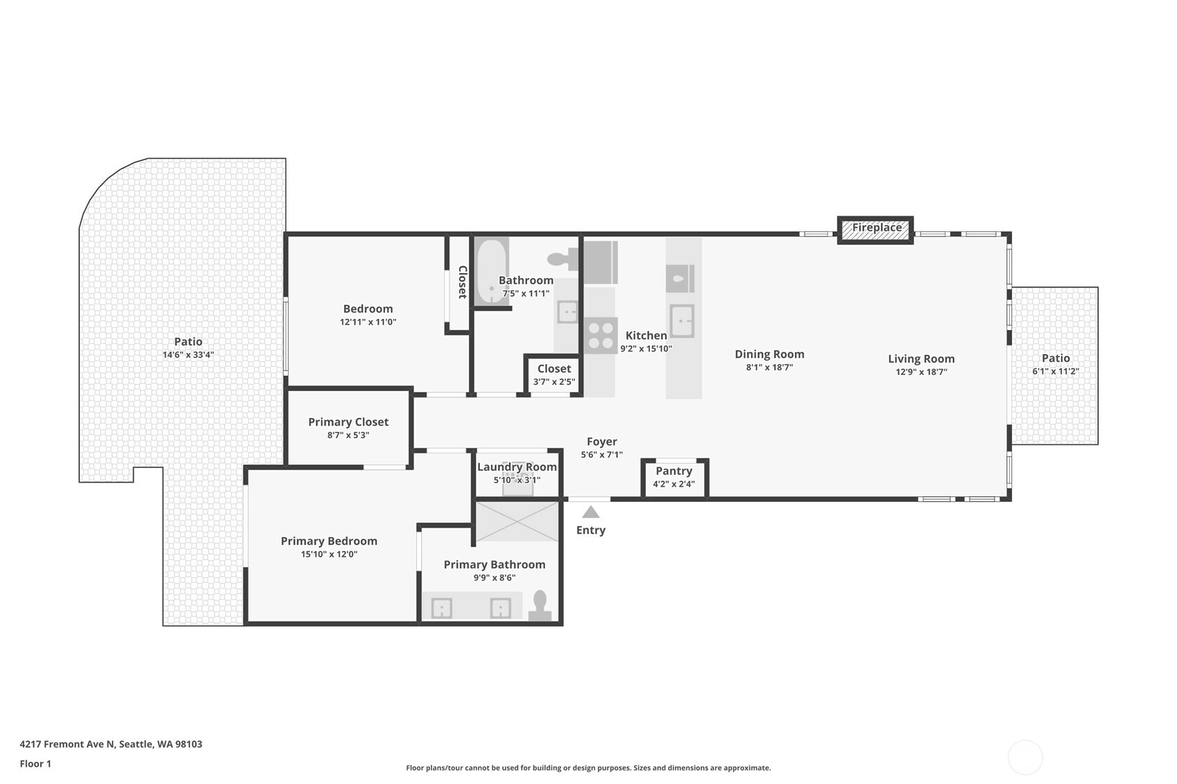
1,168 Sqft Condo
Unit 2
Floor 1
Built 2006
2 Parking Spaces
HOA Dues $650 / month
SALE HISTORY
List price was $769,000
It took 18 days to go pending.
Then 24 days to close at $769,000
Closed at $658/SQFT.
Bright and spacious ideally located Fremont condo! With 2 patios and rare 2 secure parking spots, this 2-bedroom home has all of the features you desire. From the large open living room to the chef's kitchen with high-end appliances, and lovely primary bedroom suite, this condo has plenty of space to relax and entertain. Abundant counter and storage space in the kitchen, incl pantry closet. Plenty of room for a large dining table. Both bedrooms have new carpet and look out to the spacious rear patio. Great small building with only 6 units, storage & very welcoming to pets! Incredible Fremont location near it all, right in between Le Coin and Paseo and a block to Caffe Vita! Enjoy the vibrant neighborhood & amenities right outside your door!
Offer Review
No offer review date was specified
Project
4217 Fremont Ave N Condominium
Listing source NWMLS MLS #
2426348
Listed by
Heather Stovall, Portico Real Estate
Buyer's broker
Junior Torres, Windermere RE Greenwood
Contact our
Fremont
Real Estate Lead
John L. Scott
Phone...
Time Adjusted Estimated Value
County Wide
  • In
    King County WA
  • prices for
    Condos
  • have changed
    -4%
  • since
    Oct 9, 2025
  • so a sale price of
    $769,000
  • would be approximately this amount today
    $738,240
City Wide
  • In
    Seattle WA
  • prices for
    Condos
  • have changed
    -5%
  • since
    Oct 9, 2025
  • so a sale price of
    $769,000
  • would be approximately this amount today
    $730,550
Assumptions: The original sale amount reflected a normal arms length sale. Any major updates would add to the value. Any damage or deferred maintenance would subtract from the value.
Bedroom & Bathroom Layout
MAIN
BDRM
BDRM
FULL
BATH
¾
BATH
Property History
Oct 09, 2025
Sold
$769,000
NWMLS #2426348 Annualized 1.9% / yr
Sep 24, 2025
Went Pending
$769,000
NWMLS #2426348
Sep 15, 2025
Went Pending Inspection
$769,000
NWMLS #2426348
Aug 28, 2025
Listed
$769,000
NWMLS #2426348
Nov 15, 2007
Sold
$549,950
More
Listing Details
  • Sale Price
    $769,000
  • Closing Date
    October 9, 2025
  • Last List Price
    $769,000
  • Original Price
    Same
  • List Date
    August 28, 2025
  • Pending Date
    September 15, 2025
  • Days to go Pending
    18 days
  • $/sqft (Total)
    $658/sqft
  • $/sqft (Finished)
    $658/sqft
  • Listing Source
  • MLS Number
    2426348
  • Listing Broker
    Heather Stovall
  • Listing Office
    Portico Real Estate
  • Buyer's Broker
    Junior Torres
  • Buyer Broker's Firm
    Windermere RE Greenwood
Monthly Payment Estimate
  • Principal and Interest
    $4,031 / month
  • HOA
    $650 / month
  • Property Taxes
    $592 / month
  • Homeowners Insurance
    $153 / month
  • TOTAL
    $5,426 / month

  • based on 20% down
    ($153,800)
  • and a
    6.85% Interest Rate
  • About:
    All calculations are estimates only and provided by Mainview LLC. Actual amounts will vary.
Condo Details
  • Unit #
    2
  • Unit Floor
    1
  • Sqft (Total)
    1,168 sqft
  • Sqft (Finished)
    Unspecified
  • Sqft (Unfinished)
    None
  • Property Type
    Condo
  • Sub Type
    Condo (1 Level)
  • Bedrooms
    2 Bedrooms
  • Bathrooms
    1.75 Bathrooms
  • Lot Size
    Unspecified
  • Lot Size Source
    Unspecified
  • Project
    4217 Fremont Ave N Condominium
  • Total Stories
    1 story
  • Sqft Source
    KCR
Property Tax Info
  • 2025 Property Taxes
    $7,102 / year
  • No Senior Exemption
Public Parcel Data & Maps
Schools
  • School District
    Seattle
  • Elementary
    Bf Day
  • Middle
    Hamilton Mid
  • High School
    Lincoln High
HOA
  • HOA Dues
    $650 / month
  • Fees Assessed
    Monthly
  • HOA Dues Include
    Common Area Maintenance
    Sewer
    Trash
    Water
  • Pets Allowed
    Cats OK
    Dogs OK
    See Remarks
    Yes
  • HOA Contact
    Unspecified
  • Management Contact
    Unspecified
Community Features
  • Community Features
    Cable TV
    Elevator
    Garden Space
    High Speed Int Avail
    Lobby Entrance
Building
  • Name
    4217 Fremont Ave N Condominium
  • Units in Complex
    6
  • Units in Building
    6
  • Stories in Building
    3
Parking
  • Covered
    2-Car
  • Types
    Common Garage
  • Has Garage
    Yes
  • Nbr of Assigned Spaces
    2
  • Parking Space Info
    3 & 4
Construction
  • Year Built
    2006
  • Home Builder
    Unspecified
Cooling
  • Includes
    None
Heating
  • Includes
    Baseboard
Interior
  • Flooring
    Bamboo/Cork
    Ceramic Tile
    Carpet
  • Features
    Cooking-Gas
    Dryer-Electric
    End Unit
    Fireplace
    Ground Floor
    Insulated Windows
    Primary Bathroom
    Walk-In Closet(s)
    Washer
Property
  • Lot Features
    Curbs
    Paved
    Sidewalk
Appliances
  • Included
    Dishwasher(s)
    Disposal
    Dryer(s)
    Microwave(s)
    Refrigerator(s)
    Stove(s)/Range(s)
    Washer(s)
Terms
  • Bank Owned (REO)
    No
Utilities
  • Energy
    Electric
    Natural Gas
Additional Info
  • Waterfront
    No
  • Air Conditioning (A/C)
    No
  • Buyer Broker's Compensation
    2.5%
  • MLS Area #
    Area 705
  • Number of Photos
    40
  • Last Modification Time
    Sunday, November 9, 2025 4:02 AM
  • System Listing ID
    5476718
Update Info
  • Closed
    2025-10-09 14:24:01
  • Pending Or Ctg
    2025-09-24 19:56:23
  • First For Sale
    2025-08-28 12:49:25
Listing details based on information submitted to the MLS GRID as of Sunday, November 9, 2025 4:02 AM. All data is obtained from various sources and may not have been verified by broker or MLS GRID. Supplied Open House Information is subject to change without notice. All information should be independently reviewed and verified for accuracy. Properties may or may not be listed by the office/agent presenting the information.
View
Sort

Sharing

 
Sold October 9, 2025
$769,000  
2 BR    1.75 BA    1,168 SQFT  
NWMLS #2426348. Heather Stovall, Portico Real Estate
Map
 
Listing information is provided by the listing agent except as follows: BuilderB indicates that our system has grouped this listing under a home builder name that doesn't match the name provided by the listing broker. DevelopmentD indicates that our system has grouped this listing under a development name that doesn't match the name provided by the listing broker.