to
Reset
Houses
Townhouses
Condos
Land
Price
to
SQFT
to
Bdrms
to
Baths
to
Lot
to
Yr Built
to
Sold
Listed within...
Listed at least...
Offer Review
New Construction
Waterfront
Short-Sales
REO
Parking
to
Unit Flr
to
Unit Nbr
Listings
Neighborhoods
Complexes
Developments
Cities
Counties
Zip Codes
Neighborhood · Condo · Development
School District
Zip Code
City
County
Builder
Listing Numbers
Broker LAG
Boundary Lines
Labels
View
Sort
Pending Went pending in 21 days
$900,000
4 Bedrooms
2.5 Bathrooms
2,215 Sqft House
Waterfront
Built 1990
20,473 Sqft Lot
3-Car Garage
The seller has reached an agreement with a buyer to sell this property. If things go as planned, the sale will become final in the near future. The buyer and seller have agreed on a price but it's not public until the sale closes. The last published list price was $900,000.
Where the sparkling waters meet the skies, this waterfront sanctuary blends coastal elegance with tranquil spaces. The stylish kitchen will dazzle with quartz, custom cabinetry, tasteful tile – all flowing into dining & open living spaces. Upstairs is a serene primary suite with a private view balcony and a new private bath; 3 add’l rooms & remodeled bath. Expansive decks invite sunrise coffees & sunset gatherings with private beach and tidelands for kayaking, clamming, or simply savoring the shore. Garages and outbuildings available to store your ATV’s; Kayaks; and more! More than a beach house, this is your undefined future. Located off a quiet street, minutes from Grapeview Marina, Lakeview Golf, Fresh & Saltwater fishing and sports.
Offer Review
No offer review date was specified
Listing source NWMLS MLS #
2418458
Listed by
Regina Madiera-Gorden, Windermere RE West Campus Inc
Madison Bingham, Windermere RE West Campus Inc
We don't currently have a buyer representative in this area. To be sure that you're getting objective advice, we always suggest buyers work with their own agent, someone who is not affiliated with the seller.
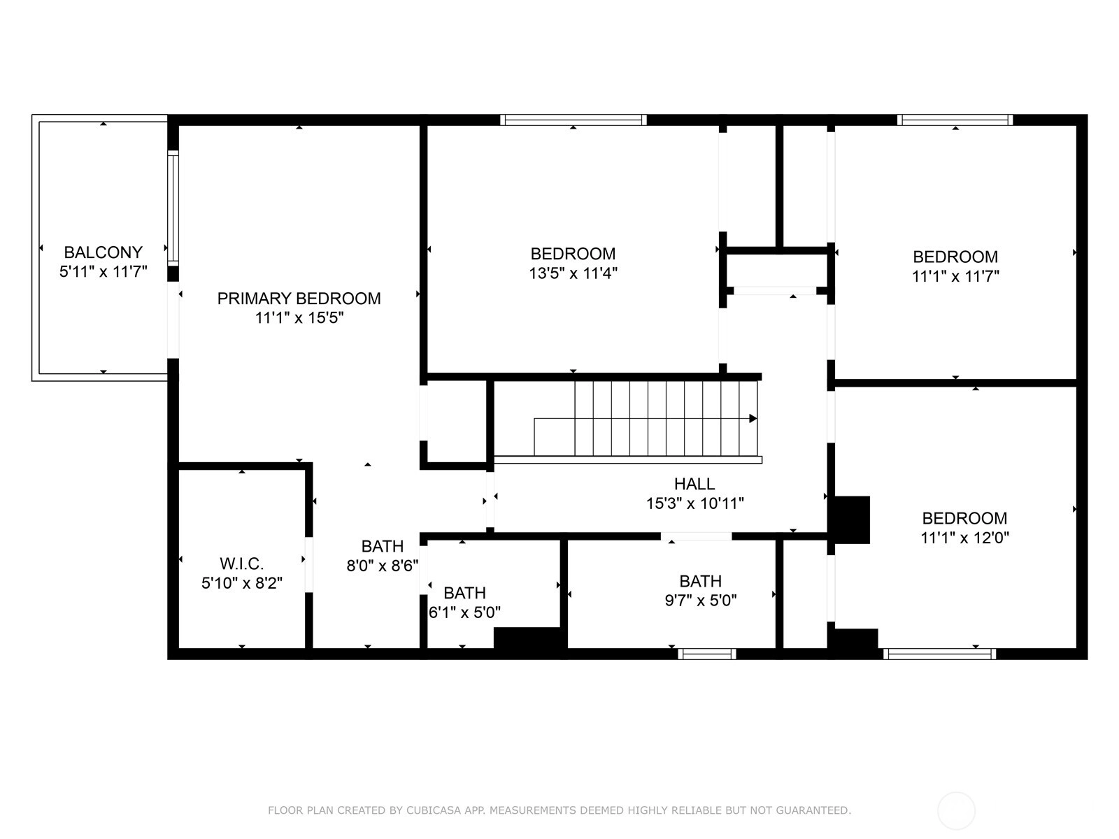
Bedroom & Bathroom Layout
SECOND
BDRM
BDRM
BDRM
BDRM
FULL
BATH
¾
BATH
MAIN
¾
BATH
Property History
Sep 19, 2025
Went Pending
$900,000
NWMLS #2418458
Aug 28, 2025
Listed
$900,000
NWMLS #2418458
More
Listing Details
  • Status
    Pending
  • Last Listed Price
    $900,000
  • Original Price
    Same as current
  • List Date
    August 28, 2025
  • Last Status Change
    September 19, 2025
  • Last Update
    September 19, 2025
  • Days on Market
    44 Days
  • Cumulative DOM
    21 Days
  • Pending Date
    September 18, 2025
  • Days to go Pending
    21
  • $/sqft (Total)
    $406/sqft
  • $/sqft (Finished)
    $406/sqft
  • Listing Source
  • MLS Number
    2418458
  • Listing Broker
    Regina Madiera-Gorden
  • Listing Office
    Windermere RE West Campus Inc
Monthly Payment Estimate
  • Principal and Interest
    $4,718 / month
  • Property Taxes
    $513 / month
  • Homeowners Insurance
    $178 / month
  • TOTAL
    $5,409 / month

  • based on 20% down
    ($180,000)
  • and a
    6.85% Interest Rate
  • About:
    All calculations are estimates only and provided by Mainview LLC. Actual amounts will vary.
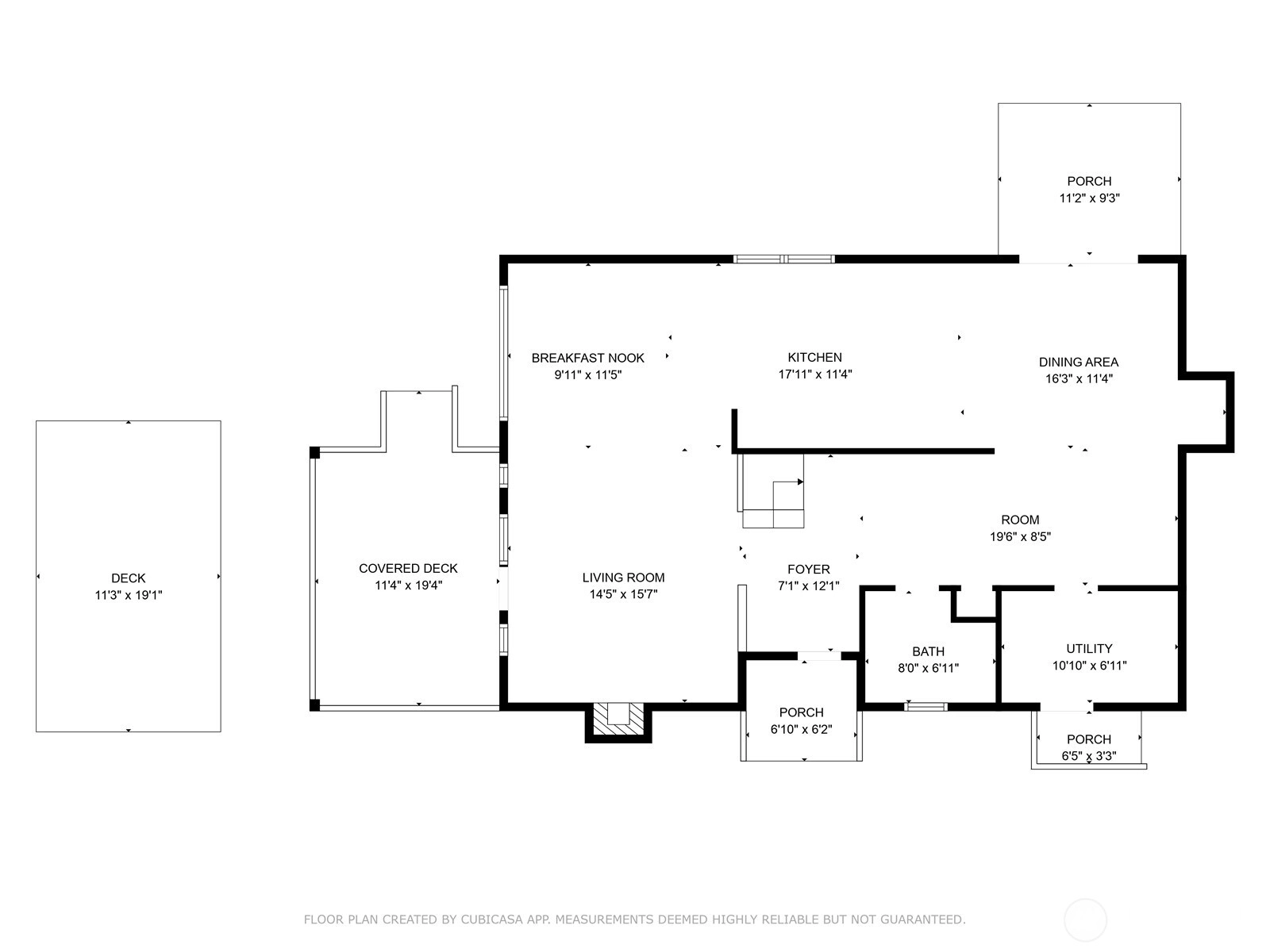
House Details
  • Sqft (Total)
    2,215 sqft
  • Sqft (Finished)
    2,215 sqft
  • Sqft (Unfinished)
    None
  • Property Type
    House
  • Sub Type
    2 Story
  • Bedrooms
    4 Bedrooms
  • Bathrooms
    2.5 Bathrooms
  • Lot
    20,473 sqft Lot
  • Lot Size Source
    Co Assessor
  • Lot #
    Unspecified
  • Project
    Unspecified
  • Total Stories
    2 stories
  • Basement
    None
  • Sqft Source
    Co Assessor
Property Tax Info
  • 2025 Property Taxes
    $6,155 / year
  • No Senior Exemption
Public Parcel Data & Maps
  • County
    Mason County
  • Parcel #
    121055131004
  • County Website
    Unspecified
  • County Parcel Map
    Unspecified
  • County GIS Map
    Unspecified
  • About
    County links provided by Mainview LLC
Schools
  • School District
    Grapeview #54
  • Elementary
    Unspecified
  • Middle
    Unspecified
  • High School
    Unspecified
Waterfront
  • Waterfront
    Yes
  • Type
    No Bank
    Saltwater
    Sound
  • Frontage
    45 Feet
HOA
  • HOA Dues
    Unspecified
  • Fees Assessed
    Unspecified
  • HOA Dues Include
    Unspecified
  • HOA Contact
    Unspecified
  • Management Contact
Parking
  • Covered
    3-Car
  • Types
    Detached Carport
    Driveway
    Detached Garage
    RV Parking
  • Has Garage
    Yes
  • Nbr of Assigned Spaces
    3
Views
  • Sound
Construction
  • Year Built
    1990
  • Home Builder
    Unspecified
Cooling
  • Includes
    90%+ High Efficiency
    Central A/C
    Heat Pump
Heating
  • Includes
    90%+ High Efficiency
    Heat Pump
Interior
  • Flooring
    Laminate
    Vinyl
    Carpet
  • Features
    Bath Off Primary
    Ceiling Fan(s)
    Double Pane/Storm Window
    Dining Room
    Fireplace
    Vaulted Ceiling(s)
    Walk-In Closet(s)
    Water Heater
    Wine/Beverage Refrigerator
Property
  • Lot Features
    Cul-De-Sac
    Dead End Street
    Dirt Road
    Secluded
  • Site Features
    Cable TV
    Deck
    High Speed Internet
    Moorage
    Outbuildings
    Patio
    RV Parking
Appliances
  • Included
    Dishwasher(s)
    Dryer(s)
    Refrigerator(s)
    Stove(s)/Range(s)
    Washer(s)
Terms
  • 3rd Party Approval Required)
    No
  • Bank Owned (REO)
    No
  • Complex FHA Availability
    Unspecified
  • Potential Terms
    Cash Out
    Conventional
    FHA
    VA Loan
Utilities
  • Energy
    Electric
  • Sewer
    Septic Tank
  • Water Source
    Individual Well
Additional Info
  • Waterfront
    Yes
  • Air Conditioning (A/C)
    Yes
  • Buyer Broker's Compensation
    2.5
  • MLS Area #
    Area 180
  • Number of Photos
    40
  • Last Modification Time
    Friday, September 19, 2025 12:45 PM
  • System Listing ID
    5477038
Update Info
  • Pending Or Ctg
    2025-09-19 13:01:28
  • First For Sale
    2025-08-28 22:14:00
Listing details based on information submitted to the MLS GRID as of Friday, September 19, 2025 12:45 PM. All data is obtained from various sources and may not have been verified by broker or MLS GRID. Supplied Open House Information is subject to change without notice. All information should be independently reviewed and verified for accuracy. Properties may or may not be listed by the office/agent presenting the information.
View
Sort

Sharing

 
Pending September 18, 2025
$900,000  
4 BR    2.5 BA    2,215 SQFT  
NWMLS #2418458. Regina Madiera-Gorden, Windermere RE West Campus Inc
Map
 
Listing information is provided by the listing agent except as follows: BuilderB indicates that our system has grouped this listing under a home builder name that doesn't match the name provided by the listing broker. DevelopmentD indicates that our system has grouped this listing under a development name that doesn't match the name provided by the listing broker.