to
Reset
Houses
Townhouses
Condos
Land
Price
to
SQFT
to
Bdrms
to
Baths
to
Lot
to
Yr Built
to
Sold
Listed within...
Listed at least...
Offer Review
New Construction
Waterfront
Short-Sales
REO
Parking
to
Unit Flr
to
Unit Nbr
Listings
Neighborhoods
Complexes
Developments
Cities
Counties
Zip Codes
Neighborhood · Condo · Development
School District
Zip Code
City
County
Builder
Listing Numbers
Broker LAG
Boundary Lines
Labels
View
Sort
Sold Closed March 17, 2026
$377,000
Originally $450,000
3 Bedrooms
2 Bathrooms
1,616 Sqft House
Built 1940
10,000 Sqft Lot
2-Car Garage
SALE HISTORY
List price was $450,000
The price was later changed to $385,000.
It took 165 days to go pending.
Then 34 days to close at $377,000
Closed at $233/SQFT.
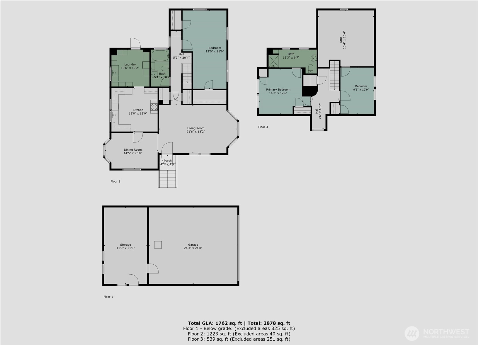
Welcome Home! 1940 Cape Cod classic beauty blends timeless charm with tasteful updates throughout. Spacious primary suite on the main with a private sitting/dressing area, while upstairs a 2nd bedroom suite includes its own private bath - ideal for guests. Bathrooms have been remodeled and there is plenty of walk-in attic storage. Set on a fully fenced ¼ acre lot, the property features raised garden beds, a greenhouse, and a detached two-car garage with separate shop area. A garden patio with wood-burning fireplace - perfect for entertaining. Meticulously kept and located just mins from the beach, this home offers comfort, function, and style for that tranquil coastal life!
Offer Review
No offer review date was specified
Listing source NWMLS MLS #
2427365
Listed by
Shane Todd, Real Broker LLC
Buyer's broker
Anthony Black, North Beach Realty OS LLC
We don't currently have a buyer representative in this area. To be sure that you're getting objective advice, we always suggest buyers work with their own agent, someone who is not affiliated with the seller.
Bedroom & Bathroom Layout
SECOND
BDRM
BDRM
FULL
BATH
MAIN
BDRM
FULL
BATH
Property History
Mar 21, 2026
Sold
$377,000
NWMLS #2427365
Feb 11, 2026
Went Pending
$385,000
NWMLS #2427365
Jan 12, 2026
Price Reduction arrow_downward
$385,000
NWMLS #2427365
Oct 09, 2025
Price Reduction arrow_downward
$399,900
NWMLS #2427365
Sep 15, 2025
Price Reduction arrow_downward
$425,000
NWMLS #2427365
Aug 30, 2025
Listed
$450,000
NWMLS #2427365
More
Listing Details
  • Sale Price
    $377,000
  • Closing Date
    March 17, 2026
  • Last List Price
    $385,000
  • Original Price
    $450,000
  • List Date
    August 30, 2025
  • Pending Date
    February 11, 2026
  • Days to go Pending
    165 days
  • $/sqft (Total)
    $233/sqft
  • $/sqft (Finished)
    $233/sqft
  • Listing Source
  • MLS Number
    2427365
  • Listing Broker
    Shane Todd
  • Listing Office
    Real Broker LLC
  • Buyer's Broker
    Anthony Black
  • Buyer Broker's Firm
    North Beach Realty OS LLC
Monthly Payment Estimate
  • Principal and Interest
    $1,976 / month
  • Property Taxes
    $222 / month
  • Homeowners Insurance
    $89 / month
  • TOTAL
    $2,287 / month

  • based on 20% down
    ($75,400)
  • and a
    6.85% Interest Rate
  • About:
    All calculations are estimates only and provided by Mainview LLC. Actual amounts will vary.
House Details
  • Sqft (Total)
    1,616 sqft
  • Sqft (Finished)
    1,616 sqft
  • Sqft (Unfinished)
    None
  • Property Type
    House
  • Sub Type
    2 Story
  • Bedrooms
    3 Bedrooms
  • Bathrooms
    2 Bathrooms
  • Lot
    10,000 sqft Lot
  • Lot Size Source
    Real List
  • Lot #
    Unspecified
  • Project
    Unspecified
  • Total Stories
    2 stories
  • Basement
    None
  • Sqft Source
    Real List
Property Tax Info
  • 2025 Property Taxes
    $2,661 / year
  • No Senior Exemption
Public Parcel Data & Maps
  • County
    Grays Harbor County
  • Parcel #
    102502400101
  • County Website
    Unspecified
  • County Parcel Map
    Unspecified
  • County GIS Map
    Unspecified
  • About
    County links provided by Mainview LLC
Schools
  • School District
    Ocosta
  • Elementary
    Ocosta Elem
  • Middle
    Ocosta Jnr - Snr Hig
  • High School
    Ocosta Jnr - Snr Hig
HOA
  • HOA Dues
    Unspecified
  • Fees Assessed
    Unspecified
  • HOA Dues Include
    Unspecified
  • HOA Contact
    Unspecified
  • Management Contact
    Unspecified
Parking
  • Covered
    2-Car
  • Types
    Detached Garage
  • Has Garage
    Yes
  • Nbr of Assigned Spaces
    2
Views
  • Bay
    Partial
    Territorial
Construction
  • Year Built
    1940
  • Home Builder
    Unspecified
Cooling
  • Includes
    None
Heating
  • Includes
    Baseboard
Interior
  • Flooring
    Ceramic Tile
    Carpet
  • Features
    Ceiling Fan(s)
    Dbl Pane/Storm Window
    Fireplace
    Vaulted Ceiling(s)
    Walk-In Closet(s)
    Water Heater
Property
  • Lot Features
    Corner Lot
    Open Space
    Paved
  • Site Features
    Fenced-Fully
    Green House
    Patio
    Propane
    Shop
Appliances
  • Included
    Dishwasher
    Microwave
    Refrigerator
    Stove(s)/Range(s)
Terms
  • Bank Owned (REO)
    No
Utilities
  • Energy
    Electric
    Propane
  • Sewer
    Sewer Connected
  • Water Source
    Public
Additional Info
  • Waterfront
    No
  • Air Conditioning (A/C)
    No
  • Buyer Broker's Compensation
    2.5%
  • MLS Area #
    Area 206
  • Number of Photos
    40
  • Last Modification Time
    Saturday, March 21, 2026 10:57 AM
  • System Listing ID
    5477573
Update Info
  • Closed
    2026-03-21 11:01:00
  • Pending Or Ctg
    2026-02-11 16:27:53
  • Price Reduction
    2026-01-12 12:21:20
  • First For Sale
    2025-08-30 20:38:51
Listing details based on information submitted to the MLS GRID as of Saturday, March 21, 2026 10:57 AM. All data is obtained from various sources and may not have been verified by broker or MLS GRID. Supplied Open House Information is subject to change without notice. All information should be independently reviewed and verified for accuracy. Properties may or may not be listed by the office/agent presenting the information.
View
Sort

Sharing

 
Sold March 17, 2026
$377,000   $385,000
3 BR    2 BA    1,616 SQFT  
NWMLS #2427365. Shane Todd, Real Broker LLC
Map
 
Listing information is provided by the listing agent except as follows: BuilderB indicates that our system has grouped this listing under a home builder name that doesn't match the name provided by the listing broker. DevelopmentD indicates that our system has grouped this listing under a development name that doesn't match the name provided by the listing broker.