to
Reset
Houses
Townhouses
Condos
Land
Price
to
SQFT
to
Bdrms
to
Baths
to
Lot
to
Yr Built
to
Sold
Listed within...
Listed at least...
Offer Review
New Construction
Waterfront
Short-Sales
REO
Parking
to
Unit Flr
to
Unit Nbr
Listings
Neighborhoods
Complexes
Developments
Cities
Counties
Zip Codes
Neighborhood · Condo · Development
School District
Zip Code
City
County
Builder
Listing Numbers
Broker LAG
Boundary Lines
Labels
View
Sort
Pending Went pending in 54 days
$1,099,000
Originally $1,185,000
5 Bedrooms
2.25 Bathrooms
2,377 Sqft House
Built 1956
15,246 Sqft Lot
2-Car Garage
PENDING SALE. This listing went Pending on October 27, 2025

Some pending sales don't become final. Contact Us if this property is really important to you so we can check on it right now. The seller has reached an agreement with a buyer to sell this property. If things go as planned, the sale will become final in the near future. The buyer and seller have agreed on a price but it's not public until the sale closes. The last published list price was $1,099,000.
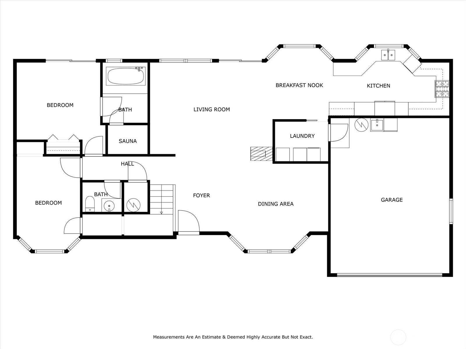
Hard to come by two-story home in desirable Ardenwood neighborhood of SW Edmonds! Tucked away on a loop of quiet non -through streets, in a well established community where pride of ownership is apparent. This versatile floor plan offers 5 bedrooms + den/office and 2.25 baths, including a rare 4 bedrooms upstairs and 1 on the main level. Unwind in your own private sauna or enjoy the outdoors in a large backyard with an expansive deck overlooking native landscaping—perfect for year-round PNW living. Located on the border of Edmonds and Richmond Beach, it is just minutes to downtown Edmonds, beaches/waterfront, parks, shopping, ferry and freeway access. Located in the highly regarded Edmonds School District and truly move-in ready!
Offer Review
No offer review date was specified
Listing source NWMLS MLS #
2428862
Listed by
Megan Walla, Windermere Real Estate GH LLC
Jennie Reed, Windermere Real Estate GH LLC
Contact our
Shoreline
Real Estate Lead
Windermere Real Estate / North, Inc
Phone...
Bedroom & Bathroom Layout
SECOND
BDRM
BDRM
BDRM
BDRM
FULL
BATH
¾
BATH
MAIN
BDRM
½
BATH
Property History
Oct 27, 2025
Went Pending
$1,099,000
NWMLS #2428862
Oct 20, 2025
Price Reduction arrow_downward
$1,099,000
NWMLS #2428862
Oct 03, 2025
Price Reduction arrow_downward
$1,135,000
NWMLS #2428862
Sep 25, 2025
Price Reduction arrow_downward
$1,160,000
NWMLS #2428862
Sep 03, 2025
Listed
$1,185,000
NWMLS #2428862
More
Listing Details
  • Status
    Pending
  • Last Listed Price
    $1,099,000
  • Original Price
    $1,185,000
  • List Date
    September 3, 2025
  • Last Status Change
    October 28, 2025
  • Last Update
    October 28, 2025
  • Days on Market
    83 Days
  • Cumulative DOM
    54 Days
  • Pending Date
    October 27, 2025
  • Days to go Pending
    54
  • $/sqft (Total)
    $462/sqft
  • $/sqft (Finished)
    $462/sqft
  • Listing Source
  • MLS Number
    2428862
  • Listing Broker
    Megan Walla
  • Listing Office
    Windermere Real Estate GH LLC
Monthly Payment Estimate
  • Principal and Interest
    $5,761 / month
  • Property Taxes
    $496 / month
  • Homeowners Insurance
    $214 / month
  • TOTAL
    $6,471 / month

  • based on 20% down
    ($219,800)
  • and a
    6.85% Interest Rate
  • About:
    All calculations are estimates only and provided by Mainview LLC. Actual amounts will vary.
House Details
  • Sqft (Total)
    2,377 sqft
  • Sqft (Finished)
    2,377 sqft
  • Sqft (Unfinished)
    None
  • Property Type
    House
  • Sub Type
    2 Story
  • Bedrooms
    5 Bedrooms
  • Bathrooms
    2.25 Bathrooms
  • Lot
    15,246 sqft Lot
  • Lot Size Source
    tax records
  • Lot #
    Unspecified
  • Project
    Unspecified
  • Total Stories
    2 stories
  • Basement
    None
  • Sqft Source
    tax records
Property Tax Info
  • 2025 Property Taxes
    $5,951 / year
  • No Senior Exemption
Public Parcel Data & Maps
Schools
  • School District
    Edmonds
  • Elementary
    Sherwood ElemSw
  • Middle
    College Pl Mid
  • High School
    Edmonds Woodway High
HOA
  • HOA Dues
    Unspecified
  • Fees Assessed
    Unspecified
  • HOA Dues Include
    Unspecified
  • HOA Contact
    Unspecified
  • Management Contact
Parking
  • Covered
    2-Car
  • Types
    Attached Garage
  • Has Garage
    Yes
  • Nbr of Assigned Spaces
    2
Construction
  • Year Built
    1956
  • Home Builder
    Unspecified
Cooling
  • Includes
    None
Heating
  • Includes
    Forced Air
Interior
  • Flooring
    Ceramic Tile
    Hardwood
    Carpet
  • Features
    Bath Off Primary
    Double Pane/Storm Window
    Dining Room
    Fireplace
    Jetted Tub
    Sauna
    Skylight(s)
    Walk-In Closet(s)
    Water Heater
Property
  • Lot Features
    Dead End Street
    Paved
  • Site Features
    Cable TV
    Deck
    Fenced-Partially
    High Speed Internet
    Irrigation
    Outbuildings
    Propane
    Sprinkler System
Appliances
  • Included
    Dishwasher(s)
    Disposal
    Dryer(s)
    Microwave(s)
    Refrigerator(s)
    Stove(s)/Range(s)
    Washer(s)
Terms
  • 3rd Party Approval Required)
    No
  • Bank Owned (REO)
    No
  • Complex FHA Availability
    Unspecified
  • Potential Terms
    Cash Out
    Conventional
    FHA
    VA Loan
Utilities
  • Energy
    Electric
    Propane
  • Sewer
    Sewer Connected
  • Water Source
    Public
Additional Info
  • Waterfront
    No
  • Air Conditioning (A/C)
    No
  • Buyer Broker's Compensation
    2.5%
  • MLS Area #
    Area 715
  • Number of Photos
    40
  • Last Modification Time
    Monday, October 27, 2025 9:40 PM
  • System Listing ID
    5478327
Update Info
  • Pending Or Ctg
    2025-10-27 21:47:52
  • Price Reduction
    2025-10-20 07:42:47
  • First For Sale
    2025-09-03 14:20:44
Listing details based on information submitted to the MLS GRID as of Monday, October 27, 2025 9:40 PM. All data is obtained from various sources and may not have been verified by broker or MLS GRID. Supplied Open House Information is subject to change without notice. All information should be independently reviewed and verified for accuracy. Properties may or may not be listed by the office/agent presenting the information.
View
Sort

Sharing

 
Pending October 27, 2025
$1,099,000  
5 BR    2.25 BA    2,377 SQFT  
NWMLS #2428862. Megan Walla, Windermere Real Estate GH LLC
Map
 
Listing information is provided by the listing agent except as follows: BuilderB indicates that our system has grouped this listing under a home builder name that doesn't match the name provided by the listing broker. DevelopmentD indicates that our system has grouped this listing under a development name that doesn't match the name provided by the listing broker.