to
Reset
Houses
Townhouses
Condos
Land
Price
to
SQFT
to
Bdrms
to
Baths
to
Lot
to
Yr Built
to
Sold
Listed within...
Listed at least...
Offer Review
New Construction
Waterfront
Short-Sales
REO
Parking
to
Unit Flr
to
Unit Nbr
Listings
Neighborhoods
Complexes
Developments
Cities
Counties
Zip Codes
Neighborhood · Condo · Development
School District
Zip Code
City
County
Builder
Listing Numbers
Broker LAG
Boundary Lines
Labels
View
Sort
Sold Closed December 30, 2025
$895,000
Originally $949,950
3 Bedrooms
1 Bathroom
1,840 Sqft House
Built 1956
5,500 Sqft Lot
2-Car Garage
SALE HISTORY
List price was $949,950
The price was later changed to $899,950.
It took 99 days to go pending.
Then 19 days to close at $895,000
Closed at $486/SQFT.
This charming 3BR/1BA Gem is located close to the Alaska Junction & Ercolini Park. Modern upgrades throughout. Hardwood floors, built-ins, abundant light w/warm ambiance. The kitchen dazzles with new appliances & cozy dining area w/wood burning stove. Spacious family room ethanol fireplace, opens to a covered patio & fully fenced backyard perfect for entertaining & gardening. Detached shop/studio & upstairs office nook. Move-in ready w/Elfa Closets, newer roof, furnace, windows, updated electrical, plumbing, and insulated crawlspace. A/C, & laundry that can be easily converted to an additional bathroom. EV-ready wiring. Steps from shops, dining, Farmers Market, easy access to DT Seattle & ferries & top schools. The lot has DADU potential!
Offer Review
No offer review date was specified
Listing source NWMLS MLS #
2428832
Listed by
Seth Raddue, Aris360
Blake Brown, Aris360
Buyer's broker
Christine Holcomb, Redfin
Contact our
West Seattle
Real Estate Lead
John L. Scott
Phone...
Time Adjusted Estimated Value
County Wide
  • In
    King County WA
  • prices for
    Single Family Homes
  • have changed
    10%
  • since
    Dec 30, 2025
  • so a sale price of
    $895,000
  • would be approximately this amount today
    $1,007,063
City Wide
  • In
    Seattle WA
  • prices for
    Single Family Homes
  • have changed
    13%
  • since
    Dec 30, 2025
  • so a sale price of
    $895,000
  • would be approximately this amount today
    $1,040,684
Assumptions: The original sale amount reflected a normal arms length sale. Any major updates would add to the value. Any damage or deferred maintenance would subtract from the value.
Bedroom & Bathroom Layout
SECOND
BDRM
MAIN
BDRM
BDRM
FULL
BATH
Property History
Jan 06, 2026
Sold
$895,000
NWMLS #2428832 Annualized 2% / yr
Dec 11, 2025
Went Pending
$899,950
NWMLS #2428832
Nov 15, 2025
Price Reduction arrow_downward
$899,950
NWMLS #2428832
Oct 08, 2025
Price Reduction arrow_downward
$919,950
NWMLS #2428832
Sep 03, 2025
Listed
$949,950
NWMLS #2428832
Apr 23, 2017
Sold
$753,000
NWMLS #1089633 Annualized 16.1% / yr
Sep 06, 2011
Sold
$325,000
More
Listing Details
  • Sale Price
    $895,000
  • Closing Date
    December 30, 2025
  • Last List Price
    $899,950
  • Original Price
    $949,950
  • List Date
    September 3, 2025
  • Pending Date
    December 11, 2025
  • Days to go Pending
    99 days
  • $/sqft (Total)
    $486/sqft
  • $/sqft (Finished)
    $486/sqft
  • Listing Source
  • MLS Number
    2428832
  • Listing Broker
    Seth Raddue
  • Listing Office
    Aris360
  • Buyer's Broker
    Christine Holcomb
  • Buyer Broker's Firm
    Redfin
Monthly Payment Estimate
  • Principal and Interest
    $4,692 / month
  • Property Taxes
    $760 / month
  • Homeowners Insurance
    $177 / month
  • TOTAL
    $5,629 / month

  • based on 20% down
    ($179,000)
  • and a
    6.85% Interest Rate
  • About:
    All calculations are estimates only and provided by Mainview LLC. Actual amounts will vary.
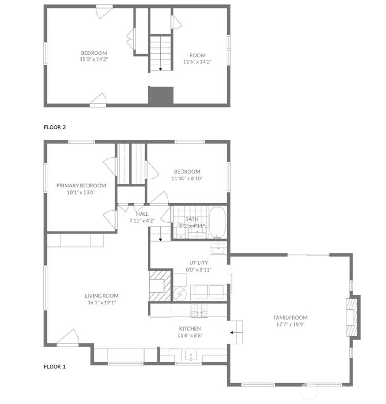
House Details
  • Sqft (Total)
    1,840 sqft
  • Sqft (Finished)
    1,840 sqft
  • Sqft (Unfinished)
    None
  • Property Type
    House
  • Sub Type
    1 1/2 Story
  • Bedrooms
    3 Bedrooms
  • Bathrooms
    1 Bathroom
  • Lot
    5,500 sqft Lot
  • Lot Size Source
    King County
  • Lot #
    21-24
  • Project
    Unspecified
  • Total Stories
    2 stories
  • Basement
    None
  • Sqft Source
    King County
Property Tax Info
  • 2025 Property Taxes
    $9,114 / year
  • No Senior Exemption
Public Parcel Data & Maps
Schools
  • School District
    Seattle
  • Elementary
    Genesee Hill Elementary
  • Middle
    Madison Mid
  • High School
    West Seattle High
HOA
  • HOA Dues
    Unspecified
  • Fees Assessed
    Unspecified
  • HOA Dues Include
    Unspecified
  • HOA Contact
    Unspecified
  • Management Contact
    Unspecified
Community Features
  • Community Features
    Athletic Court
    Park
    Playground
Parking
  • Covered
    2-Car
  • Types
    Detached Carport
    Driveway
    Off Street
    RV Parking
  • Has Garage
    Yes
  • Nbr of Assigned Spaces
    2
Views
  • Territorial
Construction
  • Year Built
    1956
  • Home Builder
    Unspecified
Cooling
  • Includes
    Central A/C
Heating
  • Includes
    Forced Air
Interior
  • Flooring
    Ceramic Tile
    Hardwood
    Vinyl
  • Features
    Ceiling Fan(s)
    Double Pane/Storm Window
    Dining Room
    Fireplace
    High Tech Cabling
    Security System
    Skylight(s)
    Water Heater
    Wet Bar
    Wine Cellar
Property
  • Lot Features
    Alley
    Corner Lot
    Curbs
    Paved
    Sidewalk
  • Site Features
    Cable TV
    Deck
    Dog Run
    Fenced-Fully
    Gas Available
    High Speed Internet
    Outbuildings
    Patio
    RV Parking
    Shop
Appliances
  • Included
    Dishwasher(s)
    Disposal
    Dryer(s)
    Microwave(s)
    Refrigerator(s)
    Stove(s)/Range(s)
    Washer(s)
Terms
  • Bank Owned (REO)
    No
Utilities
  • Energy
    Natural Gas
  • Sewer
    Sewer Connected
  • Water Source
    Public
Additional Info
  • Waterfront
    No
  • Air Conditioning (A/C)
    Yes
  • Buyer Broker's Compensation
    2.5%
  • MLS Area #
    Area 140
  • Number of Photos
    38
  • Last Modification Time
    Friday, January 30, 2026 4:05 AM
  • System Listing ID
    5478452
Update Info
  • Closed
    2026-01-06 14:36:33
  • Pending Or Ctg
    2025-12-11 15:40:23
  • Price Reduction
    2025-11-15 16:24:08
  • First For Sale
    2025-09-03 17:02:36
Listing details based on information submitted to the MLS GRID as of Friday, January 30, 2026 4:05 AM. All data is obtained from various sources and may not have been verified by broker or MLS GRID. Supplied Open House Information is subject to change without notice. All information should be independently reviewed and verified for accuracy. Properties may or may not be listed by the office/agent presenting the information.
View
Sort

Sharing

 
Sold December 30, 2025
$895,000   $899,950
3 BR    1 BA    1,840 SQFT  
NWMLS #2428832. Seth Raddue, Aris360
Map
 
Listing information is provided by the listing agent except as follows: BuilderB indicates that our system has grouped this listing under a home builder name that doesn't match the name provided by the listing broker. DevelopmentD indicates that our system has grouped this listing under a development name that doesn't match the name provided by the listing broker.