to
Reset
Houses
Townhouses
Condos
Land
Price
to
SQFT
to
Bdrms
to
Baths
to
Lot
to
Yr Built
to
Sold
Listed within...
Listed at least...
Offer Review
New Construction
Waterfront
Short-Sales
REO
Parking
to
Unit Flr
to
Unit Nbr
Listings
Neighborhoods
Complexes
Developments
Cities
Counties
Zip Codes
Neighborhood · Condo · Development
School District
Zip Code
City
County
Builder
Listing Numbers
Broker LAG
Boundary Lines
Labels
View
Sort
Pending Went pending in 134 days
$2,324,987
Originally $2,850,000
4 Bedrooms
5 Bathrooms
5,170 Sqft House
Built 2001
1.25 Acres Lot
4-Car Garage
HOA Dues $38 / month
PENDING SALE. This listing went Pending on January 16, 2026

Some pending sales don't become final. Contact Us if this property is really important to you so we can check on it right now. The seller has reached an agreement with a buyer to sell this property. If things go as planned, the sale will become final in the near future. The buyer and seller have agreed on a price but it's not public until the sale closes. The last published list price was $2,324,987.
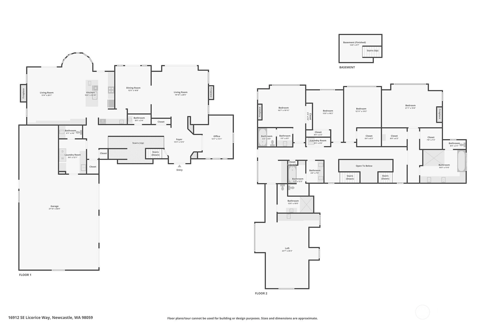
Motivated seller, bring your offers! Custom home in Newcastle’s Licorice Fern. 1+ acre lot on a private drive, this stunning home features 4 beds, a dedicated office, bonus room, and 6 baths. Beautiful switch-back stairs accentuate luxury and function. Rich hardwood floors, custom cabinetry, and elegant finishes throughout. Gourmet kitchen opens to a spacious living area with fireplace. Hidden door reveals a wine cellar, wet bar and added storage. Luxurious primary suite features heated floors, massive shower, and ample closet space. Enjoy stunningly landscaped grounds w/ built-in BBQ and hot tub, and outdoor speakers. Easy access to Bellevue, Seattle, and top Eastside amenities including the highly sought-after Issaquah School District.
Offer Review
No offer review date was specified
Listing source NWMLS MLS #
2428533
Listed by
Cary Porter, The Cascade Team
Keenan Porter, The Cascade Team
Contact our
Newcastle
Real Estate Lead
John L. Scott
Phone...
Bedroom & Bathroom Layout
SECOND
BDRM
BDRM
BDRM
BDRM
FULL
BATH
FULL
BATH
FULL
BATH
FULL
BATH
MAIN
½
BATH
½
BATH
LOWER
Property History
Jan 25, 2026
Went Pending
$2,324,987
NWMLS #2428533
Jan 16, 2026
Went Pending Inspection
$2,324,987
NWMLS #2428533
Jan 08, 2026
Price Reduction arrow_downward
$2,324,987
NWMLS #2428533
Nov 20, 2025
Price Reduction arrow_downward
$2,398,987
NWMLS #2428533
Nov 10, 2025
Price Reduction arrow_downward
$2,498,987
NWMLS #2428533
Nov 07, 2025
Price Reduction arrow_downward
$2,598,987
NWMLS #2428533
Oct 30, 2025
Price Reduction arrow_downward
$2,639,887
NWMLS #2428533
Oct 16, 2025
Price Reduction arrow_downward
$2,699,999
NWMLS #2428533
Sep 25, 2025
Price Reduction arrow_downward
$2,775,000
NWMLS #2428533
Sep 04, 2025
Listed
$2,850,000
NWMLS #2428533
More
Listing Details
  • Status
    Pending
  • Last Listed Price
    $2,324,987
  • Original Price
    $2,850,000
  • List Date
    September 4, 2025
  • Last Status Change
    January 26, 2026
  • Last Update
    January 26, 2026
  • Days on Market
    147 Days
  • Cumulative DOM
    134 Days
  • Pending Date
    January 16, 2026
  • Days to go Pending
    134
  • $/sqft (Total)
    $450/sqft
  • $/sqft (Finished)
    $450/sqft
  • Listing Source
  • MLS Number
    2428533
  • Listing Broker
    Cary Porter
  • Listing Office
    The Cascade Team
Monthly Payment Estimate
  • Principal and Interest
    $12,188 / month
  • HOA
    $38 / month
  • Property Taxes
    $1,581 / month
  • Homeowners Insurance
    $439 / month
  • TOTAL
    $14,245 / month

  • based on 20% down
    ($464,997)
  • and a
    6.85% Interest Rate
  • About:
    All calculations are estimates only and provided by Mainview LLC. Actual amounts will vary.
House Details
  • Sqft (Total)
    5,170 sqft
  • Sqft (Finished)
    5,170 sqft
  • Sqft (Unfinished)
    None
  • Property Type
    House
  • Sub Type
    2 Story
  • Bedrooms
    4 Bedrooms
  • Bathrooms
    5 Bathrooms
  • Lot
    1.25 Acres Lot
  • Lot Size Source
    KCTR
  • Lot #
    Unspecified
  • Project
    Unspecified
  • Total Stories
    2 stories
  • Basement
    Partially Finished
  • Sqft Source
    KCRT
Property Tax Info
  • 2025 Property Taxes
    $18,967 / year
  • No Senior Exemption
Public Parcel Data & Maps
Schools
  • School District
    Issaquah
  • Elementary
    Newcastle
  • Middle
    Cougar Mountain Middle
  • High School
    Liberty Snr High
HOA
  • HOA Dues
    $38 / month
  • Fees Assessed
    Annually
  • HOA Dues Include
    Common Area Maintenance
    Snow Removal
  • HOA Contact
    Unspecified
  • Management Contact
Community Features
  • Community Features
    CCRs
    Trail(s)
Parking
  • Covered
    4-Car
  • Types
    Attached Garage
  • Has Garage
    Yes
  • Nbr of Assigned Spaces
    4
Views
  • Mountain(s)
    Territorial
Construction
  • Year Built
    2001
  • Home Builder
    Acc Builders
Cooling
  • Includes
    Central A/C
    Forced Air
Heating
  • Includes
    Forced Air
Interior
  • Flooring
    Ceramic Tile
    Hardwood
    Carpet
  • Features
    Bath Off Primary
    Ceiling Fan(s)
    Double Pane/Storm Window
    Dining Room
    Fireplace
    Fireplace (Primary Bedroom)
    French Doors
    High Tech Cabling
    Hot Tub/Spa
    Jetted Tub
    Walk-In Closet(s)
    Walk-In Pantry
    Water Heater
    Wine Cellar
    Wired for Generator
Property
  • Lot Features
    Curbs
    Paved
    Secluded
    Sidewalk
  • Site Features
    Cable TV
    Deck
    Gas Available
    High Speed Internet
    Hot Tub/Spa
    Irrigation
    Outbuildings
    Patio
    Sprinkler System
Appliances
  • Included
    Dishwasher(s)
    Disposal
    Double Oven
    Dryer(s)
    Microwave(s)
    Refrigerator(s)
    Stove(s)/Range(s)
    Washer(s)
Terms
  • 3rd Party Approval Required)
    No
  • Bank Owned (REO)
    No
  • Complex FHA Availability
    Unspecified
  • Potential Terms
    Cash Out
    Conventional
    VA Loan
Utilities
  • Energy
    Electric
    Natural Gas
  • Sewer
    Septic Tank
  • Water Source
    Public
Additional Info
  • Waterfront
    No
  • Air Conditioning (A/C)
    Yes
  • Buyer Broker's Compensation
    2.5%
  • MLS Area #
    Area 350
  • Number of Photos
    39
  • Last Modification Time
    Sunday, January 25, 2026 8:02 PM
  • System Listing ID
    5478689
Update Info
  • Pending Or Ctg
    2026-01-25 20:03:50
  • Price Reduction
    2026-01-08 08:42:38
  • First For Sale
    2025-09-04 09:29:43
Listing details based on information submitted to the MLS GRID as of Sunday, January 25, 2026 8:02 PM. All data is obtained from various sources and may not have been verified by broker or MLS GRID. Supplied Open House Information is subject to change without notice. All information should be independently reviewed and verified for accuracy. Properties may or may not be listed by the office/agent presenting the information.
View
Sort

Sharing

 
Pending January 16, 2026
$2,324,987  
4 BR    5 BA    5,170 SQFT  
NWMLS #2428533. Cary Porter, The Cascade Team
Map
 
Listing information is provided by the listing agent except as follows: BuilderB indicates that our system has grouped this listing under a home builder name that doesn't match the name provided by the listing broker. DevelopmentD indicates that our system has grouped this listing under a development name that doesn't match the name provided by the listing broker.