to
Reset
Houses
Townhouses
Condos
Land
Price
to
SQFT
to
Bdrms
to
Baths
to
Lot
to
Yr Built
to
Sold
Listed within...
Listed at least...
Offer Review
New Construction
Waterfront
Short-Sales
REO
Parking
to
Unit Flr
to
Unit Nbr
Listings
Neighborhoods
Complexes
Developments
Cities
Counties
Zip Codes
Neighborhood · Condo · Development
School District
Zip Code
City
County
Builder
Listing Numbers
Broker LAG
Boundary Lines
Labels
View
Sort
Sold Closed October 9, 2025
$850,000
5 Bedrooms
3 Bathrooms
3,188 Sqft House
Built 2019
8,076 Sqft Lot
2-Car Garage
HOA Dues $39 / month
SALE HISTORY
List price was $897,500
It took 14 days to go pending.
Then 21 days to close at $850,000
Closed at $267/SQFT.
Gently lived in Hultquist home is pristine & move-in ready! Pre-pandemic build w/finest materials & craftsmanship. 4 BRs, laundry & sitting area upstairs, incl. lovely primary bath w/soaking tub. Main floor 5th BR w/ensuite access to full bath is perfect for guests or multi-gen. Thoughtful details inside & out include sturdy Hardie Plank siding & trim, roofline outlets for holiday lights, landscaped private patio plumbed for gas BBQ, Smurf panel & system for easy tech upgrades, tankless hot water, gas furnace & wi-fi compatible Trane smart system heat pump/AC. Main floor 9' ceilings, tons of windows, durable LVP flooring and mudroom entry from garage. Modern kitchen w/pantry & gas stove. Dead-end lane shared w/1 home. Just mins from Hwy 18.
Offer Review
No offer review date was specified
Listing source NWMLS MLS #
2428161
Listed by
Kim Davis, Alta Homes
Chris Thomsen, Alta Homes
Buyer's broker
Cobi Clark, C2 Real Estate LLC
Contact our
Auburn
Real Estate Lead
TPG Realty | Keller Williams
Phone...
Time Adjusted Estimated Value
County Wide
  • In
    King County WA
  • prices for
    Single Family Homes
  • have changed
    -6%
  • since
    Oct 9, 2025
  • so a sale price of
    $850,000
  • would be approximately this amount today
    $800,188
Assumptions: The original sale amount reflected a normal arms length sale. Any major updates would add to the value. Any damage or deferred maintenance would subtract from the value.
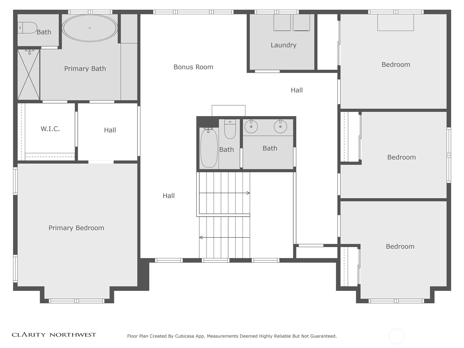
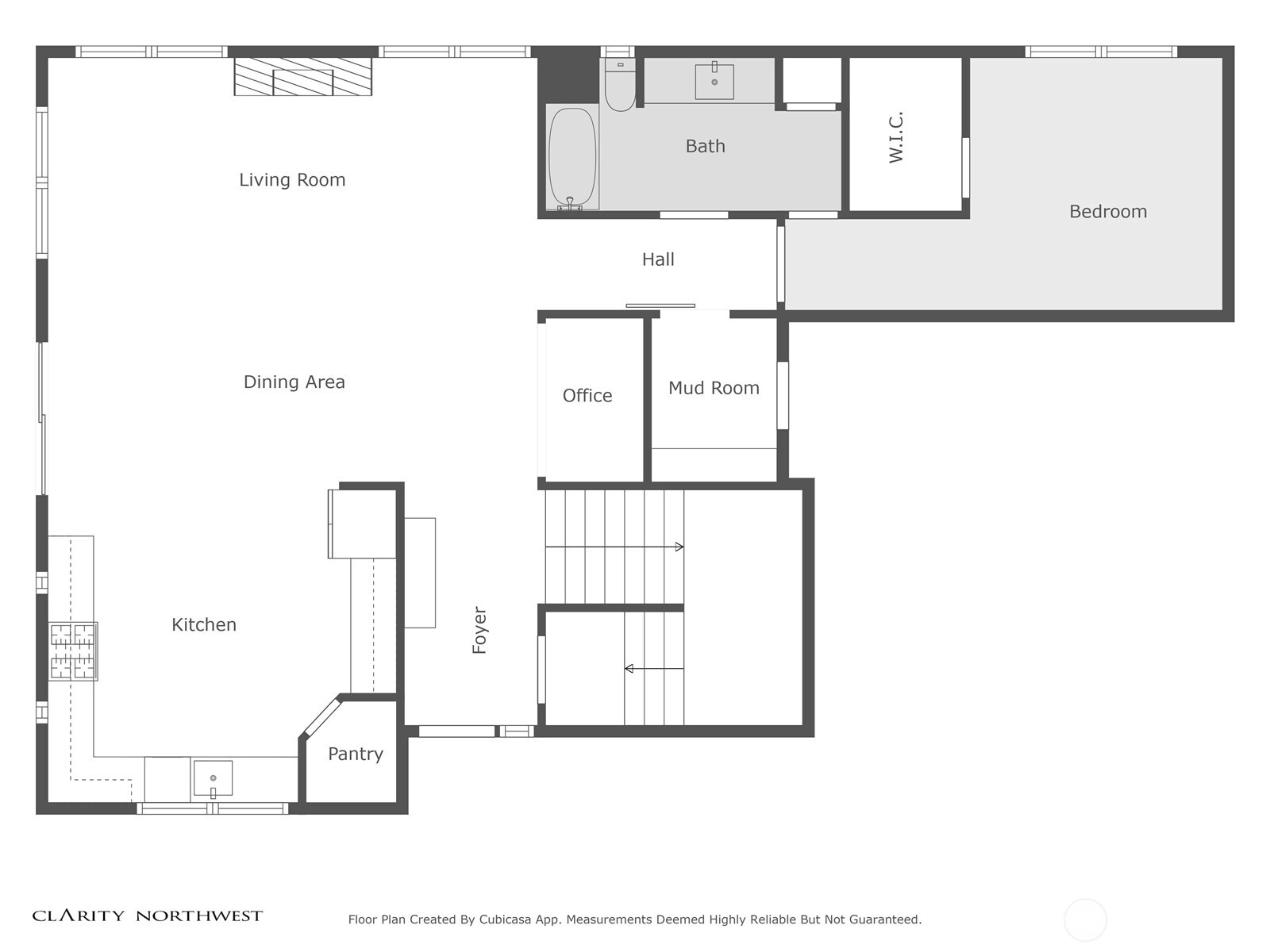
Bedroom & Bathroom Layout
SECOND
BDRM
BDRM
BDRM
BDRM
FULL
BATH
FULL
BATH
MAIN
BDRM
FULL
BATH
Property History
Oct 09, 2025
Sold
$850,000
NWMLS #2428161 Annualized 6% / yr
Sep 18, 2025
Went Pending
$897,500
NWMLS #2428161
Sep 04, 2025
Listed
$897,500
NWMLS #2428161
Oct 17, 2019
Sold
$600,650
More
Listing Details
  • Sale Price
    $850,000
  • Closing Date
    October 9, 2025
  • Last List Price
    $897,500
  • Original Price
    Same
  • List Date
    September 4, 2025
  • Pending Date
    September 18, 2025
  • Days to go Pending
    14 days
  • $/sqft (Total)
    $267/sqft
  • $/sqft (Finished)
    $267/sqft
  • Listing Source
  • MLS Number
    2428161
  • Listing Broker
    Kim Davis
  • Listing Office
    Alta Homes
  • Buyer's Broker
    Cobi Clark
  • Buyer Broker's Firm
    C2 Real Estate LLC
Monthly Payment Estimate
  • Principal and Interest
    $4,456 / month
  • HOA
    $39 / month
  • Property Taxes
    $801 / month
  • Homeowners Insurance
    $168 / month
  • TOTAL
    $5,464 / month

  • based on 20% down
    ($170,000)
  • and a
    6.85% Interest Rate
  • About:
    All calculations are estimates only and provided by Mainview LLC. Actual amounts will vary.
House Details
  • Sqft (Total)
    3,188 sqft
  • Sqft (Finished)
    3,188 sqft
  • Sqft (Unfinished)
    None
  • Property Type
    House
  • Sub Type
    2 Story
  • Bedrooms
    5 Bedrooms
  • Bathrooms
    3 Bathrooms
  • Lot
    8,076 sqft Lot
  • Lot Size Source
    King County Assessor
  • Lot #
    Unspecified
  • Project
    Willow Place
  • Total Stories
    2 stories
  • Basement
    None
  • Sqft Source
    King County Assessor
Property Tax Info
  • 2025 Property Taxes
    $9,610 / year
  • No Senior Exemption
Public Parcel Data & Maps
Schools
  • School District
    Auburn
  • Elementary
    Buyer To Verify
  • Middle
    Rainier Mid
  • High School
    Mountainview High
HOA
  • HOA Dues
    $39 / month
  • Fees Assessed
    Annually
  • HOA Dues Include
    Common Area Maintenance
    See Remarks
  • HOA Contact
    Unspecified
  • Management Contact
    Unspecified
Community Features
  • Community Features
    CCRs
Parking
  • Covered
    2-Car
  • Types
    Attached Garage
  • Has Garage
    Yes
  • Nbr of Assigned Spaces
    2
Views
  • Mountain(s)
    Partial
    Pond
    Territorial
Construction
  • Year Built
    2019
  • Home Builder
    Huiltquist Homes
Cooling
  • Includes
    90%+ High Efficiency
    Forced Air
    Heat Pump
Heating
  • Includes
    90%+ High Efficiency
    Forced Air
    Heat Pump
Interior
  • Flooring
    Ceramic Tile
    Vinyl
    Vinyl Plank
    Carpet
  • Features
    Second Primary Bedroom
    Bath Off Primary
    Double Pane/Storm Window
    Dining Room
    Fireplace
    Loft
    Walk-In Closet(s)
    Walk-In Pantry
    Water Heater
Property
  • Lot Features
    Corner Lot
    Cul-De-Sac
    Dead End Street
    Paved
    Sidewalk
  • Site Features
    Cable TV
    Deck
    Fenced-Fully
    High Speed Internet
    Patio
Appliances
  • Included
    Dishwasher(s)
    Disposal
    Dryer(s)
    Microwave(s)
    Refrigerator(s)
    Stove(s)/Range(s)
    Washer(s)
Terms
  • Bank Owned (REO)
    No
Utilities
  • Energy
    Natural Gas
  • Sewer
    Sewer Connected
  • Water Source
    Public
Additional Info
  • Waterfront
    No
  • Air Conditioning (A/C)
    Yes
  • Buyer Broker's Compensation
    2.5%
  • MLS Area #
    Area 310
  • Number of Photos
    37
  • Last Modification Time
    Sunday, November 9, 2025 4:02 AM
  • System Listing ID
    5479108
Update Info
  • Closed
    2025-10-09 13:57:43
  • Pending Or Ctg
    2025-09-18 20:24:34
  • First For Sale
    2025-09-04 13:48:26
Listing details based on information submitted to the MLS GRID as of Sunday, November 9, 2025 4:02 AM. All data is obtained from various sources and may not have been verified by broker or MLS GRID. Supplied Open House Information is subject to change without notice. All information should be independently reviewed and verified for accuracy. Properties may or may not be listed by the office/agent presenting the information.
View
Sort

Sharing

 
Sold October 9, 2025
$850,000   $897,500
5 BR    3 BA    3,188 SQFT  
NWMLS #2428161. Kim Davis, Alta Homes
Map
 
Listing information is provided by the listing agent except as follows: BuilderB indicates that our system has grouped this listing under a home builder name that doesn't match the name provided by the listing broker. DevelopmentD indicates that our system has grouped this listing under a development name that doesn't match the name provided by the listing broker.