to
Reset
Houses
Townhouses
Condos
Land
Price
to
SQFT
to
Bdrms
to
Baths
to
Lot
to
Yr Built
to
Sold
Listed within...
Listed at least...
Offer Review
New Construction
Waterfront
Short-Sales
REO
Parking
to
Unit Flr
to
Unit Nbr
Listings
Neighborhoods
Complexes
Developments
Cities
Counties
Zip Codes
Neighborhood · Condo · Development
School District
Zip Code
City
County
Builder
Listing Numbers
Broker LAG
Boundary Lines
Labels
View
Sort
Pending Inspection Went pending in 29 days
$399,000
Originally $409,000
4 Bedrooms
2 Bathrooms
2,482 Sqft House (1,602 Finished)
Built 1901
3,920 Sqft Lot
3-Car Garage
PENDING SALE. This listing went Pending Inspection on October 8, 2025

Some pending sales don't become final. Contact Us if this property is really important to you so we can check on it right now. The seller has reached an agreement with a buyer to sell this property. If things go as planned, the sale will become final in the near future. The buyer and seller have agreed on a price but it's not public until the sale closes. The last published list price was $399,000.
Step back in time with this character-rich 1901 bungalow, brimming with historic charm and waiting for your personal touch. Four bedrooms, 1 3/4 bath, and 1,602 sq. ft. of living space. Sitting on a 0.09-acre lot, this home features an 880 sq. ft. unfinished basement—ideal for storage or future expansion. You’ll love the original hardwood floors, crown molding, high ceilings. Windows, plumbing, and electrical systems have been updated. Enjoy partial water and mountain views from the deck, and take advantage of off-street parking for four vehicles, including a garage. Conveniently located to PSNS, with a bus stop at your doorstep, this home offers a perfect mix of charm, location, and investment potential.
Offer Review
No offer review date was specified
Listing source NWMLS MLS #
2428034
Listed by
Annette Stewart, G Anderson Group LLC
Gary Anderson, G Anderson Group LLC
Contact our
Bremerton
Real Estate Lead
My Kitsap Homes, LLC
Phone...
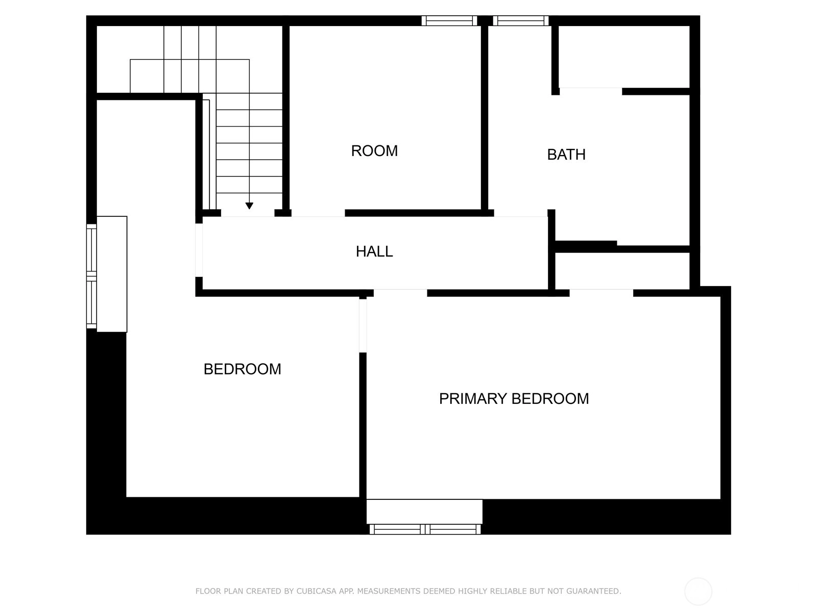
Bedroom & Bathroom Layout
SECOND
BDRM
BDRM
BDRM
FULL
BATH
MAIN
BDRM
FULL
BATH
LOWER
Property History
Oct 09, 2025
Went Pending Inspection
$399,000
NWMLS #2428034
Oct 01, 2025
Price Reduction arrow_downward
$399,000
NWMLS #2428034
Sep 09, 2025
Listed
$409,000
NWMLS #2428034
More
Listing Details
  • Status
    Pending Inspection
  • Last Listed Price
    $399,000
  • Original Price
    $409,000
  • List Date
    September 9, 2025
  • Last Status Change
    October 9, 2025
  • Last Update
    October 9, 2025
  • Days on Market
    34 Days
  • Cumulative DOM
    29 Days
  • Pending Date
    October 8, 2025
  • Days to go Pending
    29
  • $/sqft (Total)
    $161/sqft
  • $/sqft (Finished)
    $249/sqft
  • Listing Source
  • MLS Number
    2428034
  • Listing Broker
    Annette Stewart
  • Listing Office
    G Anderson Group LLC
Monthly Payment Estimate
  • Principal and Interest
    $2,092 / month
  • Property Taxes
    $290 / month
  • Homeowners Insurance
    $92 / month
  • TOTAL
    $2,474 / month

  • based on 20% down
    ($79,800)
  • and a
    6.85% Interest Rate
  • About:
    All calculations are estimates only and provided by Mainview LLC. Actual amounts will vary.
House Details
  • Sqft (Total)
    2,482 sqft
  • Sqft (Finished)
    1,602 sqft
  • Sqft (Unfinished)
    880 sqft
  • Property Type
    House
  • Sub Type
    2 Stories + Basement
  • Bedrooms
    4 Bedrooms
  • Bathrooms
    2 Bathrooms
  • Lot
    3,920 sqft Lot
  • Lot Size Source
    KC Parcel Search
  • Lot #
    001-01
  • Project
    Unspecified
  • Total Stories
    3 stories
  • Basement
    Unfinished
  • Sqft Source
    KC Parcel Search
Property Tax Info
  • 2025 Property Taxes
    $3,480 / year
  • No Senior Exemption
Public Parcel Data & Maps
Schools
  • School District
    Bremerton #100c
  • Elementary
    Naval Avenue Elem
  • Middle
    Mtn View Mid
  • High School
    Bremerton High
HOA
  • HOA Dues
    Unspecified
  • Fees Assessed
    Unspecified
  • HOA Dues Include
    Unspecified
  • HOA Contact
    Unspecified
  • Management Contact
Parking
  • Covered
    3-Car
  • Types
    Attached Carport
    Attached Garage
    Off Street
  • Has Garage
    Yes
  • Nbr of Assigned Spaces
    3
Views
  • Bay
    Partial
Construction
  • Year Built
    1901
  • Home Builder
    Unspecified
Cooling
  • Includes
    None
Heating
  • Includes
    Radiant
Interior
  • Flooring
    Hardwood
    Vinyl
    Carpet
  • Features
    Dining Room
    Vaulted Ceiling(s)
Property
  • Lot Features
    Corner Lot
    Curbs
    Paved
    Sidewalk
  • Site Features
    Deck
    Fenced-Partially
    Gas Available
Appliances
  • Included
    Dishwasher(s)
    Refrigerator(s)
    Stove(s)/Range(s)
Terms
  • 3rd Party Approval Required)
    No
  • Bank Owned (REO)
    No
  • Complex FHA Availability
    Unspecified
  • Potential Terms
    Cash Out
    Conventional
    FHA
    VA Loan
Utilities
  • Energy
    Electric
    Natural Gas
  • Sewer
    Sewer Connected
  • Water Source
    Public
Additional Info
  • Waterfront
    No
  • Air Conditioning (A/C)
    No
  • Buyer Broker's Compensation
    2.5%
  • MLS Area #
    Area 148
  • Number of Photos
    34
  • Last Modification Time
    Thursday, October 9, 2025 2:08 PM
  • System Listing ID
    5480671
Update Info
  • Pending Or Ctg
    2025-10-09 14:23:57
  • Price Reduction
    2025-10-01 11:55:20
  • First For Sale
    2025-09-09 13:42:13
Listing details based on information submitted to the MLS GRID as of Thursday, October 9, 2025 2:08 PM. All data is obtained from various sources and may not have been verified by broker or MLS GRID. Supplied Open House Information is subject to change without notice. All information should be independently reviewed and verified for accuracy. Properties may or may not be listed by the office/agent presenting the information.
View
Sort

Sharing

 
Pending Inspection October 8, 2025
$399,000  
4 BR    2 BA    2,482 SQFT  
NWMLS #2428034. Annette Stewart, G Anderson Group LLC
Map
 
Listing information is provided by the listing agent except as follows: BuilderB indicates that our system has grouped this listing under a home builder name that doesn't match the name provided by the listing broker. DevelopmentD indicates that our system has grouped this listing under a development name that doesn't match the name provided by the listing broker.