to
Reset
Houses
Townhouses
Condos
Land
Price
to
SQFT
to
Bdrms
to
Baths
to
Lot
to
Yr Built
to
Sold
Listed within...
Listed at least...
Offer Review
New Construction
Waterfront
Short-Sales
REO
Parking
to
Unit Flr
to
Unit Nbr
Listings
Neighborhoods
Complexes
Developments
Cities
Counties
Zip Codes
Neighborhood · Condo · Development
School District
Zip Code
City
County
Builder
Listing Numbers
Broker LAG
Boundary Lines
Labels
View
Sort
Pending Inspection Went pending in 230 days
$369,950
Originally $379,950
2 Bedrooms
0.75 Bathroom
1,120 Sqft House
Built 1978
6,970 Sqft Lot
No Garage
HOA Dues $134 / month
The seller has reached an agreement with a buyer to sell this property. If things go as planned, the sale will become final in the near future. The buyer and seller have agreed on a price but it's not public until the sale closes. The last published list price was $369,950.
Nestled among the evergreens of Lake Cushman’s Div 1, this inviting cabin is the perfect getaway for outdoor enthusiasts. Inside, wood accents & a crackling stove set the mood for cozy winter nights, while efficient mini-splits keep things comfortable year-round. Upstairs features 2 bedrooms with a sliding divider that can transform the space into one large room—ideal for flexible use. A versatile flex space w/ cozy sleeping loft offers the perfect spot for a reading nook, home office, or extra guests. Outside, gather around the firepit for summer s’mores, dine al fresco on the deck, & spend your days exploring nearby trails, boating, or swimming at one of the community waterfront parks just minutes away. This is one you don't want to miss!
Offer Review
No offer review date was specified
Listing source NWMLS MLS #
2432240
Listed by
Matt Clark, M4 Real Estate Group
We don't currently have a buyer representative in this area. To be sure that you're getting objective advice, we always suggest buyers work with their own agent, someone who is not affiliated with the seller.
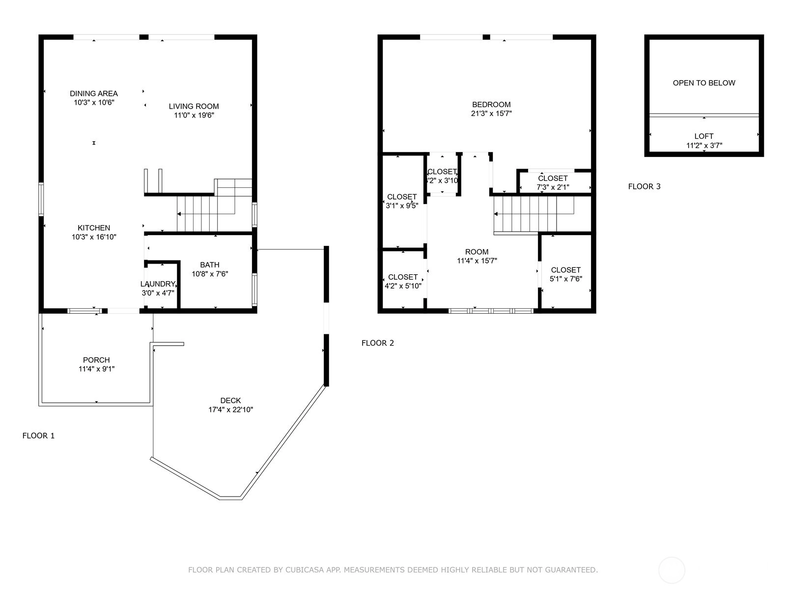
Bedroom & Bathroom Layout
SECOND
BDRM
BDRM
MAIN
¾
BATH
Property History
Apr 29, 2026
Went Pending Inspection
$369,950
NWMLS #2432240
Apr 23, 2026
Price Reduction arrow_downward
$369,950
NWMLS #2432240
Dec 11, 2025
Price Reduction arrow_downward
$374,950
NWMLS #2432240
Sep 11, 2025
Listed
$379,950
NWMLS #2432240
More
Listing Details
  • Status
    Pending Inspection
  • Last Listed Price
    $369,950
  • Original Price
    $379,950
  • List Date
    September 11, 2025
  • Last Status Change
    April 29, 2026
  • Last Update
    May 5, 2026
  • Days on Market
    238 Days
  • Cumulative DOM
    230 Days
  • Pending Date
    April 29, 2026
  • Days to go Pending
    230
  • $/sqft (Total)
    $330/sqft
  • $/sqft (Finished)
    $330/sqft
  • Listing Source
  • MLS Number
    2432240
  • Listing Broker
    Matt Clark
  • Listing Office
    M4 Real Estate Group
Monthly Payment Estimate
  • Principal and Interest
    $1,939 / month
  • HOA
    $134 / month
  • Property Taxes
    $129 / month
  • Homeowners Insurance
    $88 / month
  • TOTAL
    $2,290 / month

  • based on 20% down
    ($73,990)
  • and a
    6.85% Interest Rate
  • About:
    All calculations are estimates only and provided by Mainview LLC. Actual amounts will vary.
House Details
  • Sqft (Total)
    1,120 sqft
  • Sqft (Finished)
    1,120 sqft
  • Sqft (Unfinished)
    None
  • Property Type
    House
  • Sub Type
    2 Story
  • Bedrooms
    2 Bedrooms
  • Bathrooms
    0.75 Bathroom
  • Lot
    6,970 sqft Lot
  • Lot Size Source
    County Record
  • Lot #
    Unspecified
  • Project
    Unspecified
  • Total Stories
    2 stories
  • Sqft Source
    County Record
Property Tax Info
  • 2025 Property Taxes
    $1,545 / year
  • No Senior Exemption
Public Parcel Data & Maps
  • County
    Mason County
  • Parcel #
    423295000202
  • County Website
    Unspecified
  • County Parcel Map
    Unspecified
  • County GIS Map
    Unspecified
  • About
    County links provided by Mainview LLC
Schools
  • School District
    Hood Canal #404
  • Elementary
    Hood Canal Elem& Jnr
  • Middle
    Hood Canal Elem& Jnr
  • High School
    Shelton High
HOA
  • HOA Dues
    $134 / month
  • Fees Assessed
    Monthly
  • HOA Dues Include
    Common Area Maintenance
    Road Maintenance
    Security
    See Remarks
    Snow Removal
  • HOA Contact
    LCMC 360-877-5233
  • Management Contact
Community Features
  • Community Features
    Athletic Court
    Boat Launch
    CCRs
    Club House
    Golf
    Park
    Playground
    Trail(s)
Parking
  • Covered
    Unspecified
  • Types
    Driveway
    Off Street
  • Has Garage
    No
Views
  • Territorial
Construction
  • Year Built
    1978
  • Home Builder
    Unspecified
Cooling
  • Includes
    Ductless
    Heat Pump
Heating
  • Includes
    Baseboard
    Ductless
    Heat Pump
Interior
  • Flooring
    Hardwood
    Laminate
    Vinyl
  • Features
    Dbl Pane/Storm Window
    Fireplace
    Vaulted Ceiling(s)
    Water Heater
Property
  • Lot Features
    Cul-De-Sac
    Paved
  • Site Features
    Cable TV
    Deck
    High Speed Internet
    Outbuildings
    Patio
Appliances
  • Included
    Dishwasher
    Dryer
    Microwave
    Refrigerator
    Stove(s)/Range(s)
    Washer
Terms
  • 3rd Party Approval Required)
    No
  • Bank Owned (REO)
    No
  • Complex FHA Availability
    Unspecified
  • Potential Terms
    Cash
    Conventional
    FHA
    USDA Loan
    VA Loan
Utilities
  • Energy
    Electric
    Wood
  • Sewer
    Septic Tank
  • Water Source
    Public
Additional Info
  • Waterfront
    No
  • Air Conditioning (A/C)
    Yes
  • Buyer Broker's Compensation
    Request In Offer
  • MLS Area #
    Area 178
  • Number of Photos
    33
  • Last Modification Time
    Tuesday, May 5, 2026 9:10 AM
  • System Listing ID
    5482072
Update Info
  • Pending Or Ctg
    2026-04-29 10:51:38
  • Price Reduction
    2026-04-28 06:41:44
  • First For Sale
    2025-09-11 18:19:43
Listing details based on information submitted to the MLS GRID as of Tuesday, May 5, 2026 9:10 AM. All data is obtained from various sources and may not have been verified by broker or MLS GRID. Supplied Open House Information is subject to change without notice. All information should be independently reviewed and verified for accuracy. Properties may or may not be listed by the office/agent presenting the information.
View
Sort

Sharing

 
Pending Inspection April 29, 2026
$369,950  
2 BR    0.75 BA    1,120 SQFT  
NWMLS #2432240. Matt Clark, M4 Real Estate Group
Map
 
Listing information is provided by the listing agent except as follows: BuilderB indicates that our system has grouped this listing under a home builder name that doesn't match the name provided by the listing broker. DevelopmentD indicates that our system has grouped this listing under a development name that doesn't match the name provided by the listing broker.