to
Reset
Houses
Townhouses
Condos
Land
Price
to
SQFT
to
Bdrms
to
Baths
to
Lot
to
Yr Built
to
Sold
Listed within...
Listed at least...
Offer Review
New Construction
Waterfront
Short-Sales
REO
Parking
to
Unit Flr
to
Unit Nbr
Listings
Neighborhoods
Complexes
Developments
Cities
Counties
Zip Codes
Neighborhood · Condo · Development
School District
Zip Code
City
County
Builder
Listing Numbers
Broker LAG
Boundary Lines
Labels
View
Sort
Sold Closed October 22, 2025
$844,000
3 Bedrooms
1.75 Bathrooms
2,755 Sqft House (1,615 Finished)
Built 1926
8,640 Sqft Lot
1-Car Garage
SALE HISTORY
List price was $844,000
It took 13 days to go pending.
Then 21 days to close at $844,000
Closed at $306/SQFT.
Enchanting Craftsman home in the best neighborhood in Tacoma! Located on a quiet street in Ruston, this lovingly maintained & updated home has original woodwork with many vintage built-ins; real hardwood floors in main living areas; renovated kitchen with new stove & dishwasher, newer fridge, marmoleum tile floors & darling eating nook overlooking the private yard. Upper level private primary suite/retreat with peak views of Dalco Passage. Full basement for all your projects & equipment. Close proximity to Point Defiance Park & Zoo ensures easy access to miles of trails. The waterfront, restaurants & shops of Point Ruston are also mere moments away. One-car detached garage plus paved driveway for off-street parking.
Offer Review
No offer review date was specified
Listing source NWMLS MLS #
2434595
Listed by
Leslie Ferriel, John L. Scott Vashon
Jasmine Danielle Teagarden, John L. Scott Vashon
Buyer's broker
Tim McKeown, Engel & Voelkers Chambers Bay
Contact our
Ruston
Real Estate Lead
RE/MAX Northwest Realtors
Phone...
Time Adjusted Estimated Value
Assumptions: The original sale amount reflected a normal arms length sale. Any major updates would add to the value. Any damage or deferred maintenance would subtract from the value.
Bedroom & Bathroom Layout
SECOND
BDRM
FULL
BATH
MAIN
BDRM
BDRM
¾
BATH
LOWER
Property History
Oct 23, 2025
Sold
$844,000
NWMLS #2434595
Oct 01, 2025
Went Pending Inspection
$844,000
NWMLS #2434595
Sep 18, 2025
Listed
$844,000
NWMLS #2434595
More
Listing Details
  • Sale Price
    $844,000
  • Closing Date
    October 22, 2025
  • Last List Price
    $844,000
  • Original Price
    Same
  • List Date
    September 18, 2025
  • Pending Date
    October 1, 2025
  • Days to go Pending
    13 days
  • $/sqft (Total)
    $306/sqft
  • $/sqft (Finished)
    $523/sqft
  • Listing Source
  • MLS Number
    2434595
  • Listing Broker
    Leslie Ferriel
  • Listing Office
    John L. Scott Vashon
  • Buyer's Broker
    Tim McKeown
  • Buyer Broker's Firm
    Engel & Voelkers Chambers Bay
Monthly Payment Estimate
  • Principal and Interest
    $4,424 / month
  • Property Taxes
    $562 / month
  • Homeowners Insurance
    $167 / month
  • TOTAL
    $5,153 / month

  • based on 20% down
    ($168,800)
  • and a
    6.85% Interest Rate
  • About:
    All calculations are estimates only and provided by Mainview LLC. Actual amounts will vary.
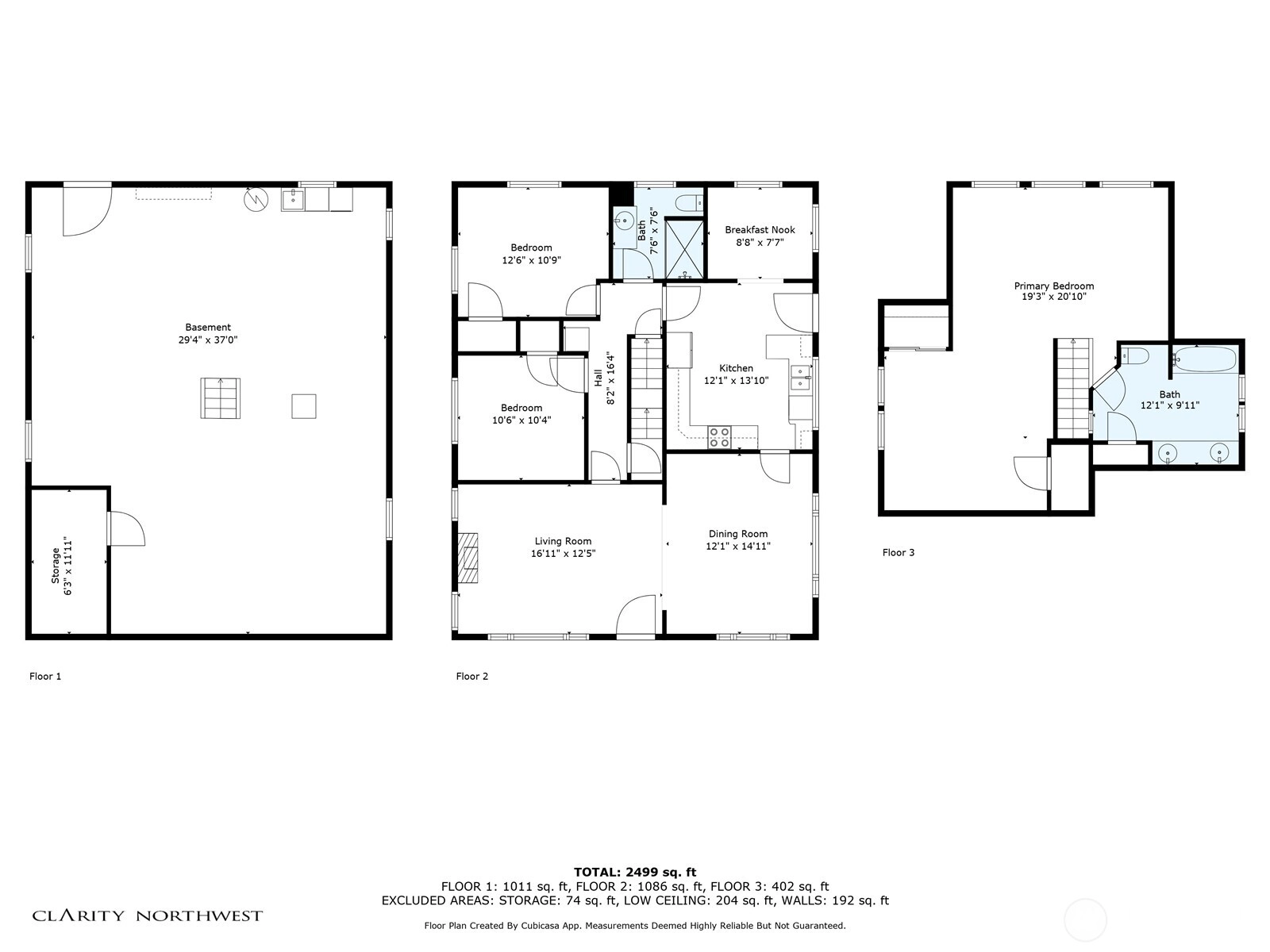
House Details
  • Sqft (Total)
    2,755 sqft
  • Sqft (Finished)
    1,615 sqft
  • Sqft (Unfinished)
    1,140 sqft
  • Property Type
    House
  • Sub Type
    1 1/2 Stories + Basement
  • Bedrooms
    3 Bedrooms
  • Bathrooms
    1.75 Bathrooms
  • Lot
    8,640 sqft Lot
  • Lot Size Source
    County
  • Lot #
    Unspecified
  • Project
    Unspecified
  • Total Stories
    2 stories
  • Basement
    Daylight
    Unfinished
  • Sqft Source
    Owner
Property Tax Info
  • 2025 Property Taxes
    $6,741 / year
  • No Senior Exemption
Public Parcel Data & Maps
Schools
  • School District
    Tacoma
  • Elementary
    Point Defiance
  • Middle
    Truman
  • High School
    Silas High School
HOA
  • HOA Dues
    Unspecified
  • Fees Assessed
    Unspecified
  • HOA Dues Include
    Unspecified
  • HOA Contact
    Unspecified
  • Management Contact
    Unspecified
Community Features
  • Community Features
    Boat Launch
    Park
    Playground
    Trail(s)
Parking
  • Covered
    1-Car
  • Types
    Driveway
    Detached Garage
    Off Street
  • Has Garage
    Yes
  • Nbr of Assigned Spaces
    1
Views
  • See Remarks
Construction
  • Year Built
    1926
  • Home Builder
    Unspecified
Cooling
  • Includes
    Heat Pump
Heating
  • Includes
    Fireplace Insert
    Heat Pump
    High Efficiency (Unspecified)
Interior
  • Flooring
    Ceramic Tile
    Concrete
    Hardwood
    Other
    Carpet
  • Features
    Bath Off Primary
    Double Pane/Storm Window
    Dining Room
    Fireplace
    Water Heater
Property
  • Lot Features
    Corner Lot
    Paved
    Sidewalk
  • Site Features
    Cable TV
    Fenced-Partially
    Gas Available
    High Speed Internet
    Patio
Appliances
  • Included
    Dishwasher(s)
    Disposal
    Dryer(s)
    Refrigerator(s)
    Stove(s)/Range(s)
    Washer(s)
Terms
  • Bank Owned (REO)
    No
Utilities
  • Energy
    Electric
    Natural Gas
    Wood
  • Sewer
    Sewer Connected
  • Water Source
    Public
Additional Info
  • Waterfront
    No
  • Air Conditioning (A/C)
    Yes
  • Buyer Broker's Compensation
    2.5%
  • MLS Area #
    Area 25
  • Number of Photos
    39
  • Last Modification Time
    Saturday, November 22, 2025 4:04 AM
  • System Listing ID
    5484330
Update Info
  • Closed
    2025-10-23 09:48:29
  • Pending Or Ctg
    2025-10-01 15:46:28
  • First For Sale
    2025-09-18 14:16:01
Listing details based on information submitted to the MLS GRID as of Saturday, November 22, 2025 4:04 AM. All data is obtained from various sources and may not have been verified by broker or MLS GRID. Supplied Open House Information is subject to change without notice. All information should be independently reviewed and verified for accuracy. Properties may or may not be listed by the office/agent presenting the information.
View
Sort

Sharing

 
Sold October 22, 2025
$844,000  
3 BR    1.75 BA    2,755 SQFT  
NWMLS #2434595. Leslie Ferriel, John L. Scott Vashon
Map
 
Listing information is provided by the listing agent except as follows: BuilderB indicates that our system has grouped this listing under a home builder name that doesn't match the name provided by the listing broker. DevelopmentD indicates that our system has grouped this listing under a development name that doesn't match the name provided by the listing broker.