to
Reset
Houses
Townhouses
Condos
Land
Price
to
SQFT
to
Bdrms
to
Baths
to
Lot
to
Yr Built
to
Sold
Listed within...
Listed at least...
Offer Review
New Construction
Waterfront
Short-Sales
REO
Parking
to
Unit Flr
to
Unit Nbr
Listings
Neighborhoods
Complexes
Developments
Cities
Counties
Zip Codes
Neighborhood · Condo · Development
School District
Zip Code
City
County
Builder
Listing Numbers
Broker LAG
Boundary Lines
Labels
View
Sort
Sold Closed October 15, 2025
$985,000
2 Bedrooms
1.75 Bathrooms
1,297 Sqft House
Waterfront
Built 2005
12,920 Sqft Lot
3-Car Garage
SALE HISTORY
List price was $995,000
It took 4 days to go pending.
Then 22 days to close at $985,000
Closed at $759/SQFT.
Welcome to Mason Lake! Enjoy 62' of low-bank WF and a 2005-built home that's perfect for lake life. Main house is shy 1,300 sqft + there's an additional 720 SqFt of potential living space (with lake views) for guests, office or hobbies below the the detached garage. Detached 32' deep x 30' wide 3-car garage/shop that offers 60 amp service + plumbed air compressor & 240 outlet wired in garage. All this in a fun, active lake community w/nearby off-roading, fishing, boating, cycling, sailing, pickleball & more. Whether you're playing, relaxing, or tinkering - this property delivers! Current certified appraisal in-hand at valuation of $1M. Boat lift w/ cover included along with plumbed air compressor in garage/shop!
Offer Review
No offer review date was specified
Listing source NWMLS MLS #
2435616
Listed by
Chad Hauer, Keller Williams Rty Tacoma
Buyer's broker
Alexis N Newton, eXp Realty
We don't currently have a buyer representative in this area. To be sure that you're getting objective advice, we always suggest buyers work with their own agent, someone who is not affiliated with the seller.
Time Adjusted Estimated Value
Assumptions: The original sale amount reflected a normal arms length sale. Any major updates would add to the value. Any damage or deferred maintenance would subtract from the value.
Bedroom & Bathroom Layout
MAIN
BDRM
BDRM
FULL
BATH
¾
BATH
Property History
Oct 15, 2025
Sold
$985,000
NWMLS #2435616
Sep 23, 2025
Went Pending
$995,000
NWMLS #2435616
Sep 19, 2025
Listed
$995,000
NWMLS #2435616
More
Listing Details
  • Sale Price
    $985,000
  • Closing Date
    October 15, 2025
  • Last List Price
    $995,000
  • Original Price
    Same
  • List Date
    September 19, 2025
  • Pending Date
    September 23, 2025
  • Days to go Pending
    4 days
  • $/sqft (Total)
    $759/sqft
  • $/sqft (Finished)
    $759/sqft
  • Listing Source
  • MLS Number
    2435616
  • Listing Broker
    Chad Hauer
  • Listing Office
    Keller Williams Rty Tacoma
  • Buyer's Broker
    Alexis N Newton
  • Buyer Broker's Firm
    eXp Realty
Monthly Payment Estimate
  • Principal and Interest
    $5,163 / month
  • Property Taxes
    $534 / month
  • Homeowners Insurance
    $193 / month
  • TOTAL
    $5,890 / month

  • based on 20% down
    ($197,000)
  • and a
    6.85% Interest Rate
  • About:
    All calculations are estimates only and provided by Mainview LLC. Actual amounts will vary.
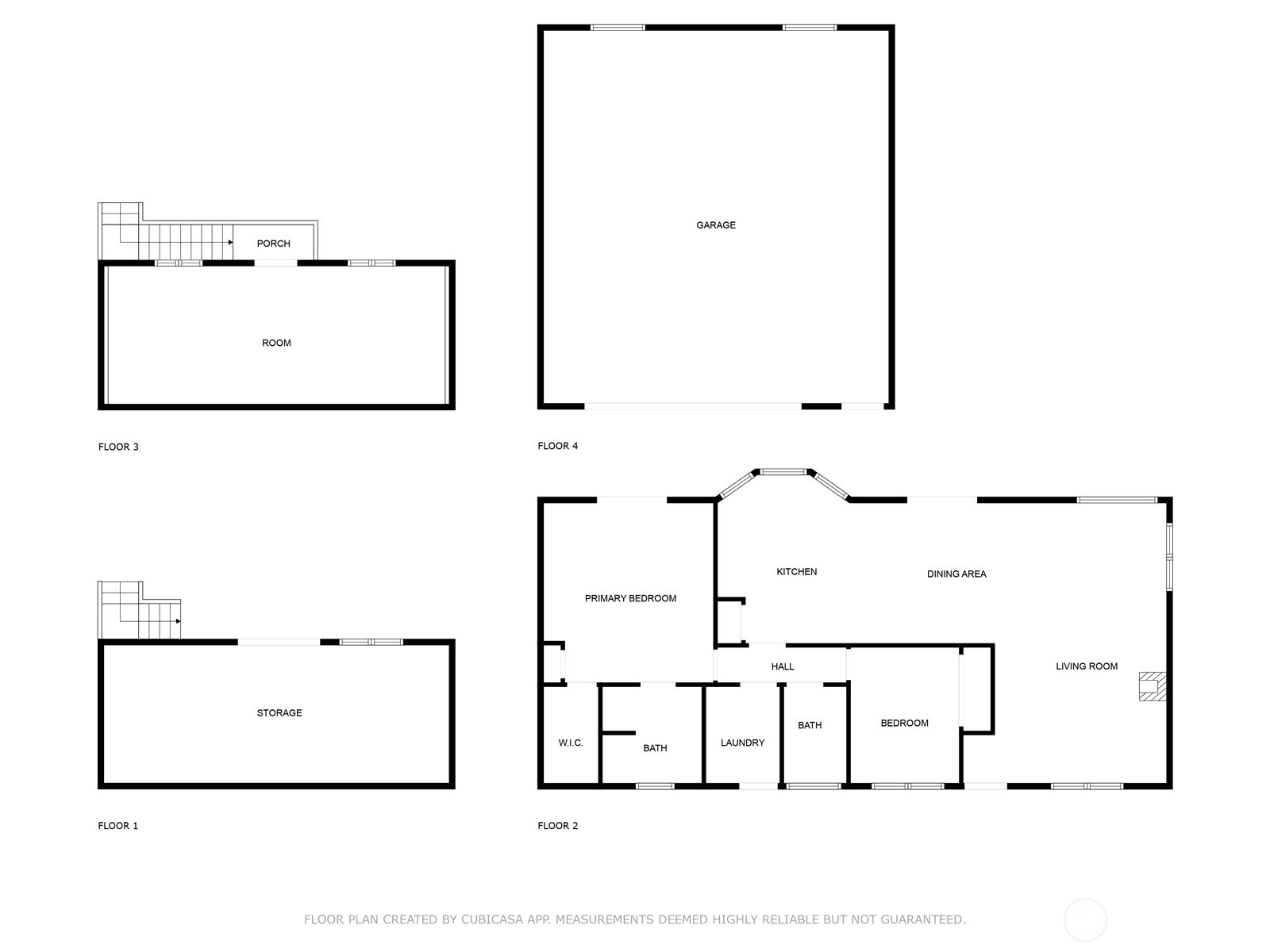
House Details
  • Sqft (Total)
    1,297 sqft
  • Sqft (Finished)
    1,297 sqft
  • Sqft (Unfinished)
    None
  • Property Type
    House
  • Sub Type
    1 Story
  • Bedrooms
    2 Bedrooms
  • Bathrooms
    1.75 Bathrooms
  • Lot
    12,920 sqft Lot
  • Lot Size Source
    Appraisal
  • Lot #
    Unspecified
  • Project
    Unspecified
  • Total Stories
    1 story
  • Basement
    None
  • Sqft Source
    Appraisal Report
Property Tax Info
  • 2025 Property Taxes
    $6,404 / year
  • No Senior Exemption
Public Parcel Data & Maps
  • County
    Mason County
  • Parcel #
    221055200022
  • County Website
    Unspecified
  • County Parcel Map
    Unspecified
  • County GIS Map
    Unspecified
  • About
    County links provided by Mainview LLC
Schools
  • School District
    Grapeview #54
  • Elementary
    Grapeview Elem
  • Middle
    Grapeview
  • High School
    North Mason Snr High
Waterfront
  • Waterfront
    Yes
  • Type
    Low Bank
    Bulkhead
    Lake
    No Bank
  • Frontage
    62' Feet
HOA
  • HOA Dues
    Unspecified
  • Fees Assessed
    Unspecified
  • HOA Dues Include
    Unspecified
  • HOA Contact
    Unspecified
  • Management Contact
    Unspecified
Community Features
  • Community Features
    Boat Launch
    Club House
Parking
  • Covered
    3-Car
  • Types
    Driveway
    RV Parking
  • Has Garage
    Yes
  • Nbr of Assigned Spaces
    3
Views
  • Lake
    Territorial
Construction
  • Year Built
    2005
  • Home Builder
    Unspecified
Cooling
  • Includes
    None
Heating
  • Includes
    Forced Air
    Stove/Free Standing
Interior
  • Flooring
    Vinyl
    Carpet
  • Features
    Bath Off Primary
    Ceiling Fan(s)
    Double Pane/Storm Window
    Dining Room
    Fireplace
    Skylight(s)
    Walk-In Closet(s)
    Water Heater
Property
  • Lot Features
    Open Space
  • Site Features
    Cable TV
    Deck
    Dock
    High Speed Internet
    Moorage
    Outbuildings
    RV Parking
Appliances
  • Included
    Dishwasher(s)
    Dryer(s)
    Microwave(s)
    Refrigerator(s)
    Stove(s)/Range(s)
    Washer(s)
Terms
  • Bank Owned (REO)
    No
Utilities
  • Energy
    Electric
  • Sewer
    Septic Tank
  • Water Source
    Individual Well
Additional Info
  • Waterfront
    Yes
  • Air Conditioning (A/C)
    No
  • Buyer Broker's Compensation
    2.5%
  • MLS Area #
    Area 172
  • Number of Photos
    33
  • Last Modification Time
    Saturday, November 15, 2025 4:04 AM
  • System Listing ID
    5485048
Update Info
  • Closed
    2025-10-15 19:11:05
  • Pending Or Ctg
    2025-09-23 19:41:53
  • First For Sale
    2025-09-19 15:36:27
Listing details based on information submitted to the MLS GRID as of Saturday, November 15, 2025 4:04 AM. All data is obtained from various sources and may not have been verified by broker or MLS GRID. Supplied Open House Information is subject to change without notice. All information should be independently reviewed and verified for accuracy. Properties may or may not be listed by the office/agent presenting the information.
View
Sort

Sharing

 
Sold October 15, 2025
$985,000   $995,000
2 BR    1.75 BA    1,297 SQFT  
NWMLS #2435616. Chad Hauer, Keller Williams Rty Tacoma
Map
 
Listing information is provided by the listing agent except as follows: BuilderB indicates that our system has grouped this listing under a home builder name that doesn't match the name provided by the listing broker. DevelopmentD indicates that our system has grouped this listing under a development name that doesn't match the name provided by the listing broker.