to
Reset
Houses
Townhouses
Condos
Land
Price
to
SQFT
to
Bdrms
to
Baths
to
Lot
to
Yr Built
to
Sold
Listed within...
Listed at least...
Offer Review
New Construction
Waterfront
Short-Sales
REO
Parking
to
Unit Flr
to
Unit Nbr
Listings
Neighborhoods
Complexes
Developments
Cities
Counties
Zip Codes
Neighborhood · Condo · Development
School District
Zip Code
City
County
Builder
Listing Numbers
Broker LAG
Boundary Lines
Labels
View
Sort
Sold Closed November 4, 2025
$272,000
3 Bedrooms
1.75 Bathrooms
1,295 Sqft House
Built 1935
9,180 Sqft Lot
1-Car Garage
SALE HISTORY
List price was $274,000
It took 2 days to go pending.
Then 42 days to close at $272,000
Closed at $210/SQFT.
COULEE DAM - 2022 Reno 3 Bed/2 Bath rambler updated throughout; kitchen & baths, 3 Mitsubishi ductless mini splits, electrical, newer appliances, roof, recessed can lighting, laminate flooring throughout, walk in closets, hot water tank, neutral exterior/interior colors. Front & back covered porches. Large 9,180sf level lot has garage/shed & would be the perfect spot to add your garage/shop! Plenty of off-street parking. Mountain, Crown Point & Columbia River views. Great walkability to shopping, dining, city parks, Lake Roosevelt Schools & Down River Trail. Come live where you love to play w/7 boat launches & sandy beaches minutes away on Lake Roosevelt/Columbia River & Banks Lake! Turnkey all appliances & furniture convey.
Offer Review
No offer review date was specified
Listing source NWMLS MLS #
2434521
Listed by
Monica Desautel, Best Choice Realty LLC
Buyer's broker
Monica Desautel, Best Choice Realty LLC
We don't currently have a buyer representative in this area. To be sure that you're getting objective advice, we always suggest buyers work with their own agent, someone who is not affiliated with the seller.
Time Adjusted Estimated Value
Assumptions: The original sale amount reflected a normal arms length sale. Any major updates would add to the value. Any damage or deferred maintenance would subtract from the value.
Bedroom & Bathroom Layout
MAIN
BDRM
BDRM
BDRM
FULL
BATH
¾
BATH
Property History
Nov 04, 2025
Sold
$272,000
NWMLS #2434521 Annualized 3.1% / yr
Oct 08, 2025
Went Pending
$274,000
NWMLS #2434521
Sep 23, 2025
Went Pending Inspection
$274,000
NWMLS #2434521
Sep 21, 2025
Listed
$274,000
NWMLS #2434521
May 10, 2024
Sold
$260,000
NWMLS #2060931 Annualized 5.4% / yr
May 01, 2024
Went Pending
$284,900
Mar 12, 2024
Price Reduction arrow_downward
$284,900
Feb 01, 2024
Listed
$289,900
Nov 01, 2023
Listed
$289,900
Aug 10, 2023
Back on Market
$289,900
Jun 29, 2023
Went Pending
$289,900
Jun 04, 2023
Went Pending Inspection
$289,900
May 25, 2023
Back on Market
$289,900
May 05, 2023
Went Pending Inspection
$289,900
Apr 30, 2023
Listed
$289,900
Aug 03, 2021
Sold
$225,000
Aug 04, 2021
Listed
$225,000
More
Listing Details
  • Sale Price
    $272,000
  • Closing Date
    November 4, 2025
  • Last List Price
    $274,000
  • Original Price
    Same
  • List Date
    September 21, 2025
  • Pending Date
    September 23, 2025
  • Days to go Pending
    2 days
  • $/sqft (Total)
    $210/sqft
  • $/sqft (Finished)
    $210/sqft
  • Listing Source
  • MLS Number
    2434521
  • Listing Broker
    Monica Desautel
  • Listing Office
    Best Choice Realty LLC
  • Buyer's Broker
    Monica Desautel
  • Buyer Broker's Firm
    Best Choice Realty LLC
Monthly Payment Estimate
  • Principal and Interest
    $1,426 / month
  • Property Taxes
    $137 / month
  • Homeowners Insurance
    $76 / month
  • TOTAL
    $1,639 / month

  • based on 20% down
    ($54,400)
  • and a
    6.85% Interest Rate
  • About:
    All calculations are estimates only and provided by Mainview LLC. Actual amounts will vary.
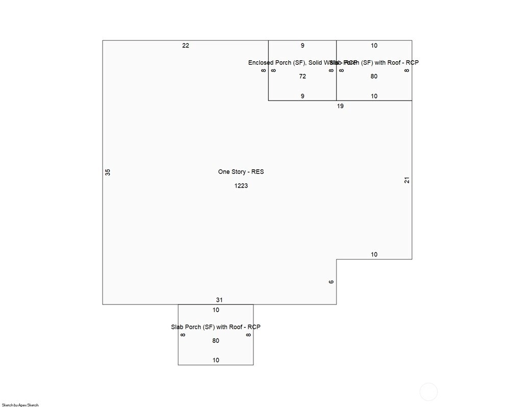
House Details
  • Sqft (Total)
    1,295 sqft
  • Sqft (Finished)
    1,295 sqft
  • Sqft (Unfinished)
    None
  • Property Type
    House
  • Sub Type
    1 Story
  • Bedrooms
    3 Bedrooms
  • Bathrooms
    1.75 Bathrooms
  • Lot
    9,180 sqft Lot
  • Lot Size Source
    Public Record
  • Lot #
    5&6
  • Project
    COULEE DAM
  • Total Stories
    1 story
  • Basement
    None
  • Sqft Source
    Public Record
Property Tax Info
  • 2025 Property Taxes
    $1,648 / year
  • No Senior Exemption
Public Parcel Data & Maps
  • County
    Okanogan County
  • Parcel #
    0610470500
  • County Website
    Unspecified
  • County Parcel Map
    Unspecified
  • County GIS Map
    Unspecified
  • About
    County links provided by Mainview LLC
Schools
  • School District
    Grand Coulee
  • Elementary
    Buyer To Verify
  • Middle
    Buyer To Verify
  • High School
    Buyer To Verify
HOA
  • HOA Dues
    Unspecified
  • Fees Assessed
    Unspecified
  • HOA Dues Include
    Unspecified
  • HOA Contact
    Unspecified
  • Management Contact
    Unspecified
Parking
  • Covered
    1-Car
  • Types
    Driveway
    Off Street
  • Has Garage
    Yes
  • Nbr of Assigned Spaces
    1
Views
  • Mountain(s)
    Partial
    River
Construction
  • Year Built
    1935
  • Home Builder
    Unspecified
Cooling
  • Includes
    Ductless
    Heat Pump
Heating
  • Includes
    Ductless
    Heat Pump
    Wall Unit(s)
Interior
  • Flooring
    Laminate
  • Features
    Double Pane/Storm Window
    Dining Room
    Walk-In Closet(s)
    Water Heater
Property
  • Lot Features
    Curbs
    Paved
    Sidewalk
  • Site Features
    Fenced-Partially
    Outbuildings
    Patio
Appliances
  • Included
    Dishwasher(s)
    Microwave(s)
    Refrigerator(s)
    Stove(s)/Range(s)
Terms
  • Bank Owned (REO)
    No
Utilities
  • Energy
    Electric
  • Sewer
    Sewer Connected
  • Water Source
    Public
Additional Info
  • Waterfront
    No
  • Air Conditioning (A/C)
    Yes
  • Buyer Broker's Compensation
    3%
  • MLS Area #
    Area 620
  • Number of Photos
    20
  • Last Modification Time
    Friday, December 5, 2025 4:03 AM
  • System Listing ID
    5485374
Update Info
  • Closed
    2025-11-04 16:35:57
  • Pending Or Ctg
    2025-10-08 09:38:12
  • First For Sale
    2025-09-21 19:29:17
Listing details based on information submitted to the MLS GRID as of Friday, December 5, 2025 4:03 AM. All data is obtained from various sources and may not have been verified by broker or MLS GRID. Supplied Open House Information is subject to change without notice. All information should be independently reviewed and verified for accuracy. Properties may or may not be listed by the office/agent presenting the information.
View
Sort

Sharing

 
Sold November 4, 2025
$272,000   $274,000
3 BR    1.75 BA    1,295 SQFT  
NWMLS #2434521. Monica Desautel, Best Choice Realty LLC
Map
 
Listing information is provided by the listing agent except as follows: BuilderB indicates that our system has grouped this listing under a home builder name that doesn't match the name provided by the listing broker. DevelopmentD indicates that our system has grouped this listing under a development name that doesn't match the name provided by the listing broker.