to
Reset
Houses
Townhouses
Condos
Land
Price
to
SQFT
to
Bdrms
to
Baths
to
Lot
to
Yr Built
to
Sold
Listed within...
Listed at least...
Offer Review
New Construction
Waterfront
Short-Sales
REO
Parking
to
Unit Flr
to
Unit Nbr
Listings
Neighborhoods
Complexes
Developments
Cities
Counties
Zip Codes
Neighborhood · Condo · Development
School District
Zip Code
City
County
Builder
Listing Numbers
Broker LAG
Boundary Lines
Labels
View
Sort
Pending Went pending in 4 days
$1,395,000
3 Bedrooms
2.5 Bathrooms
3,876 Sqft House (3,047 Finished)
Built 2008
4.6 Acres Lot
2-Car Garage
The seller has reached an agreement with a buyer to sell this property. If things go as planned, the sale will become final in the near future. The buyer and seller have agreed on a price but it's not public until the sale closes. The last published list price was $1,395,000.
Embrace Whidbey Island living on 4.6± acres. This property includes a main home and a guest house, ideal for hosting, multi-generational living or producing Income. Hardwood floors add warmth throughout, while west-facing windows showcase sweeping views of the Sound and Olympic Mountains - perfect for enjoying Whidbey's spectacular sunsets. Just minutes from beaches, trails and Freeland's amenities, this home offers the perfect blend of privacy and convenience in a truly scenic South Whidbey setting.
Offer Review
No offer review date was specified
Listing source NWMLS MLS #
2421535
Listed by
Carter Ulibarri, Windermere RE/South Whidbey
We don't currently have a buyer representative in this area. To be sure that you're getting objective advice, we always suggest buyers work with their own agent, someone who is not affiliated with the seller.
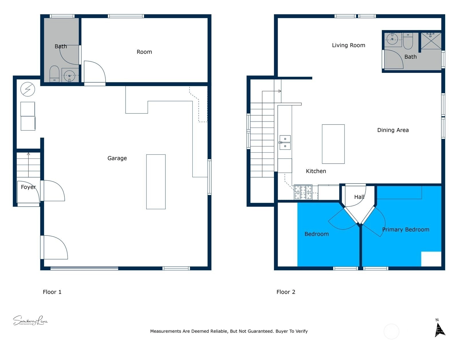
Bedroom & Bathroom Layout
MAIN
BDRM
FULL
BATH
½
BATH
LOWER
BDRM
BDRM
FULL
BATH
Property History
Oct 03, 2025
Went Pending
$1,395,000
NWMLS #2421535
Sep 26, 2025
Went Pending Inspection
$1,395,000
NWMLS #2421535
Sep 22, 2025
Listed
$1,395,000
NWMLS #2421535
Oct 29, 2015
Sold
$746,500
More
Listing Details
  • Status
    Pending
  • Last Listed Price
    $1,395,000
  • Original Price
    Same as current
  • List Date
    September 22, 2025
  • Last Status Change
    October 3, 2025
  • Last Update
    October 3, 2025
  • Days on Market
    15 Days
  • Cumulative DOM
    4 Days
  • Pending Date
    September 26, 2025
  • Days to go Pending
    4
  • $/sqft (Total)
    $360/sqft
  • $/sqft (Finished)
    $458/sqft
  • Listing Source
  • MLS Number
    2421535
  • Listing Broker
    Carter Ulibarri
  • Listing Office
    Windermere RE/South Whidbey
Monthly Payment Estimate
  • Principal and Interest
    $7,313 / month
  • Property Taxes
    $727 / month
  • Homeowners Insurance
    $268 / month
  • TOTAL
    $8,308 / month

  • based on 20% down
    ($279,000)
  • and a
    6.85% Interest Rate
  • About:
    All calculations are estimates only and provided by Mainview LLC. Actual amounts will vary.
House Details
  • Sqft (Total)
    3,876 sqft
  • Sqft (Finished)
    3,047 sqft
  • Sqft (Unfinished)
    829 sqft
  • Property Type
    House
  • Sub Type
    1 Story + Basement
  • Bedrooms
    3 Bedrooms
  • Bathrooms
    2.5 Bathrooms
  • Lot
    4.6 Acres Lot
  • Lot Size Source
    Realist
  • Lot #
    Unspecified
  • Project
    Unspecified
  • Total Stories
    2 stories
  • Basement
    Partially Finished
  • Sqft Source
    Island County
Property Tax Info
  • 2025 Property Taxes
    $8,728 / year
  • No Senior Exemption
Public Parcel Data & Maps
  • County
    Island County
  • Parcel #
    R229224184640
  • County Website
    Unspecified
  • County Parcel Map
    Unspecified
  • County GIS Map
    Unspecified
  • About
    County links provided by Mainview LLC
Schools
  • School District
    South Whidbey Island
  • Elementary
    Buyer To Verify
  • Middle
    Buyer To Verify
  • High School
    Buyer To Verify
HOA
  • HOA Dues
    Unspecified
  • Fees Assessed
    Unspecified
  • HOA Dues Include
    Unspecified
  • HOA Contact
    Unspecified
  • Management Contact
Parking
  • Covered
    2-Car
  • Types
    Attached Garage
  • Has Garage
    Yes
  • Nbr of Assigned Spaces
    2
Views
  • Ocean
    Sound
    Territorial
Construction
  • Year Built
    2008
  • Home Builder
    Unspecified
Cooling
  • Includes
    Forced Air
Heating
  • Includes
    Forced Air
Interior
  • Flooring
    Hardwood
  • Features
    Bath Off Primary
    Built-In Vacuum
    Double Pane/Storm Window
    Fireplace
Property
  • Site Features
    Deck
    High Speed Internet
    Outbuildings
    Propane
Appliances
  • Included
    Dishwasher(s)
    Dryer(s)
    Refrigerator(s)
    Stove(s)/Range(s)
    Washer(s)
Terms
  • 3rd Party Approval Required)
    No
  • Bank Owned (REO)
    No
  • Complex FHA Availability
    Unspecified
  • Potential Terms
    Cash Out
    Conventional
    VA Loan
Utilities
  • Energy
    Electric
    Propane
  • Sewer
    Septic Tank
  • Water Source
    Individual Well
Additional Info
  • Waterfront
    No
  • Air Conditioning (A/C)
    Yes
  • Buyer Broker's Compensation
    2.5%
  • MLS Area #
    Area 811
  • Number of Photos
    40
  • Last Modification Time
    Friday, October 3, 2025 1:47 PM
  • System Listing ID
    5485520
Update Info
  • Pending Or Ctg
    2025-10-03 14:01:07
  • First For Sale
    2025-09-22 15:17:06
Listing details based on information submitted to the MLS GRID as of Friday, October 3, 2025 1:47 PM. All data is obtained from various sources and may not have been verified by broker or MLS GRID. Supplied Open House Information is subject to change without notice. All information should be independently reviewed and verified for accuracy. Properties may or may not be listed by the office/agent presenting the information.
View
Sort

Sharing

 
Pending September 26, 2025
$1,395,000  
3 BR    2.5 BA    3,876 SQFT  
NWMLS #2421535. Carter Ulibarri, Windermere RE/South Whidbey
Map
 
Listing information is provided by the listing agent except as follows: BuilderB indicates that our system has grouped this listing under a home builder name that doesn't match the name provided by the listing broker. DevelopmentD indicates that our system has grouped this listing under a development name that doesn't match the name provided by the listing broker.