to
Reset
Houses
Townhouses
Condos
Land
Price
to
SQFT
to
Bdrms
to
Baths
to
Lot
to
Yr Built
to
Sold
Listed within...
Listed at least...
Offer Review
New Construction
Waterfront
Short-Sales
REO
Parking
to
Unit Flr
to
Unit Nbr
Listings
Neighborhoods
Complexes
Developments
Cities
Counties
Zip Codes
Neighborhood · Condo · Development
School District
Zip Code
City
County
Builder
Listing Numbers
Broker LAG
Boundary Lines
Labels
View
Sort
Pending Went pending in 5 days
$1,100,000
4 Bedrooms
1.75 Bathrooms
1,928 Sqft House
Built 1950
9,148 Sqft Lot
No Garage
PENDING SALE. This listing went Pending on September 30, 2025

Some pending sales don't become final. Contact Us if this property is really important to you so we can check on it right now. The seller has reached an agreement with a buyer to sell this property. If things go as planned, the sale will become final in the near future. The buyer and seller have agreed on a price but it's not public until the sale closes. The last published list price was $1,100,000.
Welcome to the Edmonds Bowl! This dreamy rambler radiates charm, light, and style. Bright, open kitchen with eat-in space, updated bathrooms with a walk-in shower, and storage throughout make daily living effortless. Stunning windows fill the home with natural light and showcase all that Edmonds has to offer. Entertain in the beautifully landscaped yard, sip morning coffee on the deck as birds chirp, or unwind inside. Located in one of the most coveted spots in town, with unmatched access to shops, cafes, parks, and everything you love—this home is pure lifestyle perfection.
Offer Review Date
This listing's offer review date was Tuesday, September 30, 2025.
Listing source NWMLS MLS #
2412754
Listed by
Susie Beresford, Windermere RE North, Inc.
Contact our
Edmonds
Real Estate Lead
Windermere Real Estate / North, Inc
Phone...
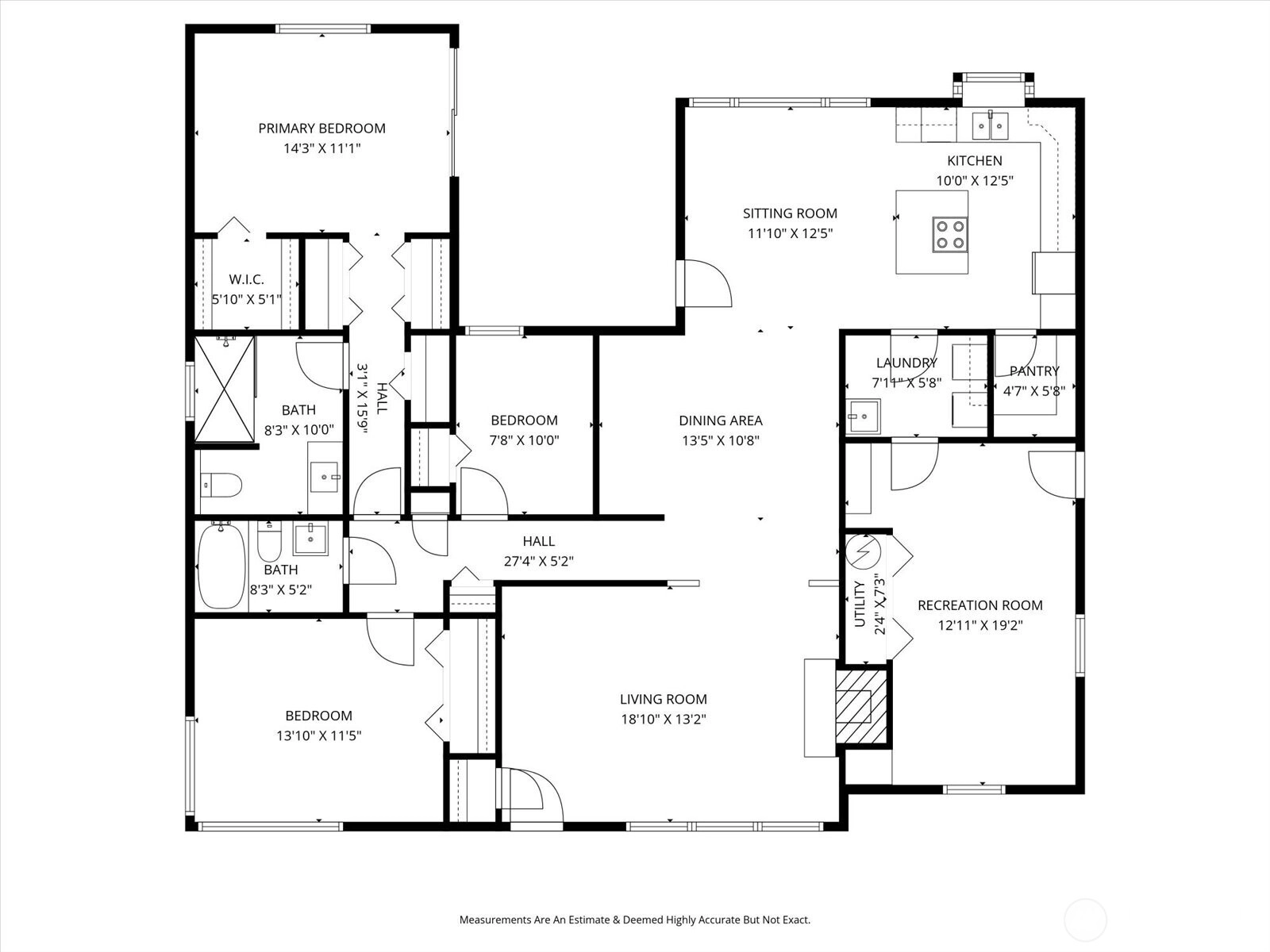
Bedroom & Bathroom Layout
MAIN
BDRM
BDRM
BDRM
BDRM
FULL
BATH
¾
BATH
Property History
Sep 30, 2025
Went Pending
$1,100,000
NWMLS #2412754
Sep 25, 2025
Listed
$1,100,000
NWMLS #2412754
More
Listing Details
  • Status
    Pending
  • Last Listed Price
    $1,100,000
  • Original Price
    Same as current
  • List Date
    September 25, 2025
  • Last Status Change
    September 30, 2025
  • Last Update
    September 30, 2025
  • Days on Market
    8 Days
  • Cumulative DOM
    5 Days
  • Pending Date
    September 30, 2025
  • Days to go Pending
    5
  • $/sqft (Total)
    $571/sqft
  • $/sqft (Finished)
    $571/sqft
  • Listing Source
  • MLS Number
    2412754
  • Listing Broker
    Susie Beresford
  • Listing Office
    Windermere RE North, Inc.
Monthly Payment Estimate
  • Principal and Interest
    $5,766 / month
  • Property Taxes
    $469 / month
  • Homeowners Insurance
    $214 / month
  • TOTAL
    $6,449 / month

  • based on 20% down
    ($220,000)
  • and a
    6.85% Interest Rate
  • About:
    All calculations are estimates only and provided by Mainview LLC. Actual amounts will vary.
House Details
  • Sqft (Total)
    1,928 sqft
  • Sqft (Finished)
    1,928 sqft
  • Sqft (Unfinished)
    None
  • Property Type
    House
  • Sub Type
    1 Story
  • Bedrooms
    4 Bedrooms
  • Bathrooms
    1.75 Bathrooms
  • Lot
    9,148 sqft Lot
  • Lot Size Source
    Realist
  • Lot #
    Unspecified
  • Project
    Unspecified
  • Total Stories
    1 story
  • Basement
    None
  • Sqft Source
    Realist
Property Tax Info
  • 2025 Property Taxes
    $5,627 / year
  • Yes Senior Exemption
Public Parcel Data & Maps
Schools
  • School District
    Edmonds
  • Elementary
    Edmonds Elem
  • Middle
    College Pl Mid
  • High School
    Edmonds Woodway High
HOA
  • HOA Dues
    Unspecified
  • Fees Assessed
    Unspecified
  • HOA Dues Include
    Unspecified
  • HOA Contact
    Unspecified
  • Management Contact
Parking
  • Covered
    Unspecified
  • Types
    Driveway
    Off Street
  • Has Garage
    No
Views
  • Territorial
Construction
  • Year Built
    1950
  • Home Builder
    Unspecified
Cooling
  • Includes
    None
Heating
  • Includes
    Forced Air
Interior
  • Flooring
    Bamboo/Cork
    Ceramic Tile
    Carpet
  • Features
    Bath Off Primary
    Double Pane/Storm Window
    Dining Room
    Fireplace
    Skylight(s)
    Sprinkler System
    Walk-In Pantry
    Water Heater
Property
  • Lot Features
    Curbs
    Paved
    Sidewalk
    Value In Land
  • Site Features
    Cable TV
    Deck
    Fenced-Fully
    Gas Available
    High Speed Internet
    Outbuildings
    Sprinkler System
Appliances
  • Included
    Dishwasher(s)
    Disposal
    Dryer(s)
    Microwave(s)
    Refrigerator(s)
    Stove(s)/Range(s)
    Washer(s)
Terms
  • 3rd Party Approval Required)
    No
  • Bank Owned (REO)
    No
  • Complex FHA Availability
    Unspecified
  • Potential Terms
    Conventional
Utilities
  • Energy
    Electric
    Natural Gas
  • Sewer
    Sewer Connected
  • Water Source
    Public
Additional Info
  • Waterfront
    No
  • Air Conditioning (A/C)
    No
  • Buyer Broker's Compensation
    2.5%
  • MLS Area #
    Area 730
  • Number of Photos
    33
  • Last Modification Time
    Tuesday, September 30, 2025 2:07 PM
  • System Listing ID
    5486471
Update Info
  • Pending Or Ctg
    2025-10-01 05:23:55
  • First For Sale
    2025-09-25 08:45:36
Listing details based on information submitted to the MLS GRID as of Tuesday, September 30, 2025 2:07 PM. All data is obtained from various sources and may not have been verified by broker or MLS GRID. Supplied Open House Information is subject to change without notice. All information should be independently reviewed and verified for accuracy. Properties may or may not be listed by the office/agent presenting the information.
View
Sort

Sharing

 
Pending September 30, 2025
$1,100,000  
4 BR    1.75 BA    1,928 SQFT  
NWMLS #2412754. Susie Beresford, Windermere RE North, Inc.
Map
 
Listing information is provided by the listing agent except as follows: BuilderB indicates that our system has grouped this listing under a home builder name that doesn't match the name provided by the listing broker. DevelopmentD indicates that our system has grouped this listing under a development name that doesn't match the name provided by the listing broker.