to
Reset
Houses
Townhouses
Condos
Land
Price
to
SQFT
to
Bdrms
to
Baths
to
Lot
to
Yr Built
to
Sold
Listed within...
Listed at least...
Offer Review
New Construction
Waterfront
Short-Sales
REO
Parking
to
Unit Flr
to
Unit Nbr
Listings
Neighborhoods
Complexes
Developments
Cities
Counties
Zip Codes
Neighborhood · Condo · Development
School District
Zip Code
City
County
Builder
Listing Numbers
Broker LAG
Boundary Lines
Labels
View
Sort
Pending Went pending in 44 days
$1,150,000
5 Bedrooms
3 Bathrooms
2,632 Sqft House
Built 1990
7,841 Sqft Lot
2-Car Garage
PENDING SALE. This listing went Pending on November 8, 2025

Some pending sales don't become final. Contact Us if this property is really important to you so we can check on it right now. The seller has reached an agreement with a buyer to sell this property. If things go as planned, the sale will become final in the near future. The buyer and seller have agreed on a price but it's not public until the sale closes. The last published list price was $1,150,000.
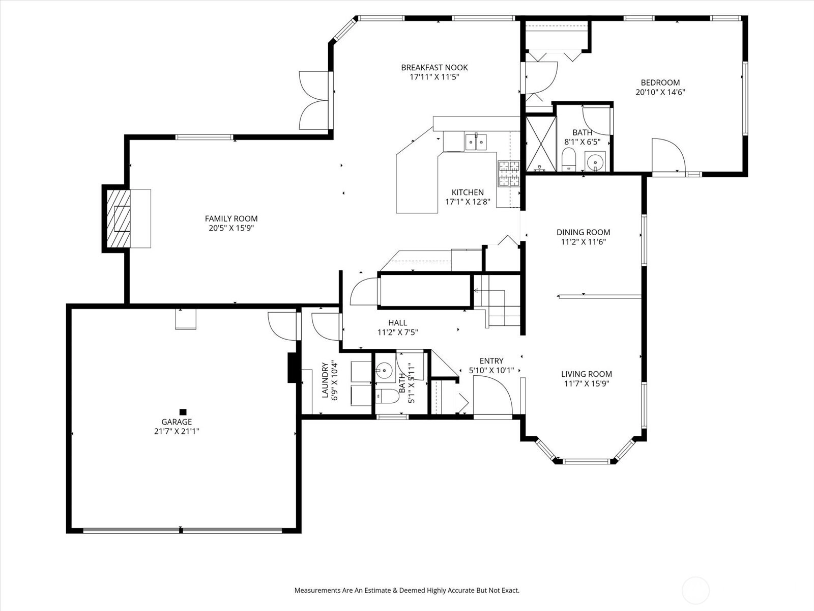
Experience exceptional versatility in this Mill Creek cul-de-sac home featuring two true primary suites! The main-floor suite offers a private entrance, ideal for multi-generational living, long-term guests, or a home office with separation and privacy. Upstairs, the second primary suite provides a peaceful retreat with a private deck overlooking the lush, tree-lined backyard. Beautifully refreshed with new interior and exterior paint, updated trim, refinished hardwoods, and plush new carpet, this home is truly move-in ready. Enjoy a quiet, established neighborhood just minutes from Mill Creek Town Center’s shops, dining, parks, and trails, with easy commuter access. Buyer Bonus: 1% rate reduction for 12 months .Welcome home!
Offer Review
No offer review date was specified
Listing source NWMLS MLS #
2437906
Listed by
Tracey Kirkley, John L. Scott Snohomish
Jason Sebesta, John L. Scott Snohomish
Contact our
Mill Creek
Real Estate Lead
Buck Real Estate
Phone...
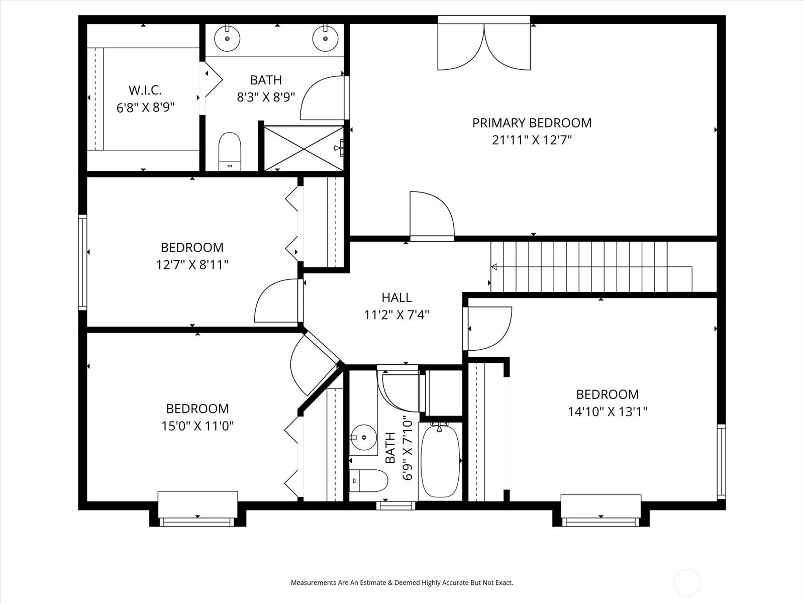
Bedroom & Bathroom Layout
SECOND
BDRM
BDRM
BDRM
BDRM
FULL
BATH
¾
BATH
MAIN
BDRM
¾
BATH
½
BATH
Property History
Nov 17, 2025
Went Pending
$1,150,000
NWMLS #2437906
Nov 08, 2025
Went Pending Inspection
$1,150,000
NWMLS #2437906
Sep 25, 2025
Listed
$1,150,000
NWMLS #2437906
More
Listing Details
  • Status
    Pending
  • Last Listed Price
    $1,150,000
  • Original Price
    Same as current
  • List Date
    September 25, 2025
  • Last Status Change
    November 17, 2025
  • Last Update
    November 17, 2025
  • Days on Market
    57 Days
  • Cumulative DOM
    44 Days
  • Pending Date
    November 8, 2025
  • Days to go Pending
    44
  • $/sqft (Total)
    $437/sqft
  • $/sqft (Finished)
    $437/sqft
  • Listing Source
  • MLS Number
    2437906
  • Listing Broker
    Tracey Kirkley
  • Listing Office
    John L. Scott Snohomish
Monthly Payment Estimate
  • Principal and Interest
    $6,028 / month
  • Property Taxes
    $707 / month
  • Homeowners Insurance
    $223 / month
  • TOTAL
    $6,958 / month

  • based on 20% down
    ($230,000)
  • and a
    6.85% Interest Rate
  • About:
    All calculations are estimates only and provided by Mainview LLC. Actual amounts will vary.
House Details
  • Sqft (Total)
    2,632 sqft
  • Sqft (Finished)
    2,632 sqft
  • Sqft (Unfinished)
    None
  • Property Type
    House
  • Sub Type
    2 Story
  • Bedrooms
    5 Bedrooms
  • Bathrooms
    3 Bathrooms
  • Lot
    7,841 sqft Lot
  • Lot Size Source
    Realist
  • Lot #
    Unspecified
  • Project
    Unspecified
  • Total Stories
    2 stories
  • Basement
    None
  • Sqft Source
    Realist
Property Tax Info
  • 2025 Property Taxes
    $8,486 / year
  • No Senior Exemption
Public Parcel Data & Maps
Schools
  • School District
    Everett
  • Elementary
    Mill Creek Elem
  • Middle
    Heatherwood Mid
  • High School
    Henry M. Jackson Hig
HOA
  • HOA Dues
    Unspecified
  • Fees Assessed
    Unspecified
  • HOA Dues Include
    Unspecified
  • HOA Contact
    Unspecified
  • Management Contact
Parking
  • Covered
    2-Car
  • Types
    Attached Garage
  • Has Garage
    Yes
  • Nbr of Assigned Spaces
    2
Construction
  • Year Built
    1990
  • Home Builder
    Unspecified
Cooling
  • Includes
    None
Heating
  • Includes
    Forced Air
Interior
  • Flooring
    Hardwood
    Stone
    Vinyl
    Carpet
  • Features
    Second Primary Bedroom
    Bath Off Primary
    Ceiling Fan(s)
    Double Pane/Storm Window
    Dining Room
    Fireplace
    French Doors
    Skylight(s)
    Vaulted Ceiling(s)
    Walk-In Closet(s)
Property
  • Lot Features
    Cul-De-Sac
    Paved
    Sidewalk
  • Site Features
    Deck
    Fenced-Partially
    Gas Available
Appliances
  • Included
    Dishwasher(s)
    Disposal
    Dryer(s)
    Microwave(s)
    Refrigerator(s)
    Stove(s)/Range(s)
    Washer(s)
Terms
  • 3rd Party Approval Required)
    No
  • Bank Owned (REO)
    No
  • Complex FHA Availability
    Unspecified
  • Potential Terms
    Cash Out
    Conventional
    FHA
    VA Loan
Utilities
  • Energy
    Electric
    Natural Gas
  • Sewer
    Sewer Connected
  • Water Source
    Public
Additional Info
  • Waterfront
    No
  • Air Conditioning (A/C)
    No
  • Buyer Broker's Compensation
    2.5%
  • MLS Area #
    Area 740
  • Number of Photos
    40
  • Last Modification Time
    Monday, November 17, 2025 3:51 PM
  • System Listing ID
    5486506
Update Info
  • Pending Or Ctg
    2025-11-17 15:58:32
  • First For Sale
    2025-09-25 09:28:13
Listing details based on information submitted to the MLS GRID as of Monday, November 17, 2025 3:51 PM. All data is obtained from various sources and may not have been verified by broker or MLS GRID. Supplied Open House Information is subject to change without notice. All information should be independently reviewed and verified for accuracy. Properties may or may not be listed by the office/agent presenting the information.
View
Sort

Sharing

 
Pending November 8, 2025
$1,150,000  
5 BR    3 BA    2,632 SQFT  
NWMLS #2437906. Tracey Kirkley, John L. Scott Snohomish
Map
 
Listing information is provided by the listing agent except as follows: BuilderB indicates that our system has grouped this listing under a home builder name that doesn't match the name provided by the listing broker. DevelopmentD indicates that our system has grouped this listing under a development name that doesn't match the name provided by the listing broker.