to
Reset
Houses
Townhouses
Condos
Land
Price
to
SQFT
to
Bdrms
to
Baths
to
Lot
to
Yr Built
to
Sold
Listed within...
Listed at least...
Offer Review
New Construction
Waterfront
Short-Sales
REO
Parking
to
Unit Flr
to
Unit Nbr
Listings
Neighborhoods
Complexes
Developments
Cities
Counties
Zip Codes
Neighborhood · Condo · Development
School District
Zip Code
City
County
Builder
Listing Numbers
Broker LAG
Boundary Lines
Labels
View
Sort
Sold Closed December 1, 2025
$610,000
4 Bedrooms
3.5 Bathrooms
2,232 Sqft House
Built 2018
1.1 Acres Lot
2-Car Garage
SALE HISTORY
List price was $650,000
It took 37 days to go pending.
Then 30 days to close at $610,000
Closed at $273/SQFT.
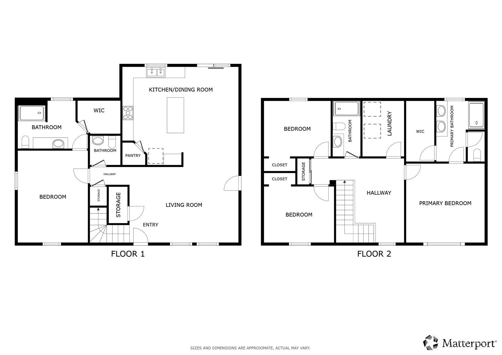
Welcome to this newly built multigenerational home offering thoughtful design and modern comfort. With two primary bedrooms, including one on the main level, plus two additional bedrooms and a spacious loft upstairs, there’s room for flexibility and function. The gourmet kitchen boasts a large island, walk-in pantry, soft-close cabinets, and stainless steel appliances. Enjoy 9-ft ceilings and brand-new laminate flooring on the main. Additional highlights include a covered front porch, upper-level laundry, smart thermostat with heating and A/C, and a fully wired low-voltage system. Outside, There's plenty of space for backyard chickens, and a garden. Complete with a two-car garage and shared well.
Offer Review
No offer review date was specified
Listing source NWMLS MLS #
2437419
Listed by
Alan Johnson, Redfin
Buyer's broker
Amber Anderson, St Clair Realty
We don't currently have a buyer representative in this area. To be sure that you're getting objective advice, we always suggest buyers work with their own agent, someone who is not affiliated with the seller.
Bedroom & Bathroom Layout
SECOND
BDRM
BDRM
BDRM
FULL
BATH
FULL
BATH
MAIN
BDRM
FULL
BATH
½
BATH
Property History
Dec 01, 2025
Sold
$610,000
NWMLS #2437419 Annualized 7.3% / yr
Nov 03, 2025
Went Pending
$650,000
NWMLS #2437419
Sep 25, 2025
Listed
$650,000
NWMLS #2437419
Aug 16, 2020
Sold
$420,000
More
Listing Details
  • Sale Price
    $610,000
  • Closing Date
    December 1, 2025
  • Last List Price
    $650,000
  • Original Price
    Same
  • List Date
    September 25, 2025
  • Pending Date
    November 1, 2025
  • Days to go Pending
    37 days
  • $/sqft (Total)
    $273/sqft
  • $/sqft (Finished)
    $273/sqft
  • Listing Source
  • MLS Number
    2437419
  • Listing Broker
    Alan Johnson
  • Listing Office
    Redfin
  • Buyer's Broker
    Amber Anderson
  • Buyer Broker's Firm
    St Clair Realty
Monthly Payment Estimate
  • Principal and Interest
    $3,198 / month
  • Property Taxes
    $326 / month
  • Homeowners Insurance
    $124 / month
  • TOTAL
    $3,648 / month

  • based on 20% down
    ($122,000)
  • and a
    6.85% Interest Rate
  • About:
    All calculations are estimates only and provided by Mainview LLC. Actual amounts will vary.
House Details
  • Sqft (Total)
    2,232 sqft
  • Sqft (Finished)
    2,232 sqft
  • Sqft (Unfinished)
    None
  • Property Type
    House
  • Sub Type
    2 Story
  • Bedrooms
    4 Bedrooms
  • Bathrooms
    3.5 Bathrooms
  • Lot
    1.1 Acres Lot
  • Lot Size Source
    Mason Co - Buyer to Verify
  • Lot #
    Unspecified
  • Project
    Unspecified
  • Total Stories
    2 stories
  • Basement
    None
  • Sqft Source
    Mason Co - Buyer to Verify
Property Tax Info
  • 2025 Property Taxes
    $3,916 / year
  • No Senior Exemption
Public Parcel Data & Maps
  • County
    Mason County
  • Parcel #
    122297790023
  • County Website
    Unspecified
  • County Parcel Map
    Unspecified
  • County GIS Map
    Unspecified
  • About
    County links provided by Mainview LLC
Schools
  • School District
    North Mason #403
  • Elementary
    Buyer To Verify
  • Middle
    Buyer To Verify
  • High School
    Buyer To Verify
HOA
  • HOA Dues
    Unspecified
  • Fees Assessed
    Unspecified
  • HOA Dues Include
    Unspecified
  • HOA Contact
    Unspecified
  • Management Contact
    Unspecified
Parking
  • Covered
    2-Car
  • Types
    Attached Garage
  • Has Garage
    Yes
  • Nbr of Assigned Spaces
    2
Views
  • Territorial
Construction
  • Year Built
    2018
  • Home Builder
    Unspecified
Cooling
  • Includes
    Heat Pump
Heating
  • Includes
    Heat Pump
Interior
  • Flooring
    Ceramic Tile
    Laminate
    Carpet
  • Features
    Second Primary Bedroom
    Double Pane/Storm Window
    Dining Room
    High Tech Cabling
    Loft
    Walk-In Closet(s)
    Walk-In Pantry
Property
  • Lot Features
    Dead End Street
    Open Space
    Paved
    Secluded
  • Site Features
    Cable TV
    Deck
    Fenced-Partially
    High Speed Internet
Appliances
  • Included
    Dishwasher(s)
    Dryer(s)
    Microwave(s)
    Refrigerator(s)
    Stove(s)/Range(s)
    Washer(s)
Terms
  • Bank Owned (REO)
    No
Utilities
  • Energy
    Electric
  • Sewer
    Sewer Connected
  • Water Source
    Shared Well
Additional Info
  • Waterfront
    No
  • Air Conditioning (A/C)
    Yes
  • Buyer Broker's Compensation
    2.5%
  • MLS Area #
    Area 180
  • Number of Photos
    38
  • Last Modification Time
    Monday, December 1, 2025 2:42 PM
  • System Listing ID
    5486546
Update Info
  • Closed
    2025-12-01 14:53:46
  • Pending Or Ctg
    2025-11-03 10:54:35
  • First For Sale
    2025-09-25 09:53:31
Listing details based on information submitted to the MLS GRID as of Monday, December 1, 2025 2:42 PM. All data is obtained from various sources and may not have been verified by broker or MLS GRID. Supplied Open House Information is subject to change without notice. All information should be independently reviewed and verified for accuracy. Properties may or may not be listed by the office/agent presenting the information.
View
Sort

Sharing

 
Sold December 1, 2025
$610,000   $650,000
4 BR    3.5 BA    2,232 SQFT  
NWMLS #2437419. Alan Johnson, Redfin
Map
 
Listing information is provided by the listing agent except as follows: BuilderB indicates that our system has grouped this listing under a home builder name that doesn't match the name provided by the listing broker. DevelopmentD indicates that our system has grouped this listing under a development name that doesn't match the name provided by the listing broker.