to
Reset
Houses
Townhouses
Condos
Land
Price
to
SQFT
to
Bdrms
to
Baths
to
Lot
to
Yr Built
to
Sold
Listed within...
Listed at least...
Offer Review
New Construction
Waterfront
Short-Sales
REO
Parking
to
Unit Flr
to
Unit Nbr
Listings
Neighborhoods
Complexes
Developments
Cities
Counties
Zip Codes
Neighborhood · Condo · Development
School District
Zip Code
City
County
Builder
Listing Numbers
Broker LAG
Boundary Lines
Labels
View
Sort
Pending Inspection Went pending in 4 days
$500,000
3 Bedrooms
1.5 Bathrooms
1,170 Sqft Townhome
Lot B
Built 2010
821 Sqft Lot
1-Car Garage
PENDING SALE. This listing went Pending Inspection on September 29, 2025

Some pending sales don't become final. Contact Us if this property is really important to you so we can check on it right now. The seller has reached an agreement with a buyer to sell this property. If things go as planned, the sale will become final in the near future. The buyer and seller have agreed on a price but it's not public until the sale closes. The last published list price was $500,000.
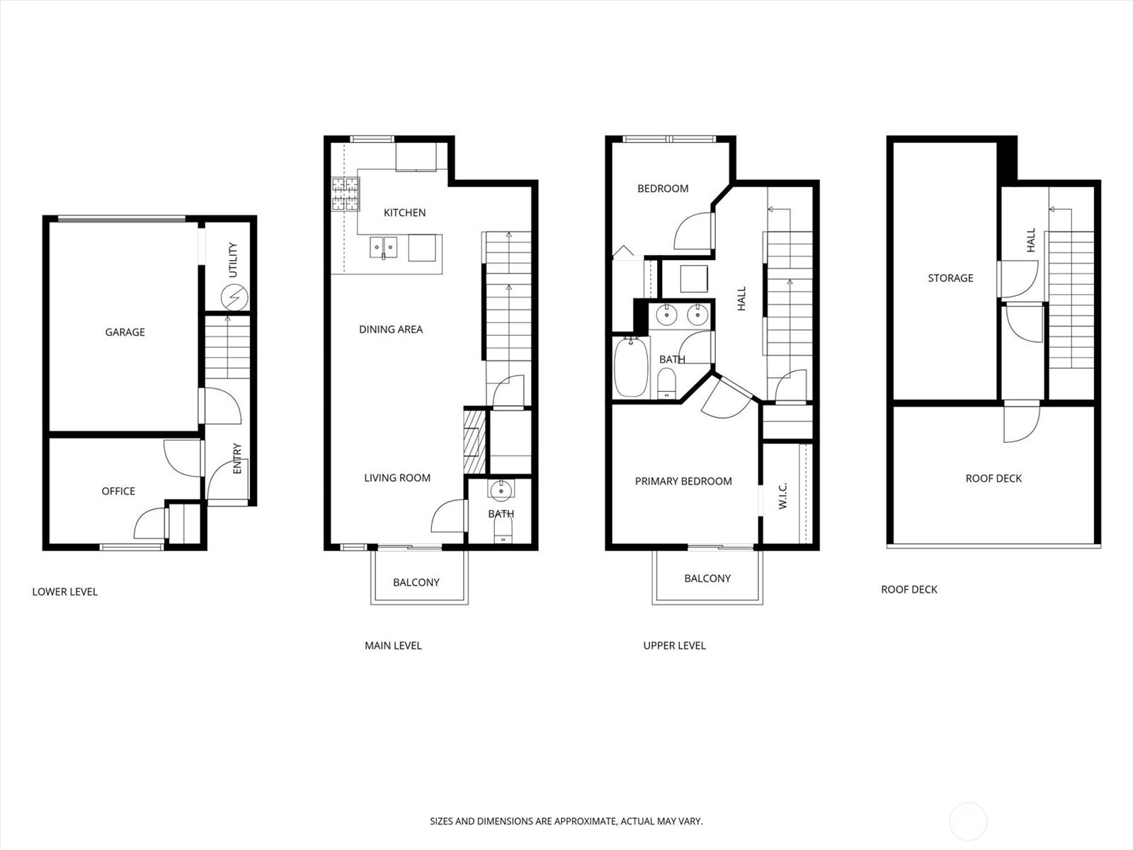
Sunset views over the Olympics from your private rooftop deck! Modern townhome in vibrant White Center with bright, open living spaces and stylish finishes throughout. This home lives larger than the square-footage! The main floor features a spacious living area, dining space, and kitchen with granite counters, stainless appliances, and bar seating. Two balconies plus the rooftop deck capture west-facing Olympic Mountain views. The upper level includes generous closet space and a double vanity bath. Two additional bedrooms offer flexibility for guests or office. Convenient upper-level laundry, one-car garage, and attic storage add everyday ease. All just blocks from White Center’s restaurants, cafes, shops, parks, and transit.No HOA!
Offer Review
No offer review date was specified
Listing source NWMLS MLS #
2437862
Listed by
Aaron Patrick Wilder, eXp Realty
Contact our
West Seattle
Real Estate Lead
John L. Scott
Phone...
Bedroom & Bathroom Layout
SECOND
BDRM
BDRM
FULL
BATH
MAIN
½
BATH
LOWER
BDRM
Property History
Sep 30, 2025
Went Pending Inspection
$500,000
NWMLS #2437862
Sep 25, 2025
Listed
$500,000
NWMLS #2437862
Oct 12, 2017
Sold
$419,250
NWMLS #1191674 Annualized 13% / yr
Apr 11, 2011
Sold
$189,000
More
Listing Details
  • Status
    Pending Inspection
  • Last Listed Price
    $500,000
  • Original Price
    Same as current
  • List Date
    September 25, 2025
  • Last Status Change
    September 30, 2025
  • Last Update
    September 30, 2025
  • Days on Market
    5 Days
  • Cumulative DOM
    4 Days
  • Pending Date
    September 29, 2025
  • Days to go Pending
    4
  • $/sqft (Total)
    $427/sqft
  • $/sqft (Finished)
    $427/sqft
  • Listing Source
  • MLS Number
    2437862
  • Listing Broker
    Aaron Patrick Wilder
  • Listing Office
    eXp Realty
Monthly Payment Estimate
  • Principal and Interest
    $2,621 / month
  • Property Taxes
    $393 / month
  • Homeowners Insurance
    $104 / month
  • TOTAL
    $3,118 / month

  • based on 20% down
    ($100,000)
  • and a
    6.85% Interest Rate
  • About:
    All calculations are estimates only and provided by Mainview LLC. Actual amounts will vary.
Townhouse Details
  • Unit #
    B
  • Unit Floor
    Unspecified
  • Sqft (Total)
    1,170 sqft
  • Sqft (Finished)
    1,170 sqft
  • Sqft (Unfinished)
    None
  • Property Type
    Townhome
  • Sub Type
    Townhouse
  • Bedrooms
    3 Bedrooms
  • Bathrooms
    1.5 Bathrooms
  • Lot
    821 sqft Lot
  • Lot Size Source
    Tax Records
  • Lot #
    Unit Lot B
  • Project
    City of Sea Short Subdiv 3010910
  • Total Stories
    Unspecified
  • Sqft Source
    Tax Records
Property Tax Info
  • 2025 Property Taxes
    $4,714 / year
  • No Senior Exemption
Public Parcel Data & Maps
Schools
  • School District
    Seattle
  • Elementary
    Buyer To Verify
  • Middle
    Buyer To Verify
  • High School
    Buyer To Verify
HOA
  • HOA Dues
    Unspecified
  • Fees Assessed
    Unspecified
  • HOA Dues Include
    Unspecified
  • HOA Contact
    Unspecified
  • Management Contact
Building
  • Name
    City of Sea Short Subdiv 3010910
  • Units in Complex
    Unspecified
  • Units in Building
    Unspecified
  • Stories in Building
    Unspecified
Parking
  • Covered
    1-Car
  • Types
    Attached Garage
  • Has Garage
    Yes
  • Nbr of Assigned Spaces
    1
Construction
  • Year Built
    2010
  • Home Builder
    Unspecified
Cooling
  • Includes
    None
Heating
  • Includes
    Wall Unit(s)
Interior
  • Flooring
    Bamboo/Cork
    Ceramic Tile
  • Features
    Bath Off Primary
    Ceiling Fan(s)
    Double Pane/Storm Window
    Dining Room
    Fireplace
    Walk-In Closet(s)
Property
  • Lot Features
    Curbs
    Paved
    Sidewalk
  • Site Features
    Cable TV
    Deck
    High Speed Internet
    Rooftop Deck
Appliances
  • Included
    Dishwasher(s)
    Dryer(s)
    Microwave(s)
    Refrigerator(s)
    Stove(s)/Range(s)
    Washer(s)
Terms
  • 3rd Party Approval Required)
    No
  • Bank Owned (REO)
    No
  • Complex FHA Availability
    Unspecified
  • Potential Terms
    Cash Out
    Conventional
    FHA
    State Bond
    VA Loan
Utilities
  • Energy
    Electric
    Natural Gas
  • Sewer
    Sewer Connected
  • Water Source
    Public
Additional Info
  • Waterfront
    No
  • Air Conditioning (A/C)
    No
  • Buyer Broker's Compensation
    2.5%
  • MLS Area #
    Area 140
  • Number of Photos
    27
  • Last Modification Time
    Tuesday, September 30, 2025 8:11 AM
  • System Listing ID
    5486732
Update Info
  • Pending Or Ctg
    2025-09-30 08:16:19
  • First For Sale
    2025-09-25 12:35:42
Listing details based on information submitted to the MLS GRID as of Tuesday, September 30, 2025 8:11 AM. All data is obtained from various sources and may not have been verified by broker or MLS GRID. Supplied Open House Information is subject to change without notice. All information should be independently reviewed and verified for accuracy. Properties may or may not be listed by the office/agent presenting the information.
View
Sort

Sharing

 
Pending Inspection September 29, 2025
$500,000  
3 BR    1.5 BA    1,170 SQFT  
NWMLS #2437862. Aaron Patrick Wilder, eXp Realty
Map
 
Listing information is provided by the listing agent except as follows: BuilderB indicates that our system has grouped this listing under a home builder name that doesn't match the name provided by the listing broker. DevelopmentD indicates that our system has grouped this listing under a development name that doesn't match the name provided by the listing broker.