to
Reset
Houses
Townhouses
Condos
Land
Price
to
SQFT
to
Bdrms
to
Baths
to
Lot
to
Yr Built
to
Sold
Listed within...
Listed at least...
Offer Review
New Construction
Waterfront
Short-Sales
REO
Parking
to
Unit Flr
to
Unit Nbr
Listings
Neighborhoods
Complexes
Developments
Cities
Counties
Zip Codes
Neighborhood · Condo · Development
School District
Zip Code
City
County
Builder
Listing Numbers
Broker LAG
Boundary Lines
Labels
View
Sort
For Sale 61 Days Online
$549,999
Originally $579,999
4 Bedrooms
2.5 Bathrooms
2,313 Sqft House
Built 2017
6,436 Sqft Lot
2-Car Garage
HOA Dues $17 / month
This impeccably maintained home has all of the space you desire, with a huge corner lot and in a wonderful neighborhood! Upon entering the home you'll see how the natural light floods every corner! The kitchen boasts white cabinets w/ under lighting, capped w/ real granite counters, mosaic back splash, all SS appliances & a view from the kitchen sink bay window! Flowing into the great room you'll find ample space, gas fireplace w/ mantle & more windows! Upstairs are a total of 4 bedrooms each w/ ceiling fans & a primary en suite w/ dual sinks, huge soaking tub and large walk in closet! Don't miss the spacious 2 car garage with tons of overhead storage, 220 outlet for car charger and yes...a window! Lastly a large back & side yard to enjoy!
Offer Review
Will review offers when submitted
Listing source NWMLS MLS #
2437028
Listed by
Andrew Kramer, Redfin
Joe Vego, Redfin
Contact our
Spanaway
Real Estate Lead
RE/MAX Northwest Realtors
Phone...
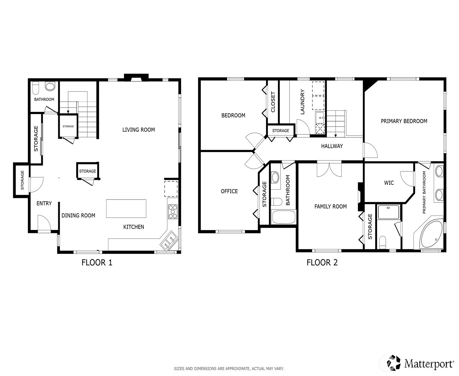
Bedroom & Bathroom Layout
SECOND
BDRM
BDRM
BDRM
BDRM
FULL
BATH
FULL
BATH
MAIN
½
BATH
Property History
Oct 29, 2025
Price Reduction arrow_downward
$549,999
NWMLS #2437028
Oct 09, 2025
Price Reduction arrow_downward
$569,999
NWMLS #2437028
Sep 25, 2025
Listed
$579,999
NWMLS #2437028
Mar 25, 2021
Sold
$505,000
NWMLS #1723405 Annualized 16.1% / yr
Sep 03, 2019
Sold
$400,000
NWMLS #1475358 Annualized 3% / yr
Mar 05, 2018
Sold
$382,900
More
Listing Details
  • Status
    For Sale
  • Price
    $549,999
  • Original Price
    $579,999
  • List Date
    September 25, 2025
  • Last Status Change
    September 25, 2025
  • Last Update
    November 13, 2025
  • Days on Market
    61 Days
  • Cumulative DOM
    61 Days
  • $/sqft (Total)
    $238/sqft
  • $/sqft (Finished)
    $238/sqft
  • Listing Source
  • MLS Number
    2437028
  • Listing Broker
    Andrew Kramer
  • Listing Office
    Redfin
Monthly Payment Estimate
  • Principal and Interest
    $2,883 / month
  • HOA
    $17 / month
  • Property Taxes
    $505 / month
  • Homeowners Insurance
    $113 / month
  • TOTAL
    $3,517 / month

  • based on 20% down
    ($110,000)
  • and a
    6.85% Interest Rate
  • About:
    All calculations are estimates only and provided by Mainview LLC. Actual amounts will vary.
House Details
  • Sqft (Total)
    2,313 sqft
  • Sqft (Finished)
    2,313 sqft
  • Sqft (Unfinished)
    None
  • Property Type
    House
  • Sub Type
    2 Story
  • Bedrooms
    4 Bedrooms
  • Bathrooms
    2.5 Bathrooms
  • Lot
    6,436 sqft Lot
  • Lot Size Source
    Realist - Buyer to Verify
  • Lot #
    Unspecified
  • Project
    Unspecified
  • Total Stories
    2 stories
  • Basement
    None
  • Sqft Source
    Realist - Buyer to Verify
Property Tax Info
  • 2025 Property Taxes
    $6,056 / year
  • No Senior Exemption
Public Parcel Data & Maps
Schools
  • School District
    Bethel
  • Elementary
    Buyer To Verify
  • Middle
    Buyer To Verify
  • High School
    Buyer To Verify
HOA
  • HOA Dues
    $17 / month
  • Fees Assessed
    Annually
  • HOA Dues Include
    Common Area Maintenance
  • HOA Contact
    Jason Nolin 702-325-7551
  • Management Contact
Community Features
  • Community Features
    CCRs
Parking
  • Covered
    2-Car
  • Types
    Driveway
    Attached Garage
  • Has Garage
    Yes
  • Nbr of Assigned Spaces
    2
Construction
  • Year Built
    2017
  • Home Builder
    Unspecified
Cooling
  • Includes
    Heat Pump
Heating
  • Includes
    Forced Air
    Heat Pump
Interior
  • Flooring
    Laminate
    Vinyl
    Carpet
  • Features
    Bath Off Primary
    Ceiling Fan(s)
    Double Pane/Storm Window
    Fireplace
    Walk-In Closet(s)
    Water Heater
Property
  • Lot Features
    Corner Lot
    Cul-De-Sac
    Curbs
    Dead End Street
    Paved
    Sidewalk
  • Site Features
    Fenced-Fully
Appliances
  • Included
    Dishwasher(s)
    Dryer(s)
    Microwave(s)
    Refrigerator(s)
    Stove(s)/Range(s)
    Washer(s)
Terms
  • 3rd Party Approval Required)
    No
  • Bank Owned (REO)
    No
  • Complex FHA Availability
    Unspecified
  • Potential Terms
    Cash Out
    Conventional
    FHA
    VA Loan
Utilities
  • Energy
    Electric
    Natural Gas
  • Sewer
    Sewer Connected
  • Water Source
    Public
Additional Info
  • Waterfront
    No
  • Air Conditioning (A/C)
    Yes
  • Buyer Broker's Compensation
    2.25%
  • MLS Area #
    Area 89
  • Number of Photos
    30
  • Last Modification Time
    Thursday, November 13, 2025 1:13 PM
  • System Listing ID
    5486857
Update Info
  • Price Reduction
    2025-10-29 13:30:35
  • First For Sale
    2025-09-25 15:04:45
Listing details based on information submitted to the MLS GRID as of Thursday, November 13, 2025 1:13 PM. All data is obtained from various sources and may not have been verified by broker or MLS GRID. Supplied Open House Information is subject to change without notice. All information should be independently reviewed and verified for accuracy. Properties may or may not be listed by the office/agent presenting the information.
View
Sort

Sharing

 
For Sale 61 Days Online
$549,999     ▼ Price Reduction $20K
4 BR    2.5 BA    2,313 SQFT  
Offer Review: Anytime
NWMLS #2437028. Andrew Kramer, Redfin
Map
 
Listing information is provided by the listing agent except as follows: BuilderB indicates that our system has grouped this listing under a home builder name that doesn't match the name provided by the listing broker. DevelopmentD indicates that our system has grouped this listing under a development name that doesn't match the name provided by the listing broker.