to
Reset
Houses
Townhouses
Condos
Land
Price
to
SQFT
to
Bdrms
to
Baths
to
Lot
to
Yr Built
to
Sold
Listed within...
Listed at least...
Offer Review
New Construction
Waterfront
Short-Sales
REO
Parking
to
Unit Flr
to
Unit Nbr
Listings
Neighborhoods
Complexes
Developments
Cities
Counties
Zip Codes
Neighborhood · Condo · Development
School District
Zip Code
City
County
Builder
Listing Numbers
Broker LAG
Boundary Lines
Labels
View
Sort
Pending Went pending in 49 days
$515,000
Originally $539,000
3 Bedrooms
2.5 Bathrooms
1,624 Sqft House
Built 1979
11,500 Sqft Lot
2-Car Garage
PENDING SALE. This listing went Pending on November 14, 2025

Some pending sales don't become final. Contact Us if this property is really important to you so we can check on it right now. The seller has reached an agreement with a buyer to sell this property. If things go as planned, the sale will become final in the near future. The buyer and seller have agreed on a price but it's not public until the sale closes. The last published list price was $515,000.
Welcome home to this fully remodeled 3-bed, 3-bath wonderful Spanaway property! This home sits on a spacious .26-acre corner lot w/ RV parking. Thoughtfully updated throughout in 2022, enjoy a new HVAC, heat pump water heater, SS appliances, LVP flooring, fresh new gutters & whole house interior & exterior paint! A brand-new septic system installed September 2025 for worry-free living. The main upper level offers a bright living room, modern kitchen, 3 beds & full bath including a primary suite w/ 3/4 bath! Lower level features a large family room w/ 3/4 bath—perfect for entertaining or relaxing. Expansive yard provides endless possibilities for gardening, play & outdoor gatherings. Move-in ready & close to JBLM, amenities & schools!
Offer Review
No offer review date was specified
Listing source NWMLS MLS #
2436942
Listed by
Darlene Heseltine, Redfin
Contact our
Spanaway
Real Estate Lead
RE/MAX Northwest Realtors
Phone...
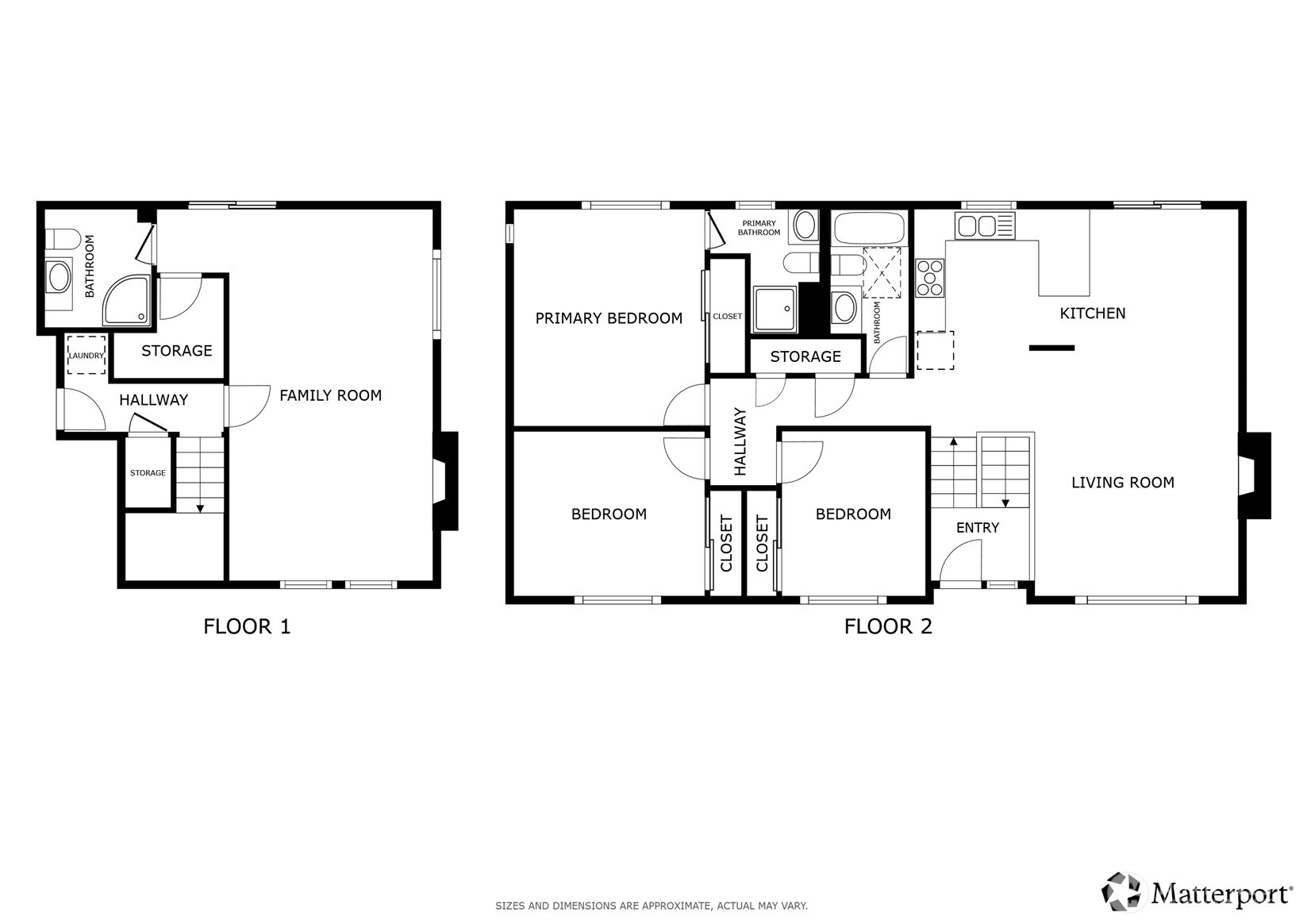
Bedroom & Bathroom Layout
SECOND
MAIN
BDRM
BDRM
BDRM
FULL
BATH
¾
BATH
LOWER
¾
BATH
Property History
Nov 14, 2025
Went Pending
$515,000
NWMLS #2436942
Nov 03, 2025
Price Reduction arrow_downward
$515,000
NWMLS #2436942
Oct 09, 2025
Price Reduction arrow_downward
$524,000
NWMLS #2436942
Sep 26, 2025
Listed
$539,000
NWMLS #2436942
Jan 30, 2022
Sold
$385,000
Nov 27, 2021
Listed
$399,000
More
Listing Details
  • Status
    Pending
  • Last Listed Price
    $515,000
  • Original Price
    $539,000
  • List Date
    September 26, 2025
  • Last Status Change
    November 14, 2025
  • Last Update
    November 14, 2025
  • Days on Market
    51 Days
  • Cumulative DOM
    49 Days
  • Pending Date
    November 14, 2025
  • Days to go Pending
    49
  • $/sqft (Total)
    $317/sqft
  • $/sqft (Finished)
    $317/sqft
  • Listing Source
  • MLS Number
    2436942
  • Listing Broker
    Darlene Heseltine
  • Listing Office
    Redfin
Monthly Payment Estimate
  • Principal and Interest
    $2,700 / month
  • Property Taxes
    $399 / month
  • Homeowners Insurance
    $107 / month
  • TOTAL
    $3,206 / month

  • based on 20% down
    ($103,000)
  • and a
    6.85% Interest Rate
  • About:
    All calculations are estimates only and provided by Mainview LLC. Actual amounts will vary.
House Details
  • Sqft (Total)
    1,624 sqft
  • Sqft (Finished)
    1,624 sqft
  • Sqft (Unfinished)
    None
  • Property Type
    House
  • Sub Type
    Split Entry
  • Bedrooms
    3 Bedrooms
  • Bathrooms
    2.5 Bathrooms
  • Lot
    11,500 sqft Lot
  • Lot Size Source
    Realist - Buyer to Verify
  • Lot #
    Unspecified
  • Project
    Garlo Third Add
  • Total Stories
    2 stories
  • Basement
    Finished
  • Sqft Source
    Realist - Buyer to Verify
Property Tax Info
  • 2025 Property Taxes
    $4,782 / year
  • No Senior Exemption
Public Parcel Data & Maps
Schools
  • School District
    Bethel
  • Elementary
    Buyer To Verify
  • Middle
    Buyer To Verify
  • High School
    Buyer To Verify
HOA
  • HOA Dues
    Unspecified
  • Fees Assessed
    Unspecified
  • HOA Dues Include
    Unspecified
  • HOA Contact
    Unspecified
  • Management Contact
Parking
  • Covered
    2-Car
  • Types
    Driveway
    Attached Garage
  • Has Garage
    Yes
  • Nbr of Assigned Spaces
    2
Construction
  • Year Built
    1979
  • Home Builder
    Unspecified
Cooling
  • Includes
    Forced Air
    Heat Pump
Heating
  • Includes
    Forced Air
    Heat Pump
Interior
  • Flooring
    Vinyl Plank
  • Features
    Bath Off Primary
    Dining Room
    Fireplace
    Skylight(s)
    Water Heater
Property
Appliances
  • Included
    Dishwasher(s)
    Dryer(s)
    Microwave(s)
    Refrigerator(s)
    See Remarks
    Washer(s)
Terms
  • 3rd Party Approval Required)
    No
  • Bank Owned (REO)
    No
  • Complex FHA Availability
    Unspecified
  • Potential Terms
    Cash Out
    Conventional
    FHA
    VA Loan
Utilities
  • Energy
    Electric
  • Sewer
    Septic Tank
  • Water Source
    Public
Additional Info
  • Waterfront
    No
  • Air Conditioning (A/C)
    Yes
  • Buyer Broker's Compensation
    2.5%
  • MLS Area #
    Area 99
  • Number of Photos
    35
  • Last Modification Time
    Friday, November 14, 2025 9:15 AM
  • System Listing ID
    5487338
Update Info
  • Pending Or Ctg
    2025-11-14 09:16:47
  • Price Reduction
    2025-11-03 15:02:08
  • First For Sale
    2025-09-26 13:12:06
Listing details based on information submitted to the MLS GRID as of Friday, November 14, 2025 9:15 AM. All data is obtained from various sources and may not have been verified by broker or MLS GRID. Supplied Open House Information is subject to change without notice. All information should be independently reviewed and verified for accuracy. Properties may or may not be listed by the office/agent presenting the information.
View
Sort

Sharing

 
Pending November 14, 2025
$515,000  
3 BR    2.5 BA    1,624 SQFT  
NWMLS #2436942. Darlene Heseltine, Redfin
Map
 
Listing information is provided by the listing agent except as follows: BuilderB indicates that our system has grouped this listing under a home builder name that doesn't match the name provided by the listing broker. DevelopmentD indicates that our system has grouped this listing under a development name that doesn't match the name provided by the listing broker.